PTS-NXT2-06JE - 第527页
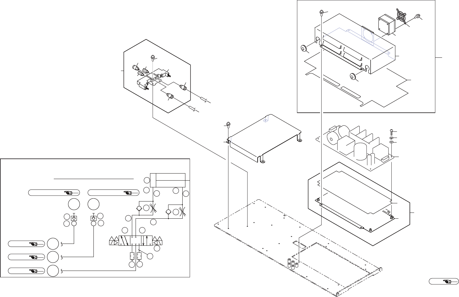
M6 II-DEVICE BASE 2/2 M6 II-デバイスベース 2/2 UD02406 No. Dr g .No. & Code No. QTY Descri p tion Ratin g Materials Remarks 番号 図番 & コード番号 個数 品名 規 格材 質 備 考 1 AA54411 1 COVER カバー OT 2 PB09047 1 COVER カバー FE 3 K51981 4 SC…

Ref.1/
BB
AA
A,BA,B
࢚࣮㓄⟶ᅗ
31(80$7,&&,5&8,7',$*5$0
ȭȭ
ȭ
55
ȭ
0
0
0
$ %
3($ (%
ȭ
ȭ
0
0
ȭ
0
0
Ref.BED
Ref.BED
Ref.BED
hh
ii
ff
kkJJ
Ref.TRAY81,7/Ref.TRAY81,7/
2
3
5
5
12
15
16
20
21
25
25
25
AJ
AK
AK
AL
AL
AI
AI
AH
AG
AF
AF
AE
AD
AC AC
AB
AB
AA
AC
6
7
8
31
32
33
23
26
26
24
27
14
1
30
UD02406
0,,ࢹࣂࢫ࣮࣋ࢫ
0,,'(9,&(%$6(
150
PTS-NXT2-06JE Vol.2

M6 II-DEVICE BASE 2/2
M6 II-デバイスベース 2/2
UD02406
No. Dr
g
.No. & Code No. QTY Descri
p
tion Ratin
g
Materials Remarks
番号 図番 & コード番号 個数 品名
規
格材質 備考
1 AA54411 1 COVER カバー OT
2 PB09047 1 COVER カバー FE
3 K51981 4 SCREW, WASHER ASS'Y 小ネジ 座金組込み M03X006 P=4 ナベセムス(3カ シロ) FE
5 H3083R 2 BUSHING, RUBBER
ブ
シュ ゴム B-10-1 OT
6 H30125 1 FAN ファン 109P0424F6D1 OT
7 K1141R 1 GUARD, FIN ガード フィン 109-059 OT
8 K5182G 4 SCREW, WASHER ASS'Y 小ネジ 座金組込み M03X025 P=4ナベセムス(3カシロ) FE
12 PS00134 1 SHEET シート OT Consumable Parts
14 AA54704 1 BOX, POWER SUPPLY BOX 電源 OT
15 PM02655 1 BOX, POWER SUPPLY BOX 電源 FE
16 PS00042 1 SHEET シート OT Consumable Parts
20 PB88100 1 RETAINER, WIRING 押え 配線 FE
21 K51981 4 SCREW, WASHER ASS'Y 小ネジ 座金組込み M03X006 P=4 ナベセムス(3カ シロ) FE
23 AA54302 1 VALVE, SOL バル
ブ
SOL OT
24 H1122K 1 VALVE, SOL バル
ブ
SOL SY3320-5MZ-M5-F2 OT
25 Y3061E 3 UNION, HALF ユニオン ハーフ KJS04-M5 (シロ) OT
26 S1058A 2 SILENCER サイレンサ AN120-M5 OT
27 K51981 2 SCREW, WASHER ASS'Y 小ネジ 座金組込み M03X006 P=4 ナベセムス(3カ シロ) FE
30 T41522 1 POWER SUPPLY, DC 電源 DC ZWS240PAF-24
/
JOT
31 K5224A 4 SCREW, C
/
R PAN 小ネジ 十穴鍋 M03X006 ニッケルメッキ FE
32 W1021A 4 WASHER, LOCK ワッシャ ス
プ
リン
グ
3M
/
MFE
33 W1040R 4 WASHER, FLAT ワッシャ 平 3M
/
MX0.5X7(1W-3)(3カ クロ) FE
AA H1122K 1 VALVE, SOL バル
ブ
SOL SY3320-5MZ-M5-F2 OT
AB S1058A 2 SILENCER サイレンサ AN120-M5 OT
AC Y3061E 3 UNION, HALF ユニオン ハーフ KJS04-M5 (シロ) OT
AD PZ13981 1 TUBE チュー
ブ
OT
AE PZ13991 1 TUBE チュー
ブ
OT
AF K5340R 2 CONTROLLER, SPEED コントローラ スピード AS2001F-04(シロ) OT
AG PZ09201 1 TUBE チュー
ブ
OT
AH PZ07772 1 TUBE チュー
ブ
OT
AI Y3049G 2 UNION, ELBOW ユニオン エルボ KJL04-M5(シロ) OT
AJ S2101G 1 CYLINDER, AIR シリンダ エアー CDQSD25-40DCM-M9BL OT
AK Y3080A 2 UNION, ELBOW ユニオン エルボ KQ2L10-02S OT
AL XS01130 2 SOCKET, COUPLER ソケット カ
プ
ラOT
151
PTS-NXT2-06JE Vol.2

2
4.1
16
18
19
13
14
17
20
20
16
16.1
16.2
16.2
16.1
20
14
11
4
15
2
8
5
4
5.1
4.1
15
20
11
35
36
37
38
39
34
26
27
28
22
24
23
1
9
10
12
UD02903
0,,ࢹࣂࢫࣃࣞࢵࢺ࢞ࢻ
0,,'(9,&(3$//(7*8,'(
152
PTS-NXT2-06JE Vol.2