PTS-NXT2-06JE - 第531页
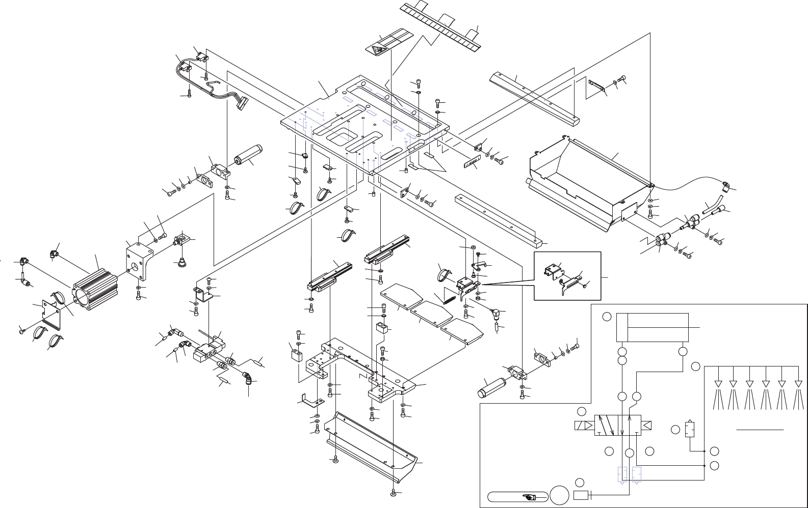
M6 II-DEVICE PALLET GUIDE M6 II-デバイスパレットガイド UD03004 No. Dr g .No. & Code No. QTY Descri p tion Ratin g Materials Remarks 番号 図番 & コード番号 個数 品名 規 格材 質 備 考 1 AA2YE06 1 GUIDE ガイド OT 2 PB0A0H0 2 SPACER スペーサ CO 3 2MGKP…

30
31
32
30
31
32
2
4.1
16
18
19
13
14
17
20
20
16
16.1
16.2
16.2
16.1
20
14
11
4
3
15
2
8
5
4
5.1
4.1
15
3.1
20
11
22
26
27
28
29
27
28
29
35
36
37
38
39
34
1
9
10
12
UD03004
0,,ࢹࣂࢫࣃࣞࢵࢺ࢞ࢻ
0,,'(9,&(3$//(7*8,'(
154
PTS-NXT2-06JE Vol.2

M6 II-DEVICE PALLET GUIDE
M6 II-デバイスパレットガイド
UD03004
No. Dr
g
.No. & Code No. QTY Descri
p
tion Ratin
g
Materials Remarks
番号 図番 & コード番号 個数 品名
規
格材質 備考
1 AA2YE06 1 GUIDE ガイド OT
2 PB0A0H0 2 SPACER スペーサ CO
3 2MGKPA002000 1 PLATE
プ
レート FE
3.1 K5359H 2 SCREW, HEX SOCKET COUNTERSUNK 小ネジ 六角穴皿 M04X010 FE
4 2MGKPA003000 2 PLATE, STIFFENING
プ
レート 当て FE
4.1 K5358H 4 SCREW, HEX SOCKET COUNTERSUNK 小ネジ 六角穴皿 M03X015 FE
5 2MGKPA001601 1 PLATE
プ
レート FE
5.1 K5192H 2 SCREW, HEX SOCKET COUNTERSUNK 小ネジ 六角穴皿 M04X018 FE
8 PB0A0L1 1 PLATE
プ
レート FE
9 H5288A 1 BOLT, HEX SOCKET ボルト 六角穴 M04X010 FE
10 W1022A 1 WASHER, LOCK ワッシャ ス
プ
リン
グ
4M
/
MFE
11 H2055T 2 PIN, SPRING ピン ス
プ
リン
グ
4゚X 8 OT
12 K5359E 1 SCREW, HEX SOCKET COUNTERSUNK 小ネジ 六角穴皿 M04X008 FE
13 PB61821 1 LINK リンク FE
14 PM84981 2 PIN ピン FE
15 2MGKPA001900 2 LEVER, LINK レバー リンク FE
16 PM0KEL0 2 PIN, PIVOT ピン 支点 FE
16.1 H5297A 2 BOLT, HEX SOCKET ボルト 六角穴 M05X008 FE
16.2 W1012A 2 WASHER, CONICAL ワッシャ 皿 M- 5-L FE
17 PZ24001 1 SPRING, TENSION ス
プ
リン
グ
引
張
FE
18 H5289A 1 BOLT, HEX SOCKET ボルト 六角穴 M04X012 FE
19 N10813 1 NUT, HEX ナット 六角 M04 3シュ(3カ クロ) FE
20 S1003F 4 CIR-CLIP サークリッ
プ
ST-EW-4(3カ シロ) OT
22 PT01980 1 GUIDE, SIDE ガイド サイド FE
26 PT01990 1 GUIDE, SIDE ガイド サイド FE
27 H5292A 4 BOLT, HEX SOCKET ボルト 六角穴 M04X020 FE
28 W1022A 4 WASHER, LOCK ワッシャ ス
プ
リン
グ
4M
/
MFE
29 W1043A 4 WASHER, FLAT ワッシャ 平 4W- 4 FE
30 N4041A 4 SCREW, HEX SOCKET SET ネジ 六角穴止め M05X015 クボミサキ FE
31 N10797 4 NUT, HEX ナット 六角 M05(3カ クロ) FE
32 W1023A 4 WASHER, LOCK ワッシャ ス
プ
リン
グ
5M
/
MFE
34 AA64X01 1 COVER カバー OT
35 PJ16662 1 COVER カバー OT
36 K5357M 5 SCREW, HEX SOCKET COUNTERSUNK 小ネジ 六角穴皿 M03X006 FE
37 PB89784 1 BKT, COVER BKT カバー FE
38 H5299A 2 BOLT, HEX SOCKET ボルト 六角穴 M05X012 FE
39 W1023A 2 WASHER, LOCK ワッシャ ス
プ
リン
グ
5M
/
MFE
155
PTS-NXT2-06JE Vol.2

BB
AA
AA
BB
DD
DD
CC
CC
EE
FF
EE
FF
ee
Ref.BED
࢚࣮㓄⟶ᅗ
31(80$7,&&,5&8,7',$*5$0
㸴
㸴
㸴
Air blow
㸯㸭㸶
㸯㸭㸶
㸯㸭㸶㸯㸭㸶
㸴
㸦㹃㸿㸧 㸦㹎㸧
㸦㹀㸧
㸦㸿㸧
㸦㹃㹀㸧
㸲㸲
㸯㸭㸶㸯㸭㸶
㸯㸭㸶
㸨㹒㹁㹋㸱㹀ࠉ㸯㸰㸱㸲㸳㸴㸨
1
23
6
7
8
9
9
10
10
11
11
12
12
14
14
15
15
16
16
17
17
18
18
19
19
20
20
21
21
22
22
26
28
29
31
30
33
35
35.1
36
37
38
44
45
48
49
49
50
51
59
69
74
75
76
77
79
81
82
83
84
85
86
87
88
89
90
93
93
94
96
96
97
97
103
98
99
100
6
7
8
39
40
41
42
43
34
46
47
48
50
52
53
54
52
53
55
56
57
58
60
61
62
63
64
65
66
67
68
68
70
71
72
73
77
91
92
96
97
101
24
103
103
103
103
103
103
1.1
60
60
26.1
26.2
33.1
33.2
105
106
107
108
109
110
111
112
113
114
112
113
114
115
116
117
118
2UGKPK000106
0:$67(7$3(352&(66,1*81,77&0%
0:ṧࢸ࣮ࣉฎ⌮ࣘࢽࢵࢺ7&0%
156
PTS-NXT2-06JE Vol.2