PTS-NXT2-06JE.pdf - 第582页
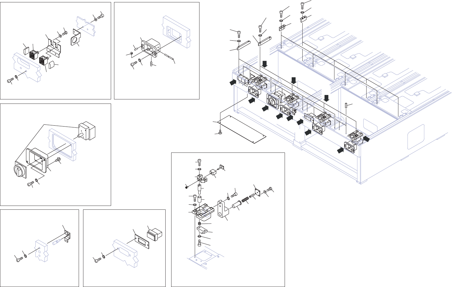
B B B B B B C C D D B B A A F F F F F F F F E E DETAIL A A DETAIL B B DETAIL C C DETAIL D D DETAIL E E DETAIL F F 20 23 21 22 24 26 25 43 44 45 46 64 65 63 61 60 57 59 58 62 41 42 51 52 53 54 56 55 40 32 33 34 10 12 11 1…

4M II-BASE 2/10
4M II-ベース 2/10
UB01230
No. Dr
g
.No. & Code No. QTY Descri
p
tion Ratin
g
Materials Remarks
番号 図番 & コード番号 個数 品名
規
格材質 備考
1 PT00493 4 GUIDE ガイド FE
2 H5294A 32 BOLT, HEX SOCKET ボルト 六角穴 M04X030 FE
3 W1011A 32 WASHER, CONICAL ワッシャ 皿 M- 4-L FE
4 PB92393 4 COVER, UPPER カバー 上 FE
5 K5171W 8 SCREW, C
/
R TRUSS 小ネジ 十穴トラス M05X006(3カ シロ) FE
6 PZ25691 4 SEAL シール PL
7 PZ25381 5 SEAL シール PL
8 PZ07821 1 SEAL シール PL
9 PZ08223 1 SEAL シール PL
10 PX07791 1 SEAL, BAR CODE シール バーコード OT unit serial number
11 RX00191 1 NAMEPLATE
銘
板OT
12 PZ40763 1 SEAL シール PL
13 PX08391 1 NAMEPLATE
銘
板PL
17 PT00504 4 GUIDE ガイド FE
18 H5294A 32 BOLT, HEX SOCKET ボルト 六角穴 M04X030 FE
19 W1011A 32 WASHER, CONICAL ワッシャ 皿 M- 4-L FE
20 PT00523 4 GUIDE ガイド FE
21 H5294A 16 BOLT, HEX SOCKET ボルト 六角穴 M04X030 FE
22 W1011A 16 WASHER, CONICAL ワッシャ 皿 M- 4-L FE
23 PT00292 4 BLOCK, STOPPER
ブ
ロック ストッパ FE
24 K5359H 8 SCREW, HEX SOCKET COUNTERSUNK 小ネジ 六角穴皿 M04X010 FE
25 PT00222 28 RETAINER 押え FE
26 K5359H 56 SCREW, HEX SOCKET COUNTERSUNK 小ネジ 六角穴皿 M04X010 FE
27 PT00212 28 RETAINER 押え FE
28 H5275A 56 BOLT, HEX SOCKET ボルト 六角穴 M03X008 FE
29 W1010A 56 WASHER, CONICAL ワッシャ 皿 M- 3-L FE
30 XB00771 4 BELT, TIMING ベルト タイミン
グ
OT
31 PB02SK0 1 COVER カバー FE
32 PZ42120 10 SCREW, C
/
R TRUSS 小ネジ 十穴トラス OT
33 PB02SA0 1 BKT BKT FE
34 H5297A 2 BOLT, HEX SOCKET ボルト 六角穴 M05X008 FE
35 W1023A 2 WASHER, LOCK ワッシャ ス
プ
リン
グ
5M
/
MFE
36 RX00191 1 NAMEPLATE
銘
板OT
37 RX02270 1 SEAL シール OT
38 MPZ7060 1 NAMEPLATE
銘
板OT
205
PTS-NXT2-06JE Vol.2

BB
BB
BB
CC
DD
BB
AA
FF
FF
FF
FF
EE
DETAIL AA
DETAIL BB
DETAIL CC
DETAIL DD
DETAIL EE
DETAIL FF
20
23
21
22
24
26
25
43
44
45
46
64
65
63
61
60
57
59
58
62
41
42
51
52
53
54
56
55
40
32
33
34
10
12
11
14
15
13
18
19
19
17
16
36
39
37
38
31
30
27
28
29
2
3
5
5
6
6
4
4
8
9
7
8
9
7
1
18.1
47
48
UB01230
0,,࣮࣋ࢫ
0,,%$6(
206
PTS-NXT2-06JE Vol.2

4M II-BASE 3/10
4M II-ベース 3/10
UB01230
No. Dr
g
.No. & Code No. QTY Descri
p
tion Ratin
g
Materials Remarks
番号 図番 & コード番号 個数 品名
規
格材質 備考
1 H2063A 8 PIN, SPRING ピン ス
プ
リン
グ
5゚X18 OT
2 PB19421 1 COVER カバー FE
3 K5171W 4 SCREW, C
/
R TRUSS 小ネジ 十穴トラス M05X006(3カ シロ) FE
4 PM30071 8 GUIDE ガイド FE
5 H5292T 16 BOLT, HEX SOCKET ボルト 六角穴 M04X022 FE
6 W1011A 16 WASHER, CONICAL ワッシャ 皿 M- 4-L FE
7 PT00023 8 GUIDE ガイド FE
8 H5294A 16 BOLT, HEX SOCKET ボルト 六角穴 M04X030 FE
9 W1011A 16 WASHER, CONICAL ワッシャ 皿 M- 4-L FE
10 PB14801 1 BKT BKT FE
11 H5299A 2 BOLT, HEX SOCKET ボルト 六角穴 M05X012 FE
12 W1023A 2 WASHER, LOCK ワッシャ ス
プ
リン
グ
5M
/
MFE
13 PB17304 1 BKT BKT FE
14 K5255T 4 SCREW, HEX SOCKET BUTTON 小ネジ 六角穴ボタン M03X006 FE
15 W1021A 4 WASHER, LOCK ワッシャ ス
プ
リン
グ
3M
/
MFE
16 H5300A 2 BOLT, HEX SOCKET ボルト 六角穴 M05X015 FE
17 W1012A 2 WASHER, CONICAL ワッシャ 皿 M- 5-L FE
18 S3150C 1 SW, PRESSURE SW
プ
レッシャ ISE30A-01-P-ML OT
18.1 S3150B 1 SW, PRESSURE SW
プ
レッシャ ZSE30A-01-P-ML OT
19 PG00861 2 COVER カバー OT
20 PT00163 4 GUIDE ガイド FE
21 H5298A 16 BOLT, HEX SOCKET ボルト 六角穴 M05X010 FE
22 W1012A 16 WASHER, CONICAL ワッシャ 皿 M- 5-L FE
23 H21468 8 PIN, PARALLEL ピン 平行 MS5-10 FE
24 N4018A 8 SCREW, HEX SOCKET SET ネジ 六角穴止め M03X003 クボミサキ FE
25 PM02971 16 ROLLER ローラ FE
26 PM35901 8 PIN, ROLLER ピン ローラ FE
27 PB019R3 1 BKT BKT FE
28 H5287A 2 BOLT, HEX SOCKET ボルト 六角穴 M04X008 ゼンネジ FE
29 W1011A 2 WASHER, CONICAL ワッシャ 皿 M- 4-L FE
30 S3088W 1 SW SW T3-2-1
/
E
/
SVB-SW SOND90 OT
31 K5198D 2 SCREW, WASHER ASS'Y 小ネジ 座金組込み M04X008 P=3 ナベセムス(3カ シロ) FE
32 PB09404 1 BKT BKT FE
33 H5300A 2 BOLT, HEX SOCKET ボルト 六角穴 M05X015 FE
34 W1012A 2 WASHER, CONICAL ワッシャ 皿 M- 5-L FE
36 PP03220 1 BKT BKT FE
37 H5300A 2 BOLT, HEX SOCKET ボルト 六角穴 M05X015 FE
38 W1012A 2 WASHER, CONICAL ワッシャ 皿 M- 5-L FE
39 K10403 1 COUNTER カウンタ H7ET-NV-300 OT
40 PT00152 4 HOLDER, STOPPER ホルダ ストッパ FE
41 H5322A 16 BOLT, HEX SOCKET ボルト 六角穴 M06X015 FE
42 W1013A 16 WASHER, CONICAL ワッシャ 皿 M- 6-H FE
43 PT02120 4 BLOCK, STOPPER
ブ
ロック ストッパ FE
44 H5299A 8 BOLT, HEX SOCKET ボルト 六角穴 M05X012 FE
45 W1012A 8 WASHER, CONICAL ワッシャ 皿 M- 5-L FE
46 PG05772 4 STOPPER ストッパ OT
47 PM0EYX1 4 BOLT ボルト FE
48 PM0EYW0 4 SHAFT シャフト FE
51 PM00912 8 SHAFT シャフト FE
52 H4901A 8 BEARING, DRY ベアリン
グ
ドライ K5B1420 FE
53 PZ00281 8 SPRING ス
プ
リン
グ
FE
207
PTS-NXT2-06JE Vol.2