PTS-NXT2-06JE.pdf - 第617页
M3 II-SINGLE CONVEYOR 3/6 M3 II-シングルコンベア 3/6 UQ04116 No. Dr g .No. & Code No. QTY Descri p tion Ratin g Materials Remarks 番号 図番 & コード番号 個数 品名 規 格材 質 備 考 105 AA7GE04 1 SENSOR セン サ OT 110 AA86N05 1 JIG 治具 OT 110.1…

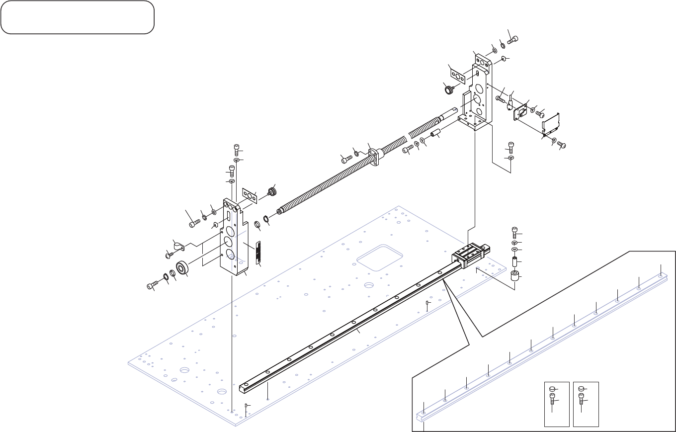
M3 II-SINGLE CONVEYOR 3/6
M3 II-シングルコンベア 3/6
UQ04116
No. Dr
g
.No. & Code No. QTY Descri
p
tion Ratin
g
Materials Remarks
番号 図番 & コード番号 個数 品名
規
格材質 備考
48 PM059T4 2 PLATE, GUIDE
プ
レート ガイド FE
49 PM0FNY0 2 PLATE, CLAMPING
プ
レート クラン
プ
FE
50 K5255A 8 SCREW, HEX SOCKET BUTTON 小ネジ 六角穴ボタン M03X004 FE
51 PM085N3 1 RAIL レール FE
51.1 PM09WD2 1 RAIL レール FE Thin
p
anel o
p
tion
52 H5289A 4 BOLT, HEX SOCKET ボルト 六角穴 M04X012 FE
53 W1011A 4 WASHER, CONICAL ワッシャ 皿 M- 4-L FE
55 PM05AD2 4 PLATE
プ
レート FE
56 H5275A 8 BOLT, HEX SOCKET ボルト 六角穴 M03X008 FE
57 W1021A 8 WASHER, LOCK ワッシャ ス
プ
リン
グ
3M
/
MFE
58 H55037 4 BOLT ボルト PSST4-15 FE Consumable Parts
59 PZ14451 4 SPRING ス
プ
リン
グ
FE
61 PB90253 4 HOOK フック FE
62 H5275A 8 BOLT, HEX SOCKET ボルト 六角穴 M03X008 FE
63 W1021A 8 WASHER, LOCK ワッシャ ス
プ
リン
グ
3M
/
MFE
68 H2014R 2 PIN ピン MSIP6-10 OT
69 PB90502 4 BKT BKT FE
69.1 PS03132 2 SHEET シート OT Consumable Parts
69.2 PS03142 2 SHEET シート OT Consumable Parts
70 H5274A 2 BOLT, HEX SOCKET ボルト 六角穴 M03X006 FE
70.1 H5275A 2 BOLT, HEX SOCKET ボルト 六角穴 M03X008 FE
71 W1021A 4 WASHER, LOCK ワッシャ ス
プ
リン
グ
3M
/
MFE
73 PM97051 4 BLOCK, LOCATING
ブ
ロック 位置決め FE
74 H5275A 8 BOLT, HEX SOCKET ボルト 六角穴 M03X008 FE
75 W1021A 8 WASHER, LOCK ワッシャ ス
プ
リン
グ
3M
/
MFE
76 W1041F 8 WASHER, FLAT ワッシャ 平 ゚3X6 コガタヒラザガネ FE
77 PT01921 1 PLATE, REFERENCE
プ
レート 基準 FE
78 PT01931 1 PLATE, REFERENCE
プ
レート 基準 FE
78.1 K5255T 4 SCREW, HEX SOCKET BUTTON 小ネジ 六角穴ボタン M03X006 FE
78.2 W1021A 4 WASHER, LOCK ワッシャ ス
プ
リン
グ
3M
/
MFE
82 PB90281 1 RETAINER, WIRING 押え 配線 FE
85 AA61R03 1 HOLDER, PIN ホルダ ピン OT
86 AA61N04 1 HOLDER, PIN ホルダ ピン OT
87 H5280A 3 BOLT, HEX SOCKET ボルト 六角穴 M03X020 FE
88 W1010A 3 WASHER, CONICAL ワッシャ 皿 M- 3-L FE
89 PB91002 1 BKT BKT FE
90 H5274A 2 BOLT, HEX SOCKET ボルト 六角穴 M03X006 FE
91 W1021A 2 WASHER, LOCK ワッシャ ス
プ
リン
グ
3M
/
MFE
92 H21924 2 PIN, PARALLEL ピン 平行 ゚2X5 Aシュ SUS OT
93 PX07522 1 SEAL, BAR CODE シール バーコード PL unit serial number
95 PM057F1 1 BKT, SENSOR BKT センサ FE
95.1 PM09WG0 1 BKT, SENSOR BKT センサ FE Thin
p
anel o
p
tion
96 H5288A 2 BOLT, HEX SOCKET ボルト 六角穴 M04X010 FE
97 W1011A 2 WASHER, CONICAL ワッシャ 皿 M- 4-L FE
98 PM057E1 1 BKT, SENSOR BKT センサ FE
99 PB12714 1 WASHER ワッシャ FE
100 XS01247 1 SENSOR, TOUCH センサ タッチ OT
101 K5257H 2 SCREW, HEX SOCKET BUTTON 小ネジ 六角穴ボタン M04X012 FE
102 W1022A 2 WASHER, LOCK ワッシャ ス
プ
リン
グ
4M
/
MFE
103 H5275A 2 BOLT, HEX SOCKET ボルト 六角穴 M03X008 FE
104 W1010A 2 WASHER, CONICAL ワッシャ 皿 M- 3-L FE
240
PTS-NXT2-06JE Vol.2

M3 II-SINGLE CONVEYOR 3/6
M3 II-シングルコンベア 3/6
UQ04116
No. Dr
g
.No. & Code No. QTY Descri
p
tion Ratin
g
Materials Remarks
番号 図番 & コード番号 個数 品名
規
格材質 備考
105 AA7GE04 1 SENSOR センサ OT
110 AA86N05 1 JIG 治具 OT
110.1 AA7TG10 1 JIG 治具 OT Thin
p
anel o
p
tion
111 H5288A 2 BOLT, HEX SOCKET ボルト 六角穴 M04X010 FE
112 W1011A 2 WASHER, CONICAL ワッシャ 皿 M- 4-L FE
115 Y3086W 1 UNION, HALF ユニオン ハーフ KQ2S04-M5 OT
116 AA7SA00 1 TIP チッ
プ
OT Consumable Parts
118 GGAJ0401 1 GAUGE ゲージ AL Consumable Parts
241
PTS-NXT2-06JE Vol.2

AA
AA
AA
BB
AA
AA
AA
AA
BB
AA
AA
BB
BB
:LGWKFKDQJHGULYHD[LV
ᖜ᭰㥑ື㍈
AA
2
21
34
33
29
8
27
30
62
14
9
28
59
63
35
31
73
75
3
6
22
25
10
11
4
5
61
64
23
24
1
74
76
77
78
79
80
81
82
81
82
15.1
4.1
23.1
73.1
12
13
12
13
15
16
17
55
57
56
58
36
37
56
UQ04116
0,,ࢩࣥࢢࣝࢥࣥ࣋
0,,6,1*/(&219(<25
242
PTS-NXT2-06JE Vol.2