PTS-NXT2-06JE.pdf - 第645页
ࡇࡢ࣮࣌ࢪࡣࣈࣛࣥࢡ࣮࣌ࢪ࡛ࡍࠋ This page is intentionally blank. 269 PTS-NXT2-06JE Vol.2

M3 II-DOUBLE CONVEYOR 4/7
M3 II-ダブルコンベア 4/7
UQ04217
No. Dr
g
.No. & Code No. QTY Descri
p
tion Ratin
g
Materials Remarks
番号 図番 & コード番号 個数 品名
規
格材質 備考
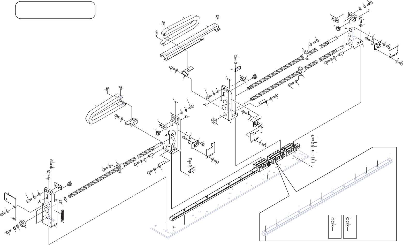
48 PM059T4 2 PLATE, GUIDE
プ
レート ガイド FE
49 PM0FNY0 2 PLATE, CLAMPING
プ
レート クラン
プ
FE
50 K5255A 8 SCREW, HEX SOCKET BUTTON 小ネジ 六角穴ボタン M03X004 FE
51 PM085R3 1 RAIL レール FE
51.1 PM09WF2 1 RAIL レール FE Thin
p
anel o
p
tion
52 H5289A 4 BOLT, HEX SOCKET ボルト 六角穴 M04X012 FE
53 W1011A 4 WASHER, CONICAL ワッシャ 皿 M- 4-L FE
55 PM05AD2 4 PLATE
プ
レート FE
56 H5275A 8 BOLT, HEX SOCKET ボルト 六角穴 M03X008 FE
57 W1021A 8 WASHER, LOCK ワッシャ ス
プ
リン
グ
3M
/
MFE
58 H55037 4 BOLT ボルト PSST4-15 FE Consumable Parts
59 PZ14451 4 SPRING ス
プ
リン
グ
FE
61 PB90253 4 HOOK フック FE
62 H5275A 8 BOLT, HEX SOCKET ボルト 六角穴 M03X008 FE
63 W1021A 8 WASHER, LOCK ワッシャ ス
プ
リン
グ
3M
/
MFE
68 H2014R 2 PIN ピン MSIP6-10 OT
69 PB90502 4 BKT BKT FE
69.1 PS03132 2 SHEET シート OT Consumable Parts
69.2 PS03142 2 SHEET シート OT Consumable Parts
70 H5274A 2 BOLT, HEX SOCKET ボルト 六角穴 M03X006 FE
70.1 H5275A 2 BOLT, HEX SOCKET ボルト 六角穴 M03X008 FE
71 W1021A 4 WASHER, LOCK ワッシャ ス
プ
リン
グ
3M
/
MFE
73 PM97051 4 BLOCK, LOCATING
ブ
ロック 位置決め FE
74 H5275A 8 BOLT, HEX SOCKET ボルト 六角穴 M03X008 FE
75 W1021A 8 WASHER, LOCK ワッシャ ス
プ
リン
グ
3M
/
MFE
76 W1041F 8 WASHER, FLAT ワッシャ 平 ゚3X6 コガタヒラザガネ FE
77 PT01921 1 PLATE, REFERENCE
プ
レート 基準 FE
78 PT01931 1 PLATE, REFERENCE
プ
レート 基準 FE
78.1 K5255T 4 SCREW, HEX SOCKET BUTTON 小ネジ 六角穴ボタン M03X006 FE
78.2 W1021A 4 WASHER, LOCK ワッシャ ス
プ
リン
グ
3M
/
MFE
79 PP02490 1 COVER, WIRING カバー 配線 FE
80 K5255A 2 SCREW, HEX SOCKET BUTTON 小ネジ 六角穴ボタン M03X004 FE
81 W1021A 2 WASHER, LOCK ワッシャ ス
プ
リン
グ
3M
/
MFE
85 AA61R03 1 HOLDER, PIN ホルダ ピン OT
86 AA61N04 1 HOLDER, PIN ホルダ ピン OT
87 H5280A 3 BOLT, HEX SOCKET ボルト 六角穴 M03X020 FE
88 W1010A 3 WASHER, CONICAL ワッシャ 皿 M- 3-L FE
89 PB91002 1 BKT BKT FE
90 H5274A 2 BOLT, HEX SOCKET ボルト 六角穴 M03X006 FE
91 W1021A 2 WASHER, LOCK ワッシャ ス
プ
リン
グ
3M
/
MFE
92 H21924 2 PIN, PARALLEL ピン 平行 ゚2X5 Aシュ SUS OT
93 PX07522 1 SEAL, BAR CODE シール バーコード PL unit serial number
95 PB90281 1 RETAINER, WIRING 押え 配線 FE
268
PTS-NXT2-06JE Vol.2
ࡇࡢ࣮࣌ࢪࡣࣈࣛࣥࢡ࣮࣌ࢪ࡛ࡍࠋ
This page is intentionally blank.
269
PTS-NXT2-06JE Vol.2

AA
AA
AA
BB
AA
AA
AA
AA
BB
AA
AA
BB
BB
:LGWKFKDQJHGULYHD[LV
ᖜ᭰㥑ື㍈
AA
2
21
39
47
96
95
91
8
27
53
45
62
86
87
85
14
38
34
33
9
28
46
54
59
63
97
35
92
73
3
6
22
25
40
43
48
51
99
98
100
10
11
4
5
61
64
29
30
31
41
42
23
24
49
50
1
65
66
67
68
69
70
71
72
72
72
72
71
76
77
78
79
80
81
82
81
82
81
82
81
82
21.1
39.1
83
84
62
63
61
64
85
86
87
15.1
88
89
90
26
44
93
94
4.1
23.1
41.1
49.1
73.1
12
13
12
13
15
16
17
15
16
17
55
57
56
58
18
19
20
36
37
36
37
36
37
56
UQ04217
0,,ࢲࣈࣝࢥࣥ࣋
0,,'28%/(&219(<25
270
PTS-NXT2-06JE Vol.2