PTS-NXT2-06JE.pdf - 第670页
W W A A B B A A A A A A B B A A A A A A B B A A A A A A B B &RQYH\DQFHGULYHD[LV ᦙ㏦㥑ື㍈ V V DETAIL W W DETAIL V V 14 2 21 8 28 73 76 105 9 27 106 59 3 6 22 25 4 5 10 11 24 23 1 60 60 68 69 70 79 80 81 71 72 72 74 75 …

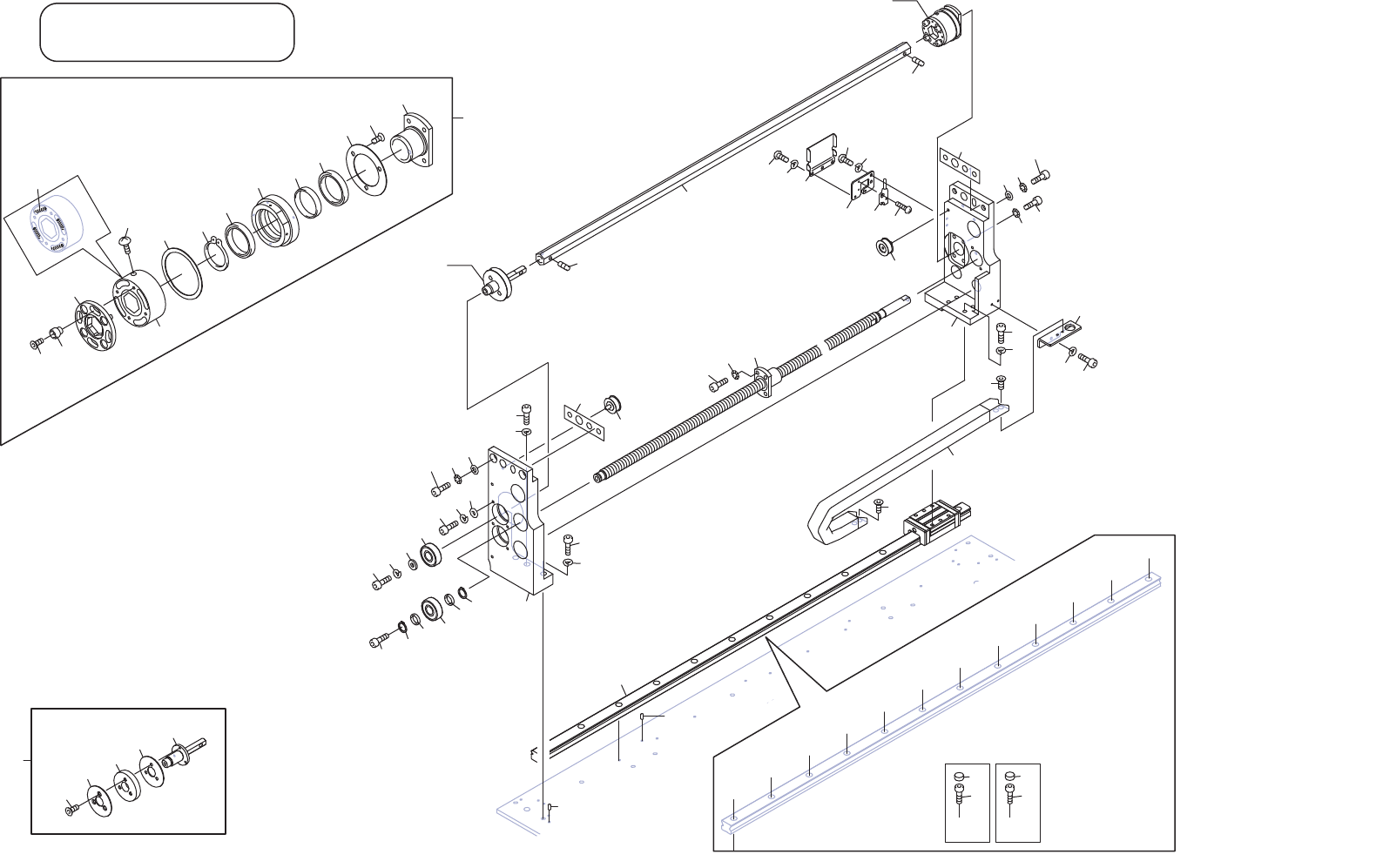
M6 II-SINGLE CONVEYOR 4/6
M6 II-シングルコンベア 4/6
UQ04316
No. Dr
g
.No. & Code No. QTY Descri
p
tion Ratin
g
Materials Remarks
番号 図番 & コード番号 個数 品名
規
格材質 備考
1 H2096H 3 PIN, PARALLEL ピン 平行 ゚3X6 Bシュ(ステンレス) OT
2 PM04XH5 1 BKT BKT FE
3 PJ16813 1 SHEET シート OT Consumable Parts
4 H5298A 2 BOLT, HEX SOCKET ボルト 六角穴 M05X010 FE
4.1 PM015W0 2 BOLT, HEX SOCKET ボルト 六角穴 FE Thin
p
anel o
p
tion
5 W1012A 2 WASHER, CONICAL ワッシャ 皿 M- 5-L FE
6 PJ12922 2 WASHER ワッシャ OT
8 H5324A 2 BOLT, HEX SOCKET ボルト 六角穴 M06X020 FE
9 W1024A 2 WASHER, LOCK ワッシャ ス
プ
リン
グ
6M
/
MFE
10 H54275 1 BOLT, HEX SOCKET ボルト 六角穴 M06X030(3カ シロ) FE
11 W1024A 1 WASHER, LOCK ワッシャ ス
プ
リン
グ
6M
/
MFE
12 S1031A 2 CIR-CLIP サークリッ
プ
STW 10 OT
13 W10049 2 WASHER ワッシャ LRB10-1.0 OT
14 H4202Z 1 BEARING ベアリン
グ
6900ZZ OT
15 XN00223 1 SCREW ネジ OT
16 H60286 2 BOLT, HEX SOCKET ボルト 六角穴 M04×010テイトウ(LH0410) FE
17 W1011A 2 WASHER, CONICAL ワッシャ 皿 M- 4-L FE
21 PM04XL5 1 BKT BKT FE
22 PJ16813 1 SHEET シート OT Consumable Parts
23 H5298A 2 BOLT, HEX SOCKET ボルト 六角穴 M05X010 FE
23.1 PM015W0 2 BOLT, HEX SOCKET ボルト 六角穴 FE Thin
p
anel o
p
tion
24 W1012A 2 WASHER, CONICAL ワッシャ 皿 M- 5-L FE
25 PJ12922 2 WASHER ワッシャ OT
27 H5290A 4 BOLT, HEX SOCKET ボルト 六角穴 M04X015 FE
28 W1022A 4 WASHER, LOCK ワッシャ ス
プ
リン
グ
4M
/
MFE
29 PP03290 1 BKT, SENSOR BKT センサ FE
30 K5255T 2 SCREW, HEX SOCKET BUTTON 小ネジ 六角穴ボタン M03X006 FE
31 W1021A 2 WASHER, LOCK ワッシャ ス
プ
リン
グ
3M
/
MFE
32 PP02501 1 RETAINER, WIRING 押え 配線 FE
34 K5255A 2 SCREW, HEX SOCKET BUTTON 小ネジ 六角穴ボタン M03X004 FE
35 W1021A 2 WASHER, LOCK ワッシャ ス
プ
リン
グ
3M
/
MFE
36 XS03381 1 SENSOR センサ OT
37 K5175T 2 SCREW, C
/
R PAN 小ネジ 十穴鍋 M02X005(0バン1シュ)SUS FE
55 2MGKCA006601 1 GUIDE, RAIL ガイド レール OT
56 K20089 12 CAP キャッ
プ
C04 OT
57 PZ09961 9 BOLT, HEX SOCKET ボルト 六角穴 OT
58 H5426S 3 BOLT, HEX SOCKET ボルト 六角穴 M04X018(3カ シロ) FE
59 H2096H 5 PIN, PARALLEL ピン 平行 ゚3X6 Bシュ(ステンレス) FE
61 PM081R1 1 COLLAR カラー FE
62 H5293A 1 BOLT, HEX SOCKET ボルト 六角穴 M04X025 FE
63 W1022A 1 WASHER, LOCK ワッシャ ス
プ
リン
グ
4M
/
MFE
64 W1040S 1 WASHER, FLAT ワッシャ 平 4M
/
MX0.8X9(1W-4)(3カ クロ) FE
73 PX07741 1 SEAL, BAR CODE シール バーコード OT unit serial number
73.1 PX09930 1 SEAL, BAR CODE シール バーコード OT Thin
p
anel o
p
tion, unit serial number
74 H1137D 2 BAND, TIE バンド 結束 AB-4N(100P) OT
75 K5172L 2 SCREW, C
/
R TRUSS 小ネジ 十穴トラス M04X006(3カ シロ) FE
76 PG04871 1 STOPPER ストッパ PL
77 PM082R0 1 COLLAR カラー FE
78 H5292A 1 BOLT, HEX SOCKET ボルト 六角穴 M04X020 FE
79 W1022A 1 WASHER, LOCK ワッシャ ス
プ
リン
グ
4M
/
MFE
80 W1040S 1 WASHER, FLAT ワッシャ 平 4M
/
MX0.8X9(1W-4)(3カ クロ) FE
293
PTS-NXT2-06JE Vol.2

WW
AA
BB
AA
AA
AA
BB
AA
AA
AA
BB
AA
AA
AA
BB
&RQYH\DQFHGULYHD[LV
ᦙ㏦㥑ື㍈
VV
DETAIL WW
DETAIL VV
14
2
21
8
28
73
76
105
9
27
106
59
3
6
22
25
4
5
10
11
24
23
1
60
60
68
69
70
79
80
81
71
72
72
74
75
75
32
34
35
29
30
31
77
78
96
94
97
103
95
93
99
102
104
99
91
92
98
100
101
84
84
85
86
87
15.1
60.1
60.1
4.1
23.1
12
13
13
12
15
16
17
55
57
56
58
56
36
37
90
83
0,,ࢩࣥࢢࣝࢥࣥ࣋
0,,6,1*/(&219(<25
UQ04316
294
PTS-NXT2-06JE Vol.2

M6 II-SINGLE CONVEYOR 5/6
M6 II-シングルコンベア 5/6
UQ04316
No. Dr
g
.No. & Code No. QTY Descri
p
tion Ratin
g
Materials Remarks
番号 図番 & コード番号 個数 品名
規
格材質 備考
1 H2096H 3 PIN, PARALLEL ピン 平行 ゚3X6 Bシュ(ステンレス) OT
2 PM04XG5 1 BKT BKT FE
3 PJ16803 1 SHEET シート OT Consumable Parts
4 H5298A 2 BOLT, HEX SOCKET ボルト 六角穴 M05X010 FE
4.1 PM015W0 2 BOLT, HEX SOCKET ボルト 六角穴 FE Thin
p
anel o
p
tion
5 W1012A 2 WASHER, CONICAL ワッシャ 皿 M- 5-L FE
6 PJ12922 2 WASHER ワッシャ OT
8 H5324A 2 BOLT, HEX SOCKET ボルト 六角穴 M06X020 FE
9 W1024A 2 WASHER, LOCK ワッシャ ス
プ
リン
グ
6M
/
MFE
10 H54275 1 BOLT, HEX SOCKET ボルト 六角穴 M06X030(3カ シロ) FE
11 W1024A 1 WASHER, LOCK ワッシャ ス
プ
リン
グ
6M
/
MFE
12 S1031A 2 CIR-CLIP サークリッ
プ
STW 10 OT
13 W10049 2 WASHER ワッシャ LRB10-1.0 OT
14 H4202Z 1 BEARING ベアリン
グ
6900ZZ OT
15 XN00223 1 SCREW ネジ OT
15.1 H52966 1 BOLT, HEX SOCKET ボルト 六角穴 M05X006 FE
16 H60286 2 BOLT, HEX SOCKET ボルト 六角穴 M04×010テイトウ(LH0410) FE
17 W1011A 2 WASHER, CONICAL ワッシャ 皿 M- 4-L FE
21 PM04XK5 1 BKT BKT FE
22 PJ16803 1 SHEET シート OT Consumable Parts
23 H5298A 2 BOLT, HEX SOCKET ボルト 六角穴 M05X010 FE
23.1 PM015W0 2 BOLT, HEX SOCKET ボルト 六角穴 FE Thin
p
anel o
p
tion
24 W1012A 2 WASHER, CONICAL ワッシャ 皿 M- 5-L FE
25 PJ12922 2 WASHER ワッシャ OT
27 H5290A 4 BOLT, HEX SOCKET ボルト 六角穴 M04X015 FE
28 W1022A 4 WASHER, LOCK ワッシャ ス
プ
リン
グ
4M
/
MFE
29 PP03290 1 BKT, SENSOR BKT センサ FE
30 K5255T 2 SCREW, HEX SOCKET BUTTON 小ネジ 六角穴ボタン M03X006 FE
31 W1021A 2 WASHER, LOCK ワッシャ ス
プ
リン
グ
3M
/
MFE
32 PP02501 1 RETAINER, WIRING 押え 配線 FE
34 K5255A 2 SCREW, HEX SOCKET BUTTON 小ネジ 六角穴ボタン M03X004 FE
35 W1021A 2 WASHER, LOCK ワッシャ ス
プ
リン
グ
3M
/
MFE
36 XS03381 1 SENSOR センサ OT
37 K5175T 2 SCREW, C
/
R PAN 小ネジ 十穴鍋 M02X005(0バン1シュ)SUS FE
55 2MGKCA006601 1 GUIDE, RAIL ガイド レール OT
56 K20089 12 CAP キャッ
プ
C04 OT
57 PZ09961 9 BOLT, HEX SOCKET ボルト 六角穴 OT
58 H5426S 3 BOLT, HEX SOCKET ボルト 六角穴 M04X018(3カ シロ) FE
59 H2096H 5 PIN, PARALLEL ピン 平行 ゚3X6 Bシュ(ステンレス) FE
60 AA9EZ00 2 PULLEY
プ
ーリ OT
60.1 AB07600 2 PULLEY
プ
ーリ OT Thin
p
anel o
p
tion
68 PB91062 1 BKT BKT FE
69 H5274A 2 BOLT, HEX SOCKET ボルト 六角穴 M03X006 FE
70 W1021A 2 WASHER, LOCK ワッシャ ス
プ
リン
グ
3M
/
MFE
71 K41622 1 FLEXIBLE TRACK ケー
ブ
ルベア 07.10-018-0-19-060.10.12 OT
72 K5357M 4 SCREW, HEX SOCKET COUNTERSUNK 小ネジ 六角穴皿 M03X006 FE
73 H4175A 1 BEARING ベアリン
グ
6000ZZ OT
74 PM06368 1 SHAFT シャフト FE
75 N40930 4 SCREW, HEX SOCKET SET ネジ 六角穴止め スプリングボルト M4X4 ヒラサキ SUS FE
76 PM0KYN0 1 WASHER ワッシャ FE
77 H5299A 1 BOLT, HEX SOCKET ボルト 六角穴 M05X012 FE
295
PTS-NXT2-06JE Vol.2