PTS-NXT2-06JE - 第694页
A A A A A A B B A A A A A A A A B B A A A A B B B B :LGWKFKDQJHGULYHD[LV ᖜ᭰㥑ື㍈ A A 2 21 39 47 8 27 53 45 62 62 63 14 38 9 28 46 54 59 63 73 3 6 22 25 40 43 48 51 10 11 4 5 61 64 61 64 41 42 23 24 49 50 1 65 66 67 68 6…
ࡇࡢ࣮࣌ࢪࡣࣈࣛࣥࢡ࣮࣌ࢪ࡛ࡍࠋ
This page is intentionally blank.
317
PTS-NXT2-06JE Vol.2

AA
AA
AA
BB
AA
AA
AA
AA
BB
AA
AA
BB
BB
:LGWKFKDQJHGULYHD[LV
ᖜ᭰㥑ື㍈
AA
2
21
39
47
8
27
53
45
62
62
63
14
38
9
28
46
54
59
63
73
3
6
22
25
40
43
48
51
10
11
4
5
61
64
61
64
41
42
23
24
49
50
1
65
66
67
68
69
70
71
72
72
72
72
71
76
77
78
79
80
86
87
85
85
86
87
21.1
39.1
88
89
90
96
95
91
97
92
99
98
100
93
94
34
33
35
29
30
31
4.1
23.1
41.1
49.1
73.1
12
13
12
13
15
16
17
55
57
56
58
18
19
20
56
36
37
36
37
36
37
15
16
17
0,,ࢲࣈࣝࢥࣥ࣋
0,,'28%/(&219(<25
UQ04417
318
PTS-NXT2-06JE Vol.2

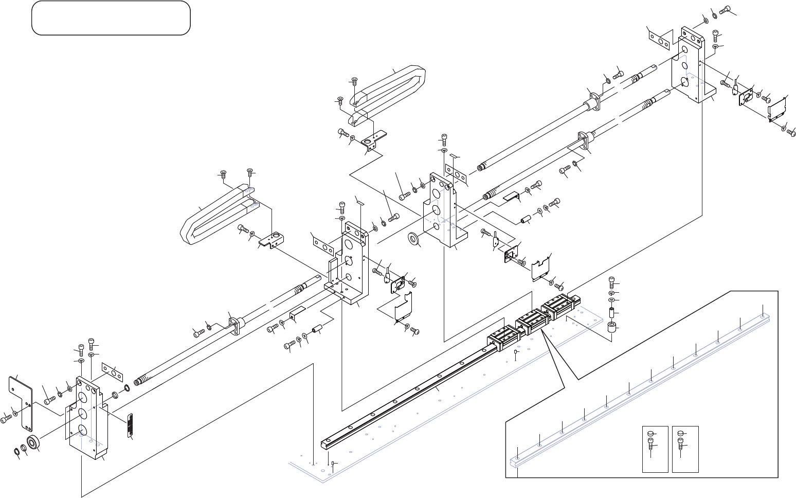
M6 II-DOUBLE CONVEYOR 5/7
M6 II-ダブルコンベア 5/7
UQ04417
No. Dr
g
.No. & Code No. QTY Descri
p
tion Ratin
g
Materials Remarks
番号 図番 & コード番号 個数 品名
規
格材質 備考
1 H2096H 3 PIN, PARALLEL ピン 平行 ゚3X6 Bシュ(ステンレス) OT
2 PM04XH5 1 BKT BKT FE
3 PJ16813 1 SHEET シート OT Consumable Parts
4 H5298A 2 BOLT, HEX SOCKET ボルト 六角穴 M05X010 FE
4.1 PM015W0 2 BOLT, HEX SOCKET ボルト 六角穴 FE Thin
p
anel o
p
tion
5 W1012A 2 WASHER, CONICAL ワッシャ 皿 M- 5-L FE
6 PJ12922 2 WASHER ワッシャ OT
8 H5324A 2 BOLT, HEX SOCKET ボルト 六角穴 M06X020 FE
9 W1024A 2 WASHER, LOCK ワッシャ ス
プ
リン
グ
6M
/
MFE
10 H54275 1 BOLT, HEX SOCKET ボルト 六角穴 M06X030(3カ シロ) FE
11 W1024A 1 WASHER, LOCK ワッシャ ス
プ
リン
グ
6M
/
MFE
12 S1031A 6 CIR-CLIP サークリッ
プ
STW 10 OT
13 W10049 6 WASHER ワッシャ LRB10-1.0 OT
14 H4202Z 3 BEARING ベアリン
グ
6900ZZ OT
15 XN00223 2 SCREW ネジ OT
16 H60286 4 BOLT, HEX SOCKET ボルト 六角穴 M04×010テイトウ(LH0410) FE
17 W1011A 4 WASHER, CONICAL ワッシャ 皿 M- 4-L FE
18 XN00233 1 SCREW ネジ OT
19 H60286 2 BOLT, HEX SOCKET ボルト 六角穴 M04×010テイトウ(LH0410) FE
20 W1011A 2 WASHER, CONICAL ワッシャ 皿 M- 4-L FE
21 PM04XL5 1 BKT BKT FE
21.1 PS03990 1 SHEET シート OT Consumable Parts
22 PJ16813 1 SHEET シート OT Consumable Parts
23 H5298A 2 BOLT, HEX SOCKET ボルト 六角穴 M05X010 FE
23.1 PM015W0 2 BOLT, HEX SOCKET ボルト 六角穴 FE Thin
p
anel o
p
tion
24 W1012A 2 WASHER, CONICAL ワッシャ 皿 M- 5-L FE
25 PJ12922 2 WASHER ワッシャ OT
27 H5290A 4 BOLT, HEX SOCKET ボルト 六角穴 M04X015 FE
28 W1022A 4 WASHER, LOCK ワッシャ ス
プ
リン
グ
4M
/
MFE
29 PP03290 1 BKT, SENSOR BKT センサ FE
30 K5255T 2 SCREW, HEX SOCKET BUTTON 小ネジ 六角穴ボタン M03X006 FE
31 W1021A 2 WASHER, LOCK ワッシャ ス
プ
リン
グ
3M
/
MFE
33 PP02501 1 RETAINER, WIRING 押え 配線 FE
34 K5255A 2 SCREW, HEX SOCKET BUTTON 小ネジ 六角穴ボタン M03X004 FE
35 W1021A 2 WASHER, LOCK ワッシャ ス
プ
リン
グ
3M
/
MFE
36 XS03381 3 SENSOR センサ OT
37 K5175T 6 SCREW, C
/
R PAN 小ネジ 十穴鍋 M02X005(0バン1シュ)SUS FE
38 PG00075 1 STOPPER ストッパ OT
39 PM04XN5 1 BKT BKT FE
39.1 PS03990 1 SHEET シート OT Consumable Parts
40 PJ16813 1 SHEET シート OT Consumable Parts
41 H5298A 2 BOLT, HEX SOCKET ボルト 六角穴 M05X010 FE
41.1 PM015W0 2 BOLT, HEX SOCKET ボルト 六角穴 FE Thin
p
anel o
p
tion
42 W1012A 2 WASHER, CONICAL ワッシャ 皿 M- 5-L FE
43 PJ12922 2 WASHER ワッシャ OT
45 H5290A 4 BOLT, HEX SOCKET ボルト 六角穴 M04X015 FE
46 W1022A 4 WASHER, LOCK ワッシャ ス
プ
リン
グ
4M
/
MFE
47 PM04XS3 1 BKT BKT FE
48 PJ16813 1 SHEET シート OT Consumable Parts
49 H5298A 2 BOLT, HEX SOCKET ボルト 六角穴 M05X010 FE
49.1 PM015W0 2 BOLT, HEX SOCKET ボルト 六角穴 FE Thin
p
anel o
p
tion
319
PTS-NXT2-06JE Vol.2