AQ-2 spec book LR - 第43页
T echnical specifica tions 41 of 44 PA 2382/ 10 F eeder T rolley PA 2 6 75/00 Tra y Tr o l l e y PA 2 6 7 4 /1 0 Tra y Ca rr ier PA 2635/ 10 F eeder Bank PA 2 6 7 3 / 0 0 Tro l l e y Inter face Auxiliary Feeder: Par tner…

40 of 44
PA 2636/00
AQ-2 Feeder Bank
Auxiliary Feeder:
Partner Products
See Feeder Product Folder
PA 2654/0x-6x
Intelligent Tape Feeder
8-56mm
PA 2601/01
ITF-2 Tape Loading Unit
PA 2602/01
Feeder Storage Cart
PA 2632/05
A-Series Feeder Trolley
PA 2681/00
AQ-2 Tray Trolley
PA 2674/10
Tray Carrier
PA 2837/10
First Level Spare Pars Kit
PA 2832/00
Verification Set
PA 2831/00
Setup Tooling
AQ-2
Manual Tray Feeder
PA 2673/10
A-Series Trolley Interface
A
PA 2833/10
AQ BTCO Key
PA 2280/06
PPS 8.1
PA 3430/11
Language Options French
PA 3430/12
Language Options Spanish
PA 3430/13
Language Options German
PA 3430/14
Language Options
Dutch
PA 3430/15
Language Options
Portuguese
PA 3430/16
Language Options
Italian
PA 3430/17
Language Options
Greek
PA 3430/18
Language Options
Swedish
PA 3430/19
Language Options
Finnish
PA 3430/20
Language Options
Danish
PA 3430/21
Language Options
Hungarian
PA 3430/10
Documentation English
End
PA 2833/20
AQ Multilanguage Key
PA 2284/02
A-Series optimizer Balancer 1.1
PA 2090/68 for APR/EUR
PA 2090/70 for USA
SVS Pro 3.0
PA 2833/30
AQ SECS/GEM Key
PA 2833/40
AQ Mis Key
Figure 32
min. 1 per Site

Technical specifications
41 of 44
PA 2382/10
Feeder Trolley
PA 2675/00
Tray Trolley
PA 2674/10
Tray Carrier
PA 2635/10
Feeder Bank
PA 2673/00
Trolley Interface
Auxiliary Feeder:
Partner Products
See Feeder Product Folder
PA 2654/0x-6x
Intelligent Tape Feeder
8-56mm
PA 2601/01
ITF-2 Tape Loading Unit
PA 2602/01
Feeder Storage Cart
PA 2676/00
Manual Tray Feeder
PA 2835/00
Sector Safety Cover

The set-up tooling set is a set of tools, which is required for first time installation of the
AQ-2, when the machine is moved to another location, or for periodic maintenance.
6.0 Installation
requirements
Table 32
Figure 33
6.1 Installation
tooling
Installation requirements
42 of 44
Specifications
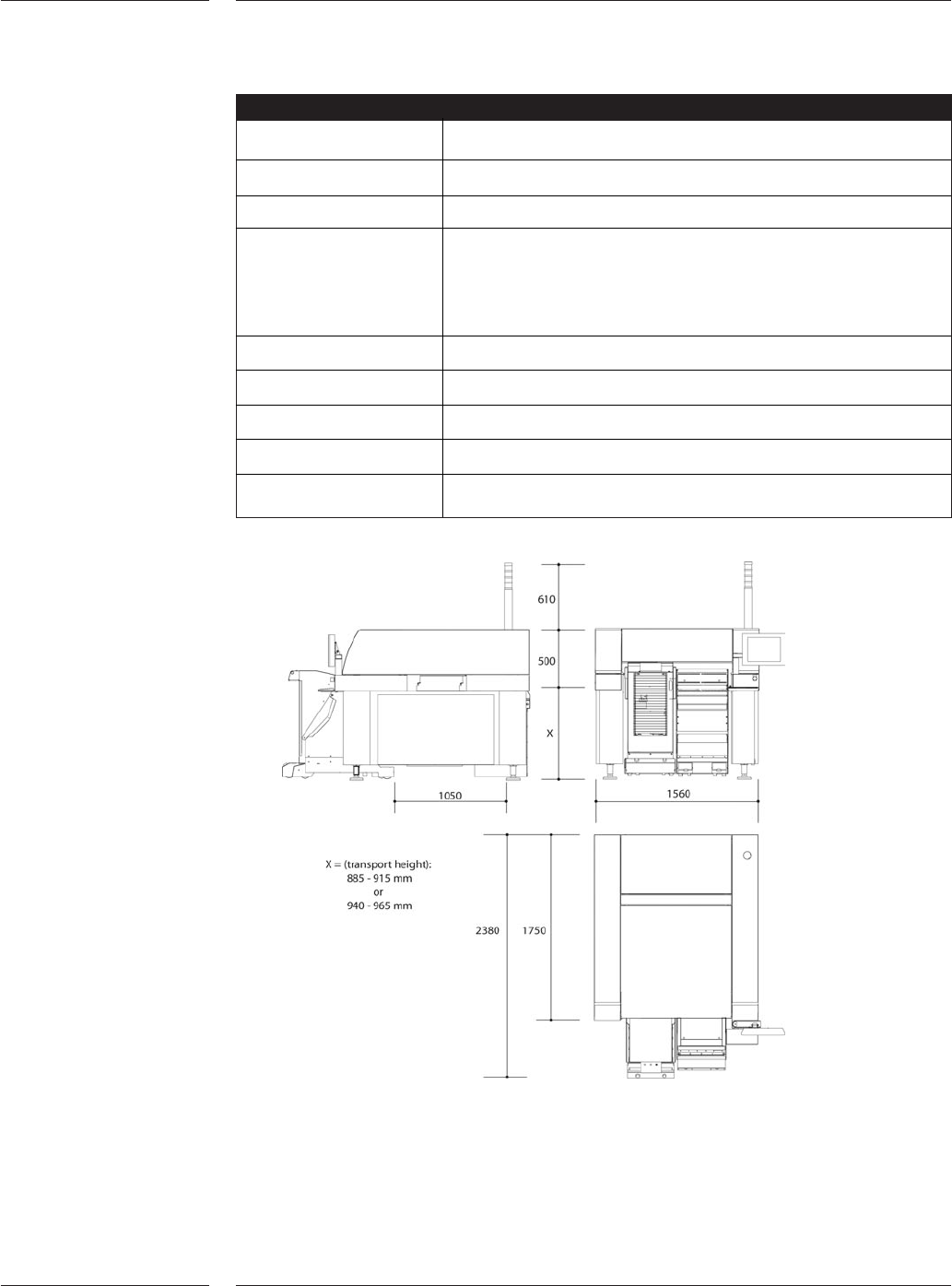
Power supply 190-480 Volt 3-phase, 47-63 Hz, 5 kVA
Air supply > 6 bar, 190 Nl/min
Dimensions 1560 x 1750 x 1850mm (L x W x H) (excl. trolleys)
Transport height Japanese height (885-915 mm) or SMEMA (940-965 mm)
(When adjusted to Japanese height special trolleys are
required, please contact an application engineer for details)
Weight < 1750 kg (excl. trolleys)
Ambient temperature 15-35ºC within specification range)
Humidity 20-90%, no dew
Noise < 72 dB(A) at 1 m distance
Floor flatness < 1%