JX-200-Rev00 - 第44页
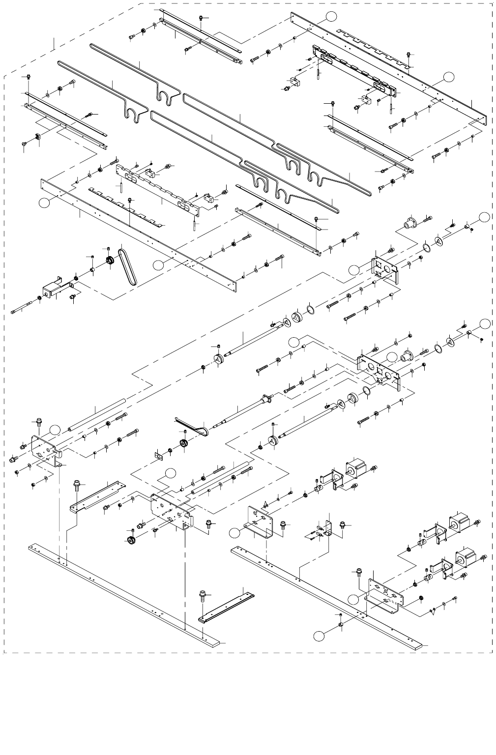
- 41 - 21. PWB CONVEYOR COMPONENTS (1) 基板搬送関係(1) 9 10 10 10 10 11 11 11 11 12 12 12 13 14 14 15 15 15 15 16 16 16 16 18 17 19 20 20 17 18 20 20 18 18 21 17 17 21 22 18 17 17 18 23 23 25 24 27 A A 29 30 32 28 33 34 B B C …

- 40 -
NOTE( 注記 ) #01....FOR LIGHTING UNIT FOR SOLDER はんだ認識照明用
RECOGNITION
REF.NO NOTE PART NO D E S C R I P T I O N
品 名
Qty
1 400-46819 OCC_ASSY
OCC 組
4
2 400-46815 OCC_LENS_ASSY
OCC レンズ組
(1)
3 400-47573 CAMERA LENS ASSY
カメラ レンズ組
(1)
4 SM-6020402-TN BOLT M2 L=4
六角穴ボルト M 2 L =4
(2)
5 400-46805 CCD_BRACKET
CCD ブラケット
(1)
6 400-46839 OCC_LENS_BRACKET
OCC レンズブラケット
(1)
7 PH-0400062-C0 PIN
平行ピン 丸4 L =6
(2)
8 SL-6052092-TN SCREW
座金付き六角穴ボルト
(2)
9 SL-6041292-TN SCREW
座金付き六角穴ボルト
(2)
10 SM-6030602-TN HEX SCREW M3 X 6
六角穴ボルト M3X0.5 L =6
(2)
11 400-46816 OCC_LIGHT_ASSY
OCC ライト組
(1)
12 SL-6030892-TN SCREW
座金付き六角穴ボルト
(4)
13 E1143-721-000 WOOLEN CLOTH PAPER
搬送カバー ラシャペーパ(CE)
(1)
14 400-15962 OCC LABEL
OCC ラベル
(1)
15 400-46844 OCC_LIGHT_SUPPORT
OCC ライトサポート
(1)
16 SL-6030892-TN SCREW
座金付き六角穴ボルト
(2)
17 SL-6040892-TN BOLT
座金付き六角穴ボルト
(2)
18 HX-0034400-00 HARNESS PARTS
束線パーツ
(1)
19 EA-9500B01-00 CABLE BAND
束線バンド
(1)
20 400-46843 OCC_LIGHT_BRACKET
OCC ライトブラケット
(1)
21 400-13949 LIGHT FILTER U SUPPORT
ライトフィルタ U サポート
(1)
22 E1038-871-000 PLATEN LOCK CAM SCREW
プラテン ロックカム スクリュウ
(2)
23 400-15847 OCC COLLAR
OCC カラー
(1)
24 SL-6030892-TN SCREW
座金付き六角穴ボルト
(1)
25 SM-1020301-SN SCREW
皿ねじ M 2 L =3
(4)
26 400-43896 LENS FILTER
レンズフィルター
(1)
27 400-13948 GUIDE PLATE
ガイドプレート
(1)
28 400-13944 ROTARY BASE
ロータリーベース
(1)
29 SM-1030501-SC SCREW M3 L=5
皿小ねじ M 3 L =5
(3)
30 400-47512 OCC C LIGHT PCB ASM
OCC C LIGHT 基板組
(1)
31 SL-4030691-SC SCREW M3X6
なべ小ねじセムス M 3 X 0.5 L =6
(2)
32 400-44028 MIRROR BOX
ミラーボックス
(1)
33 SL-6030692-TN BOLT
座金付き六角穴ボルト
(3)
34 118-04606 RUBBER PLUG
布台防振ゴム
(10)
35 400-43895 LIGHT DIFFUSER
ライトディフューザ
(1)
36 400-14037 BEAM SPRITTER
ビームスプリッタ
(1)
37 400-13943 PRISM COVER
プリズムカバー
(1)
38 SL-6030692-TN BOLT
座金付き六角穴ボルト
(3)
39 400-01225 HOLD RUBBER
ホールドラバー
(1)
40 400-14042 PRISM
プリズム
(1)
41 400-47508 OCC A LIGHT PCB ASM
OCC A LIGHT 基板組
(1)
42 400-14043 PRISM BASE
プリズムベース
(1)
43
#01
400-47508 OCC A LIGHT PCB ASM
OCC A LIGHT 基板組
1
44
#01
HX-0035400-0D BASE PARTS
基板パーツ
4
45
#01
400-14043 PRISM BASE
プリズムベース
1
46
#01
HX-0033500-0G SPACER
スペーサ
4
47
#01
400-32433 LOW HEAD SCREW M3_10
低頭六角穴付きボルト
4

- 41 -
21.PWB CONVEYOR COMPONENTS (1)
基板搬送関係(1)
9
10
10
10
10
11
11
11
11
12
12
12
13
14
14
15
15
15
15
16
16
16
16
18
17
19
20
20
17
18
20
20
18
18
21
17
17
21
22
18
17
17
18
23
23
25
24
27
A
A
29
30
32
28
33
34
B
B
C
C
D
D
35
45
47
49
50
52
51
48
53
59
26
75
75
78
77
4
8
8
7
20
18
17
4
80
1
19
17
18
80
8
4
4
8
7
12
19
17
18
6
19
17
18
9
69
21
21
88
88
13
24
25
25
24
23
18
17
22
22
17
18
23
21
20
17
18
17
18
20
21
5
17
18
23
20
25
24
22
17
18
23
17
22
18
23
17
22
18
23
22
17
18
23
45
25
24
41
42
41
42
58
57
25
24
63
62
61
54
55
53
52
51
60
51
52
53
55
52
47
53
48
67
64
66
68
65
60
67
64
66
68
65
64
60
67
66
68
78
91
94
93
94
96
95
92
83
84
38
40
39
71
73
72
79
82
86
87
89
90
76
97
40
38
43
70
70
2
2
36
36
E
E
F
F
44
60
54
51
50
46
46
56
31
49
60
37
81
44
77
3
G
G
74
85

- 42 -
REF.NO NOTE PART NO D E S C R I P T I O N
品 名
Qty
1 401-08109 CONVEYOR ASSY
搬送組
1
2 401-07792 CONVEYOR_BELT_L
コンベアベルト L
(2)
3 401-07776 CONVEYOR_RAIL_FL
コンベアレール FL
(1)
4 SL-6031692-TN SCREW
座金付き六角穴ボルト
(12)
5 401-07777 CONVEYOR_RAIL_FR
コンベアレール FR
(1)
6 401-07778 CONVEYOR_RAIL_RL
コンベアレール RL
(1)
7 401-07780 PWB_GUIDE_L
PWB ガイド L
(2)
8 SL-6030892-TN SCREW
座金付き六角穴ボルト
(14)
9 401-07782 CONVEYOR_RAIL
コンベアレール
(2)
10 E4105-729-0A0 SHAFT SUPPORT B ASM.
シャフトサポート組
(4)
11 SM-8030402-TP SCREW M3X0.5 L=4
止めねじ
(4)
12 SL-6040892-TN BOLT
座金付き六角穴ボルト
(8)
13 400-95014 PWB_GUIDE_PLATE_L
PWB ガイドプレート L
(2)
14 SL-6030892-TN SCREW
座金付き六角穴ボルト
(16)
15 400-78496 RAIL GUIDE SH
レールガイド SH
(4)
16 SM-8040602-TP SCREW M4X0.7 L=6
止めねじ
(4)
17 E2111-715-0A0 CONVEYOR PULLEY ASM.
搬送プ−リ(組)
(42)
18 WP-0430800-SC WASHER M4
平座金小形丸 M 4
(48)
19 SM-6040802-TN SCREW
六角穴ボルト M 4 X 0.7 L =8
(16)
20 400-78497 COLLAR A
カラー A
(8)
21 SM-6041602-TN SCREW M4 X 16
六角穴ボルト M 4 X 0.7 L =16
(8)
22 400-78498 COLLAR B
カラー B
(18)
23 SM-6042502-TN SCREW M4X0.7 L=25
六角穴ボルト M 4 X 0.7 L =25
(18)
24 WP-0430800-SC WASHER M4
平座金小形丸 M 4
(6)
25 NM-6040001-SC NUT M4
六角ナツト M 4
(6)
26 401-07783 GUIDE_SH_BR_FL
ガイドシャフト BR FL
(1)
27 SL-6041092-TN SCREW
座金付き六角穴ボルト
(2)
28 SL-6051492-TN BOLT
座金付き六角穴ボルト
(2)
29 401-07784 GUIDE_SH_BR_RL
ガイドシャフト BR RL
(1)
30 SL-6041092-TN SCREW
座金付き六角穴ボルト
(2)
31 401-07785 GUIDE_SH_BR_FR
ガイドシャフト BR FR
(1)
32 SL-6041092-TN SCREW
座金付き六角穴ボルト
(3)
33 SL-6051492-TN BOLT
座金付き六角穴ボルト
(2)
34 401-07786 GUIDE_SH_BR_RR
ガイドシャフト BR RR
(1)
35 SL-6041092-TN SCREW
座金付き六角穴ボルト
(3)
36 401-07793 CONVEYOR_BELT_R
コンベアベルト R
(2)
37 401-07794 WA_SCREW_SHAFT
WA スクリュウシャフト
(2)
38 401-07795 WA_PULLEY
WA プーリ
(1)
39 401-07796 WA_BELT
WA ベルト
(3)
40 SM-8040602-TP SCREW M4X0.7 L=6
止めねじ M 4 X 0.7 L =6
(6)
41 SB-8160001-00 BEARING
ころがり軸受
(2)
42 SM-6040802-TN SCREW
六角穴ボルト M 4 X 0.7 L =8
(8)
43 401-07806 WA_DRIVE_BELT
WA ドライブベルト
(1)
44 SB-1080002-00 SIDE BEARING
サイドベアリング
(4)
45 400-78507 GUIDE SH
ガイド SH
(2)
46 SL-6051492-TN BOLT
座金付き六角穴ボルト
(2)
47 400-78508 DRIVE SH
ドライブ SH
(3)
48 400-00850 DRIVE PULLEY F
ドライブプーリ F
(3)
49 SM-8040602-TP SCREW M4X0.7 L=6
止めねじ
(6)
50 400-78509 DRIVE PULLEY R
ドライブプーリ R
(3)
51 E2160-721-000 PULLEY FLANGE
プーリフランジ
(6)
52 E3931-750-000 PULLEY WASHER
プーリ スラスト ワッシャ
(6)
53 SL-6030892-TN SCREW
座金付き六角穴ボルト
(18)
54 E2141-721-000 STOPPER COLLAR
ストッパカラー
(3)
55 SM-8040402-TP SCREW M4X0.7 L=4
止めねじ M 4 X 0.7 L =4
(6)
56 401-07787 GUIDE_SH_STAND_L
ガイド SH スタンド L
(1)
57 SL-6051492-TN BOLT
座金付き六角穴ボルト
(2)
58 401-07788 GUIDE_SH_STAND_R
ガイド SH スタンド R
(1)
59 SL-6051492-TN BOLT
座金付き六角穴ボルト
(2)
60 SB-1080002-00 SIDE BEARING
サイドベアリング
(6)
61 SM-6030602-TN HEX SCREW M3 X 6
六角穴ボルト M 3 X 0.5 L =6
(6)
62 WP-0320500-SF WASHER 3.2X7X0.5
平座金小形丸 M 3
(12)
63 WP-0330516-SC WASHER 3.3X8X0.5
平座金 3.3X8X0.5
(6)
64 400-78512 MOTOR BR
モータ BR
(3)
65 SL-6041092-TN SCREW
座金付き六角穴ボルト
(12)
66 400-48074 CENTER MOTOR ASM
センタモータ組
(3)
67 SL-6041042-TN BOLT
座金付き六角穴ボルト
(12)
68 400-78513 COUPLING
カップリング
(3)
69 401-07779 CONVEYOR_RAIL_RR
コンベアレール RR
(1)
70 401-07791 CONVEYOR_BELT_C
コンベアベルト C
(2)
71 SM-6030602-TN SCREW M3X6
六角穴ボルト M3X6
(4)
72 WP-0320500-SC WASHER M3
平座金小形丸 M 3
(8)
73 WP-0330516-SC WASHER 3.3X8X0.5
平座金 3.3X8X0.5
(4)
74 E2141-721-000 STOPPER COLLAR
ストッパカラー
(2)
75 401-07789 CONVEYOR_BASE
コンベアベース
(2)
76 SM-8040602-TP SCREW M4X0.7 L=6
止めねじ
(2)
77 401-07790 CONVEYOR_BASE_BR
コンベアベースブラケット
(2)
78 SL-6051092-TN BOLT
座金付き六角穴ボルト
(4)
79 SM-8040402-TP SCREW M4X0.7 L=4
止めねじ M 4 X 0.7 L =4
(4)
80 401-07781 PWB_GUIDE_R
PWB ガイド R
(2)
81 E2012-721-000 ADJUST PLATE
アジャストプレート
(2)
82 SL-6030892-TN SCREW M3 L=8
座金付き六角穴ボルト M 3 L =8
(4)
83 HX-0029400-00 FIXED BASE
固定ベース
(2)
84 SM-4040601-SC SCREW M4X0.7 L=6
なべ小ねじ M 4 X 0.7 L =6
(2)
85 401-07809 BU_SENSOR_BR
BU センサブラケット
(1)
86 SL-6051092-TN BOLT
座金付き六角穴ボルト
(2)
87 400-76894 SUPPORT TABLE UP SENSOR ASM
サポートテーブルアップセンサ組
(1)
88 401-07775 RAIL_GUIDE_PLATE
レールガイドプレート
(2)
89 400-76896 SUPPORT TABLE DOWN SENSOR ASM
サポートテーブルダウンセンサ組
(1)
90 SM-6850802-TN SCREW M2.5 L=8
六角穴ボルト M 2.5 L =8
(2)
91 401-07804 HANDLE_BRACKET
ハンドルブラケット
(1)
92 SL-6040892-TN BOLT
座金付き六角穴ボルト
(2)
93 401-07805 HANDLE_SHAFT
ハンドルシャフト
(1)
94 SB-1080002-00 SIDE BEARING
サイドベアリング
(2)
95 E2141-721-000 STOPPER COLLAR
ストッパカラー
(1)
96 SM-8040402-TP SCREW M4X0.7 L=4
止めねじ M 4 X 0.7 L =4
(2)
97 401-07795 WA_PULLEY
WA プーリ
(1)