5M-1750-004w_G5S.pdf - 第170页

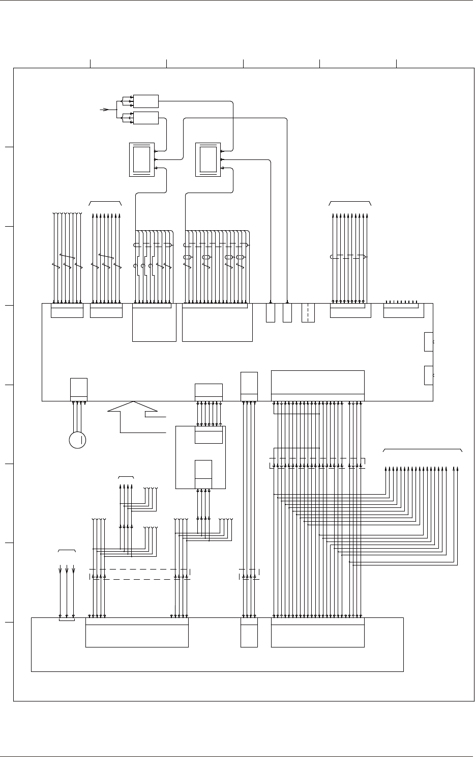
4-47 5OM-1750 1303-001-(31010WR--1002) CPU1 U92 接続回路 1 +5V 2 3 4 5 6 GND 7 11 9 12 8 10 13 PIO 2 14 15 16 17 18 19 GND FG PIO 3 PIO 4 PIO 5 PIO 6 PIO 7 PIO 1 PIO 0 2 +12V 1 3 4 5 6 7 12 8 11 9,10 VD- GND VIDEO- VIDEO+ HD…

100%1 / 188
4-46
5OM-1750
1303-001-(31010WR---1001)
CPU1 U91 接続回路
M
L121
L221
XG2101
G21
1
2
3
5
6
7
4
8
+TD
-TD
+RD
-RD
N.C
+RD
+RD
+RD
LAN1
1
2
3
5
6
7
4
8
+TD
-TD
+RD
-RD
N.C
+RD
+RD
+RD
1
6
2
3
8
5
7
13
RED
R-GND
GREEN
B-GND
G-GREEN
BLUE
GND
H-SYNC
10
14
FG
SYNC-GND
V-SYNC
LAN2
X9107
X9108
X9104
USB0
USB
USB
COM
COM
+12VDC
+12VDC
Power Supply Unit
1,2,3,4
6,7,8,9,10
USB3
AC Inlet
X9105
1
2
3
4
5
6
7
8
+3.3VDC
GND
+5VDC
PSU_PWR OK
+3.3VDC
GND
GND
+5VDC
6
7
8
+3.3VDC
+5VDC
COM
+3.3VDC
COM
+12VDC
+5VDC
COM
9
10
COM
+12VDC
2
1
6
5
GND
GND
+EXT12VDC
+EXT12VDC
1
2
3
4
1
2
3
5
4
USB1
USB11
X9106
ATX-12V
ATX-M
P6
1
2
ATX-5J
7
8
9
10
2
3
5
4
ATX-12VJ
2
1
5
6
CPU1
1
2
3
4
5
6
7
8
9
10
11
12
13
14
15
16
17
18
19
20
21
22
23
24
1
2
3
4
5
6
7
8
9
10
11
12
13
14
15
16
17
18
19
21
22
23
24
+3.3VDC
GND
+5VDC
PSU_PWR OK
+5V SB
+3.3VDC
GND
GND
+5VDC
+12VDC
+12VDC
+3.3VDC
+3.3VDC
-12VDC
PS-ON
GND
GND
GND
GND
+5VDC
+5VDC
+5VDC
GND
RESERVED
MAIN2
HD-1
12V-1
X:CPU1 LINE LAN1
X7403F
1
2
3
7
9
10
6
11
DVI
14
15
16
17
18
19
23
24
22
FG
X7403B
TMDS Data 2-
TMDS Data 2+
TMDS Data 2/4 shield
TMDS Data 1-
DDC clock
DDC data
TMDS Data 1+
TMDS Data 1/3 shield
+5V
GND
Hot Plug Detect
TMDS data 0-
TMDS data 0+
TMDS clock-
TMDS data 0/5 shield
TMDS clock+
TMDS clock shield
X9109
VGA
9
10
11
12
13
14
15
16
17
18
19
20
21
22
23
24
+5V SB
+12VDC
+12VDC
+3.3VDC
+3.3VDC
-12VDC
PS-ON
GND
GND
GND
GND
+5VDC
+5VDC
+5VDC
GND
RESERVED
3
4
GND
+12V
FAN_IN
FAN_OUT
[F-/01/1B]
to U180
[B-/01/6E]
from K28
U91
CPU
CPU1BOX—â‹pFAN
[F-/01/7A]
to U81-LAN
N74F
N74B
1
2
3
5
6
7
4
8
CD
RXD
TXD
DSR
DTR
GND
RTS
CTS
COM1
9
FG
RI
X9102
1
2
3
5
6
7
4
8
CD
RXD
TXD
DSR
DTR
GND
RTS
CTS
COM2
9
FG
RI
X9103
[R-/03/7C]
to U95-CN2
RS232C
USB10
USB2
X9133
X9134
X9128
12V
MAIN
HD
ATX-5
X7401F
X7401B
+12V DC
GND
GND
+5VDC
8,9
5,6
11,12
14,15
1
2
3
5
6
7
4
GND
RXP
RXN
TXP
GND
TXN
GND
1
2
3
5
6
7
4
GND
TXN
TXP
RXP
GND
RXN
GND
D89 SSD
CN18
X9118X8901 X8902
4
3
2
1
4
3
2
1
CN28
CN34
CN33
E
[B-/01/6E]
from K28
Inlet Inlet
L121,L221,E
DC12V
Out
DC12V
Out
X7402F
X7402B
AC-DC Adapter
P8
P5
P3
P7
P4
PCI-bus
[R-/02/1A]
to U92
1
2
3
4
1
2
3
4
1
2
3
4
1
2
3
4
1
2
3
4
1
2
3
4
5
6
7
8
:3
:6
:1
:7
:8
:2
:4
:5
:1
:2
:3
:4
:5
:6
:7
:8
:9
:FG
:1
:2
:3
:4
:5
:6
:7
:8
:9
:10
:11
:12
:13
:14
:15
:16
:17
:19
:20
N.CN.C
N.C
N.C
N.C
P1
P2
S-ATA
Front Monitor
Rear Monitor
1 2 3 4 5 6 7 8
A
B
C
D
E
F
4-47
5OM-1750
1303-001-(31010WR--1002)
CPU1 U92 接続回路
1 +5V
2
3
4
5
6 GND
7
11
9
12
8
10
13 PIO 2
14
15
16
17
18
19 GND
FG
PIO 3
PIO 4
PIO 5
PIO 6
PIO 7
PIO 1
PIO 0
2 +12V
1
3
4
5
6
7
12
8
11
9,10
VD-
GND
VIDEO-
VIDEO+
HD-
HD+
VD+
GND
TRIG
U95
LED Light Control PCB
2 +12V
1
3
4
5
6
7
12
9
8
11
10,13,14,15
VD-
GND
VIDEO-
VIDEO+
HD-
HD+
VD+
P.S
GND
TRIG
2 +12V
1
3
4
5
6
7
12
8
11
9,10
VD-
GND
VIDEO-
VIDEO+
HD-
HD+
VD+
GND
TRIG
2 +12V
1
3
4
5
6
7
12
9
8
11
10,13,14,15
VD-
GND
VIDEO-
VIDEO+
HD-
HD+
VD+
P.S
GND
TRIG
9
25
18
26
15CTRL1-Cam2
17
7
16
5
8GND
CTRL2-Cam2
VDrive-Cam2
HDrive-Cam2
VIDEO-Cam2
VIDEO-Cam1
CTRL1-Cam1
HDrive-Cam1
VDrive-Cam1
6GND
1
4
12
13
19CTRL1-Cam4
11
10
20
22
21+12V
14GND
CTRL2-Cam4
VDrive-Cam4
HDrive-Cam4
VIDEO-Cam4
VIDEO-Cam3
CTRL1-Cam3
HDrive-Cam3
VDrive-Cam3
2GND
1+5V PIO
7TRIG 0 (IN)
8
9
10
6
17Strobe 0 (OUT)
18
19
20
2PIO 0
12
3
13
4
14
5
15
16
PIO 1
PIO 2
PIO 3
PIO 4
PIO 5
PIO 6
PIO 7
GND
TRIG 1 (IN)
TRIG 2 (IN)
TRIG 3 (IN)
GND
Strobe 1 (OUT)
Strobe 2 (OUT)
Strobe 3 (OUT)
23+12V
Frame Grabber1
U92
B36(1)
B36(2)
B61(1)
B61(2)
A-X1B36
:15
:2
:1
:3
:4
:5
:6
:7
:12
:9
:8
:11
B-X1B36
:15
:2
:1
:3
:4
:5
:6
:7
:12
:9
:8
:11
FG
FG
FG
FG
FG
X9201
CAMERA
X9202
PIO
CN3
X9503
2-XB61
1-XB61
B36
B36
3CTRL2-Cam3
24
CTRL2-Cam1
PCI-bus
FG
Robot Cable
Robot Cable
4
3
2
1
COM
+12VDC
COM
+5VDC
[R-/01/3B]
from G21-P4
X9203
:4
:3
:2
:1
1 2 3 4 5 6 7 8
A
B
C
D
E
F
部品認識
カメラ (1)
部品認識
カメラ (2)
基板認識
カメラ (1)
基板認識
カメラ (2)
部品カメラ取り込みトリガ 1
基板カメラ取り込みトリガ 1
部品カメラ取り込みトリガ 2
基板カメラ取り込みトリガ 2
基板認識点灯信号 1
基板認識点灯信号 2
部品認識点灯信号 1
部品認識点灯信号 2
4-48
5OM-1750
1303-001-(31010WR---1003)
U95 接続回路 1
1
2
Y1LA
Y1LAR
U95
LED Light Control PCB
3
4
Y1LB
Y1LBR
5
6
Y1LSP
Y1LSN
7
8
Y1LSN
Y1EMI
9
10
Y1LDOCOM
Y1DICOM
1
2
X1LA
X1LAR
3
4
X1LB
X1LBR
5
6
X1LSP
X1LSN
7
8
X1LSN
X1EMI
9
10
X1LDOCOM
X1DICOM
1
2
Y2LA
Y2LAR
3
4
Y2LB
Y2LBR
5
6
Y2LSP
Y2LSN
7
8
Y2LSN
Y2EMI
9
10
Y2LDOCOM
Y2DICOM
1
2
X2LA
X2LAR
3
4
X2LB
X2LBR
5
6
X2LSP
X2LSN
7
8
X2LSN
X2EMI
9
10
X2LDOCOM
X2DICOM
10
[B-/03/4D]
from G2
CN1
48D
10
48D
X9501
1
2
3
4
5
6
7
8
9
X9502
CN2
N.C
TXD
RXD
N.C
S.G
N.C
N.C
N.C
N.C
FG
1GND
2+48V
3GND
4+48V
CON1
X95101
CON2
X95102
CON3
X95103
CON4
X95104
1:CD
[R-/01/7E]
from U91-COM1
2:RXD
3:TXD
4:DTR
5:GND
6:DSR
7:RTS
8:CTS
9:RI
FG
(A‘Š)
(/A‘Š)
(B‘Š)
(/B‘Š)
[C-/01/4C]
from A22B-CN3
(A‘Š)
(/A‘Š)
(B‘Š)
(/B‘Š)
[C-/01/8E]
from A21B-CN3
(A‘Š)
(/A‘Š)
(B‘Š)
(/B‘Š)
[C-/02/4C]
from A22F-CN3
(A‘Š)
(/A‘Š)
(B‘Š)
(/B‘Š)
[C-/02/08E]
from A21F-CN3
X2203B
X2103B
X2203F
X2103F
1 2 3 4 5 6 7 8
A
B
C
D
E
F