fx3r.pdf - 第242页
FX-3R Maintenance Guide 15-8 Rev. 1.00 15-2-1. Assembling and Adjusti ng the Lower Discharge Guide 1) Assemble the bottom cover angle to the bottom of the cutter base and adjust the clearance in the Z-direction between t…

FX-3R Maintenance Guide
15-7
Rev. 1.00
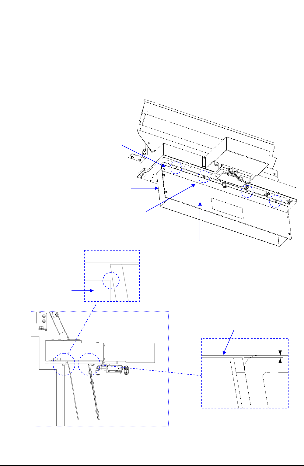
Figure 15-2-5 Adjustment of Upper Discharge Guide
Push all the way.
Bank down
No interference
2 ± 0.5mm
Bank up
ETF

FX-3R Maintenance Guide
15-8
Rev. 1.00
15-2-1. Assembling and Adjusting the Lower Discharge Guide
1) Assemble the bottom cover angle to the bottom of the cutter base and adjust the clearance in
the Z-direction between the bottom discharge guide and the bottom of the cutter base to 0.1 to
0.5 mm. Additionally, check that the bottom cover angle does not interfere with the cover FB_A.
∗ If the adjustment allowance is insufficient, loosen the assembly screws of the cover
FB_A and cover FB_B to make the adjustment.
Figure 15-2-6 Adjustment of Lower Discharge Guide
40095334 Bottom cover angle
40095335 Bottom discharge cover A
40095333 Bottom discharge guide
SM3040652TN Round screw M4, L = 6
No interference
Cover FB_A
(Bottom cover of
main unit)
0.1~0.5m
m
Bottom of cutter base
0.1 to 0.5mm

FX-3R Maintenance Guide
15-9
Rev. 1.00
Fixed electric bank is mounted.
1) Assemble the bottom discharge guide (EO) to the main unit bottom cover (cover FB_A),
adjust the clearance in the Y-direction between the bottom discharge guide and the opening
in the cutter base to 0 to 0.5 mm, and adjust the clearance in the Z-direction between the
bottom discharge guide and the bottom of the cutter base to 0 to 0.3 mm.
∗ If the adjustment allowance is insufficient, loosen the assembly screws of the cover
FB_A and cover FB_B to make the adjustment.
2) Assemble the bottom cover angle to the bottom of the cutter base.
3) Assemble the bottom discharge cover (EO) to the bottom discharge guide (EO) and joint
angle. Additionally, adjust the clearance between the bottom discharge cover and bottom
cover angle to 0.15 to 0.2 mm.
Figure 15-2-7 Adjustment of Bottom Discharge Guide (Fixed Electric Bank)
0 to 0.5mm
0~0.3mm
40095360 Bottom discharge guide (EO)
SM3051052TN
Round screw
M5, L = 10
Cover FB_B
Cover FB_A
Cross-section of
opening in cutter base
Bottom of cutter base
SM3051052TN
Round screw M5,
L = 10
40095361 Bottom discharge cover (EO)
40095334 Bottom cover angle
Clearance:
0.15 to 0.2mm
0 to 0.3mm