265ProFlow - 第67页
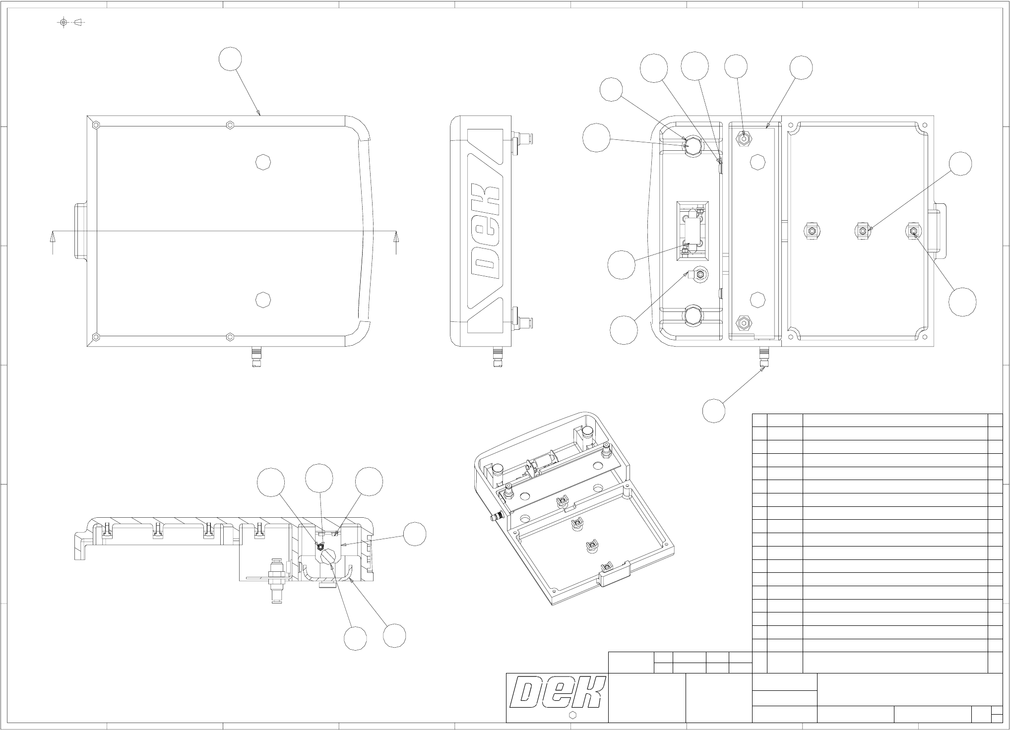
ProFlow Manual 1 137465 Issue 2 Light Shroud Assembly - ProFlow F E D C B A 6 5 4 3 2 1 E F 9 8 7 1 2345678 9 PROJECTION D C B A DRAWN APPROVED DATE C COPYRIGHT DO NO T SCALE SCALE TITLE DRAWING NUMBER 1995 BOM NUMBER A …

A3 DRAWINGS
GA LISTING
2.2 Chapter Issue 8 Dec 02

ProFlow Manual 1
137465 Issue 2 Light Shroud Assembly - ProFlow
F
E
D
C
B
A
654321
E
F
987
123456789
PROJECTION
D
C
B
A
DRAWN
APPROVED
DATE
C
COPYRIGHT
DO NOT SCALE
SCALE
TITLE
DRAWING NUMBER
1995
BOM NUMBER
A A
ITEM PART NO. DESCRIPTION QTY.
1
112414 CABLE TIE CLAMP 4
2
113395 KNURLED KNOB 2
3
137466 LIGHT SHROUD, PROFLOW 1
4
137470 BULKHEAD UNION 4.0MM SELF SEAL 2
5
137481 SUPPORT, LIGHT SHROUD PNEUMATICS 1
6
137493 PRINT PARAMETERS SIGNAL LOOM 1
7
140228 FESTOON BULB 1
8
140250 WINDOW,LAMP 1
9
140251 PLATE,CONTACT 2
10
700003 SCREW M3X8 PAN.HD SLTD MC ST.ST 5
11
700100 SCREW M3X6 CAP HD ST.ST 4
12
700101 SCREW M3X8 CAP HD ST.ST 2
13
700132 SCREW M5X10 CAP HD ST.ST 2
14
700310 SCREW M5X12 BUTT.HD ST.ST 2
15
700515 NUT M3 NI-LOCK 985 2
16
700601 WASHER M3 PLAIN FORM A ST.ST 13
17
700603 WASHER M5 PLAIN FORM A ST.ST 2
18
E0506 P CLIP 9-14MM 1
LATEST
ISSUE
No. DATE DCR INITIAL
02 16-Sep-97 11423 ACR
THIS DRAWING AND THE COPYRIGHT
IN IT, IS THE PROPERTY OF
DEK PRINTING MACHINES LIMITED
IT MAY NOT BE COPIED, REPRODUCED,
PUBLISHED OR DISCLOSED IN WHOLE
OR IN PART WITHOUT OUR WRITTEN
CONSENT.
4:5
ACR
LIGHT SHROUD ASSY, PROFLOW
28-Jul-97
137465
137467
SH 1
OF 1
A
1
137476 F TRAY, LIGHT SHROUD
137475 LIGHT SHROUD LOOM
140250 WINDOW, LAMP NOT SHOWN IN ALL VIEWS
3
10
16
18
1
2
4
14
13
17
6
5
SECTION A-A
7
8
9
11
12
15
SCALE 1:2

2 ProFlow Manual
137477 Issue 1 Down Stop GA
A
B
C
D
REMOVE ALL BURRS & SHARP EDGES
456
1
2
3
456
1
2
3
A
B
C
E
E
PROJECTION
D
DRAWN
APPROVED
DATE
C
COPYRIGHT
DO NOT SCALE
SCALE
TITLE
DRAWING NUMBER
1995
BOM NUMBER
THIS DRAWING AND THE COPYRIGHT
IN IT, IS THE PROPERTY OF
DEK PRINTING MACHINES LIMITED
IT MAY NOT BE COPIED, REPRODUCED,
PUBLISHED OR DISCLOSED IN WHOLE
OR IN PART WITHOUT OUR WRITTEN
CONSENT.
1:1
N. PALMER
DOWNSTOP G.A.
31-Jul-97
137477
137420
SH 1
OF 1
A
2
ITEM PART NO. DESCRIPTION QTY.
1
107193
NEOPRINE SPINDLE
2
2
137389 DOWN STOP 1
3
700505
NUT M5 FULL ST.ST
2
4
700603
WASHER M5 PLAIN FORM A ST.ST
2
LATEST
ISSUE
No. DATE DCR INITIAL
01 31-Jul-97 - NJP
NOTE:
DOWNSTOP ASSY IS ASSEMBLED TO 101143
OUTER MTG SQUEEGEE BLOCK USING
700197 M5 x 14 SKT CAP SCREW (2 OFF)
1
2
3
4
SCALE 1:2