Service Manual HS60 - 第88页
3 Pow er S up ply H S-6 0 S erv ic e Manu al 3. 8 P art s ov erv ie w 03/2 00 3 US I ss ue 86 Item Designatio n Item number S1 Main switch 3LC4/3-pol e/40A 00359214 -01 MS1 Mot or cir c uit- breaker PKZ2/3 -pole/40A 0034…

HS-60 Service Manual 3 Power Supply
03/2003 US Issue 3.8 Parts overview
85
3.8 Parts overview
3
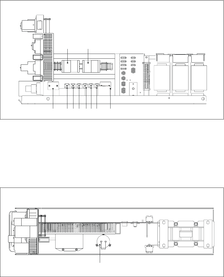
Fig. 3.8 - 1 Power supply unit - front panel - parts overview
3 Power Supply HS-60 Service Manual
3.8 Parts overview 03/2003 US Issue
86
Item Designation Item number
S1 Main switch 3LC4/3-pole/40A 00359214-01
MS1 Motor circuit-breaker PKZ2/3-pole/40A 00342494-01
MS1A Motor trip block ZM-16-PKZ2 00342495-01
MS1A Motor trip block ZM-32-PKZ2 (for U.S.A) 00342496-01
SZ1 Contactor 3RT10/24VDC/size S2 00341207-01
K11, K12 Auxiliary contact block 3RT1/1-pole/1NC 00341210-01
K14 Auxiliary contact block 3RT1/1-pole/1NO 00341221-01
F3 Miniature circuit-breaker 5SX2/3-pole/4A-AC, C char. 00302817-01
F11 Miniature circuit-breaker 5SX2/1-pole/1A-AC 00310685-01
F4 Miniature circuit-breaker 5SX2/3-pole/32A-AC, D char. 00341203-01
MS3, MS4, MS5, MS6 Circuit-breaker 3RV10/0,45-0,63A 00342491-01
F1 Miniature circuit-breaker 5SX2/1-pole/4A-AC, C char. 00307161-01
SZ2, SZ3, SZ23 Contactor 3RT10/24VDC/size S0 00341208-01
K24, K34, K234 Auxiliary contact block 3RT1/1-pole/1NC 00341210-01
K21, K22, K23 Auxiliary contact block 3RT1/1-pole/1NO 00341221-01
K31, K32, K33, K232
F8 Miniature circuit-breaker 5SX2/1-pol/6A-AC 00341205-01
F5, F6, F7, F9 Miniature circuit-breaker 5SX2/1-pole/10A-AC, B char. 00341204-01
F10 Miniature circuit-breaker 5SX2/1-pole/25A-AC, D char. 00341206-01
SZ4 Contactor 3RT13/24VDC/size S0 00341209-01
Di1 Suppressor diode for contactors DC24-70V 00342396-01
SSK
Combined contactor/protective device 3TK2805 24VDC
5S-1NC 00341222-01

HS-60 Service Manual 3 Power Supply
03/2003 US Issue 3.8 Parts overview
87
3
Fig. 3.8 - 2 Power supply - side view - parts overview
3
Fig. 3.8 - 3 Power supply - plan view - parts overview
Item Designation Item number
ELR1, ELR2 ELR TC 31034-01 board 00341835-01
T1 11.1 kVA transformer 00345634-01
V1, V7 S101-B6U 160-08 rectifier 00341246-01
V2 S61-B2U 28-02 rectifier 00341244-01
V3, V4, V5, V6, V8 S63-B6U 28-02 rectifier 00341245-01
Item Designation Item number
EST Inrush current limitation board TG31033-01 00341831-01
Z1 Main power filter for 36A 3-phase AC systems 00342397-01
C1 33000µF/63V electrolytic capacitor 00348352-01
ELR1
V7
V2
KL1
V5
V4V3 V6
ELR2
V1
EEP
T1
V8
C1
T1
Z1
EST