YSi-X_mpl - 第26页
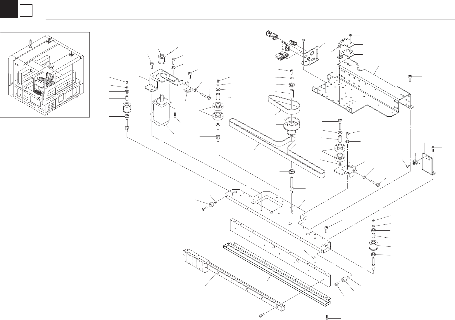
KLC-1304 Rev . :It had a change without the compatibility . Please be careful at the time of the parts ordering. Rev.: 過去に互換性の無い変更が入った部品。部品発注時は注意してください。 No. Part No. Part Name Q’ty Remarks Rev. Rank Level No. Part No. Pa…

KLC-1304
31
38
26
23
22
26
4
31
38
26
23
22
26
4
42
36
36
41
37
31
38
28
30
25
28
24
33
15
21
16
27
29
12
32
46
36
36
40
10
41
37
19
31
36
34
44
33
35
11
2
3
34
17
20
17
20
14
34
37
28
28
30
25
47
13
39
33
27
6
1
5
40
36
8
7
9
45
48
6
1
MS-Drive
Conveyor

KLC-1304
Rev. :It had a change without the compatibility. Please be careful at the time of the parts ordering.
Rev.: 過去に互換性の無い変更が入った部品。部品発注時は注意してください。
No. Part No. Part Name Q’ty Remarks Rev. Rank Level No. Part No. Part Name Q’ty Remarks Rev. Rank Level
1
KLC-M9511-00 PLATE, DRIVE 1
1
/
Í
39
92902-04200 WASHER PLAIN
1
2
KLC-M9512-00 LM RAIL&BLOCK 15,400
1
B
Í
40
92902-05200
WASHER PLAIN
4
3
KLC-M9513-00 PLATE, DRIVE 2
1
/
Í
41
95302-05600 NUT HEXAGON
2
4
KLC-M9514-00 SHAFT, PULLEY 1
2
/
Í
42
92A08-04003 SET SCREW M4X3
2
5
KLC-M9515-00 SHAFT, PULLEY 2
1
/
Í
43
6
KLC-M9516-00 SHAFT, PULLEY 3
1
/
Í
44
99480-05018 PIN,PARALLEL
2
7
KLC-M9517-01 BRKT., MOTOR
1
/
Í
45
KLC-M9535-00 PLATE,HNS.
1
/
Í
8
KLC-M9518-00 PULLY,MOTOR
1
/
Í
46
KLC-M9536-00 BRKT.,HNS.MS 7
1
/
Í
9
KLC-M9519-00 BRKT., TENSIONER
1
/
Í
47
90990-01J011 BOLT, HEX. SOCKET HE
2
10
KLC-M951A-00
BRKT., TENSIONER 2
1
/
Í
48
98902-03004 SCREW BINDING HEAD
2
11
KLC-M951B-01 COVER, GUIDE
1
/
Í
49
12
KLC-M951C-01 BRKT., CABLE UPPER
1
/
Í
50
13
KLC-M951D-02 BRKT.,HNS. MS 6
1
/
Í
51
14
KLC-M951E-01 BRKT.,SENSOR ORG
1
/
Í
52
15
KLC-M951F-00 BELT 1
1
B
Í
53
16
KLC-M951H-00 BELT 3
1
B
Í
54
17
KLC-M951R-00 STOPPER
2
/
Í
55
18
56
19
KLC-M652N-00 SEN.,MS ORG ASSY
1
B
Í
57
20
KHW-M2656-00 SPACER
2
/
Í
58
21
KB0-M2255-01 PULLEY,5
1
/
Í
59
22
KC4-M1751-00 PULLEY,1
2
/
Í
60
23
KGX-M1828-00 COLLAR 1
2
/
Í
61
24
90KA1-402349 AC SERVO MOTOR
1
B
Í
62
25
90933-01J200 BEARING
4 63
26
90933-03J685 BEARING
4 64
27
90933-03J696 BEARING
2 65
28
90990-28J051 WASHER,PLAIN
4 66
29
90990-41J004 COLLAR
1 67
30
90990-41J028 COLLAR
2 68
31
91312-03006 BOLT HEX.SOCKET HEAD
5
M3X6
69
32
91312-04006 BOLT HEX.SOCKET HEAD
4
M4X6
70
33
91312-04010 BOLT HEX.SOCKET HEAD
7
M4X10
71
34
91312-04012 BOLT,HEX.SOCKET HEAD
4
M4X12
72
35
91312-04016 BOLT,HEX.SOCKET HEAD
7
M4X16
73
36
91312-05014 BOLT HEX.SOCKET HEAD
17
M5X14
74
37
91312-05030 BOLT HEX.SOCKET HEAD
3
M5X30
75
38
92902-03200 WASHER PLAIN
3 76
6
1
MS-Drive
Conveyor

KLC-1304
18
10
35
38
5
40
2
44
8
9
36
54
47
46
23
26
34
29
31
36
36
12
32
30
24
25
37
36
37
43
49
33
22
22
39
3
36
13
7
44
17
17
35
35
35
35
11
42
35
35
42
35
35
15
35
3516
14
1
41
45
6
39
19
20
21
21
4
36
36
55
48
51
52
53
27
50
6
2
MS-ARM / Duct
Conveyor