YSi-X_mpl - 第31页
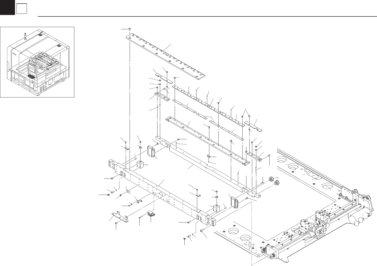
KLC-1304 6 4 Clamp Board F Conveyor 40 10 8 38 38 38 38 37 33 32 6 1 1 26 27 27 15 41 27 14 30 23 19 22 25 34 27 31 21 29 28 24 30 23 19 22 42 20 27 13 16 1 16 36 2 37 36 30 30 30 18 30 18 17 17 36 39 39 35 3 1 1 33 32 3…

KLC-1304
Rev. :It had a change without the compatibility. Please be careful at the time of the parts ordering.
Rev.: 過去に互換性の無い変更が入った部品。部品発注時は注意してください。
No. Part No. Part Name Q’ty Remarks Rev. Rank Level No. Part No. Part Name Q’ty Remarks Rev. Rank Level
1
KLC-M910K-00 DAMPER 1
2
/
Í
39
2
KLC-M910L-00 SPACER
2
/
Í
40
3
KLC-M9111-00 HOLDER,BRG.
1
/
Í
41
4
KLC-M9113-00 HOLDER2,MOTOR
1
/
Í
42
5
KLC-M9114-00 PLATE,BRG.
1
/
Í
43
6
KLC-M9115-00 COUPLING
1
/
Í
44
7
KLC-M9116-00 PLATE1,BRG.
1
/
Í
45
8
KLC-M9117-00 SPLINE 1
1
/
Í
46
9
KLC-M9118-00 SPLINE 2
1
/
Í
47
10
KLC-M9119-00
HOLDER6,BRG.
1
/
Í
48
11
KLC-M911A-00 PLATE,BASE
1
/
Í
49
12
KLC-M911B-00 PLATE,BASE
1
/
Í
50
13
KLC-M911D-00 BELT 186-3GT-9
1
A
Í
51
14
KH2-M9121-00 BEARING
2
/
Í
52
15
KGK-M9170-00 DC MOTOR ASSY.
1
B
Í
53
16
KG2-M9108-11 COLLAR,CONVEYOR
2
/
Í
54
17
KLC-M911F-00 PULLEY 1,SPLINE
2
/
Í
55
18
KGT-M9193-00 NUT PLATE
4
/
Í
56
19
KH2-M9105-11 PULLEY,MOTOR:P30-3GT
2
/
Í
57
20
90933-01J804 BEARING
1
/
Í
58
21
90990-41J006
COLLAR
1
/
Í
59
22
90990-41J022 COLLAR
1
/
Í
60
23
KLC-M914F-00 BELT
2
E
61
24
91312-04006 BOLT HEX.SOCKET HEAD
4
M4X6
62
25
91312-04010 BOLT HEX.SOCKET HEAD
6
M4X10
63
26
91312-04014 BOLT HEX.SOCKET HEAD
2
M4X14
64
27
91312-04050 BOLT HEX.SOCKET HEAD
4
M4X50
65
28
91312-05008 BOLT HEX.SOCKET HEAD
2
M5X8
66
29
91312-05014 BOLT HEX.SOCKET HEAD
11
M5X14
67
30
91312-05025 BOLT HEX.SOCKET HEAD
2
M5X25
68
31
92902-04600 WASHER PLAIN
2 69
32
92902-05600 WASHER PLAIN
4 70
33
92012-03010 BOLT,BUTTON HEAD
8 71
34
90152-04J04 SCREW, SET
4 72
35 73
36 74
37 75
38 76
6
3
Transport
Conveyor

KLC-1304
6
4
Clamp Board F
Conveyor
40
10
8
38
38
38
38
37
33
32
6
11
26
27
27
15
41
27
14
30
23
19
22
25
34
27
31
21
29
28
24
30
23
19
22
42
20
27
13
16
1
16
36
2
37
36
30
30
30
18
30
18
17
17
36
39
39
35
3
11
33
32
37
7
9
9
5
12
12
12
4
5
8
44
43
43
45
45

KLC-1304
Rev. :It had a change without the compatibility. Please be careful at the time of the parts ordering.
Rev.: 過去に互換性の無い変更が入った部品。部品発注時は注意してください。
No. Part No. Part Name Q’ty Remarks Rev. Rank Level No. Part No. Part Name Q’ty Remarks Rev. Rank Level
1
KLC-M9121-00 FRAME,CONVEYOR F
1
/
Í
39
90990-01J037 BOLT,HEX.SOCKET HEAD
6
2
KLC-M9151-00 PLATE,CLAMP F
1
/
Í
40
90990-01J059
BOLT HEXAGON SOCKET
6
3
KLC-M9153-00 PLATE1,CONVEYOR
1
/
Í
41
92A08-02303 SET SCREW M2X3
1
4
KLC-M9154-00 GUIDE, PCB
1
/
Í
42
91312-06025 BOLT,HEX.SOCKET HEAD
10
M6X25
5
KLC-M9155-00 GUIDE, PCB
2
/
Í
43
KLC-M9181-00 SPACER 1
2
/
Í
6
KLC-M9156-00 FRAME1,SIDE
1
/
Í
44
KLC-M9182-00 SPACER 2
2
/
Í
7
KLC-M9157-00 FRAME2,SIDE
1
/
Í
45
90990-29J019 SHIM
4
8
KLC-M9158-00 GUIDE3,PCB
2
/
Í
46
9
KLC-M9159-00 STOPPER
2
/
Í
47
10
KLC-M915A-00
UPPER PLATE 1
1
/
Í
48
11
KLC-M915C-00 PIN
2
/
Í
49
12
KLC-M915D-00 PIN
12
/
Í
50
13
KLC-M915M-00 PLATE1,STOPPER
1
/
Í
51
14
KLC-M915N-00 PLATE2,STOPPER
1
/
Í
52
15
KLC-M915T-00 PALTE1,SENSOR
1
/
Í
53
16
KLC-M9161-00 CYLINDER
2
B
Í
54
17
KLC-M9162-00 GUIDE
2
/
Í
55
18
KLC-M9163-00 JOINT,CYLINDER
2
/
Í
56
19
KLC-M9164-00 JOINT
4
/
Í
57
20
KLC-M9165-00 BRACKET,SENSOR
1
/
Í
58
21
KLC-M9167-00 BRACKET1,HNS.
1
/
Í
59
22
KLC-M9169-00 GASKET
4
/
Í
60
23
KLC-M916D-00 JOINT
4
/
Í
61
24
KLC-M916E-00 JOINT ASSY
1
/
62
25
KLC-M914M-00 CLAMP
15
/
Í
63
26
KGY-M9140-A0 PULLEY CONV. ASSY.
4
A
64
27
91312-03008 BOLT HEX.SOCKET HEAD
14
M3X8
65
28
91312-03020 BOLT,HEX.SOCKET HEAD
2
M3X20
66
29
91312-04008 BOLT HEX.SOCKET HEAD
4
M4X8
67
30
91312-04012 BOLT,HEX.SOCKET HEAD
10
M4X12
68
31
92902-03600 WASHER PLAIN
2 69
32
92902-05600 WASHER PLAIN
2 70
33
95302-05600 NUT HEXAGON
2 71
34
98702-04008 SCREW,FLAT HEAD (+)
15 72
35
98902-03012 SCREW BINDING HEAD
2 73
36
99480-04012 PIN,PARALLEL
5 74
37
90990-01J070 BOLT,HEX.SOCKET HEAD
4 75
38
92012-04006 BOLT, BUTTON HEAD
16 76
6
4
Clamp Board F
Conveyor