SM411F_FN_TRM(Ver9.7_CS16.15) - 第128页
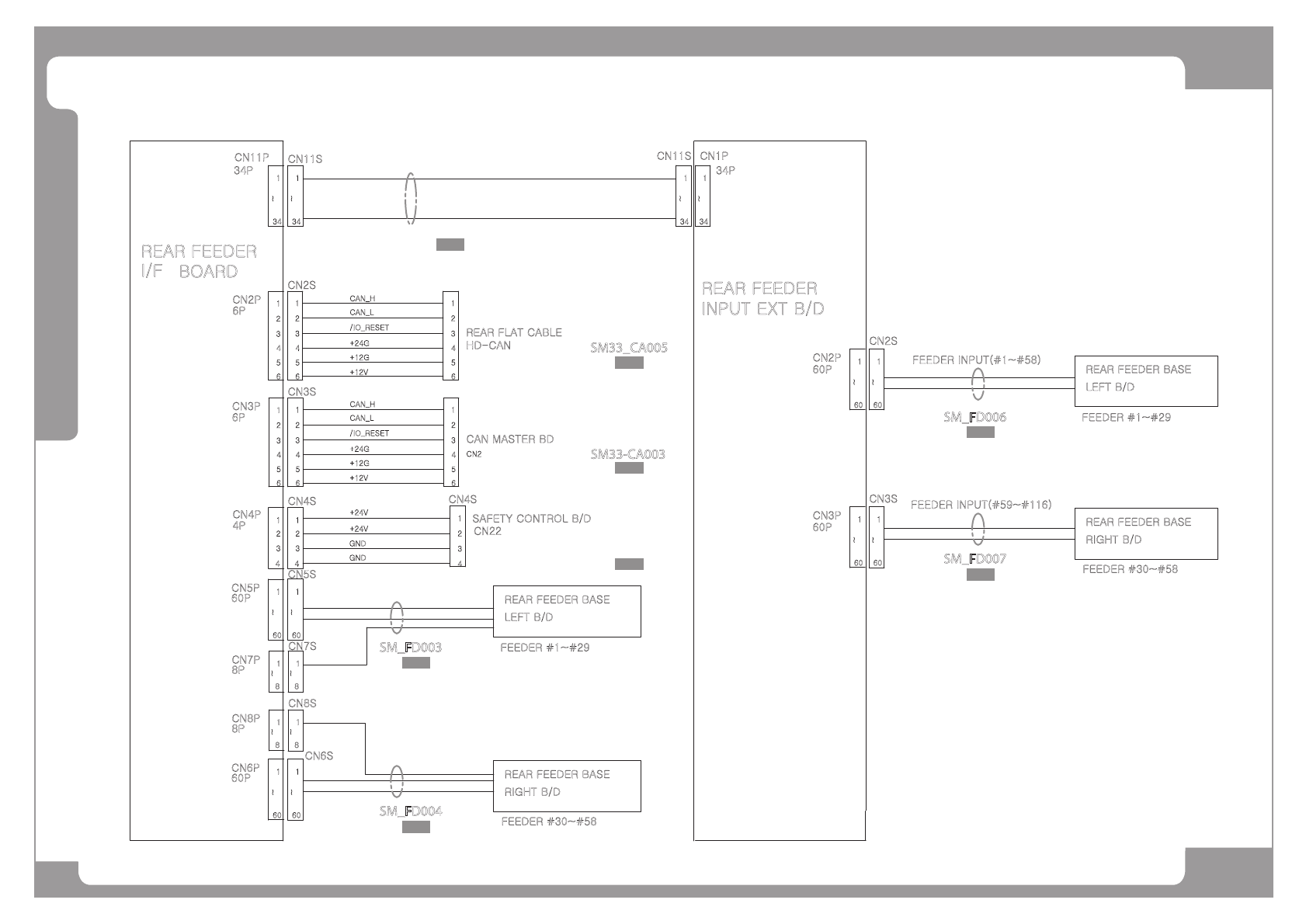
Page HANWHA TECHWIN 11 6 SM411F Rear Feeder Board Interface C N11P 34P R EA R FEED ER I/ F BO A RD R EA R FEED ER IN P U T EXT B / D + 24V GN D GN D + 24V /I O_ R E SE T + 24G + 12G + 12V CA N _H CA N _L CA N _H CA N _L …

Page
HANWHA TECHWIN
115
SM411F
Front Feeder Board Interface
NO. PART NO. PART NAME Q'TY Old No. Stock Apply Reference
1 J90831413A FDR_INPUT_EXT_CABLE_ASSY SM41-FD005 1
2 J90831027C FFDR-CVIF_CAN_CABLE_ASSY SM33-CA002 1 J90831027A
3 J90831026B .ASTER_CPU1-FFDR_CAN_CABLE_ASSY SM33-CA0 1 J90831026A
4 J90831336C FRONT_FDR_IO_BD_PWR_CABLE_ASSY 1
5 J90800838D LEFT FDR SOL OUTPUT CABLE ASSY 1 J9080838A
6 J90800839D RIGHT FDR SOL OUTPUT CABLE ASSY 1 J9080839A
7 J90800841C LEFT FDR SENSOR INPUT CABLE ASSY 1 J9080841A
8 J90800842C RIGHT FDR SENSOR INPUT CABLE ASSY 1 J9080842A

Page
HANWHA TECHWIN
116
SM411F
Rear Feeder Board Interface
CN11P
34P
REAR FEEDER
I/ F
BOARD
REAR FEEDER
INPUT EXT B/D
+24V
GND
GND
+24V
/IO_RESET
+24G
+12G
+12V
CAN_H
CAN_L
CAN_H
CAN_L
/IO_RESET
+24G
+12G
+12V
4
5
6
4
5
6
4P
CN4P
6P
CN3P
4
5
6
4
5
6
11
60
~
60
CN5S
2
2
3
3
CN3S
1
1
6P
CN2P
3
3
CN2S
1
2
1
2
4
5
6
3
4
5
6
2
1
CAN MASTER BD
CN2
3
2
1
REAR FLAT CABLE
HD-CAN
SM41_FD002SM41_FD002
SM33-CA003
SM33_CA005
CN5P
60P
CN4S
4
3
2
1
S AF E TY C O N TR O L B / D
CN22
~
4
1
4
1
CN4S
2 2
3 3
11
60
60P
~
60
~
CN6P
CN6S
REAR FEEDER BASE
LEFT B/ D
REAR FEEDER BASE
RIGHT B/D
FEEDER #1~#29
FEEDER #30~ #58
SM_FD003
SM_FD004
11
34
~
34
~
CN11S
1 1
34
~
34
~
CN1PCN11S
34P
SM41_FD005SM41_FD005
60 60
1
60P
~
CN3P
1
~
CN3S
11
60
60P
~
60
~
CN2P
CN2S
FEEDER #30~ #58
RIGHT B/D
REAR FEEDER BASE
SM_FD007
FEEDER #1~#29
REAR FEEDER BASE
LEFT B/ D
SM_FD006
FEEDER INPUT(#1~ #58)
FEEDER INPUT(#59~#116)
~
~
8 8
~
~
CN8P
8P
1
8
CN8S
1
8
CN7P
8P
1
CN7S
1
^8`
^9`
^4`
^:`
^;`
^6`
^5`
^7`

Page
HANWHA TECHWIN
117
SM411F
Rear Feeder Board Interface
NO. PART NO. PART NAME Q'TY Old No. Stock Apply Reference
1 J90831413A FDR_INPUT_EXT_CABLE_ASSY SM41-FD005 1
2 J90831030C RFDR-REAR_FLAT_CAN_CABLE_ASSY SM33-CA005 1 J90831030A
3 J90831028C MASTER_CPU2-RFDR_CAN_CABLE_ASSY SM33-CA0 1 J90831028A
4 J90831417D REAR_FDR_IO_BD_PWR_CABLE_ASSY 1
5 J90800838D LEFT FDR SOL OUTPUT CABLE ASSY 1 J9080838A
6 J90800839D RIGHT FDR SOL OUTPUT CABLE ASSY 1 J9080839A
7 J90800841C LEFT FDR SENSOR INPUT CABLE ASSY 1 J9080841A
8 J90800842C RIGHT FDR SENSOR INPUT CABLE ASSY 1 J9080842A