SM411F_FN_TRM(Ver9.7_CS16.15) - 第151页
Page HANWHA TECHWIN 139 SM411F Servo Interface (Y1, Y2) NO. PA R T N O . P ART NAME Q'TY Old No. Stoc k Apply Refere nce 1 J90831 1 1 3D FY1 _FY2_DRV_COMMAND_CABLE_ASSY SM41 1-VM003 1 2 J90831 1 1 4D RY1_RY2_DRV_COM…

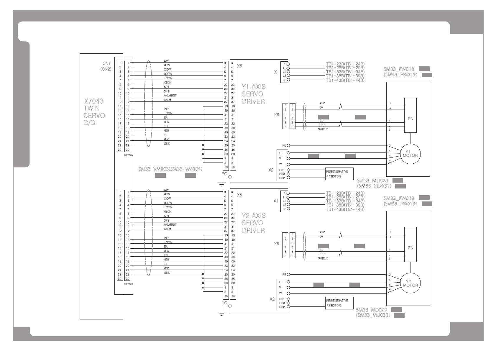
Page
HANWHA TECHWIN
138
SM411F
Servo Interface (Y1, Y2)
X2
SERVO
DRIVER
ROWA
13
X7043
TWIN
SERVO
B/D
19
22
30
21
20
16
18
17
15
14
9
12
11
8
7
CN1
3
4
2
1
13
19
22
30
21
20
16
18
17
15
14
GND
/EZ
EZ
EB
/EB
/EA
-C O M
EA
INP
FG
50
9
8
49
25
38
36
24
23
21
48
22
41
39
9
12
11
8
7
3
4
2
1
+C O M
/ALM
/ALMRST
/SON
SP1
/CW
/CCW
CCW
CW
6
30
37
31
29
7
5
4
3
Y1 AXIS
X5
RB2
RB3
RB1
L3
r
X1
L1
L2
t
TB1-38B(TB1-39B)
TB1-43B(TB1-44B)
TB1-33B(TB1-34B)
TB1-28B(TB1-29B)
TB1-23B(TB1-24B)
SM33_PW018
REGENERATIVE
RESISTOR
SP2
1010
27
13
8
50
9
41
21
13
31
30
38
36
25
24
23
49
48
22
39
37
27
29
7
6
5
4
3
Y1
MOTO R
D
C
B
A
U
V
W
PE
6
4
5
3
1
2
SHIELD
SD
SD/
0V
+5 V
4
6
5
2
3
1
EN
H
G
K
L
J
SM33_MD006(SM41_MD010)SM33_MD006(SM41_MD010)
SM411_MD005(SM411_MD009)SM411_MD005(SM411_MD009)
SM33_MD028
X6
A
ROWB
5050
FG
38
8
9 9
8
38
RB1
RB3
RB2
X2
V
W
U
RESISTOR
REGENERATIVE
C
B
Y2
MOTO R
+5 V
SHIELD
0V
SD
SD/
SP2
CW
CCW
/CCW
/CW
SP1
/SON
/ALMRST
/ALM
+C O M
INP
EA
-C O M
/EA
/EB
EB
EZ
/EZ
GND
88
1616
17
18
20
21
30
22
19
30
22
20
21
18
19
17
10
11
12
9
14
15
13
12
14
15
13
10
11
9
2
4
3
77
4
3
11
2
2929
SERVO
DRIVER
2121
23
24
36
25 25
36
23
24
22
48
49
48
49
22
3737
13
39
41
39
41
13
27
31
30
27
31
30
44
PE
66
55
X6
22
33
11
5
7
6
7
5
6
3
4
3
4
X5
Y2 AXIS
X1
t
L3
L2
L1
r
SM411_MD007(SM411_MD011)SM411_MD007(SM411_MD011)
D
J
L
K
SM41_MD008(SM33_MD012)SM41_MD008(SM33_MD012)
H
G
EN
SM33_VM003(SM33_VM004)
(C N2)
(SM33_PW019)
(SM33_PW019)
SM33_PW018
TB1-28B(TB1-29B)
TB1-43B(TB1-44B)
TB1-38B(TB1-39B)
TB1-33B(TB1-34B)
TB1-23B(TB1-24B)
(SM33_MD031)
(SM33_MD032)
SM33_MD029
^8` ^9`
^44` ^45`
^6`
^7`
^6`
^7`
^<`
^48`
^43`
^49`
^4` ^5`
^:` ^;`
^46` ^47`

Page
HANWHA TECHWIN
139
SM411F
Servo Interface (Y1, Y2)
NO. PART NO. PART NAME Q'TY Old No. Stock Apply Reference
1 J90831113D FY1_FY2_DRV_COMMAND_CABLE_ASSY SM411-VM003 1
2 J90831114D RY1_RY2_DRV_COMMAND_CABLE_ASSY SM411-VM004 1
3 J90831080B FY1_FY2_SERVO_POWER_CABLE_ASSY SM33-PW01 1 J90831080A
4 J90831081B RY1_RY2_SERVO_POWER_CABLE_ASSY SM33-PW01 1 J90831081A
5 J90831162B FY1_MOTOR_ENC_CABLE_ASSY 1
6 J90831436B RY1_MOTOR_ENC_CABLE_ASSY SM33-MD010 1
7 AM03-001871B CABLE ASSY-FY1_MOTOR_PWR 1
8 AM03-001869B CABLE ASSY-RY1_MOTOR_PWR 1
9 J90831184A FY1_REGEN_RESISTOR_CABLE_ASSY SM33-MD028 1
10 J90831187C RY1_REGEN_RESISTOR_CABLE_ASSY SM33-MD031 1
11 J90831434A FY2_MOTOR_ENC_CABLE_ASSY SM33-MD008 1
12 J90831168B RY2_MOTOR_ENC_CABLE_ASSY 1
13 AM03-001870B CABLE ASSY-FY2_MOTOR_PWR 1
14 AM03-001872B CABLE ASSY-RY2_MOTOR_PWR 1
15 J90831185A FY2_REGEN_RESISTOR_CABLE_ASSY SM33-MD029 1
16 J90831188A RY2_REGEN_RESISTOR_CABLE_ASSY SM33-MD032 1

Page
HANWHA TECHWIN
140
SM411F
Servo Interface (X, SW)
X2
X2
SERVO
SERVO
DRIVER
DRIVER
ROWA
ROWA
13
13
X7043N
X7043N
#1 B/D
#1 B/D
19
19
22
22
30
30
21
21
20
20
16
16
18
18
17
17
15
15
14
14
9
9
12
12
11
11
8
8
7
7
CN1
CN1
3
3
4
4
2
2
1
1
13
13
19
19
22
22
30
30
21
21
20
20
16
16
18
18
17
17
15
15
14
14
GND
GND
/EZ
/EZ
EZ
EZ
EB
EB
/EB
/EB
/EA
/EA
-C O M
-COM
EA
EA
INP
INP
FG
FG
50
50
9
9
8
8
49
49
25
25
38
38
36
36
24
24
23
23
21
21
48
48
22
22
41
41
39
39
9
9
12
12
11
11
8
8
7
7
3
3
4
4
2
2
1
1
+C O M
+COM
/ALM
/ALM
/ALMRST
/ALMRST
/SON
/SON
SP1
SP1
/CW
/CW
/CCW
/CCW
CCW
CCW
CW
CW
6
6
30
30
37
37
31
31
29
29
7
7
5
5
4
4
3
3
X AXIS
X AXIS
X5
X5
RB2
RB2
RB3
RB3
RB1
RB1
L3
L3
r
r
X1
X1
L1
L1
L2
L2
t
t
TB1-36B(TB1-37B)
TB1-36B(TB1-37B)
TB1-41B(TB1-42B)
TB1-41B(TB1-42B)
TB1-31B(TB1-32B)
TB1-31B(TB1-32B)
TB 1 -2 6 B ( TB 1 -2 7 B )
TB1-26B(TB1-27B)
TB 1 -2 1 B ( TB 1 -2 2 B )
TB1-21B(TB1-22B)
SM33_PW016
SM33_PW016
REGENERATIVE
REGENERATIVE
RESISTOR
RESISTOR
SP2
SP2
10
10
10
10
27
27
13
13
8
8
50
50
9
9
41
41
21
21
13
13
31
31
30
30
38
38
36
36
25
25
24
24
23
23
49
49
48
48
22
22
39
39
37
37
27
27
29
29
7
7
6
6
5
5
4
4
3
3
X
X
MOTO R
MOTOR
U
U
V
V
W
W
PE
PE
6
6
4
4
5
5
3
3
1
1
2
2
SHIELD
SHIELD
SD
SD
SD/
SD/
0V
0V
+5 V
+5V
4
4
6
6
5
5
2
2
3
3
1
1
EN
EN
SM33_MD002(SM33_MD004)
SM33_MD002(SM33_MD004)
SM33_MD001(SM33_MD003)
SM33_MD001(SM33_MD003)
SM33_MD027
SM33_MD027
X6
X6
ROWB
ROWB
8
8
8
8
16
16
16
16
17
17
18
18
20
20
21
21
30
30
22
22
19
19
30
30
22
22
20
20
21
21
18
18
19
19
17
17
10
10
11
11
12
12
9
9
14
14
15
15
13
13
12
12
14
14
15
15
13
13
10
10
11
11
9
9
2
2
4
4
3
3
7
7
7
7
4
4
3
3
1
1
1
1
2
2
SM33_VM005
SM33_VM005
4
4
1
1
2
2
3
3
4
4
1
1
2
2
3
3
FLAT
FLAT
CABLE
CABLE
1
1
2
2
3
3
4
4
5
5
3
3
6
6
2
2
4
4
5
5
(X7043N
(X7043N
#1 B/D)
#1 B/D)
(SM33_VM006)
(SM33_VM006)
(SM33_PW017)
(SM33_PW017)
(SM33_MD030)
(SM33_MD030)
(SM33_PW017)
(SM33_PW017)
SM33_PW016
SM33_PW016
27
27
27
27
25
25
25
25
GND
GND
(SM33_VM006)
(SM33_VM006)
SM33_VM005
SM33_VM005
FG
FG
50
50
8
8
9
9
8
8
50
50
9
9
36
36
38
38
36
36
38
38
/EB
/EB
/EZ
/EZ
EZ
EZ
EB
EB
/EA
/EA
-C O M
-COM
EA
EA
INP
INP
/ALMRST
/ALMRST
/ALM
/ALM
21
21
21
21
49
49
49
49
23
23
24
24
24
24
23
23
22
22
48
48
48
48
22
22
13
13
13
13
39
39
41
41
41
41
39
39
31
31
37
37
37
37
31
31
PE
PE
RB1
RB1
X2
X2
RB3
RB3
RB2
RB2
W
W
V
V
U
U
SM33_MD013(SM33_MD015)
SM33_MD013(SM33_MD015)
+5 V
+5V
0V
0V
SD/
SD/
SD
SD
SHIELD
SHIELD
4
4
4
4
6
6
6
6
5
5
5
5
1
1
1
1
X6
X6
3
3
3
3
2
2
2
2
SM33_MD014(SM33_MD016)
SM33_MD014(SM33_MD016)
SERVO
SERVO
DRIVER
DRIVER
/SON
/SON
SP1
SP1
SP2
SP2
/CCW
/CCW
+C O M
+COM
CCW
CCW
CW
CW
/CW
/CW
4
4
4
4
7
7
7
7
29
29
30
30
30
30
29
29
6
6
5
5
6
6
5
5
S AXIS
S AXIS
X5
X5
3
3
3
3
t
t
L3
L3
X1
X1
L2
L2
L1
L1
r
r
TB 1 -2 6 B ( TB 1 -2 7 B )
TB1-26B(TB1-27B)
TB1-41B(TB1-42B)
TB1-41B(TB1-42B)
TB1-36B(TB1-37B)
TB1-36B(TB1-37B)
TB1-31B(TB1-32B)
TB1-31B(TB1-32B)
TB 1 -2 1 B ( TB 1 -2 2 B )
TB1-21B(TB1-22B)
4
4
4
4
3
3
2
2
1
1
3
3
2
2
1
1
SW
SW
MOTO R
MOTOR
FLAT
FLAT
CABLE
CABLE
5
5
4
4
3
3
6
6
3
3
2
2
2
2
1
1
5
5
4
4
EN
EN
^:` ^;`
^8` ^9`
^46`
^47`
^44` ^45`
^6`
^6`
^7`
^7`
^<`
^43`
^4`
^5`
^4`
^5`