SM411F_FN_TRM(Ver9.7_CS16.15) - 第163页
Page HANWHA TECHWIN 151 SM411F Step Motor Interface (Conveyor Belt) NO. PA R T N O . P ART NAME Q'TY Old No. Stoc k Apply Refere nce 1 J9083177 9C CB/WV_ DRV_COMMAND_CABLE_ASSY 1 2 J90831780B CB34_DRV_COMMAND_CABLE_…

Page
HANWHA TECHWIN
150
SM411F
Step Motor Interface (Conveyor Belt)
[
Y
Z
X
iV
i
hV
h
[
Y
Z
X
iV
i
hV
h
[
Y
Z
X
[
Y
Z
X
iV
i
hV
h
[
Y
Z
X
iV
i
hV
h
[
Y
Z
X
Y
X
Y
X
Y
X
[
Y
Z
X
[
Y
Z
X
Y
X
juX
juY
kjGwv~ly
JXGiVk
Y[n
Y[}
SM33_PW001
SM33_PW001
SM41-MD008
SM33_PW001
SM33_PW001
SM41-MD009
jvu}Gils{XGtv{vy
SM41-MD013
jvu}Gils{YGtv{vy
SM41-MD014
juY
juZ
jiXYGz{lwGkyp}ly
X
Y
Z
]
[
_
`
^
ju[
X
Y
Z
\
[
_
^
]
Xwv|{R
Xwv|{T
XwkpyT
Ywv|{R
YwkpyR
YwkpyT
Ywv|{T
XwkpyR
\
XZ
]
^
X[
X]
_
X\
XW
\
\
XZ
]
^
X[
X]
_
X\
[
Y
Z
X
iV
i
hV
h
[
Y
Z
X
iV
i
hV
h
[
Y
Z
X
[
Y
Z
X
iV
i
hV
h
[
Y
Z
X
iV
i
hV
h
[
Y
Z
X
Y
X
Y
X
Y
X
[
Y
Z
X
[
Y
Z
X
Y
X
juX
juZ
kjGwv~ly
JXGiVk
Y[n
Y[}
SM41-MD010
~vyrGils{XGtv{vy
SM41-MD017
~vyrGils{YGtv{vy
SM41-MD018
juY
juZ
~iXYGz{lwGkyp}ly
X
Y
Z
]
[
_
`
^
ju[
X
Y
Z
\
[
_
^
]
Xwv|{R
Xwv|{T
XwkpyT
Ywv|{R
YwkpyR
YwkpyT
Ywv|{T
XwkpyR
X
`
Y
Z
XW
XY
[
XX
XW
\
X
`
Y
Z
XW
XY
[
XX
juZ
^W[Zz
JXGiVk
\
XZ
]
^
X[
X]
_
X\
[
Y
Z
X
iV
i
hV
h
[
Y
Z
X
iV
i
hV
h
[
Y
Z
X
[
Y
Z
X
iV
i
hV
h
[
Y
Z
X
iV
i
hV
h
[
Y
Z
X
Y
X
Y
X
Y
X
[
Y
Z
X
[
Y
Z
X
Y
X
juX
ju\
kjGwv~ly
JXGiVk
Y[n
Y[}
SM33_PW001
SM33_PW001
jvu}Gils{ZGtv{vy
SM41-MD015
jvu}Gils{[Gtv{vy
SM41-MD016
juY
juZ
jiZ[Gz{lwGkyp}ly
X
Y
Z
]
[
_
`
^
ju[
X
Y
Z
\
[
_
^
]
Xwv|{R
Xwv|{T
XwkpyT
Ywv|{R
YwkpyR
YwkpyT
Ywv|{T
XwkpyR
X
`
Y
Z
XW
XY
[
XX
XW
\
X
`
Y
Z
XW
XY
[
XX
juZ
^W[Zz
JYGiVk
SM411F_VM002
SM411F_VM003
^9`
^7`
^8`
^:`
^;`
^<`
^43`
^44`
^45`
^4`
^5`
^6`
^6`
^6`

Page
HANWHA TECHWIN
151
SM411F
Step Motor Interface (Conveyor Belt)
NO. PART NO. PART NAME Q'TY Old No. Stock Apply Reference
1 J90831779C CB/WV_DRV_COMMAND_CABLE_ASSY 1
2 J90831780B CB34_DRV_COMMAND_CABLE_ASSY 1
3 J90831063A MAIN_POWER_CABLE_ASSY SM33-PW001
4 J90831434A CONV_BELT12_MOTOR_PW_CABLE_ASSY SM41-MD0 1
5 J90831436B WORK_BELT12_MOTOR_PW_CABLE_ASSY 1
6 AM03-001869B CABLE ASSY-RY1_MOTOR_PWR 1
7 J90831439B CONV_BELT1_STEP_MOTOR_ASSY 1
8 J90831440B CONV_BELT2_STEP_MOTOR_ASSY 1
9 J90831432B WORK_BELT1_STEP_MOTOR_ASSY 1
10 J90831174C RR_STEP_MOTOR_POWER_CABLE_ASSY 1
11 J90831171B RS_MOTOR_PWR_CABLE_ASSY 1
12 J90831172B RS_MOTOR_ENC_CABLE_ASSY 1

Page
HANWHA TECHWIN
152
SM411F
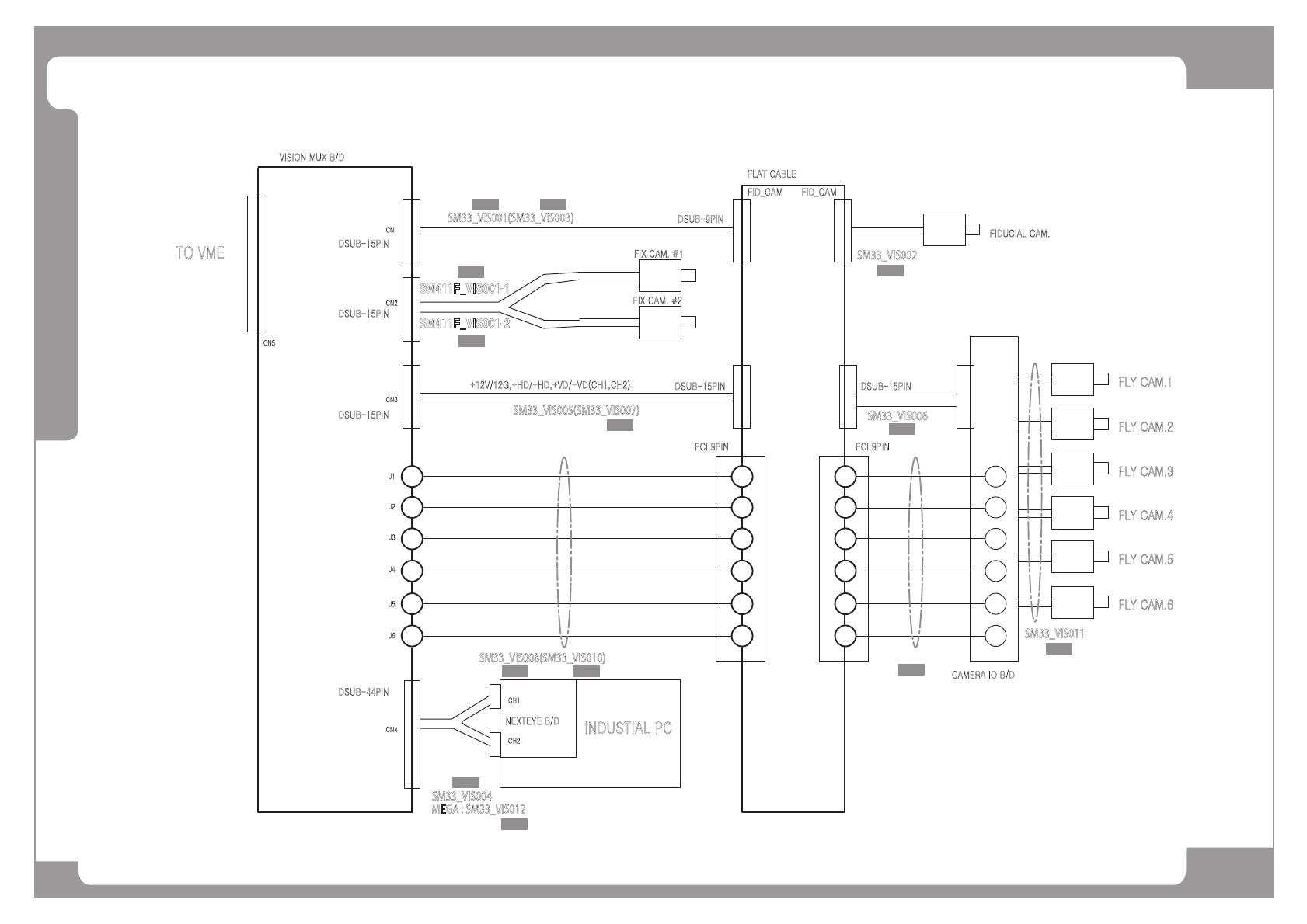
Vision Board Interface
CN5
CN2
CN1
CN3
J1
CN4
J2
J3
J4
J5
J6
CH1
CH2
DSUB-15PIN
DSUB-15PIN
DSUB-15PIN
DSUB-44PIN
FCI 9PINFCI 9PIN
DSUB-15PIN DSUB-15PIN
+12V/12G,+HD/-HD,+VD/-VD(CH1, CH2)
SM33_VIS001(SM33_VIS003)
DSUB-9PIN
FID_CAMFID_CAM
SM33_VIS005(SM33_VIS007)
SM33_VIS002
SM33_VIS008(SM33_VIS010)
SM411-VIS009SM411-VIS009
SM 3 3 _ V I S0 0 6
SM33_VIS004
SM33_VIS011
NEXTEYE B/ D
MEGA : SM33_VIS012
VISION MUX B/D
TO VME
FIX CAM. #1
FIDUCIAL CAM.
INDUSTIAL PC
FLAT C ABLE
CAMERA IO B/D
FLY CAM.1
FLY CAM.2
FLY CAM.3
FLY CAM.4
FLY CAM.5
FLY CAM.6
FIX CAM. #2
[9]
[8]
[11]
[7]
[6]
[1] [2]
[3]
[4] [5]
[10]
SM411F_VIS001-2
SM411F_VIS001-1
[12]
[13]