SM411F_FN_TRM(Ver9.7_CS16.15) - 第178页
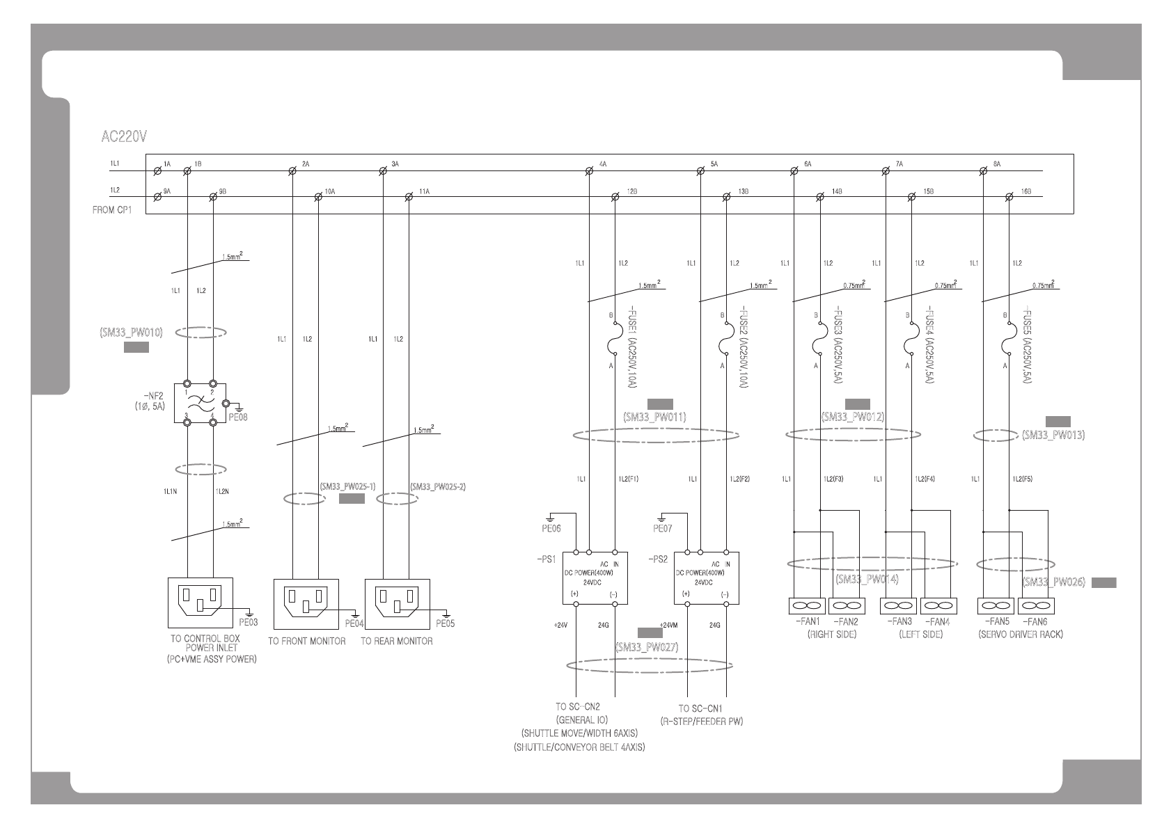
Page HANWHA TECHWIN 166 SM411F Electric Circuit Diagram (3/6) 9A 9B 1A 1B 10A 2A 3A A B 11A 14B 6A 4A A B 12B A B 13B 5A B A 7A 15B A B 16B 8A 1 3 4 2 TO R E A R M O N I TO R ( P C + V ME A S S Y P O WER) T O CON T R OL …

Page
HANWHA TECHWIN
165
SM411F
Electric Circuit Diagram (2/6)
NO. PART NO. PART NAME Q'TY Old No. Stock Apply Reference

Page
HANWHA TECHWIN
166
SM411F
Electric Circuit Diagram (3/6)
9A
9B
1A 1B
10A
2A 3A
A
B
11A 14B
6A4A
A
B
12B
A
B
13B
5A
B
A
7A
15B
A
B
16B
8A
1
3 4
2
TO R E AR M O N I TO R
(PC+VME ASSY POWER)
TO CONTROL BOX
TO FRONT MONITOR
1L1 1L2
FROM CP1
1L2
1L1
1.5mm
(RIGHT SIDE)
-F AN 1
-F AN 2
1L1 1L2(F3)
0.75mm
1L1 1L2
POWER INLET
1L1 1L2 1L1 1L2
-P S 1
1.5mm
1L1 1L2(F1)
1L21L1
-FUSE1 (AC250V,10A)
1.5mm
TO SC-CN2
+24V 24G +24VM 24G
1L1 1L2(F2)
-FUSE2 (AC250V,10A)
1.5mm
1L1 1L2
-P S 2
TO SC-CN1
-FUSE3 (AC250V,5A)
-F AN 3
(LEFT SIDE)
-F AN 4
1L1
1L1
1L2(F4)
-FUSE4 (AC250V,5A)
1L2
0.75mm
(S ER VO DRIVER RAC K)
-F AN 5
-F AN 6
1L2(F5)
-FUSE5 (AC250V,5A)
1L2
0.75mm
1L1
1L1
AC220V
(SM33_PW010)
(SM33_PW011)
(SM33_PW012)
(SM33_PW013)
(GENERAL IO)
(R-STEP/FEEDER PW)
-N F 2
(1Ø, 5A)
1L1N 1L2N
(SHUTTLE/ CONVEYOR BELT 4AXIS)
(S H U TTL E M O V E / W ID TH 6 AX I S )
1.5mm
1.5mm
(SM33_PW025-1)
(SM33_PW025-2)
(SM33_PW027)
(SM33_PW014)
(SM33_PW026)
PE04
2
PE05
2
PE03
DC POWER(400W)
(+)
PE06
(-)
AC IN
2
24VDC
2
DC POWER(400W)
(-)
24VDC
(+)
AC IN
2
PE07
2 2
PE08
2
2
^4`
^5` ^6`
^7`
^8`
^:`
^9`

Page
HANWHA TECHWIN
167
SM411F
Electric Circuit Diagram (3/6)
NO. PART NO. PART NAME Q'TY Old No. Stock Apply Reference
1 J90831072D CONTROL_RACK_POWER_CABLE_ASSY 1 J90831072B
2 J90831073B TB1_PS1_PS2_POWER_CABLE_ASSY SM33-PW011 1 J90831073A
3 J90831074C FAN_POWER_CABLE_ASSY 1 J90831074B
4 J90831075D SERVO_FAN_POWER_CABLE_ASSY 1 J90831075B
5 J90831458C FRONT_MONITOR_POWER_CABLE_ASSY 1 J90831458B
6 J90831089C PS1_PS2_SAFETY_CTRL_CABLE_ASSY 1 J90831089A
7 J90831088B SERVO_FAN_CABLE_ASSY SM33-PW026 1 J90831088A