NPM-WX - 第205页
NPM-WX / WXS 20 24. 0718 - 199 - ( 単位 : mm) ■ 交换台车 ( 17 站 ) 连接时 ■ 单式托 盘 供料器 连接时 / 交换台车 (17 站 ) 单轨传送带规格 双轨传送带规格 单轨传送带规格 双轨传送带规格 17 站交换台车 17 站交换台车 基板传送基准 基板传送基准 ( 后侧轨道 ) 基板传送基准 ( 前侧轨道 ) 17 站交换台车 17 站交换台车 S 托盘供料器 S 托盘供料器 基板…

NPM-WX / WXS 2024.0718
- 198 -
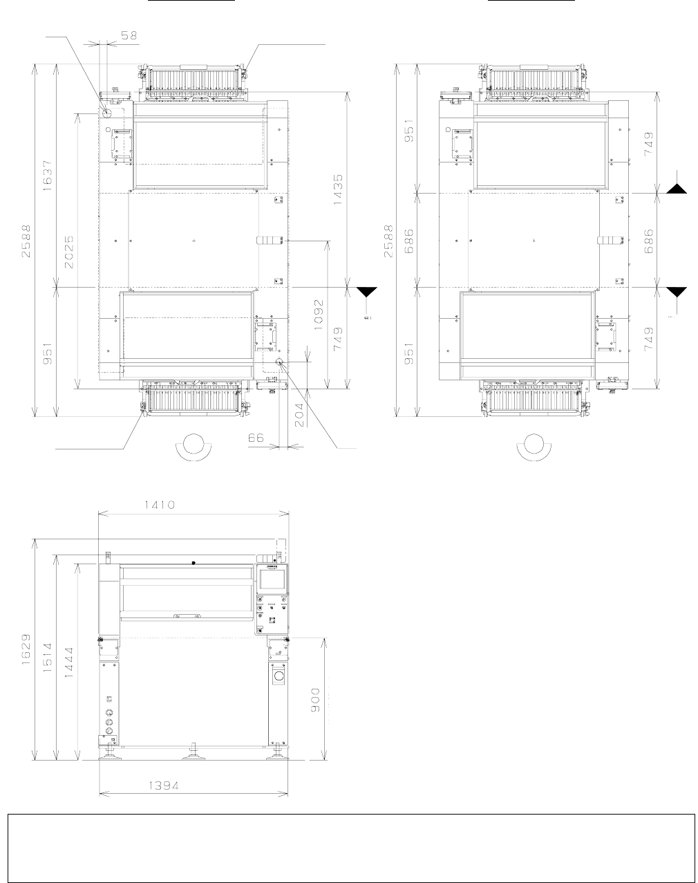
13.
尺寸图
(单位: mm)
■ 交换台车(30站)连接时
Remarks
• 上述示图的缩小比例与实际机器在严格上讲,并不完全一致。
在研讨生产线构成和尺寸时,请另行索取资料。
• 本机下部如有设置通风道等时,请确保与主体间空隙保持 40 mm 以上。
单轨传送带规格
双轨传送带规格
基板传送基准
(后侧轨道)
基板传送基准
(前侧轨道)
Air
30 站交换台车
30 站交换台车
基板传送基准
电源
(传送带长度)
基板传送高度
(罩外形)

NPM-WX / WXS 2024.0718
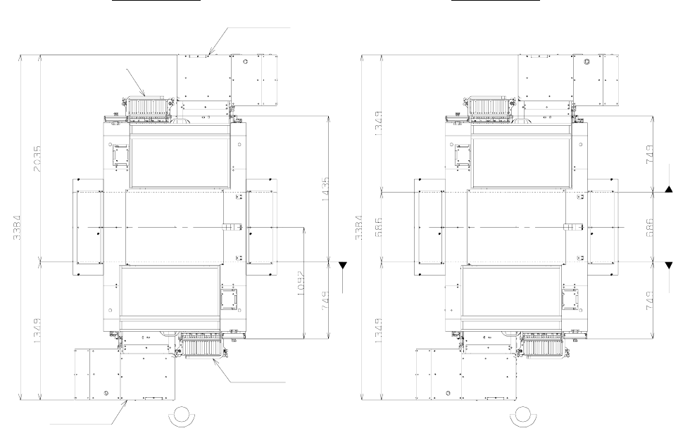
- 199 -
(単位: mm)
■
交换台车(
17
站
)
连接时
■
单式托盘供料器连接时
/
交换台车
(17
站
)
单轨传送带规格
双轨传送带规格
单轨传送带规格
双轨传送带规格
17 站交换台车
17 站交换台车
基板传送基准
基板传送基准
(后侧轨道)
基板传送基准
(前侧轨道)
17 站交换台车
17 站交换台车
S 托盘供料器
S 托盘供料器
基板传送基准
(后侧轨道)
基板传送基准
(前侧轨道)
基板传送基准

NPM-WX / WXS 2024.0718
- 200 -
(
单位
: mm)
■
连接托盘储存器时
单轨传送带规格
双轨传送带规格
托盘储存器
17 站交换台车
17 站交换台车
托盘储存器
基板传送基准
(后侧轨道)
基板传送基准
基板传送基准
(前侧轨道)