NPM-WX - 第209页
NPM-WX / WXS 20 24. 0718 - 203 - ( 单位 : mm) ■ 连接单 式托盘 供料器时 / C -Cart34C Remarks • 上述示图的缩小比例与 实际机器在严 格上讲,并不完全 一致。 在研讨生产线构成和尺 寸时,请另行 索取资料。 • 本机下部如有设置通风 道等时,请确 保与主体间空隙 保持 40 mm 以上。 单轨传送带规格 双轨传送带规格 单式托盘供料器 单式托盘供料器 基板传送…

NPM-WX / WXS 2024.0718
- 202 -
(
单位
: mm)
■
连接
C-Cart34C
时
Remarks
•
上述示图的缩小比例与实际机器在严格上讲,并不完全一致。
在研讨生产线构成和尺寸时,请另行索取资料。
• 本机下部如有设置通风道等时,请确保与主体间空隙保持 40 mm 以上。
单轨传送带规格
双轨传送带规格
基板传送基准
基板传送基准
(后轨道)
基板传送基准
(前轨道)

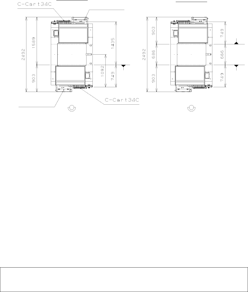
NPM-WX / WXS 2024.0718
- 203 -
(
单位
: mm)
■
连接单式托盘供料器时
/ C-Cart34C
Remarks
•
上述示图的缩小比例与实际机器在严格上讲,并不完全一致。
在研讨生产线构成和尺寸时,请另行索取资料。
•
本机下部如有设置通风道等时,请确保与主体间空隙保持
40 mm
以上。
单轨传送带规格
双轨传送带规格
单式托盘供料器
单式托盘供料器
基板传送基准
基板传送基准
(前轨道)
基板传送基准
(后轨道)

NPM-WX / WXS 2024.0718
- 204 -
(
单位
: mm)
■
调整螺栓的配置图
单轨传送带规格
双轨传送带规格
基板传送基准
电源
电源
基板传送基准
(后侧轨道)
基板传送基准
(前侧轨道)