NPM-WX - 第210页
NPM-WX / WX S 20 24. 0718 - 204 - ( 单位 : mm) ■ 调整螺 栓的配 置图 单轨传送带规格 双轨传送带规格 基板传送基准 电源 电源 基板传送基准 ( 后侧轨道 ) 基板传送基准 ( 前侧轨道 )

NPM-WX / WXS 2024.0718
- 203 -
(
单位
: mm)
■
连接单式托盘供料器时
/ C-Cart34C
Remarks
•
上述示图的缩小比例与实际机器在严格上讲,并不完全一致。
在研讨生产线构成和尺寸时,请另行索取资料。
•
本机下部如有设置通风道等时,请确保与主体间空隙保持
40 mm
以上。
单轨传送带规格
双轨传送带规格
单式托盘供料器
单式托盘供料器
基板传送基准
基板传送基准
(前轨道)
基板传送基准
(后轨道)

NPM-WX / WXS 2024.0718
- 204 -
(
单位
: mm)
■
调整螺栓的配置图
单轨传送带规格
双轨传送带规格
基板传送基准
电源
电源
基板传送基准
(后侧轨道)
基板传送基准
(前侧轨道)

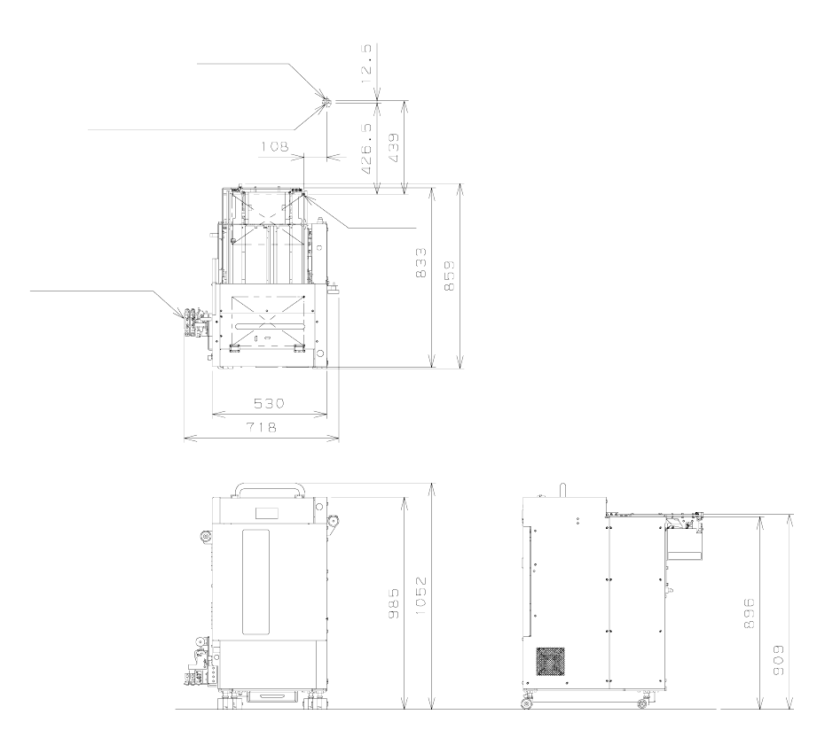
NPM-WX / WXS 2024.0718
- 205 -
■ 单式托盘供料器
(单位: mm)
※托盘供料器高度 896 mm,是 NPM-W2 的基板搬送高度是 900 mm 时的标准值。
可调整范围是: 896 mm
+65
-16.5
机器中心
基板中心(750X661mm 基板)
托盘基准点
托盘供料器连接部
(脚轮和导销之间)
(安装线高度)