X-Serie S_705 - 第76页
76 Technical data Spacing distances with WPC All dimensions in mill imeters.

75
Technical data
Spacing distances with MTC
All dimensions in millimeters.

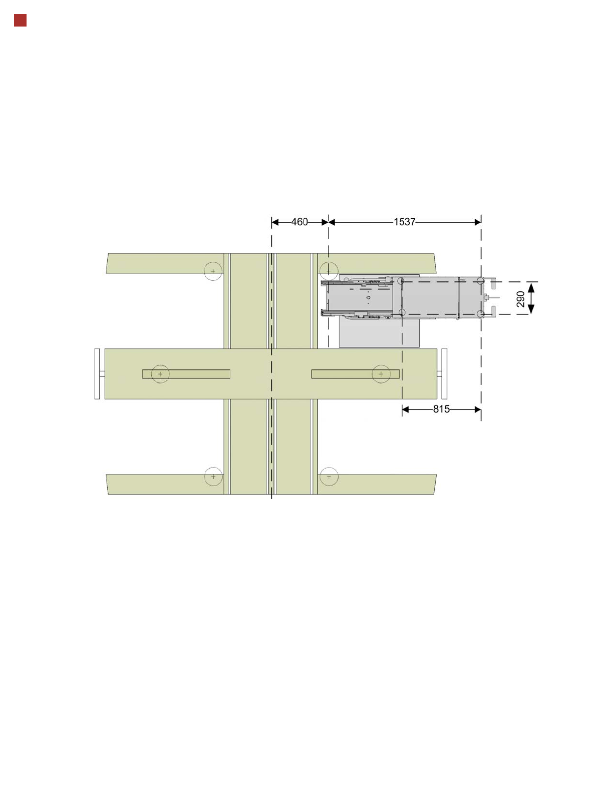
76
Technical data
Spacing distances with WPC
All dimensions in millimeters.

77
Technical data
Dimensions with JTF-S/JTF-M
All dimensions in millimeters.