文档中心
/
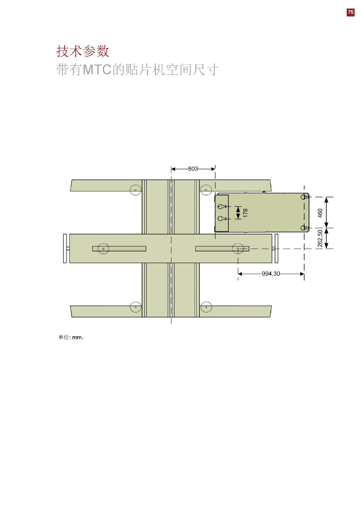
Specification_SIPLACE XS 2014年中文版
Specification_SIPLACE XS 2014年中文版 - 第75页
在线预览 Specification_SIPLACE XS 2014年中文版 PDF 文档。
目录
100%
显示:宽度
宽度
1 / 88
回到旧版
旧版
?
该页面需要启用 JavaScript 才能进行交互式预览。