yhp-2_e - 第32页
PAGE 16 Wiring parts list (FF & FD Head) KGK-0306 No Part No. Part Name Q'ty Remarks No Part No. Part Name Q'ty Remarks 77 KH1-M6185-00X FAN MOTOR ASSY 1 FAN1 78 KGA-M6185-00X FAN MOTOR ASSY 2 FAN2,FAN3 79 …

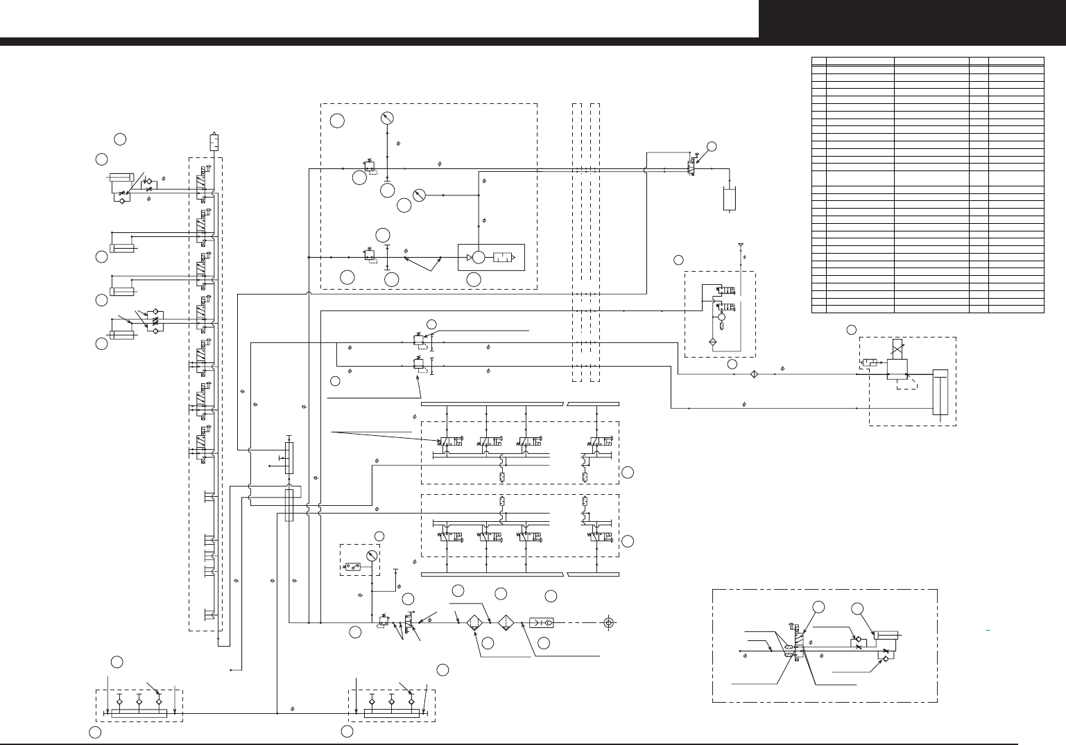
PAGE 14
YHP-2 (KGK) FD
Air circuit
8-30D3
30PM
3/8" M-F ELBOW
F300-03-BG-A
MF300-03-A
300V-03
R300-03
GS1-50-DL-41W
BDADS 10X10
YMDAL 16X30
YMDA 16X35
AP33A KEYENCE
AP34A KEYENCE
YMDAS 10X20
IR2020-02 SMC
PR100 KOGANEI
ME12 KOGANEI
GM1/8
MODULE ADAPTER
JOINT
JOINT
AIR FILTER
MIST FILTER
EXHAUST VALVE
REGULATOR
PRESURE GAUGE
VALVE
MANUFOLD
PLUG 1 (R 1/8)
VALVE ASSY *
VALVE
AIR CYLINDER ASSY.
CYL.,YMDAL 16X30
CYL.,YMDA16X35
SENSOR,1-8
SENSOR,1-7
VALVE ASSY
CYLINDER ASSY
AQUMRATE REGULATOR
REGURALOR
MICRO EJECTOR
PLUG,SCREW
PRECISION REGULATOR
AQUMLATE REGULATOR
MICRO EJECTOR
FORCE CONTROL UNIT
FILTER
KG7-M8503-000
KG7-M8512-000
KG7-M8513-000
KG7-M8501-000
KG7-M8502-000
KH5-M8501-000
KG7-M8504-001
KG7-M8596-002
KM0-M8582-000
KM0-M1141-000
K40-M8598-000
KGA-M3410-*00
KV8-M7535-010
KV7-M9612-001
KGK-M9283-000
KV7-M9283-000
KW7-M8586-000
KW7-M655G-000
KV6-M7171-000
KV8-M7522-010
KM4-M8588-001
KU4-M8591-000
K40-M8527-000
K11-M1578-000
KW7-M8332-B0X
KM4-M8588-00X
KGK-M8160-00X
KGK-M8351-00X
KGK-M8350-00X
300V-03
KM23
KM-11
F300-03
-BG-A
R300-03
SL12-03
GS1-50
-DL-41W
SLY10-03
TL4-02
TSH4-M5
USD10-8
YMDA 16X35
YMDAL 16X30
SC4-M5A
SSU4
YMDA 16X35
YMDAL 16X30
SL4-M5
SL4-M5
MANUHOLD
KGK-M1141-000
MANUHOLD
KGK-M1141-000
TSS4-01 TSH8-01
PLUG
K40-M8598-000
BF4
BF4
TL8-01TT8-01
stn.20
stn.1 stn.2 stn.3
KM-06KM-06
20123
TSS4-01
TSH8-01
PLUG
K40-M8598-000
BF4
BF4
TL8-01TT8-01
stn.120
stn.101
stn.102 stn.103
KM-06KM-06
120101 102 103
UY8
SL8-01
ATS
UC4
UY4
HI-CAPPLER
PLUG 30PM
12
(ORANGE)
SL4-M5
BDADS 10X10-ZC130A2
SL4-M5
YMDA 16X35
SL4-M5
USD10-8
UED8-4
UP8
UP4
LIGHT
YMDAS 10X20-ZE135A2
VALVE ASSY 20-R
KGA-M3410-200
SL12-03
VALVE ASSY 20-L
KGA-M3410-400
VALVE ASSY 8-R
KGA-M3410-800
UP4
UP4
UP4
UP4
UP4
UP4
UT10
PRESSURE ADJUST BOX
SMC
IR2020-02
SL10-02
SL10-02
AP33A
TS4-01
AP34A
TL4-01
TL8-01
PR100
TL4-01
TL4-01
UT4
ME12
UB10
US4US4 UL4
US4
SL10-02
SL4-M5
TS4-02
TSR8-01
(TSR6-01)
TS8-02
UL4
US4
UL10US10 US10
Y-AXIS
X-AXIS
4(ORANGE)
TS4-01
USD10-8
TL4-01
UP4
UP4
TL4-01
TL6-01
TL4-01
TL6-02
TL4-02
UYD8-6
UL10US10 US10
A010E1-PLL-59W
TB4-M5
MICRO EJECTOR
ME07MA-032WY
KGK-M8160-000
TLR4-M5
SL8-01
USD10-8
UL4US4 US4
UL4US4 US4
PLF050
TSH4-M5
TSH4-M5
4(CLEAR)
TSH4-M5
TSH4-M5
FORCE CONTROL UNIT
KGK-M8351-00X
US4
4(ORANGE)
PA
R
13
4
8-30D3
15
12
13
11
10
1
M-F ELBOW3/8"
2
3
5
6
8
9
12
11
16
15
15
SC4-M5A
SC4-M5A
KM-03
BF4BU-M3
US4
UEF4BU-M3
19
18
MF300-03-A
23
25
21
22
24
26
26
26
27
28
29
30
31
32
MAIN STOPPER
SUB STOPPER
EXIT STOPPER
NOZZLE STN.
CLAMP
4(ORANGE)
4
(BLACK)
040M12AJ 1~7 A040
-4E1-PLL 8~12 BP
4(ORANGE)
4(ORANGE)
4(CLEAR)
4(ORANGE)
4(YELLOW)
4(YELLOW)
10(ORANGE)
6(ORANGE)
6(ORANGE)
PRECISION REGULATOR/PR100
KW7-M8332-B0X
4(CLEAR)
HEAD 1
HEAD 1
AME07-E2-12W
FEEDER PLATE
FEEDER PLATE
VALVE (for spare)
KGA-M37P1-000
AQUMRATE REGULATOR/IR2020
KM4-M8588-00X
4(BLACK)
4(BLACK)
8(ORANGE)
8(ORANGE)
AIR SOURCE
4
(ORANGE)
4(ORANGE)
8(ORANGE)
8(ORANGE)
8(ORANGE)
10(ORANGE)
8(ORANGE)
10(ORANGE)
10(ORANGE)
4(ORANGE) 4(ORANGE)
4(BLACK)
LIGHT
UP/DOWN
LIGHT
No. PART NO. PART NAME Q'TY REMARKS
1
2
4
5
6
1
7
8
9
10
11
12
13
16
15
2
20
21
22
23
24
25
26
27
28
29
1
1
1
1
1
1 or 2
1 or 2
*
*
1
*
1
1
14
3
1
17
18
19
1
1
1
1
1
1
1
6
1
1
30
1
31
1
32
1

PAGE 15
Wiring parts list (FF & FD Head)
KGK-0306
No Part No. Part Name Q'ty Remarks No Part No. Part Name Q'ty Remarks
1 KM5-M661E-00X HNS,QF-TM11 1 J003 39 KGK-M669K-03X HNS,FEEDER 16 1 J207
2 KGA-M662E-02X HNS,TC11-QF XT21 1 J011 40 KGK-M669M-03X HNS,FEEDER 8 2 J207,J208
3 KM6-M661J-00X HNS,TM11-QF31 1 J014 41 KGK-M669K-03X HNS,FEEDER 16 1 J209
4 KM6-M661K-00X HNS 1-7 (QF31-NF11) 1 J015 42 KGK-M669M-03X HNS,FEEDER 8 1 J210
5 KGA-M662M-00X HNS,U10 JUMPER 1 J016 43 KGK-M66W4-05X HNS,I/O WAFFLE TRAY 1 J215
6 KM6-M661L-00X HNS 1-8 (NF11-KM11) 1 J018 44 KGK-M669E-02X HNS,PATLITE 1 J219
7 KM6-M66M4-00X HNS 18-4 (JUMPER) 1 J019 45 KGK-M668N-02X HNS,I/O CONV.CN28 1 J221
8 KGK-M662A-01X HNS,C/R POWER 1 J021 46 KW3-M66GX-00X HNS,PRE.INTERFACE 1 J222
9 KGK-M667L-02X HNS,I/O CONV.FAN 1 J022 47 KV7-M66V6-00X HNS,24-6 (CONTACT) 1 J223,J224
10 KGK-M662U-03X HNS,I/O CONV.KM10 1 J024 48 KV7-M66V5-01X HNS,24-5(NEXT) 1 J223:Short
11 KGK-M662W-02X HNS,LED DRIVER +24V 1 J040 49 KV7-M66V4-01X HNS,24-4(PREVIOUS) 1 J224;Short
12 KGK-M661U-02X HNS,I/O HEAD TF +24V 1 J041 50 KGK-M668T-02X HNS,I/O CONV.CN11 1 J225
13 KGK-M662H-02X HNS,IF CALIB +24V 1 J042 51 KGK-M669J-02X HNS,I/O CONV.CN17 1 J227
14 KGK-M662E-03X HNS,CONV.MTR PWR 1 J046 52 KGK-M668X-02X HNS,PU-AXIS BRAKE 1 J228
15 KGA-M662X-00X HNS,HNS,QF22-GS21 1 J047 53 KGK-M668L-03X HNS,I/O CONV.CN27 1 J229
16 KGK-M662Y-02X HNS,+24V POWER(GS21) 1 J048 54 KGK-M668E-03X HNS,CONVEYOR SENSOR 1 J252
17 KGA-M662K-01X HNS,CRT POWER 2 J049,J050 55 KGK-M668F-02X HNS,I/O CONV.CN30 1 J254
18 KG2-M536A-22X HNS,PE 150 5 J083-J087 56 KGK-M668A-03X HNS,ORG OT DI 1 J258
19 KK1-M664J-01X HNS,PE 1000 1 J089 57 KGA-M6640-00X HNS,SWITCHER IN1 ASS 1 J261
20 KGK-M664A-02X HNS,I/O CMN 1 J101 58 KGA-M6640-10X HNS,SWITCHER IN2 ASS 1 J262
21 KGK-M664F-04X HNS,I/O HEAD CMN OT 1 J103 59 KGA-M669E-01X HNS,MSP IN 1 J271
22 KGK-M664L-03X HNS,CONV.MTR DRIVER 1 J107 60 KGA-M669H-11X MSP SHORT ASSY 1 J272
23 KGK-M664M-00X HNS,CONV.MOTOR 1 J108 61 KGA-M669G-01X HNS,USB2 1 J273
24 KG2-M669R-11X HNS,9-11 1 J109 62 KGA-M669E-01X HNS,MSP IN 1 J274
25 KU8-M66F5-10X HNS,VGA 1.5M 1 J112 63 KGA-M669H-11X MSP SHORT ASSY 1 J275
26 KU8-M66F5-30X HNS,VGA 3M 1 J113 64 KGK-M66F0-00X C.CABLE ASSY 1
J503(1st)/J504(2nd
)
27 KU8-M66F5-50X HNS,VGA 5M 1 J115 65 KV7-M66N2-00X HNS,LIGHT2 1
J507(1st)/J514(2nd
)
28 KGK-M667G-03X HNS,I/O CONV.CN26 1 J161 66 KV7-M66N3-00X HNS,LIGHT3 1
J508(1st)/J510(2nd
)
29 KGK-M667F-03X HNS,I/O CONV.CN37 1 J167 67 KGA-M66N4-00X HNS,LIGHT4 1
J509(1st)/J516(2nd
)
30 KGK-M668G-02X HNS,OPERATION SW 1 J181 68 KV7-M66N5-00X HNS,LIGHT5 1 J511
31 KGK-M668G-02X HNS,OPERATION SW 1 J182 69 KGK-M66W7-00X HNS,FDR.FLOAT +24V 0 J725
32 KGA-M669V-03X HNS,SWITCH ACTIVE 1 J189 70 KV7-M66N6-00X HNS,LIGHT6 1 M.LIGHT
33 KGA-M669V-13X HNS,SWITCH READY 1 J190 71 KV7-M66N7-00X HNS,LIGHT7 1 M.LIGHT
34 KGA-M669V-24X HNS,SWITCH START 1 J191 72 KGA-M5180-01X PROG.UNIT 0 A08; MSP UNIT
35 KGA-M669V-32X HNS,SWITCH STOP 1 J192 73 KW3-M5150-00X KEYBOARD J 2 A10(F),A11(R)
36 KGA-M669V-42X HNS,SWITCH ERR. CLR. 1 J193 74 KW3-M5150-10X KEYBOARD E 2 A10(F),A11(R)
37 KGA-M669V-53X HNS,SWITCH RESET 1 J194 75 KW3-M5169-00X MOUSE 2 A12(F),A13(R)
38 KW3-M66GW-00X HNS,NEXT INTERFACE 1 J201 76 KW8-M5119-00X MONI.15"COLOR ASSY 2 CRT1,CRT2

PAGE 16
Wiring parts list (FF & FD Head)
KGK-0306
No Part No. Part Name Q'ty Remarks No Part No. Part Name Q'ty Remarks
77 KH1-M6185-00X FAN MOTOR ASSY 1 FAN1
78 KGA-M6185-00X FAN MOTOR ASSY 2 FAN2,FAN3
79 KV7-M6561-00X POWER SUPPLY 1 1
GS21; POWER SUPPLY 300W
80 KGK-M4899-00X WHITE LIGHT 1 ASSY 1 HL11
81 KGA-M537G-00X CONTACTOR,1 1 KM10
82 KGK-M537G-00X CONTACTOR,1 1 KM10A,2a
83 KV2-M537A-00X NOIZE FILTER 1 NF11
84 KM5-M6510-00X BRAKER ASSY 1
85 KM6-M6514-00X CIRCUIT PROTECTOR,4 1 QF11
86 KM6-M6513-50X CIRCUIT PROTECTOR,3 2 QF21,QF22(MD5A-1P)
87 KH1-M539M-40X PROTECTOR ACCESSARY 2 QF21,QF221
88 KH4-M6514-00X CIRCUIT PROTECTOR 4 1 QF31(MD10A-3P)
89 KM6-M539M-00X PROTECTOR ACCESSORY 1 QF31
90 KM5-M6554-10X MAIN SWITCH 1 QS11
91 KG2-M6573-10X SPARK KILLER ASSY,2 1 S10
92 KGK-M5138-00X SWITCH EMG ASSY 2 SB11,SB12
93 KGA-M921G-00X SENSOR,ORG 1 SQ003; PU ORG
94 KG9-M3455-30X SENSOR,S(L=500) 1 SQ042A
95 KH5-M3456-30X SENSOR,R(L=800) 1 SQ042B
96 KGA-M3455-11X SENSOR ASSY(L=300) 1 SQ043A-C
97 KW7-M5126-00X SAFETY SWITCH 2 SQ150,SQ151
98 KGA-M5318-10X POWER,TRANSFORMER 1 TC11; 0.75KVA
99 KV8-M5328-00X POWER TRANSFORMER 1 TM11; 2.48KVA
100 KG2-M643A-00X PARTS 3-1 2 XT21
101 KGA-M3410-40X VALVE ASSY.20-L 1 YV101-120,YV201-220
102 KGA-M3410-80X VALVE 8-R 1
YV101-YV108,YV201-YV208
103 KGA-M3410-20X VALVE ASSY.20-R 1 YV133-152,YV233-252
104 KGK-M4570-01X I/O HEAD BOARD ASSY 1 P21
105 KGA-M4472-00X SWITCHER BOARD ASSY 1 P31
106 KGK-M4580-01X I/O CONV. BOARD ASSY 1 P40
107 KV1-M6474-01X KV1 LED DRIVER ASSY 1 P80(1st)/P81(2nd)
108 KGN-M4230-00X FLASH BOARD ASSY 1 P5
109 KGE-M663K-01X HNS,DIS.BOX-XT21 1 J032
110 KGK-M66JH-01X HNS,LASER CONT.CMN 1 J325
111 KGK-M66JL-02X HNS,I/O HEAD CN31 1 J328
112 KGK-M66T2-03X HNS,HEAD THERMO SEN. 1 J332
113 KGK-M669F-02X HNS,I/O CONV.DOT ST. 1 J704
114 KGE-M6513-00X CIRCUIT PROTECTOR,3 1 QF23(MD1A-1P)