yhp-2_e - 第15页
PAGE 13 YHP-2 (KGK) FF Fix 8 feeder structure A1 2 3 45678 DUMP1 YV101 KGK-M4580-xxx J207 YV108 VALVES +24V 9 A1 2345678 YV101 YV108 VALVES +24V 9 FIX8 FRONT-2 FEEDER FIX8 FRONT-1 FEEDER I/O CONVEYOR BOARD ASSY P40 CN3…

PAGE 12
YHP-2 (KGK) FF
Feeder structure
VALVES
A1 2 3 45678 2345678B1 2 3 4
+24V +24V +24V
YV101 YV108 YV109 YV116
YV117
YV120
99
FIX20 FRONT FEEDER
KGK-M4580-xxx
I/O CONVEYOR BOARD ASSY P40
J208
J210
J209
J207
5678
A123456782345678B1234
VALVES
+24V +24V +24V
99
YV240
YV237
YV236 YV229 YV228 YV221
FIX20 REAR FEEDER
5678
DI5
DO6,7
DO4,5
DO2,3
DO0,1
CN7
CN2
CN30
CN6
CN1
CN7
CN2
CN30
CN6
CN1
J254
9
A1
A1
9
DUMP2
DUMP1
DOT STATION
See Page 4

PAGE 13
YHP-2 (KGK) FF
Fix 8 feeder structure
A1 2 3 45678
DUMP1
YV101
KGK-M4580-xxx
J207
YV108
VALVES
+24V
9
A1 2345678
YV101 YV108
VALVES
+24V
9
FIX8 FRONT-2 FEEDERFIX8 FRONT-1 FEEDER
I/O CONVEYOR BOARD ASSY P40
CN30
J254
CN1
DO0,1
CN1
DI5
CN30
DOT STATION
See Page 4
DO2,3
CN6
CN6
J208
DUMP2

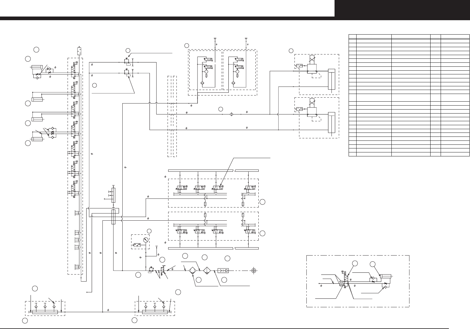
PAGE 14
YHP-2 (KGK) FF
Air circuit
300V-03
KM23
8(ORANGE)
8(ORANGE)
KM-11
040M12AJ 1~7 A040
-4E1-PLL 8~12 BP
F300-03
-BG-A
R300-03
SL12-03
GS1-50
-DL-41W
SLY10-03
TL4-02
TSH4-M5
USD10-8
YMDA 16X35
YMDAL 16X30
MAIN STOPPER
SUB STOPPER
EXIT STOPPER
NOZZLE STN.
CLAMP
SC4-M5A
SSU4
YMDA 16X35
YMDAL 16X30
SL4-M5
SL4-M5
MANUHOLD
KGK-M1141-000
MANUHOLD
KGK-M1141-000
TSS4-01
TSH8-01
PLUG
K40-M8598-000
BF4
BF4
TL8-01TT8-01
stn.20stn.1 stn.2 stn.3
KM-06KM-06
20123
TSS4-01
TSH8-01
PLUG
K40-M8598-000
BF4
BF4
TL8-01TT8-01
stn.120
stn.101
stn.102 stn.103
KM-06KM-06
120101 102 103
8(ORANGE)
4 (ORANGE)
4
(BLACK)
UY8
ATS
SL8-01
UC4
UY4
HI-CAPPLER
PLUG 30PM
(ORANGE)
10(ORANGE)
4
(ORANGE)
8(ORANGE)
SL4-M5
BDADS 10X10-ZC130A2
SL4-M5
YMDA 16X35
10(ORANGE)
SL4-M5
USD10-8
UED8-4
UP8
UP4
LIGHT
LIGHT
UP/DOWN
LIGHT
YMDAS 10X20-ZE135A2
VALVE ASSY 20-R
KGA-M3410-200
SL12-03
VALVE ASSY 20-L
KGA-M3410-400
VALVE ASSY 8-R
KGA-M3410-800
UP4
UP4
UP4
UP4
UP4
UP4
US10
USD10-8
UL10
Y-AXIS
X-AXIS
UP4
A010E1-PLL-59W
4(CLEAR)
4(CLEAR)
TB4-M5TB4-M5
MICRO EJECTOR
ME07M2A-030W
KGA-M8182-000
SL8-01
TLR4-M5TLR4-M5
HEAD 2HEAD 1
TSH4-M5
TSH4-M5
PLF050
UY4
UY4
TSH4-M5
TSH4-M5
TSH4-M5
TSH4-M5
4(CLEAR)
4(ORANGE)
8(ORANGE)
TL6-01
TL4-01
TL4-01
UP4
UP4
TL4-01
TL6-02
TL4-02
4(CLEAR)
4(ORANGE)
UL4
US4
UL4
US4
UYD8-6
8(ORANGE)
6(ORANGE)
6(ORANGE)
FORCE CONTROL UNIT
KGK-M8351-00X
US10
US4
US4
No. PART NO. PART NAME
Q'TY
REMARKS
1
2
4
5
6
1
7
8
9
10
11
12
13
16
15
2
20
21
22
23
24
25
26
27
28
29
1
1
1
1
1
1 or 2
1 or 2
*
*
*
1
1
14
3
1
17
18
19
1
8-30D3MODULE ADAPTER KG7-M8503-000
30PM KG7-M8512-000 JOINT
KG7-M8513-000
KG7-M8501-000
KG7-M8502-000
KH5-M8501-000
KG7-M8504-001
KG7-M8596-002
KM0-M8582-000
KM0-M1141-000
K40-M8598-000
KGA-M3410-*00
JOINT
AIR FILTER
MIST FILTER
EXHAUST VALVE
REGULATOR
PRESURE GAUGE
VALVE
MANUFOLD
PLUG 1 (R 1/8)
VALVE ASSY *
3/8" M-F ELBOW
F300-03-BG-A
MF300-03-A
300V-03
R300-03
GS1-50-DL-41W
KV8-M7535-010
KV7-M9612-001
KGK-M9283-000
VALVE
AIR CYLINDER ASSY.
CYL.,YMDAL 16X30
BDADS 10X10
YMDAL 16X30
KV7-M9283-000 CYL.,YMDA16X35 YMDA 16X35
KV8-M7522-010 CYLINDER ASSY
1
YMDAS 10X20
1
KW7-M8332-B0X
PRECISION REGULATOR
KM4-M8588-00X
1
AQUMRATE REGULATOR
KGA-M8182-00X
1
MICRO EJECTOR
KGK-M8351-00X
2
FORCE CONTROL UNIT
KGK-M8350-00X
1
FILTER
PA
R
PA
R
13
4
8-30D3
15
12
13
11
10
1
M-F ELBOW3/8"
2
3
5
6
8
9
12
11
16
15
15
SC4-M5A
SC4-M5A
KM-03
BF4BU-M3
US4
UEF4BU-M3
19
18
MF300-03-A
VALVE (for spare)
KGA-M37P1-000
PRECISION REGULATOR/PR100
KW7-M8332-B0X
AQUMRATE REGULATOR/IR2020
KM4-M8588-00X
21
22
24
23
25
4(BLACK)
4(BLACK)
HEAD 1
HEAD 2
FEEDER PLATE
FEEDER PLATE
AIR SOURCE
4(ORANGE)
12
8(ORANGE)
4(ORANGE) 4(ORANGE)
4(BLACK)
AME07-E2-12W