yhp-2_e - 第6页
PAGE 4 YHP-2 (KGK) FF I/O conveyor (2/3) CN25 J258 DI0 CN25 J161 DI1 CN26 CN26 J229 DI2 CN27 CN27 N00624 N00625 J221 CN28 CN28 GATE CAMERA UNIT See Page 8 J252 DI4 CN29 CN29 J254 DI5 CN30 CN30 DUMP1 DUMP2 EXIT2 CONV EXIT…

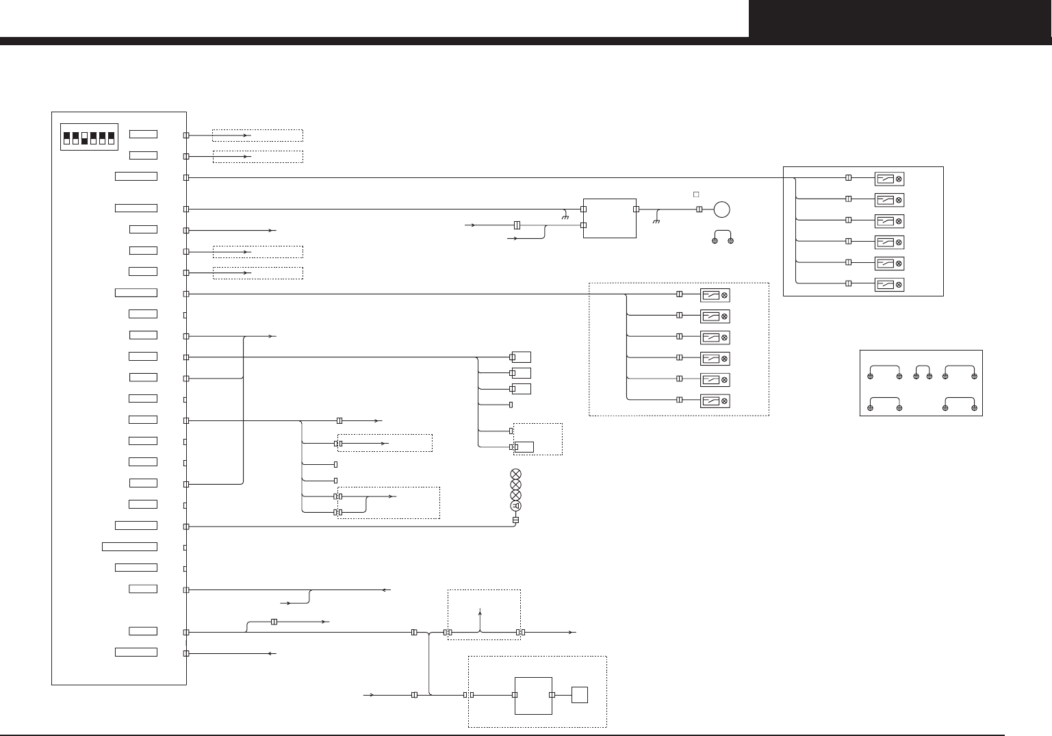
PAGE 3
YHP-2 (KGK) FF
I/O conveyor (1/3)
J207
J209
CN1
CN2
CN1
CN2
DO0,1
DO4,5
F.FEEDER(OPTION)
See Page 12,13
R.FEEDER(OPTION)
J181
CN3
F.O.PANEL
CN3
J107
CN4
CN4
C/V MOTOR
F.RESET
F.READY
F.ERROR
CLEAR
F.STOP
SB26
SB25
SB24
SB23
SB22
F.ACTIVE
SB21
F.START
J183
J185
J186
J187
J184
J188
ERR.CLR.
START
STOP
READY
RESET
ACTIVE
N00660/T00241
N00661/T00242
N00662/T00243
N00663/T00244
N00664/T00245
N00665/T00246
CN2
CN3
CN2
CN3
CN1
CN1
GS21(+24V)
J48
J46
CONV+24V
See Page 9
J108
CONVEYOR MOTOR 30W
M9
UCM
J74
J228
See Page2
CN5
CN5
J208
J210
CN6
CN7
CN6
CN7
DO2,3
DO6,7
F.FEEDER(OPTION)
See Page 12,13
R.FEEDER(OPTION)
R.O.PANEL
CN8
CN8
CN9
BRAKE
DO9
SB36
SB35
SB34
SB33
SB32
SB31
R.ACTIVE
R.STOP
R.ERROR
CLEAR
R.READY
R.RESET
R.START
J189
J191
J192
J193
J190
J194
REAR OPERATION PANEL (OPTION)
ERR.CLR.
START
STOP
READY
RESET
ACTIVE
N00666/T00247
N00667/T00250
N00670/T00251
N00671/T00252
N00672/T00253
N00673/T00254
J182
J225
CN11
CN11
DO10
MAIN
STOPPER
YV20
STOPPER OF
ENTRANCE
YV25
YV26
T00220
T00221
T00222
CN13
CN10
DI7
CN12
DO14
DO18
WAFFLE TRAY,DIPPING UNIT,SWITCHER BOARD
KM10A(+24V,+24E)
See Page 5
CN10
CN12
T00223
STOPPER OF
EXIT
J215
BACK UP
VACUUM
T00224
T00227
NOZZLE ST.
YV12
RELEASE
NOZZLE STATION (OPTION)
PU-AXIS BRAKE
FRONT OPERATION PANEL
CONVEYOR MOTOR
DRIVER A2
See Page 4,5,7
J227
DO11
CN14
CN14
J704
DOT STATION
See Page 4
DOT STATION(OPTION)
J516
LDC2 UP
See Page 8
D CAM2(OPTION)
LDC2 UP
LDC2 UP
LDC1 UP
LDC1 UP
J509
See Page 8
AMF1
AMF2
T00232
T00233
DO13
DO16
CN17
CN17
CN18
DO17
DO19
CN15
CN16
HL11
HL11
BUZZER
RUN(GREEN)
ALARM(RED)
ERROR(YELLOW)
T00201
T00200
T00202
T00206
SIG.TOWER
CN19
J219
CN19
CPU WRITE
Lattice WRITE
CN20
CN21
J101
CONTROL BOX(I/O A)
See Page 2
2ND LMT
J171
J103
See Page 6
YWF
See KGP-000-CNx Page 1
COM1
COM2
See Page 5
See Page 5
J42
CALIB+24V
I/O HEAD(CN28)
YWF(OPTION)
I/O
LDCL1
SQ800
CN2
CN2
CALIBRATION UNIT(OPTION)
I/O I/O
I/O I/O
J661
J104
See Page 6
I/O HEAD(CN27)
CN22
CN22
CN23
CN23
I/O CONVEYOR (CN40)
I/O CONVEYOR (CN40)
J48
See Page 9
DC24V IN
CN24
CN24
GS21(+24V)
See Page 12
See Page 12
CONV1 FG
NOZZLE ST.
UP
T00234T00234
T00235 T00235
42 MAX 3000rpm
COVER EARTH
FRONT RIGHT
REAR RIGHT
J83
J85
I/O CONVEYOR BOARD ASSY P40
J106
CN1
KGK-M4528-xxx
CALIBRATION BOARD
ASSY P50
CALIB
CALIB
J709
KGK-M4580-xxx(1/3)
J87
CD-ROM COVER
REAR LEFT
FRONT LEFT
J84
J86
345216
ON
DIP SW(S1)
2003.11

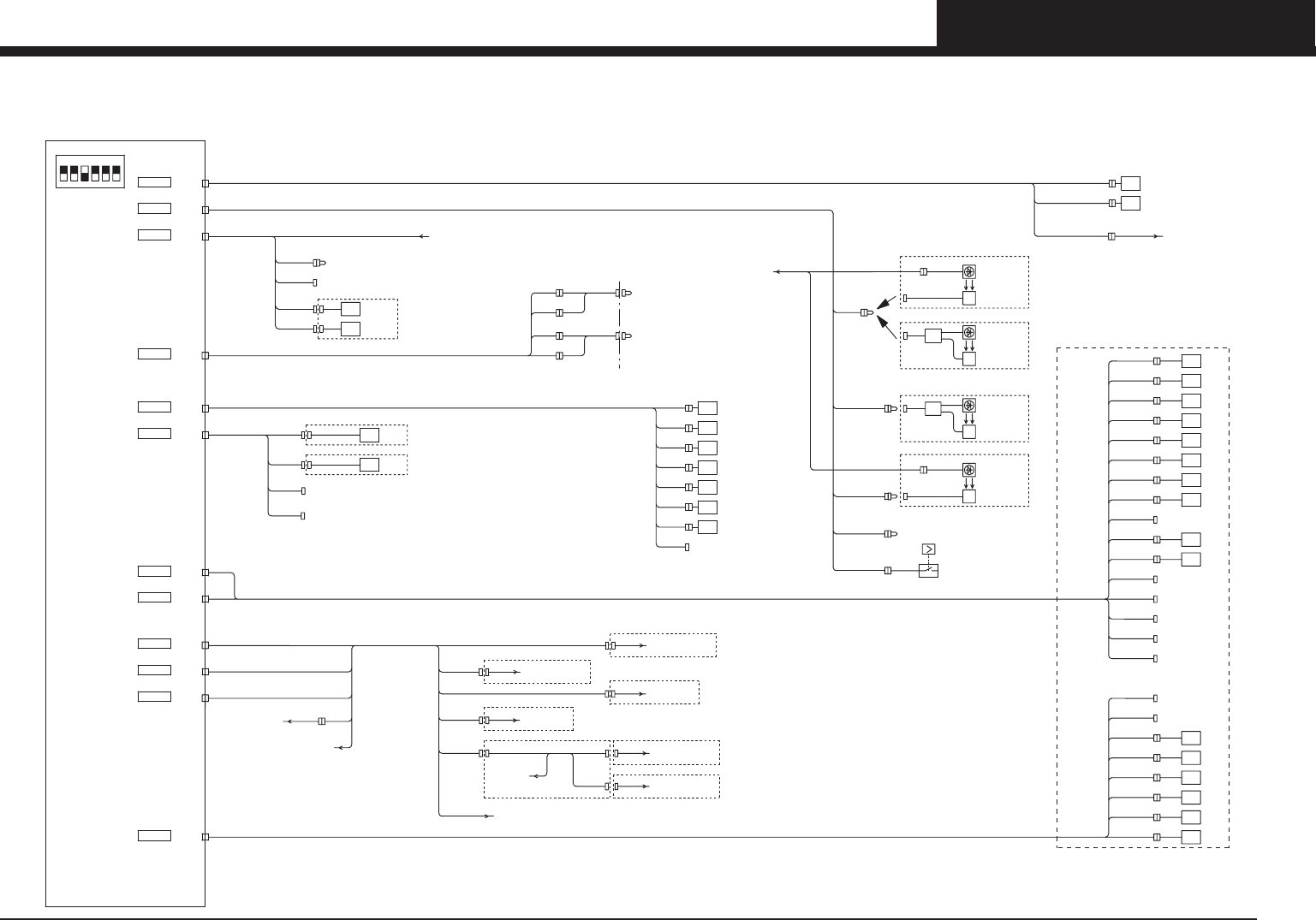
PAGE 4
YHP-2 (KGK) FF
I/O conveyor (2/3)
CN25
J258
DI0
CN25
J161
DI1
CN26
CN26
J229
DI2
CN27
CN27
N00624
N00625
J221
CN28
CN28
GATE
CAMERA UNIT
See Page 8
J252
DI4
CN29
CN29
J254
DI5
CN30
CN30
DUMP1
DUMP2
EXIT2
CONV
EXIT1
CONV
OUT
WORK
POS.
SET
POS.2
SUB
POS.1
SUB
ENT.
CONV
SQ20
SQ21
SQ22
SQ23
SQ24
SQ25
N00640
N00641
N00642
N00643
N00644
N00645
N00646
SQ26
N00647
BACK UP
VACUUM
PREVB
PREVA
NEXTB
NEXTA
J222
J201
BUSY OUT/LR OUT
BA IN/UR IN
COUNT RESET
BA OUT/UR OUT
BUSY IN/LR IN
PREVIOUS INTERFACE
NEXT INTERFACE
FRONT PANEL
J223
J224
N00650
DUMP 1
SQ46
DUMP STATION (OPTION)
N00651
DUMP 2
SQ47
DUMP STATION (OPTION)
DUMP1
DUMP2
NOZZLE ST.
NOZZLE ST.
OPEN
CLOSE
SQ38
SQ39
N00626
N00627
NOZZLE STATION (OPTION)
W10RG
SQ34
SQ35
PU ORG
W1 ORG
N00602
N00601
PUORG
Y1ORG/OT
J171
See Page 6
See Page 5
I/O CONVEYOR (CN45)
SQ42A
SQ42B
N00610
N00611
AMP
F2 FEEDER FLOAT
F2 FEEDER FLOAT
SQ43A
SQ43B
SQ43C
N00611
FIX8 FRONT-2 FEEDER FLOAT SENSOR (OPTION)
N00612
N00613
N00612
SQ75A
SQ75B
F1 FEEDER FLOAT
SQ42A
F1 FEEDER FLOAT
SQ42B
SQ42C
AMP
N00610
FIX8 FRONT-1 FEEDER FLOAT SENSOR (OPTION)
N00610
F.FDR
R.FDR
J725
FIX20 FRONT FEEDER FLOAT SENSOR (OPTION)
FEEDER FLOAT
FEEDER FLOAT
FIX20 REAR FEEDER FLOAT SENSOR (OPTION)
FEEDER FLOAT
FEEDER FLOAT
Y1ORG, Y1OT SENSOR (SQ1,2)
TRNSMT
TRNSMT
I/O CONVEYOR BOARD ASSY P40
SENSOR
PRESSURE
AIR
P
SP11
N00614
KGK-M4580-xxx (2/3)
DI15
CN36
CN36
345216
ON
DIP SW (S1)
DOT.ST DI
N00654
NOZZLE
NOZZLE
NOZZLE
NOZZLE
NOZZLE
NOZZLE
NOZZLE
NOZZLE
NOZZLE
NOZZLE
10
11
1
2
3
4
5
6
7
8
SQ50
SQ51
SQ52
SQ53
SQ54
SQ55
SQ56
SQ57
N00680
N00681
N00682
N00683
N00684
N00685
N00686
N00687
N00690
N00691
N00692
N00693
N00694
N00695
N00696
N00697
NOZZLE STATION (OPTION)
NOZZLE
NOZZLE
NOZZLE
NOZZLE
NOZZLE
NOZZLE
N006F0
N006F1
N006F2
N006F3
N006F4
N006F5
N006F6
N006F7
19
20
21
22
23
24
SQ58
SQ59
SQ60
SQ61
SQ62
SQ63
SQ64
SQ65
J257
J256
CN33
CN34
DI10
DI11
DI14
CN35
DI8
CN31
DI9
CN32
CN31
CN32
CN33
CN34
J215
DIP+24V
J45
GS21 (+24V)
See Page 9
I/O CONVEYOR
See Page 3,5
CN35
(CN10,12,17,42,46,49)
WAFFLE TRAY
FEEDER 2
TRAY2
WAFFLE TRAY FEEDER (OPTION)
WAFFLE TRAY
FEEDER 1
TRAY1
WAFFLE TRAY FEEDER (OPTION)
DIP1
DIP2
R.WAFFLE
I/O CONVEYOR
(CN45,47)
See Page 5
J721
FIX20 REAR FEEDER (OPTION)
TRAY3
TRAY4
WAFFLE TRAY FEEDER (OPTION)
WAFFLE TRAY FEEDER (OPTION)
WAFFLE TRAY
FEEDER 3
WAFFLE TRAY
FEEDER 4
SWITCHER BOARD (EX)
See Page 7
R.WAFFLE
DIP-STATION (OPTION)
DIP-STATION 1
DIP-STATION (OPTION)
DIP-STATION 2
2003.11

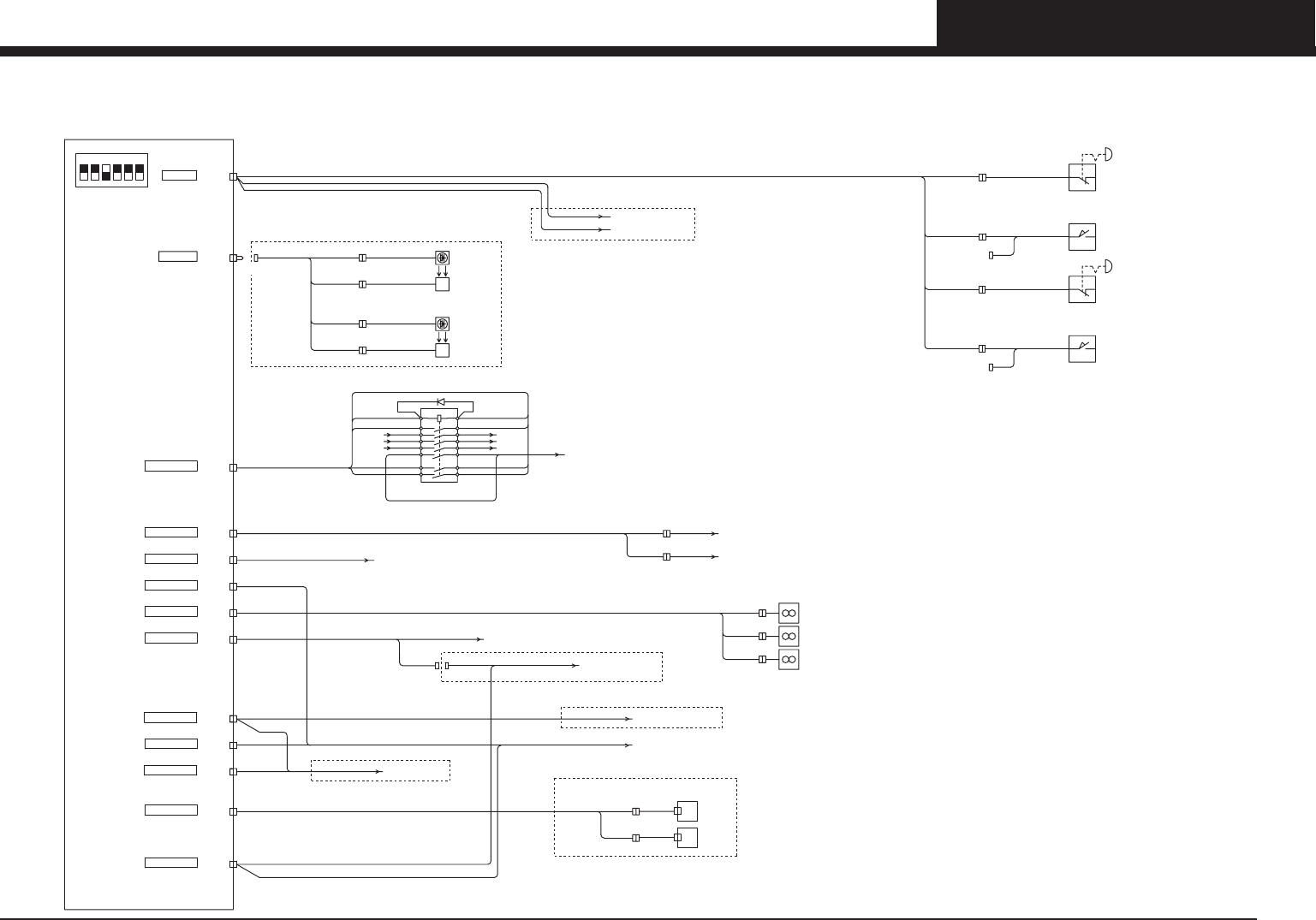
PAGE 5
YHP-2 (KGK) FF
I/O conveyor (3/3)
DC24VCN
J40
DC24VE
IF+24V
See Page 2
J101
J106
See Page 3
J42
CALIB+24V
CAMERA UNIT
See Page 8
CN40
CN40
CN41
CN41
DC24VBN
J41
CN44
CN44
DC24VG
CN42
DC24VH
J22
CN43
CN43
CALIBRATION BOARD (CN1)
J167
CN37
CN37
EMG
SB11
EMG SWITCH
LIMIT SW
SQ150
FRONT SIDE
EMG SWITCH
LIMIT SW
SB12
REAR SIDE
SQ151
STOP F EMG
COVERCOVER F
EMG
COVER
STOP R
COVER R
J165
J163
J166
J164
LAMP
LAMP
CN38
AREA
J174
F.AREA
SENSOR
AREA+24V
SQ44A
SQ44B
AREA+24V
SQ77A
SQ77B
R.AREA
SENSOR
AREA EMG
AREA EMG
F.AREA/EMG
R.AREA/EMG
AREA SENSOR (OPTION)
CN38
J690
J691
YWF
See KGP-000-CNx
Page 1
YWF (OPTION)
J24
CONTACTOR
CN39
CN39
S10
0V
W54
V54
U54
W52
V52
U52
EMG17
+24V
13
1
3
5
14
2
4
6
A1 A2
EMG16
EMG17
53 54
N00616
23 24
See Page
9
CONV+24V
See Page
9
CONVEYOR DRIVER (CN1)
See Page 3
J46
CONV+24E
63 64
+24V
+24E
KM10/KM10A
I/O CONVEYOR BOARD ASSY P40
DC24VD
DC24VF
CN45
CN46
CN46
DC24VN
CN47
DC24EA
CN49
CN49
DC24VLM
CN48
CN48
KGK-M4580-xxx (3/3)
345216
ON
DIP SW (S1)
CN42
CN45
FAN
FAN
FAN
FAN1
EV1
FAN2
EV2
FAN3
EV3
See Page 6
I/O HEAD (CN28)
YWF
See KGP-000-CNx
Page 1
YWF (OPTION)
TF+24V
J648
See Page 4
J725
FEEDER FLOAT SENSOR
FIX20 FEEDER FLOAT SENSOR (OPTION)
See Page 4
WAFFLE TRAY 1,2
J215
IONIZER (OPTION)
FRONT
IONIZER
IONIZER
REAR
+24V
+24V
A16
A17
J712
J713
ION+24V
ION+24V
J714
TF+24V
J721
See Page 4
WAFFLE TRAY 3,4
FIX20 REAR FEEDER (OPTION)
CN47
CONTROL BOX (I/O A)
J174
2003.11