MAN00000772_SI-G200BB_SVCPDFA.pdf - 第471页
CDGB-10707-01 RTF-Axis Serv o Driver Peripheral Circuit

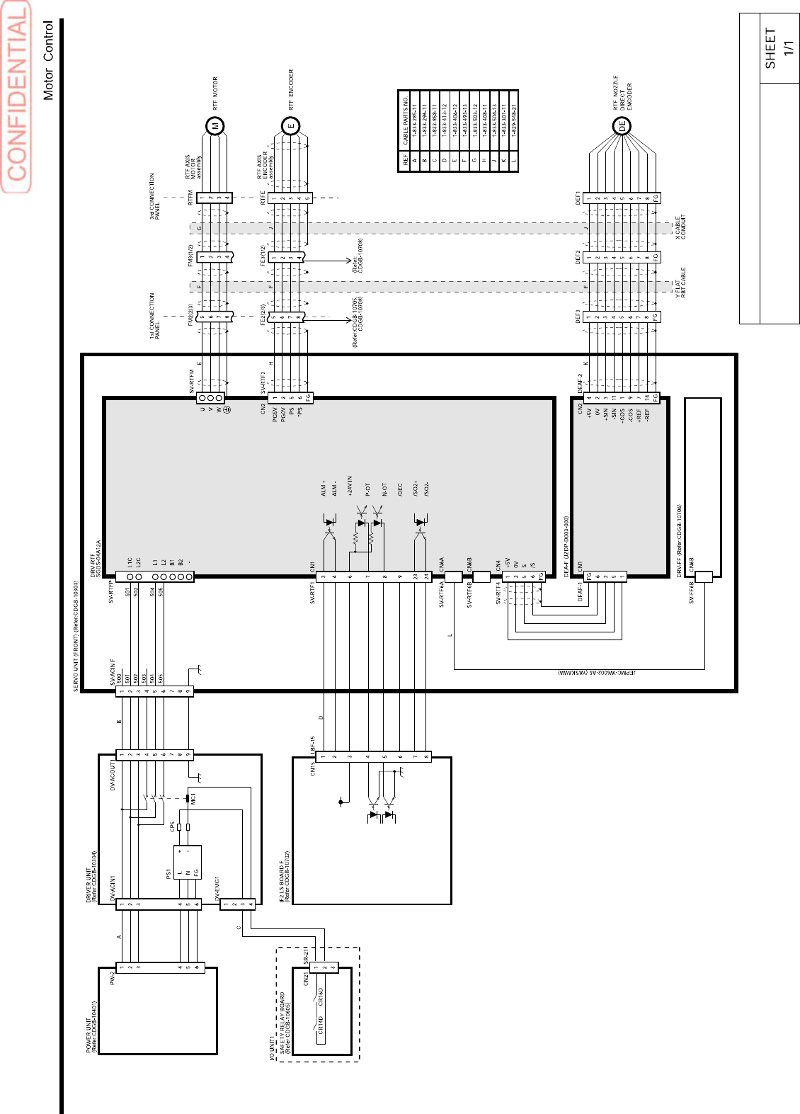
CDGB-10706-01
FF-Axis Servo Driver Peripheral
Circuit

CDGB-10707-01
RTF-Axis Servo Driver Peripheral
Circuit

CDGB-10708-01
RNF-Axis Servo Driver Peripheral
Circuit