KE-2070_KE-2080_KE-2080R-Rev16 - 第73页
- 66 - N OT E ( 注記 ) #0 1 .. . .FOR 2 0 8 0(RIGHT) 2080(右)用 #0 2 .. . .FOR 2080R(RIGHT) 2080 R(右)用 #0 3 .. . .FOR OFFSET PLAC EM E N T A F T E R はんだ印刷認識搭載位置補正又は、 S OL DER SCREEN-PRINTING OR はんだ認識照明(オプション)用 LIGHT ING UNIT…

- 65 -
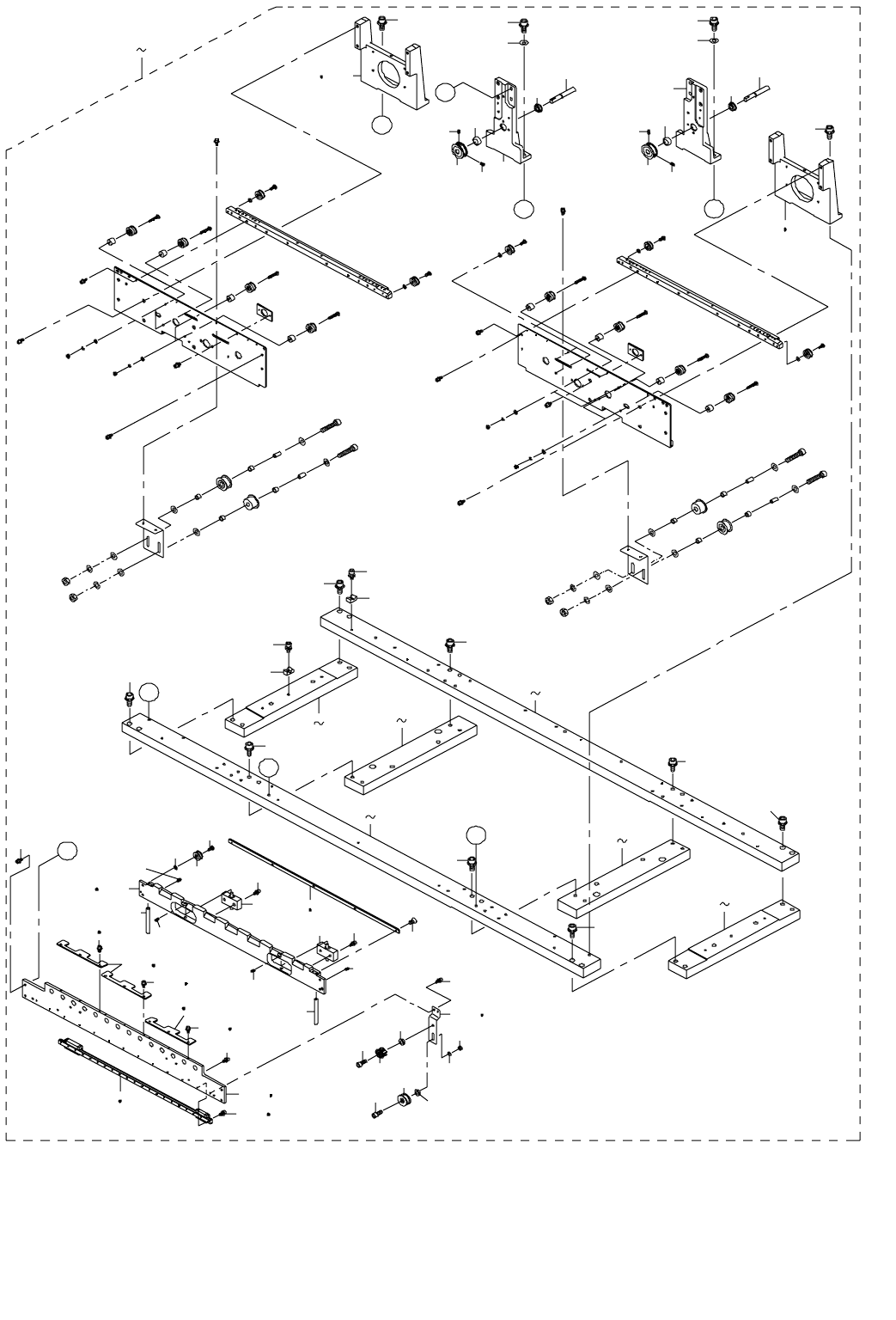
33. OCC (R) COMPONENTS
OCC(右)関係
44
43
33
A
34
36
31
45
20
21
22
23
24
26
28
29
A
30
37
38
39
40
19
25
27
35
18
42
92
94
93
95
91
D
D
41
32
89
77
50
47
88
78
63
79
81
76
90
65
66
67
68
69
71
73
74
75
82
83
84
85
64
70
72
80
87
D
86
B
B
C
C
1
2
46
49
62
58
53
54
61
55
52
60
59
57
56
51
48
3
6
12
13
10
15
7
11
16
9
8
14
17
4
5

- 66 -
NOTE( 注記 ) #01....FOR 2080(RIGHT) 2080(右)用
#02....FOR 2080R(RIGHT) 2080 R(右)用
#03....FOR OFFSET PLACEMEN T AFTER はんだ印刷認識搭載位置補正又は、
SOLDER SCREEN-PRINTING OR はんだ認識照明(オプション)用
LIGHTING UNIT FOR SOLDER
RECOGNITION (OPTION)
REF.NO NOTE PART NO D E S C R I P T I O N
品 名
Qty
1 #01 400-49195 OCC ASM (R) OCC 組(R) 1
2 400 -50033 C AMER A ASM ( R) カメラ組(R) (1)
3 EA-9500B01-00 CABLE BAND 束線バンド (1)
4 401-57655 CAMERA-LENS ASM カメラ−レンズ組 (1)
5 401 -57618 C CD_ BRACK ET
CCD ブラケット
(1)
6 SM-6020602-TN SCREW M2 L=6
六角穴ボルト M 2 L =6
(4)
7 WS-0210002-KN SPRING WASHER M2
ばね座金 M 2
(4)
8 HX-0029400-00 FIXED BASE
固定ベース
(1)
9 SM-4040601-SC SCREW M4X0.7 L=6
なべ小ねじ M 4 X 0.7 L =6
(1)
10 4 00-2 1163 C AM ERA B RAC KET R
カメラブラケット R
(1)
11 SL-6041292-TN SCREW
座金付き六角穴ボルト
(2)
12 SM-3040652-TN SCREW M4 L=6
丸ねじ M 4 L =6
(2)
13 SL-6052092-TN SCREW
座金付き六角穴ボルト
(4)
14 4 00-7 8050 C AM ERA B RAC KET カメラブラケット (1)
15 WP-0220301-SC WASHER M2 平座金みがき丸 M 2 (4)
16 SM-1030501-SC SCREW M3 L=5 皿小ねじ M 3 L =5 (1)
17 SL-6030892-TN SCREW M3 L=8 座金付き六角穴ボルト M 3 L =8 (2)
18 L154E-821-0A0 CA LIGHT ASM CA ライト組 (1)
19 E1038-871-000 PLATEN LOCK CAM SCREW
プラテン ロックカム スクリュウ
(2)
20 400-15847 OCC COLLAR
OCC カラー
(1)
21 SL-6030892-TN SCREW M3 L=8
座金付き六角穴ボルト M 3 L =8
(1)
22 SM-1020301-SN SCREW
皿ねじ M 2 L =3
(4)
23 400-43896 LENS FILTER
レンズフィルター
(1)
24 400-13948 GUIDE PLATE
ガイドプレート
(1)
25 400-13944 ROTARY BASE
ロータリーベース
(1)
26 SM-1030501-SC SCREW M3 L=5
皿小ねじ M 3 L =5
(3)
27 400-01979 OCC C LIGHT P.C.B ASM
OCC 同軸照明基板組
(1)
28 SL-4030691-SC SCREW M3 L=6 座金付きなべ小ねじ M 3 L =6 (2)
29 400-44028 MIRROR BOX ミラーボックス (1)
30 SL-6030692-TN SCREW M3 L=6 座金付き六角穴ボルト M 3 L =6 (3)
31 118-04606 RUBBER PLUG 布台防振ゴム (10)
32 400-43895 LIGHT DIFFUSER ライトディフューザ (1)
33 400-14037 BEAM SPRITTER
ビームスプリッタ
(1)
34 400-13943 PRISM COVER
プリズムカバー
(1)
35 SL-6030692-TN SCREW M3 L=6
座金付き六角穴ボルト M 3 L =6
(3)
36 400-01225 HOLD RUBBER
ホールドラバー
(1)
37 400-14042 PRISM
プリズム
(1)
38 400-01982 OCC A LIGHT P.C.B ASM
OCC 同軸照明基板組
(1)
39 400-14043 PRISM BASE
プリズムベース
(1)
40 SL-6030892-TN SCREW M3 L=8
座金付き六角穴ボルト M 3 L =8
(4)
41 E1143-721-000 WOOLEN CLOTH PAPER
搬送カバーラシャペーパ(CE)
(1)
42 400-15962 OCC LABEL
OCC ラベル
(1)
43 L154E-821-000 LIGHT BRACKET ライト ブラケット (1)
44 SL-6044092-TN SCREW 座金付き六角穴ボルト (2)
45 400-13949 LIGHT FILTER U SUPPORT ライトフィルタ U サポート (1)
46 #02 400-81150 OCC ASM(80R) OCC 組(80 R) 1
47 400-81153 CAMERA ASM(R_80R)
カメラ組(R _80 R)
(1)
48 EA-9500B01-00 CABLE BAND
束線バンド
(1)
49 401-57655 CAMERA-LENS ASM
カメラ−レンズ組
(1)
50 401-57618 CCD_BRACKET
CCD ブラケット
(1)
51 SM-6020602-TN SCREW M2 L=6
六角穴ボルト M 2 L =6
(4)
52 WS-0210002-KN SPRING WASHER M2
ばね座金 M 2
(4)
53 HX-0029400-00 FIXED BASE
固定ベース
(1)
54 SM-4040601-SC SCREW M4X0.7 L=6
なべ小ねじ M 4 X 0.7 L =6
(1)
55 SL-6041292-TN SCREW
座金付き六角穴ボルト
(2)
56 SM-3040652-TN SCREW M4 L=6
丸ねじ M 4 L =6
(2)
57 SL-6052092-TN SCREW 座金付き六角穴ボルト (4)
58 400-45997 CAMERA BR カメラ BR (1)
59 4 00-8 0372 C AM ERA B RAC KET R カメラブラケット R (1)
60 WP-0220301-SC WASHER M2 平座金みがき丸 M 2 (4)
61 SM-1030501-SC SCREW M3 L=5
皿小ねじ M 3 L =5
(1)
62 SL-6030892-TN SCREW M3 L=8
座金付き六角穴ボルト M 3 L =8
(2)
63 L154E-821-0A0 CA LIGHT ASM
CA ライト組
(1)
64 E1038-871-000 PLATEN LOCK CAM SCREW
プラテン ロックカム スクリュウ
(2)
65 400-15847 OCC COLLAR
OCC カラー
(1)
66 SL-6030892-TN SCREW M3 L=8
座金付き六角穴ボルト M 3 L =8
(1)
67 SM-1020301-SN SCREW
皿ねじ M 2 L =3
(4)
68 400-43896 LENS FILTER
レンズフィルター
(1)
69 400-13948 GUIDE PLATE
ガイドプレート
(1)
70 400-13944 ROTARY BASE
ロータリーベース
(1)
71 SM-1030501-SC SCREW M3 L=5 皿小ねじ M 3 L =5 (3)
72 400-01979 OCC C LIGHT P.C.B ASM OCC 同軸照明基板組 (1)
73 SL-4030691-SC SCREW M3 L=6 座金付きなべ小ねじ M 3 L =6 (2)
74 400-44028 MIRROR BOX ミラーボックス (1)
75 SL-6030692-TN SCREW M3 L=6
座金付き六角穴ボルト M 3 L =6
(3)
76 118-04606 RUBBER PLUG
布台防振ゴム
(10)
77 400-43895 LIGHT DIFFUSER
ライトディフューザ
(1)
78 400-14037 BEAM SPRITTER
ビームスプリッタ
(1)
79 400-13943 PRISM COVER
プリズムカバー
(1)
80 SL-6030692-TN SCREW M3 L=6
座金付き六角穴ボルト M 3 L =6
(3)
81 400-01225 HOLD RUBBER
ホールドラバー
(1)
82 400-14042 PRISM
プリズム
(1)
83 400-01982 OCC A LIGHT P.C.B ASM
OCC 同軸照明基板組
(1)
84 400-14043 PRISM BASE
プリズムベース
(1)
85 SL-6030892-TN SCREW M3 L=8 座金付き六角穴ボルト M 3 L =8 (4)
86 E1143-721-000 WOOLEN CLOTH PAPER 搬送カバーラシャペーパ(CE) (1)
87 400-15962 OCC LABEL OCC ラベル (1)
88 L154E-821-000 LIGHT BRACKET ライト ブラケット (1)
89 SL-6044092-TN SCREW
座金付き六角穴ボルト
(2)
90 400-13949 LIGHT FILTER U SUPPORT
ライトフィルタ U サポート
(1)
91
#03
400-32433 LOW HEAD SCREW M3_10
低頭六角穴付きボルト
4
92
#03
400-01982 OCC A LIGHT P.C.B ASM
OCC 同軸照明基板組
1
93
#03
HX-0035400-0D BASE PARTS
基板パーツ
4
94
#03
400-14043 PRISM BASE
プリズムベース
1
95
#03
HX-003350 0-0G SPACER
スペーサ
4

- 67 -
34. PWB CONVEYOR COMPONENTS (1)
基板搬送関係(1)
1 3
16
17
16
17
17
17
16
16
19
18
19
18
21
71
72
73
73
74
20
22
28
27
26
23
24
25
25
66
66
34
63
37
38
39
45
48
49
50
58
51
52
53
55
56
57
62
67
A
A
B
C
D
B
C
D
35
36
37
38
31
31
34
63
39
40
64
65
64
65
10
12
13
15
13
15
10
12
7
9
4
6
41
42
29
30
43
44
32
33
59
60
61
54
40
68
70
69
37
38
35
36
47
46