M6e_ServiceManual_j.pdf - 第63页
3 .機械部 3-29 ■ MX-20(オプション)の注油箇所

3.機械部
3-28
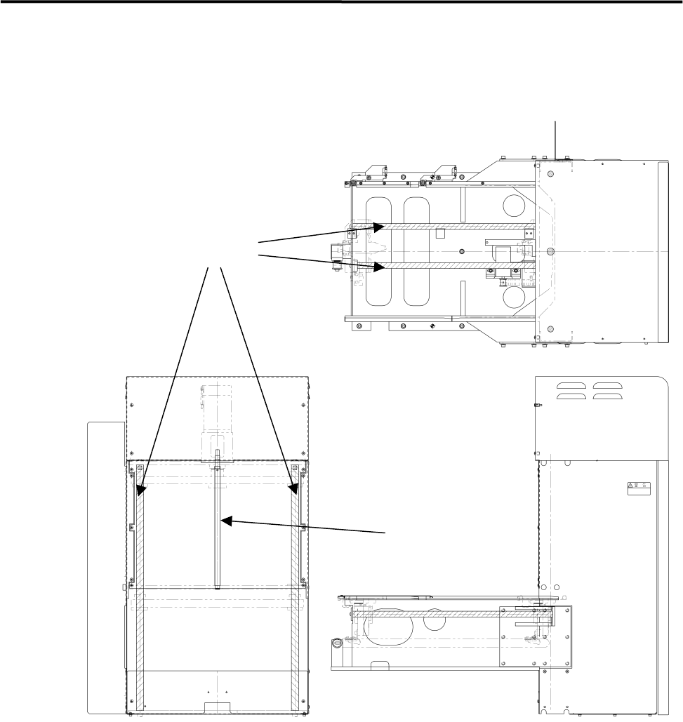
■ ノズルホルダのグリス塗布箇所
【手順】
① 綿棒等でノズルホルダの内面を乾拭きし、古いグリス、汚れ等を取り除きます。
② 綿棒等の繊維や埃等がノズルホルダ内部に残らない様、ヘッド真空破壊操作を行ない、
内部の埃等を排出します。
【NOTE】 メインメニュー→マニュアルメニュー→アクチュエータ操作→操作→ヘッド真空破壊で対
象ヘッドを選択して実行します。
③ 新しい綿棒等にシリコーングリスを均一に染み込ませ、ノズルホルダ内面を軽く撫でる様
にムラ無く塗ります。
④ グリス塗布後、ノズルを取り付けてエスケープ動作がスムーズである事を確認します。
綿棒等
ノズルホルダ

3.機械部
3-29
■ MX-20(オプション)の注油箇所

3.機械部
3-30
■ MXR-20(オプション)の注油箇所
リニアシャフト
ボールネジ