00197908-03_UM_X-Serie-S_CS - 第235页
Provozní návod SIPLACE, ř ada X 4 Instalace a uvedení do provozu Od verze softwaru 710.0 Vydání 12/2016 4.3 Instalace automatu 235 4.3.7.1 Vzdálenosti noh stroje dvojitého transportu de sek 4 Obr . 4.3 - 9 Vzdálenosti no…

4 Instalace a uvedení do provozu Provozní návod SIPLACE, řada X
4.3 Instalace automatu Od verze softwaru 710.0 Vydání 12/2016
234
4.3.7 Vzdálenosti noh stroje od pevných bočnic transportu desek
Vzdálenosti noh stroje jednoduchého transportu desek
4
Obr. 4.3 - 8 Vzdálenosti noh stroje jednoduchého transportu desek v milimetrech
Pevná bočnice transportu v krajní
poloze vpravo
a
a) Rozměr závisí na poloze pevné bočnice. Všechny rozměry v mm.
Pevná bočnice transportu v krajní
poloze vlevo
a

Provozní návod SIPLACE, řada X 4 Instalace a uvedení do provozu
Od verze softwaru 710.0 Vydání 12/2016 4.3 Instalace automatu
235
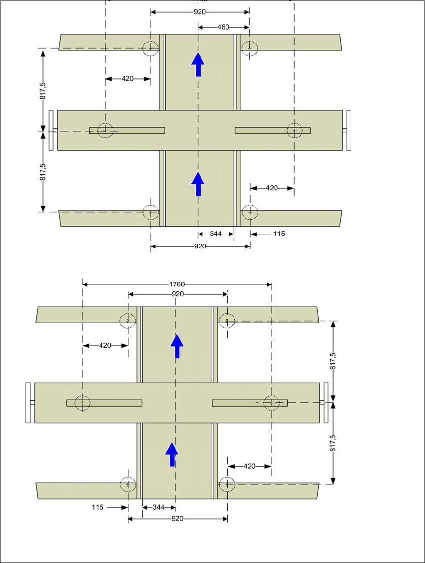
4.3.7.1 Vzdálenosti noh stroje dvojitého transportu desek
4
Obr. 4.3 - 9 Vzdálenosti noh stroje dvojitého transportu desek v milimetrech
Pevná bočnice transportu v
krajní poloze vpravo
a
a) Rozměr závisí na poloze pevné bočnice. Všechny rozměry v mm.
Pevná bočnice transportu v
krajní poloze vlevo
a

4 Instalace a uvedení do provozu Provozní návod SIPLACE, řada X
4.3 Instalace automatu Od verze softwaru 710.0 Vydání 12/2016
236
4.3.8 Integrace automatu do výrobní linky
Dodržujte všechny všeobecné výstražné pokyny uvedené v části 4.3.1 na straně 221.
Dodržujte všechny všeobecné výstražné pokyny, uvedené v části 4.3.2 na straně 222.
Nástroje a pomocné prostředky jsou uvedené v části 4.3.5 na straně 225.
4.3.8.1 Vyrovnání a seřízení automatu v lince
Automat zdvihněte vysokozdvižným vozíkem, aby nohy stroje nebyly zatížené.
Zjistěte transportní výšku obvodové desky automatu ve výrobní lince a výšku přibližně na-
stavte pomocí šestihranného šroubu k nastavení výšky.
Popř. namontujte nohy stroje pro příslušnou transportní výšku obvodové desky (viz 4.3.6 na
straně 226).
Umístěte automat pomocí vysokozdvižného vozíku na volné místo ve výrobní lince.
Při tom dbejte na zarovnání transportů desek a zkontrolujte vzdálenost od předchozího auto-
matu.
4
4
Vyrovnejte automat pomocí jeho vodováhy ve směru osy X a Y.
Vodováhu stroje přiložte vždy ve směru osy X a Y na bočnice transportu desek v oblasti osa-
zování 1 (viz obr. 4.3 - 10
). Šířka transportu desek je nastavená předem:
Jednoduchý transport 210 mm
Dvojitý transport, stopa 1 100 mm
Dvojitý transport, stopa 2 210 mm 4
4
Změřte vzdálenost mezi horní hranou řemenu transportu desek a podkladem. Tato vzdále-
nost musí být 900 mm, 930 mm, resp. 950 mm.
VÝSTRAHA
Nebezpečí poškození!
Jednostranný rychlý náraz nohou stroje na podlahu vede k deformacím upevnění nohou
stroje.
Automat pomalu spouštějte.
Druhá osoba musí kontrolovat, aby všechny nohy stroje dosedly na podlahu sou-
časně.
UPOZORNĚNÍ
U dvojitého transportu přikládejte vodováhu k nastavení ve směru osy X vždy jen na
vnější bočnice automatu.