ASM贴片机 X 系列机型电路图 - 第311页
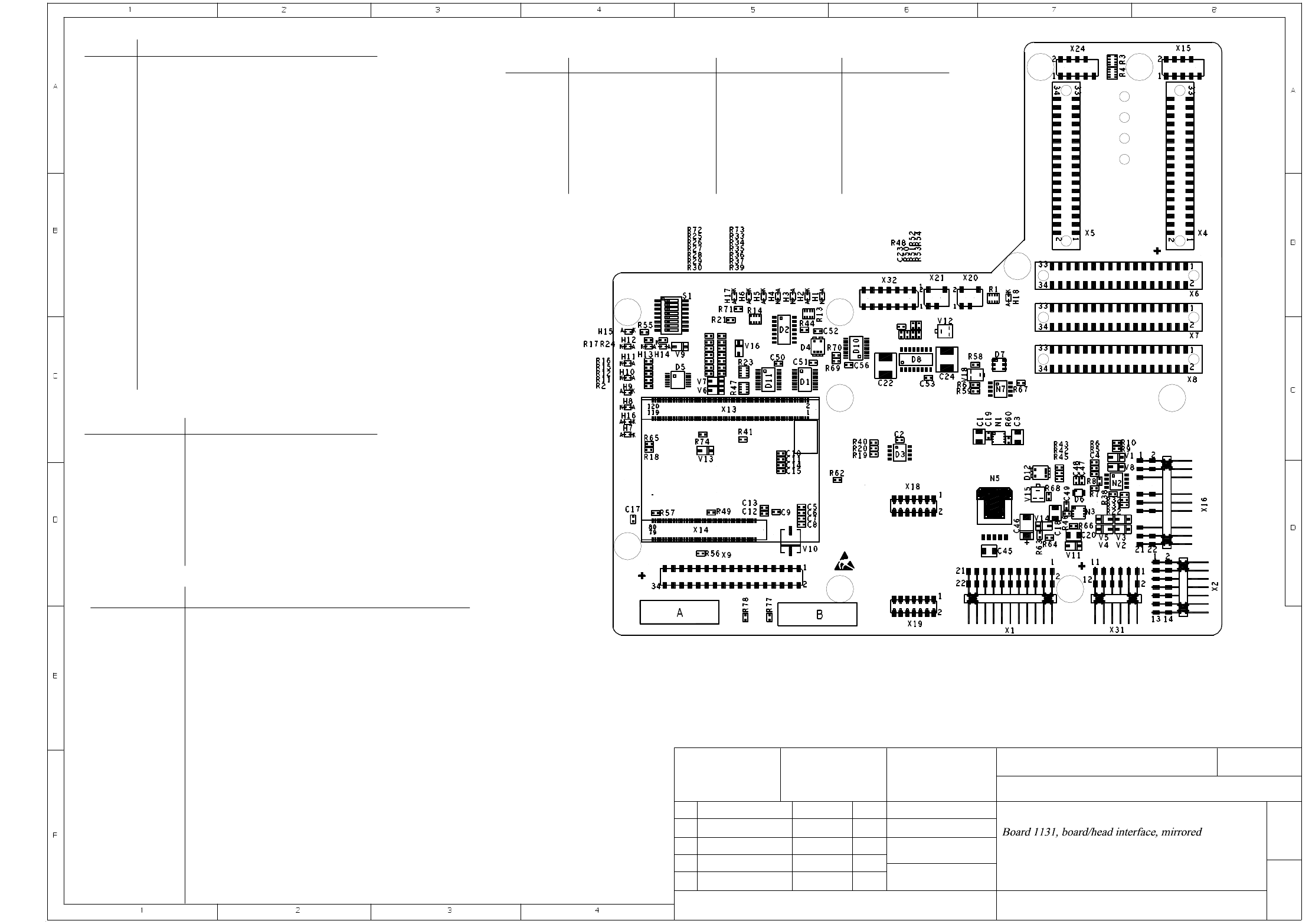
4 - 32 0302904 8-020101 ND3 Leiter platte 1 1 31, Platine Kopfinterfa ce gesp iegelt, SI PLACE X4I (Bl. 2 v . 2) Board 1131, board/h ead interfa ce, mirr ored, SIPLACE X4I (sh. 2 of 2) 02 01 KL -------- -- 06.06.02 EN --…

4 - 31
03029048-020101ND3 Leiterplatte 1131, Platine Kopfinterface gespiegelt, SIPLACE X4I (Bl. 1 v. 2)
Board 1131, board/head interface, mirrored, SIPLACE X4I (sh. 1 of 2)
+5VError
RESET CAN
n.u.
n.u.
+5V
MAIN_RESET
Cable carrier interface 03010622
Cable carrier interface 03010622
Cable carrier interface 03010622
Cable carrier interface 03010622
Vision board (VBSX) 03047984
Scanning head, X axis
Trace module connection
Test connector, X-axis track signals
n.u.
n.u.
Temperature sensor, X axis
Cable carrier interface 03010622
X5X5
X24
SPI interface
TP test plug
1
3
2
X32
X31
Assembly
FAIL_UC
VCC
X11X11
X15
X17
X16
X15
X8
X9
X7
X6
X8
X6
X7
Test plug
Service connector
Assembly
X2
X4
X1
X2
X4
X1
Plug
OFFCAN_ID17
WP_EEPROM8OFF
GANTRY_ID1
GANTRY_ID0
CAN_ID0
S1
RESET
BOOT
120
Switch
1
2
3
4
5
6
Gantry 2
OFF
OFF
OFF
ON
OFF
ON
OFF
OFF
ON
ON
OFF
OFF
OFF
ON
Gantry 4
B = Inspection label
A = Identification label
8-layer PCB
Leiterplatte 1131, Platine Kopfinterface gespiegelt
Component layout, component side
NameModifiedStat. Date
Name
Date
Sheet
TERMINATOR
TQM 167, SIPLACE embedded moduleX13
TQM 167, SIPLACE embedded moduleX14
DC/DC converter 03018099X18 X1
DC/DC converter 03018099X19 X2
1-Wire temperature sensor, X motor, PCB cameraX20 X20
1-WireX21 n.u.
X1
X2
Copyright ©
SIPLACE X4I
A = Identification label
A2B00044836C - * - ZEI
03029048-020101ND3
KL
EN
----------
----------01
02 06.06.02
28.03.02
17.08.04
ASM AS
ENGELMANN
1 +
Sheet
Proprietary date, company confidential. All rights reserved.
Confie a titre de secret d'entreprise. Tous droits reserves.
Confiado como secrete industrial. Nos reservamos todos los derechos.
Comunicado como segredo empresarial. Reservados todos os direitos.
pflichten zu Schadenersatz. Alle Rechte vorbehalten, ins
besondere für den Fall der Patenterteilung oder GM-Eintragung
wertung und Mitteilung ihres Inhalts nicht gestattet, soweit
Weitergabe sowie Vervielfältigung dieser Unterlage,Ver-
nicht ausdrücklich zugestanden. Zuwiderhandlungen ver-
CAN_INT4
MAIN POWER
X_TEMPERATURE_SENSOR
MAIN POWER
EN_ANALOGH9 (green)
H14 (green)
H17 (green)
H16 (red)
H15 (red)
H13 (red)
H12 (red)
H11 (red)
H10 (red)
VCC
P3V3_FAIL
P5V_FAIL
SPI interface
AV_ERR *
AN_P24V
AN_P15V
AN_N15V
H5 (green)
H8 (red)
H7 (red)
H6 (green)
H4 (red)
H3 (red)
H2 (red)
H1 (red)
HEAD OK
DIG_ON
P5V_ERR *
FAIL_UC
MAINRESET
CAN_INT
LED
6
7
8
5
GND
HEAD_OK
DIG ON
n.u.
+5V
+5V Error
Module OK
n.u.
+15V
-15V
n.u.
+24V
5V DC/DC converter
X axis temperature monitoring
Head adapter board inserted
X13

4 - 32
03029048-020101ND3 Leiterplatte 1131, Platine Kopfinterface gespiegelt, SIPLACE X4I (Bl. 2 v. 2)
Board 1131, board/head interface, mirrored, SIPLACE X4I (sh. 2 of 2)
02
01
KL---------- 06.06.02
EN---------- 28.03.02
NameModifiedStat. Date
ASM AS
Copyright ©
Date 17.08.04
ENGELMANNName
SIPLACE X4I
Leiterplatte 1131, Platine Kopfinterface gespiegelt
A2B00044836C - * - ZEI
03029048-020101ND3
2 -
Sheet
pflichten zu Schadenersatz. Alle Rechte vorbehalten, ins
besondere für den Fall der Patenterteilung oder GM-Eintragung
wertung und Mitteilung ihres Inhalts nicht gestattet, soweit
Weitergabe sowie Vervielfältigung dieser Unterlage,Ver-
nicht ausdrücklich zugestanden. Zuwiderhandlungen ver-
Proprietary data, company confidential. All rights reserved.
Confie a titre de secret d'entreprise. Tous droits reserves.
Confiado como secrete industrial. Nos reservamos todos los derechos.
Comunicado como segredo empresarial. Reservados todos os direitos.
8-layer PCB
Component layout, solder side
Sheet
J3 C&P20 head adapter, 03002870 or
J3 CPP head adapter, 03077980
Connector Assembly
X22
X22
X_MOTOR_V
X_MOTOR_W
X_MOTOR_U
4PE
2
3
1
X12

4 - 33
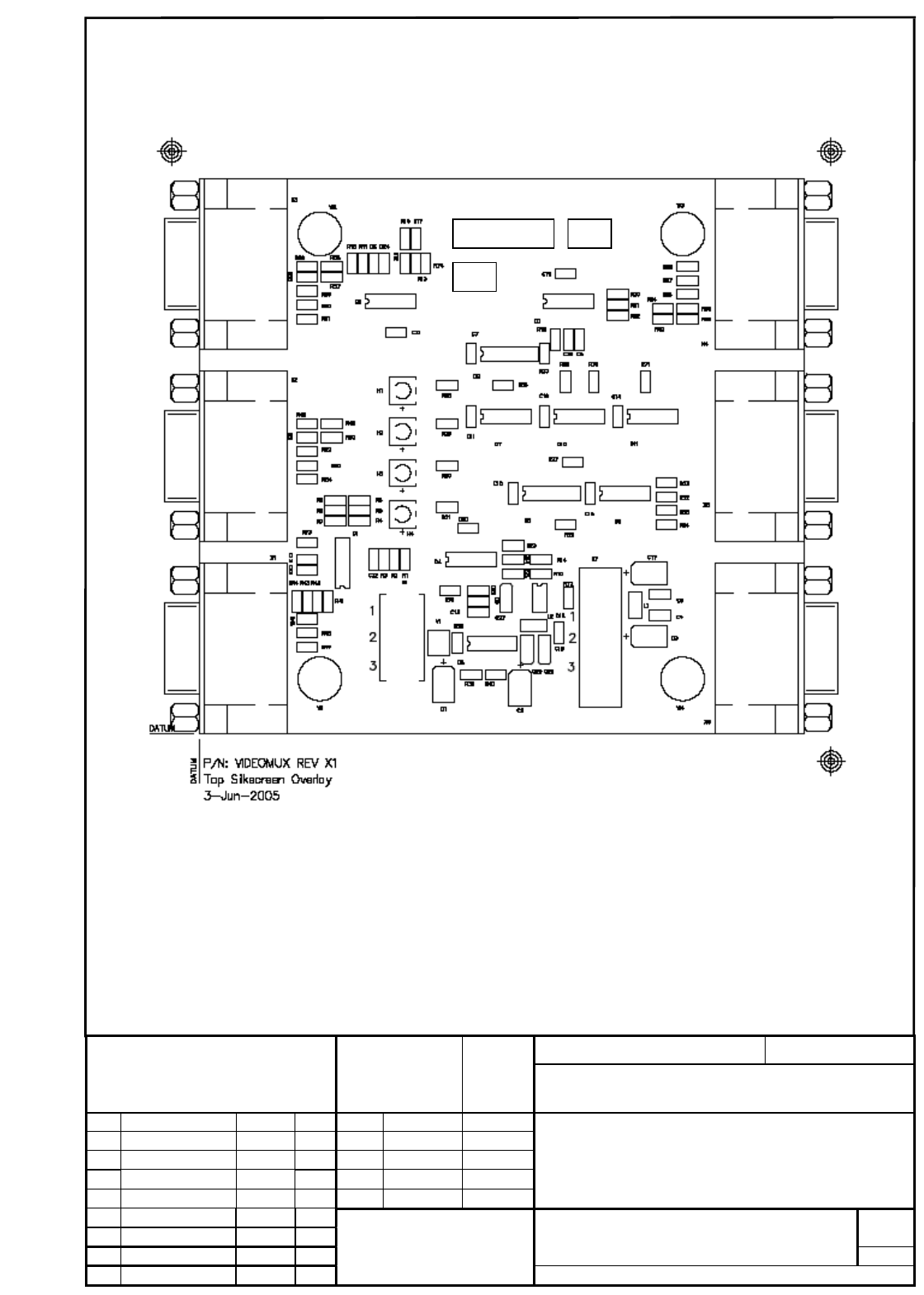
03032345-010101ND4 Video-Multiplexer/-Splitter
MATERIAL FR4
COPPER THICKNESS
Scale / Maßstab
1:1
Format A4
THICKNESS
1.6mm
35um
4 LAYER BOARD
ASSEMBLY – TOP SIDE
Date Name
Drawn.
Checked 06.June.05 Eric
Standard
Item name / Benennung
Video-Multiplexer/-Splitter
Sheet
1
of
01 --------------------------- 06.June.05
Eric
Dokument – No. / Unterlagen – Nr. (FS RS US SP F)
03032345-010101ND4
1
Vers. Modification ECO No. Date Name
Copyright ©
ASM AS
Weitergabe sowie Vervielfältigung dieser Unterlage, Verwer-
tung und Mitteilung ihres Inhaltes nicht gestattet, sow eit nicht
ausdrücklich zugestanden. Zuwiderhandlungen verpflichten zu
Schadensersa tz. Alle Rechte für den Fall der Patente rteilung
oder GM-Eintra
g
un
g
vorbehalten.
Copying of this document, and giving it to others and the use
or comm unication of the contents thereof, are forbidden with-
out express authority. Offenders are liable to the paym ent of
damages. All rights are reserved in the event of the grant of
a
p
atent or the re
g
istration of the utilit
y
model or desi
g
n.
B
CA
A = IDENTIFICATION LABEL
B= TEST LABEL
C= ESD LABEL