ASM贴片机 X 系列机型电路图 - 第94页
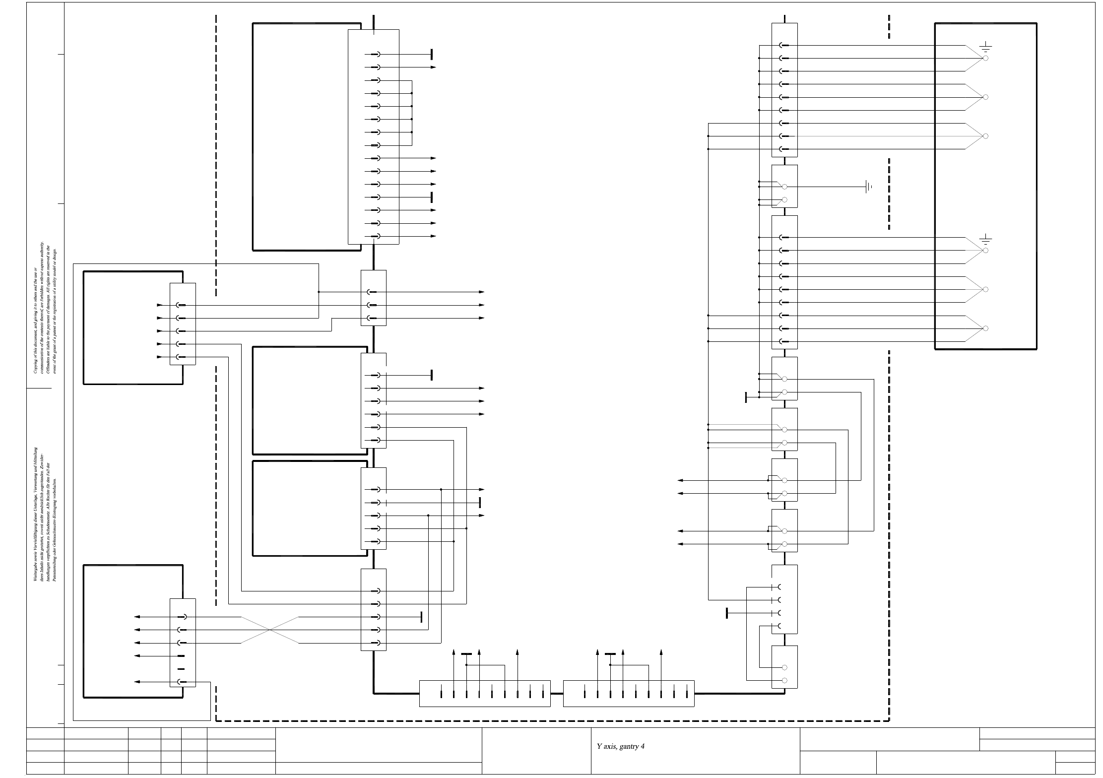
2 - 24 Y04_X3X4X4I- 0 30301LD3 Y -Achse, Porta l 4 , SIPLACE X3/X4 /X4I (Bl. 1 v . 2) Y axis, ga ntry 4, SIPLACE X 3/X4/X4I ( sh. 1 o f 2) To she et 2, X06_4t q:B/D/ Z20 To she et 2, X06_4t q:B/D/ Z22 To she et 2, X06_4t…

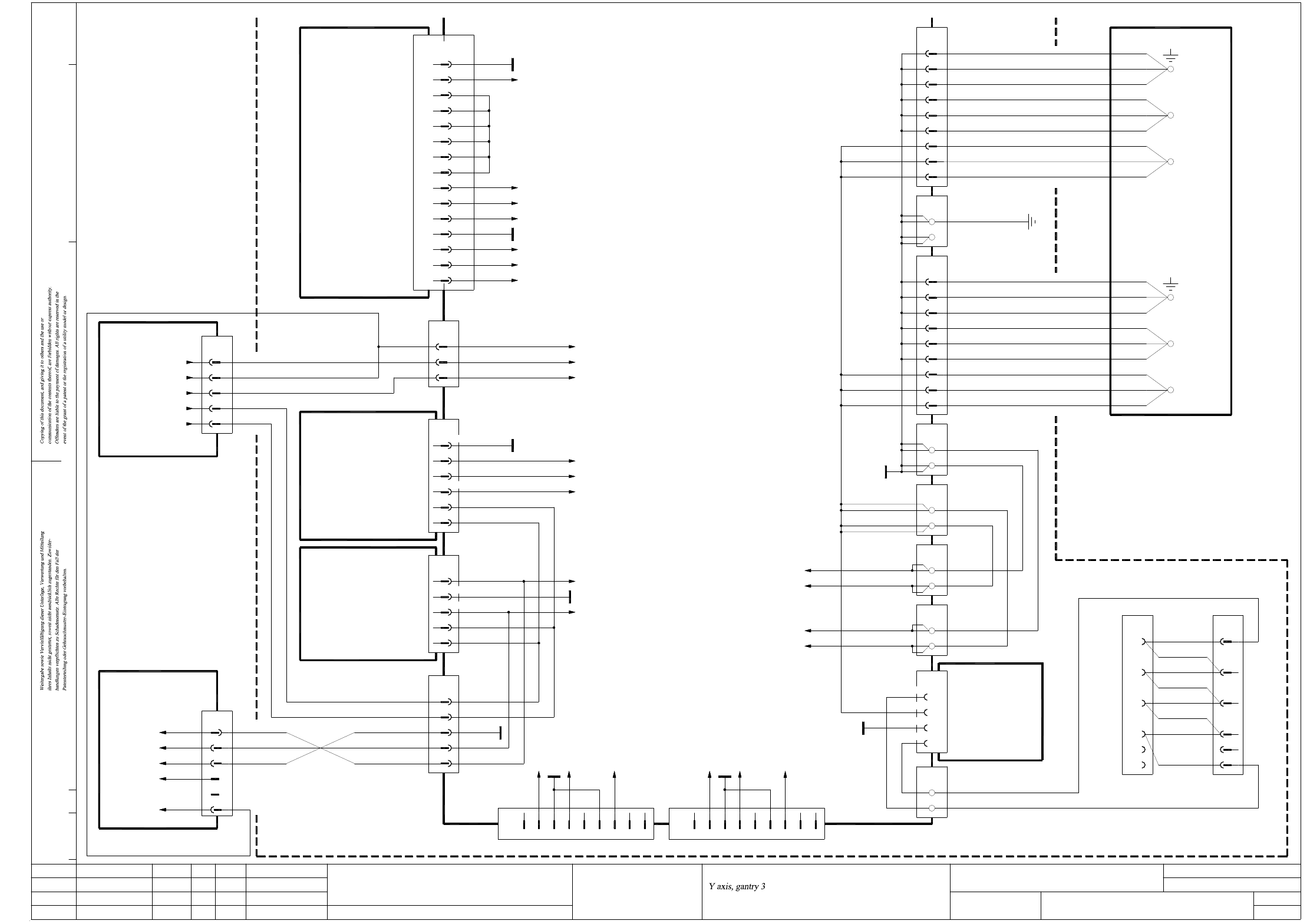
2 - 23
Y03-030202LD3 Y-Achse, Portal 3, SIPLACE X2/X3/X4/X4I (Bl. 2 v. 2)
Y axis, gantry 3, SIPLACE X2/X3/X4/X4I (sh. 2 of 2)
9
10
5
4
3
15
16
17
14
13
12
GNYE
1
2
7
6
8
GNYE 6.0 mm²
03050899
4.0 mm²GY
4.0 mm²GY
4.0 mm²BK
4.0 mm²BK
GY
BK
GY
BK
1
2
4
3
3
4
2
1
1
2
4
3
1
2
4
3
3
4
2
1
+250V
+250V
+250V
+250V
+250V
+250V
+250V
+250V
PGDND_1
+250V_1
PGND_2
+250V_2
GY
WH
BN
2
1
3
X47sq
POWER_FAIL_24VDC
POWER_FAIL
EMERG._STOP_MAIN_AXIS
POWER_FAIL_24VDC
BN11
SERVO_ENABLE
WH10
POWER_FAIL_AXIS
GY2
03050900
(W5)
(W5)
(W5)
LSZ250/1000
00353481
Load connection
Ballast resistor
Key
Key
5
6
4
03006796
n.u.
RD
BU
PK
5
X46sq
1
4
3
5
2
+15V_AXIS
-15V_AXIS
GND
Vin(+)
Vin(-)
Vin(-)
Vin(+)
Vin(+)
Vin(-)
+5V
-15V_SERVO
+15V_SERVO
X4qa
GN
BN
2
3
n.u.5
6
4
(W3)
(W3)
03050900-
1WH (W3)
WH
BU
BK
BK
X1qa_-15V
X1qa_0V
X4qb_4
X4qb_6/X73qb_6
Main distributor
X1qa_+15V
03046225 (qa)
RD BN
GN
WH
(W2)
(W2)
n.u.
2
1
WH+BN
03050900-W4
127
8
9
13
14
2
1
X40sq
17
16
9
8
7 15
3
4
5
10
9
11
1
3
2
X42_1sq
4
5
6
X41sq
1
2
2
1
X42sq
2
1
X43sq
X44sq
1
2
X12
X12
X10
0V
+250V
X11
11
4
5
7
6
8
9
n.u.
n.u.
n.u.
GND
POWER_FAIL_24VDC
PA1_CAN_H
X30_2sq
2
1
3
n.u.
7
4
5
6
n.u.
8
9
n.u.
n.u.
PA2_CAN_L
GND
POWER_FAIL_24VDC
PA2_CAN_H
X61sq
1
2
D30; Z32
D22,26; Z24
Z16;D18
X60sq
D10; Z12
+250V
PGND
PGND
6
5
4
X41_1sq
2
3
1
8
6
7
2
1
GNYE
00354626
Power supply
X11
+250V
0V
X10
Backplane
Axis unit
03048879 (sq)
X06_2sq:B/D/Z18,20
B8,10,12,14,16; B/D/Z22,24
To sheet 1, X06_2sq:B2,4; B/Z6;
To sheet 1
00354626
Power supply
6
X13
9
1
2
Vin(-)Axis
Vin(+)Axis
Axis unit, gantries 1 and 3 (X2), gantry 3 (X3), gantries 2 and 3 (X4/X4I)
26
4
1
3
2
X24
WH 11
GY
YE
BN
GN
3
2
X23
03057572
03.
02.
02.
Status
Function status
Revision status
Document status
Modified Date Name
Date
Author
Check.
Stand.
Mat.no.:
CAD file:
Orig./Repl.f./Repl.by
Sh.
Sh.(s)
09.03.08
04.03.09
17.02.11
11.01.2005TDH
TDH
TDH
TDH
Y03-030202LD3_SH02.DWG
Copyright ©
ASM Assembly Systems
GmbH & Co. KG
Y-Achse, Portal 3
SIPLACE X2/X3/X4/X4I
SIPLACE X-Series
Y03-030202LD3
2
2
Brake_Enable
Phase_U
B/D/Z20
B/D/Z26,28
B/D/Z/30
B/D/Z22
B/D/Z24
Phase_V
Z8
B/D/Z18
D8
B8
B6
D6
Z6
Z2
X06_4sq
B2
X1sq
To sheet 1, X06_2sq:D6
PGND
00353448 (sq)
Dynamic brake
DBM / 3P / 3-01
B/D/Z/32
Phase_W
Motor_W
Motor_U
Motor_V
PGND
To sheet 1, X06_2sq:B/D/Z32
To sheet 1, X06_2sq:B/D/Z30
To sheet 1, X06_2sq:B/D/Z26,28
To sheet 1, X06_3sq:4
To sheet 1, X06_3sq:3
To sheet 1, X06_3sq:2
Z16;D18
D10
X50sq
Z4,8,20; D22
D6
Z28
D30
D30
Z8; D10; Z16; D18
Z20;D22
Z28
Z4; D6
X51sq
-15V_AXIS
+15V_AXIS
AGND
GND
00353449
5V/±15V
DC/DC converter
00353450
±15V
DC/DC converter
PA1_CAN_L
n.u.
X30_1sq
1
2
3

2 - 24
Y04_X3X4X4I-030301LD3 Y-Achse, Portal 4, SIPLACE X3/X4/X4I (Bl. 1 v. 2)
Y axis, gantry 4, SIPLACE X3/X4/X4I (sh. 1 of 2)
To sheet 2, X06_4tq:B/D/Z20
To sheet 2, X06_4tq:B/D/Z22
To sheet 2, X06_4tq:B/D/Z18
Motor_U
Motor_W
Motor_V
X4vt/
4
X06_3tq
2
3
1
n.u.
Voltage
X22_2:A5
X22_2:A6
X22_2:E5
X22_2:E6
X22_2:D3
X22_2:D4
Servo amplifier TBS250/20Y1
00353444 (tq)
23
Y distance
Y reference point
Y sensor stop
X-B2, X4da:24
X reference point
n.u.
10
9
8
6
7
5
GND
Y-B2
3
4
2
X31da
PE1
X4da:23
26
n.u.
24
25
n.u.
n.u.
n.u.
See drawing
X04-xxxxxxLD3 sheet 1
Y sensor stop
Y limit switch
Y reference point
Y temperature sensor
11
20
21
22
n.u.
n.u.
n.u.
18
19
n.u.
n.u.
n.u.
14
15
16
n.u.
12
13
8
10
9
6
Y track N
Y track N
GND
Y track B
5
3
X21da
PE
1,4,7,17
2
Y track A
Y track B
Y track A
Y motor U
Y motor W
Y motor V2
3
4
PE
X11da
1
03010622 (da)
Cable carrier interface, gantry 2 or 4
2
Key
Y track B
BK
BN
RD
RI
RI
+5V
T2
WHGN
Y track B
Y track A
Y track A
4
5
3
WH
PK
YE
X10db
1
2 GN
DGND 5
6
Key
4
3
not used
T2
GND
T1
T1
Screen
-
Y distance
Y limit switch
Y motor W
Y motor V
Y motor U
-15V
+24V
+15V
23, 24, 26, 31
1, 20, 21, 27, 34
DGND
+24V
Y track N
Y track N
Y-B2
Y reference point
Y temperature sensor
Carrier cable 2, 2GE
2-7
22
14-19
28
25
23, 24, 26, 31
8-13
29
30
1, 20, 21, 27, 34
X2da
-15V
Y limit switch
+24V
Y distance
+15V
DGND
PE
Y motor U
Y motor V
Y motor W
22
28
30
29
25
Y motor
2-7
14-19
8-13
X2db
26
28
30
31
33
32
29
Y track N
Y reference point
Y temperature sensor
DGND
Y-B2
Y track N
+24V
03081942 (X4I)
33
31
32
30
28
29
26
DGND
X4db:3
X4db:4
X4db:2
PE
D3
D2
1
TemperatureSensorBus, n.u.
+15V
-15V
Y motor W
Y motor V
Y motor U
1, 20, 21, 24, 27, 34
2-7
8-13
22
14-19
23
25
1, 20, 21, 24, 27, 34
X1da
Y motor V
TemperatureSensorBus, n.u.
-15V
+15V
Y motor W
PE
Y motor U
8-13
22
Y track B3232
PE
+15V
GND
IN OUT
7805
+5V
GND
Y track A
Y track A
DGND
XM track B
XM track B
+24V
XM track A
XM track A
+15V
-15V
Y motor U
Y motor V
Y motor W
1, 20, 21, 23, 24, 34
Y track B
Y motor W
14-1914-19
33
32
31
29
30
28
27
26
25
22
n.u.
XM track B
n.u.
Y track A
Y track A
DGND
XM track B
n.u.
n.u.
XM track A
+24V
XM track A
+15V
-15V
29
32
33
31
30
26
28
27
25
22
8-13
2-7
1, 20, 21, 23, 24, 34
X3da
33
PE
Y motor V
Y motor U
Y track B
03081943 (X4I)
Y motor
Carrier cable 3, 2GE
8-13
2-7
X3db
33
X4db:4
n.u.
n.u.
n.u.
n.u.
X4db:3
X4db:2
PE
5
Track N
Track N
Track B
Track B
Key
+5V
8
9
10
6
7
+5V
Test plug
Track A
Track A
GND
2
4
3
X9db
1
PE
Y track N
Y track N
Y track B
+5V
10
9
Key
GY
7
8
6
03.
03.
01.
Status
Function status
Revision status
Document status
Modified Date Name
Date
Author
Check.
Stand.
Mat.no.:
CAD file:
Orig./Repl.f./Repl.by
Sh.
Sh.(s)
09.03.08
17.02.11
17.02.11
11.01.2005TDH
TDH
TDH
TDH
Y04_X3X4X4I-030301LD3_SH01.DWG
Copyright ©
ASM Assembly Systems
GmbH & Co. KG
Y-Achse, Portal 4
SIPLACE X3/X4/X4I
SIPLACE X-Series
Y04_X3X4X4I-030301LD3
1
2
03052291 (X3/X4)
03052292 (X3/X4)
03052293 (X3/X4)
OG
03046226 (ra)
+24V
Sub-distributor
+5V
0V
+15V
-15V
WH
PK
BU
RD
X1ra
(W1)WH1 +24V1
Cable carrier interface
03009828
(W1)
(W1)
(W2)
(W2)
14
6
5
n.u.
2
3
2
GN
BN
4
5
3
2
+5V
GND
+15V
-15V
X6ra X50da
BK
WH+BN
GN+YE
GY+PK
03050912
Key
Axis unit
+15VC4
X1tq X06_2tq
B2,4; B/Z6; B8,10,12,14,16
B/D/Z22,24
PGND_2
UB_Power_OK
Servo_Enable
Servo_Ready
BERO1YOUT
OPTO_GND
+15V_Servo
(S1.2 n.u.)
ON
OFF
Axis card A364, gantry 4
A/D10; B/E8
A/D4; B/E1,2,4; C1,6
C14
C3
-15V
+5V
B/D15-17,20,21,24,25
A/C/E15,18,19,22,23
E10
E9
D9
03036027 (tb)
PTCYC10
D2
D1
E7
D7
Inom_U
Inom_W
ENDY
E13
C13
E12
D13
Track N
Track N
Track B
A5
A1
X4tb
End signal AGND
X22_1tq
D11
D12
E11
X1tb
Track A
Track B
Track A
1
S1
2
AGND
GND
11
14
13
12
n.u.
8
9
10
6
03048879 (tq)
Backplane, axis unit
X3vo/
X06_1tq
1,4,7,17
2
5
3
PE
26-pole
Phase_W
+250V_2
UB_Power_OK
Brake_Enable
Servo_Enable
Servo_Ready
+15V_Servo
-15V_Servo
Phase_U
B/D/Z30
B/D/Z32
B/D/Z18,20
B/D/Z26,28
Z12
D14
Phase_V
Inom_U
Z8
D12
D10
D8
D6
Inom_W
Z4
D4
To sheet 2, X06_4tq:B/D/Z30
To sheet 2, X06_4tq:B/D/Z32
To sheet 2, X06_4tq:B/D/Z26,28
To sheet 2, X44tq:2
X06_4tq:Z2
AGND
To sheet 2
OPTO_GND
PTCY
ENDY
BERO1YOUT
Track N
Track N
Track B
Track B
Track A
Track A
C5
D8
C11
Y temperature sensor
n.u.
16
18
19
15
25
22
24
21
n.u.
n.u.
n.u.
n.u.
n.u.
n.u.
23
25
14-19
Y motor
03081941 (X4I)
Carrier cable 1, 2GE
X1db
2-7
Gantry interface, gantry 2 or 4
03006531 (db)
PE
D6red
N2
PE
Key
+24V
DGND
1
X5db
6
5
D2
+24V
3
4
2
X6db
1
+24V 1
DGND
D1
4
6
5
3
2
Key
2
Key
X7db
3
4
2 BN
03006767-W2
03006767-W1
Y motor V 13
+15V
Y motor W
X8db
1 BK
4 3
Y motor U
1
2
X4db
PE
2
03006767
Linear motor, Y axis
03017754
Scanning head, SIPLACE Y axis
Track signals, Y axis
23
20
26
03009832
Y temperature sensor
Gantries 1 and 4
Y motor
Actual value
Y axis
not used
not used
not used
WH+BN
GY+PK
EMERG._STOP_MAIN_AXISB14, C9
C8
POWER_FAIL
X47tq
To sheet 2
03057572

2 - 25
Y04_X3X4X4I-030301LD3 Y-Achse, Portal 4, SIPLACE X3/X4/X4I (Bl. 2 v. 2)
Y axis, gantry 4, SIPLACE X3/X4/X4I (sh. 2 of 2)
4
5
7
6
8
9
n.u.
n.u.
n.u.
GND
POWER_FAIL_24VDC
PA1_CAN_H
X30_2tq
2
1
3
n.u.
7
4
5
6
n.u.
8
9
n.u.
n.u.
PA2_CAN_L
GND
POWER_FAIL_24VDC
PA2_CAN_H
X61tq
1
2
D30; Z32
D22,26; Z24
Z16;D18
X60tq
D10; Z12
+250V
PGND
PGND
6
5
4
X41_1tq
2
3
1
8
6
7
2
1
GNYE
00354626
Power supply
X11
+250V
0V
X10
Backplane
Axis unit
03048879 (tq)
X06_2tq:B/D/Z18,20
B8,10,12,14,16; B/D/Z22,24
To sheet 1, X06_2tq:B2,4; B/Z6;
To sheet 1
00354626
Power supply
6
X14
9
1
2
Vin(-)Axis
Vin(+)Axis
Axis unit, gantries 1 and 4
03.
03.
01.
Status
Function status
Revision status
Document status
Modified Date Name
Date
Author
Check.
Stand.
Mat.no.:
CAD file:
Orig./Repl.f./Repl.by
Sh.
Sh.(s)
09.03.08
17.02.11
17.02.11
11.01.2005TDH
TDH
TDH
TDH
Y04_X3X4X4I-030301LD3_SH02.DWG
Copyright ©
ASM Assembly Systems
GmbH & Co. KG
Y-Achse, Portal 4
SIPLACE X3/X4/X4I
SIPLACE X-Series
Y04_X3X4X4I-030301LD3
2
2
X46tq
1
4
3
5
2
+15V_AXIS
-15V_AXIS
GND
Vin(+)
Vin(-)
Vin(-)
Vin(+)
Vin(+)
Vin(-)
+5V
-15V_SERVO
+15V_SERVO
X4ra
GN
BN
2
3
n.u.5
6
4
(W3)
(W3)
03050920-
1WH (W3)
WH
BU
BK
BK
X1ra_-15V
X1ra_0V
X4rb_4
X4rb_6/X73rb_6
Sub-distributor
X1ra_+15V
03046226 (ra)
RD BN
GN
WH
(W2)
(W2)
n.u.
2
1
WH+BN
03050920-W4
127
8
9
13
14
2
1
X40tq
17
16
9
8
7 15
3
4
5
10
9
11
1
3
2
X42_1tq
4
5
6
X41tq
1
2
2
1
X42tq
2
1
X43tq
X44tq
1
2
X12
X12
X10
0V
+250V
X11
11
Brake_Enable
Phase_U
B/D/Z20
B/D/Z26,28
B/D/Z/30
B/D/Z22
B/D/Z24
Phase_V
Z8
B/D/Z18
D8
B8
B6
D6
Z6
Z2
X06_4tq
B2
X1tq
To sheet 1, X06_2tq:D6
PGND
00353448 (tq)
Dynamic brake
DBM / 3P / 3-01
B/D/Z/32
Phase_W
Motor_W
Motor_U
Motor_V
PGND
To sheet 1, X06_2tq:B/D/Z32
To sheet 1, X06_2tq:B/D/Z30
To sheet 1, X06_2tq:B/D/Z26,28
To sheet 1, X06_3tq:4
To sheet 1, X06_3tq:3
To sheet 1, X06_3tq:2
Z16;D18
D10
X50tq
Z4,8,20; D22
D6
Z28
D30
D30
Z8; D10; Z16; D18
Z20;D22
Z28
Z4; D6
X51tq
-15V_AXIS
+15V_AXIS
AGND
GND
00353449
5V/±15V
DC/DC converter
00353450
±15V
DC/DC converter
PA1_CAN_L
n.u.
X30_1tq
1
2
3
9
10
5
4
3
15
16
17
14
13
12
GNYE
1
2
7
6
8
GNYE 6.0 mm²
03050919
4.0 mm²GY
4.0 mm²GY
4.0 mm²BK
4.0 mm²BK
GY
BK
GY
BK
1
2
4
3
3
4
2
1
1
2
4
3
1
2
4
3
3
4
2
1
+250V
+250V
+250V
+250V
+250V
+250V
+250V
+250V
PGDND_1
+250V_1
PGND_2
+250V_2
GY
WH
BN
2
1
3
X47tq
POWER_FAIL_24VDC
POWER_FAIL
EMERG._STOP_MAIN_AXIS
POWER_FAIL_24VDC
BN11
SERVO_ENABLE
WH10
POWER_FAIL_AXIS
GY2
03050920
(W5)
(W5)
(W5)
03057572