00195165-05_SM_D4_D4i_DE - 第87页
Servicearbeiten 4.3.2 Schneidgerät BE-Handling Serviceanleitung SIPLACE D4/D4i 87 Sehen Sie dazu auch... 4.3.2.4.1 An zugsdrehmomente de r Schrauben am Schneidgerät [ ➙ 83 ] 6.4.3 Spalt zwischen Leergurtleit blec…

Servicearbeiten
BE-Handling 4.3.2 Schneidgerät
86 Serviceanleitung SIPLACE D4/D4i
VORSICHT! Beachten Sie die Anzugsdrehmo
-
mente der Schrauben.
► Falls Scheiben / Bleche an der Auflagefläche am
Maschinenständer eingelegt waren, legen Sie diese
wieder bei.
⇨ Es muss an allen 4 Auflagepunkten wieder gleich
hoch untergelegt werden.
► Setzen Sie das neue "Schneidgerät pneumatisch" in
umgekehrter Bewegungsfolge zum Ausbau auf die
Auflageflächen am Maschinenständer und schieben
Sie es bis in die Einschraubposition.
► Setzen Sie jetzt alle 4 Schrauben M6 (4) in die Boh
-
rungen ein, um das Schneidgerät gegen Herunterfal
-
len zu sichern:
► Ziehen Sie es innerhalb der Bohrungen so weit wie
möglich vom LP-Transport weg.
► Ziehen Sie die Schrauben etwas fest.
► Nehmen Sie die Abdeckung (14) von der Steue
-
rungsplatineund vom Kabelkanal des neuen
Schneidgerätes ab.
► Stellen Sie die Steckverbindungen der Spannungs
-
versorgung und der Ansteuerung an der Steuerungs
-
platine her (11, 10).
► Befestigen Sie die zum Kabelschacht führenden Ka
-
bel wieder mit einem Kabelbinder am Klebesockel
auf der Steuerungsplatinen-Box (15).
⇨ Die Kabel / Steckverbindungen müssen zugent
-
lastet sein.

Servicearbeiten
4.3.2 Schneidgerät BE-Handling
Serviceanleitung SIPLACE D4/D4i 87
Sehen Sie dazu auch...
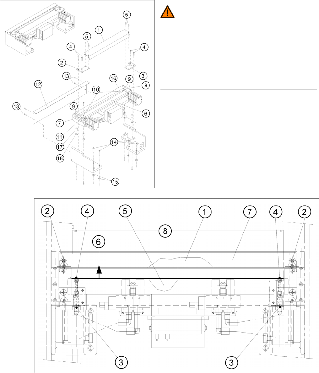
4.3.2.4.1 Anzugsdrehmomente der Schrauben am Schneidgerät [ ➙ 83]
6.4.3 Spalt zwischen Leergurtleitblech innen und Abstreifer-Vorderkante prüfen [ ➙ 224]
4.3.2.4 Übersicht Schneidgerät [ ➙ 82]
3.4.2.2 Übersicht: Mechanischer Aufbau [ ➙ 38]
4.3.2.6
4.3.2.6 Festes und bewegliches Messer um 180° umsetzen
Festes und bewegliches Messer um 180° umsetzen
► Stellen Sie den Druckluftanschluss zur Maschine an
der Y-Steckverschraubung (9) (im Kabelschacht)
her.
► Setzen Sie die Abdeckung wieder auf die Steue
-
rungsplatine und auf den Kabelschacht.
► Bauen Sie den "Leergurtleitkanal komplett" ein und
prüfen Sie den Spalt zwischen Leergurtleitblech in
-
nen und Abstreifer-Vorderkante.
► Ziehen Sie in dieser Position alle 4 Schrauben über
Kreuz fest.
VORSICHT! Beachten Sie die Anzugsdrehmo
-
mente der Schrauben.
► Führen Sie die entsprechenden "Abschließenden Ar
-
beiten" durch.
HINWEIS
Das bewegliche Messer besitzt an beiden Längsseiten eine Schneidkante.
Bei Verschleiß einer Schneidkante kann das Messer weiter verwendet werden, wenn es, 180°
um die Hochachse gedreht, wieder eingesetzt wird.
In diesem Zusammenhang muss auch das feststehende Messer 180° um die Hochachse ge
-
dreht montiert werden.
Wenn bereits beide Kanten stumpf sind, ersetzen Sie die Messer.

Servicearbeiten
BE-Handling 4.3.2 Schneidgerät
88 Serviceanleitung SIPLACE D4/D4i
Ausbau der Messer
Festes und bewegliches Messer aus-/einbauen
WARNUNG! Verletzungsgefahr!
An den Messern und am Abstreifer besteht Verletzungs
-
gefahr.
Tragen Sie feste Schutzhandschuhe!
Fassen Sie niemals von unten in das Schneidgerät oder
von oben in den Leergurtleitkanal.
Stellen Sie sicher, dass sich auch an den ausgebauten,
neben der Maschine abgelegten Messern niemand ver
-
letzen kann!
► Bauen Sie das Schneidgerät aus. (Siehe "4.3.2.5
Schneidgerät pneumatisch ersetzen" [ ➙ 83].)
► Bauen Sie das Prallblech (12) ab: 4 Innensechs
-
kantschrauben M4 x 8 (13).