NPM-DX - 第109页
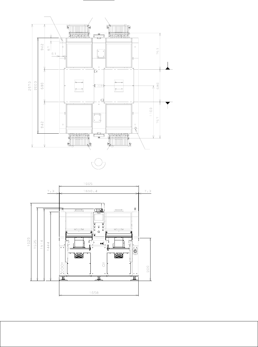
NPM-DX 2018.0601 - 103 - 13. 尺寸图 ( 单位 : mm) Remarks 上述示图的缩小比例与实际机器在严 格上讲,并不完全一致。 在研讨生产线构成和尺寸时,请另行 索取资料。 本机下部如有设置通风道等时,请确 保与主体间空隙保持 40 mm 以上。 交换台车规格 ( 主体 ) ( 基板传送高度 ) ( 传送带宽度 ) ( 罩外形 ) 前 侧 Air 电源 基板传送基准 ( 前侧轨道 )…

NPM-DX 2018.0601
- 102 -
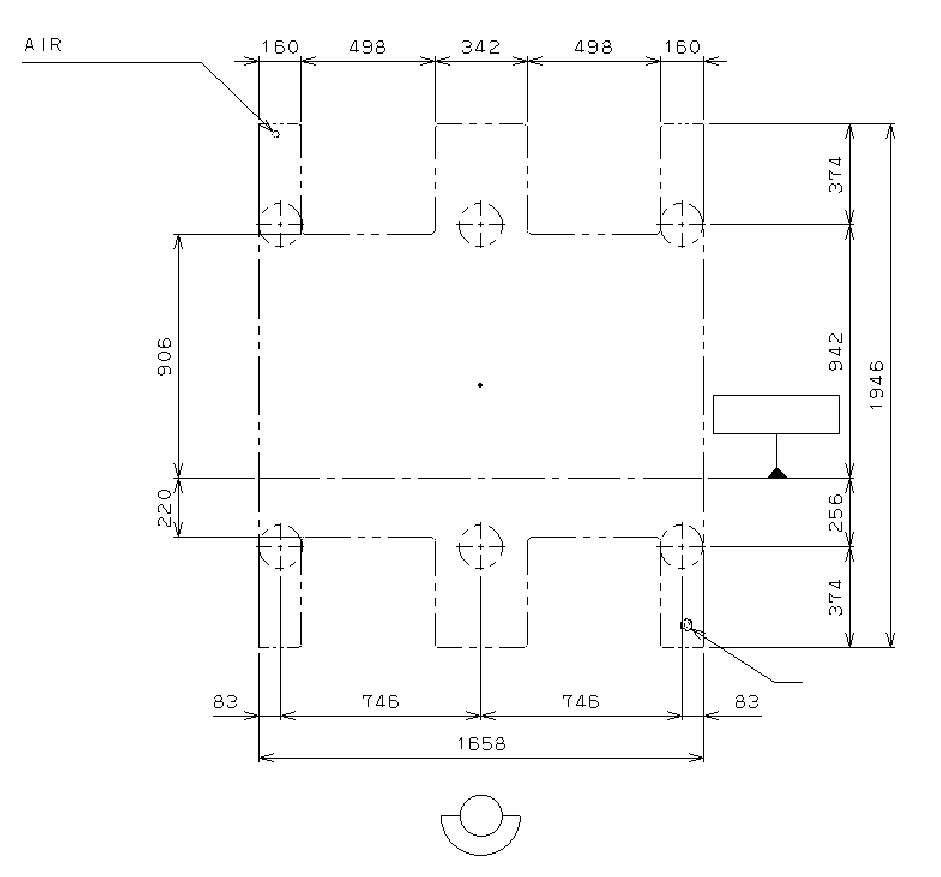
12.2
空气投入部
后 侧
空气软管(长度: 5 m)
80PN
(
日东工器
)
30SM-TS
(
日东工器
)
工厂侧配管连接口
直径
: Rc3/8
设备附带部件 客户准备

NPM-DX 2018.0601
- 103 -
13.
尺寸图
(
单位
: mm)
Remarks
上述示图的缩小比例与实际机器在严格上讲,并不完全一致。
在研讨生产线构成和尺寸时,请另行索取资料。
本机下部如有设置通风道等时,请确保与主体间空隙保持 40 mm 以上。
交换台车规格
(主体)
(
基板传送高度
)
(传送带宽度)
(罩外形)
前 侧
Air
电源
基板传送基准
(前侧轨道)
基板传送基准
(后侧轨道)
交换台车
交换台车

NPM-DX 2018.0601
- 104 -
■ 调整螺栓的配置图
(
单位
: mm)
前 侧
传送带基准面
电源
0.5MPa ~ 0.8MPa