NPM-DX - 第66页
NPM-DX 2018.0601 - 60 - 6. 其他标准规格 6.1 程序功能 数据编制都是在数据编制系统 NPM-DGS 进行。在 NPM- DGS 作成的生产数据,通过 LN B (FA 电脑 ) 下载于设备 。 但是,部分数据修正也可在机器主体 上进行。 在设备主体修正的数据以及校正内容 被保存,可以再利用。 ※ NPM-DGS 用 的硬件,请客户准备。 (NPM-DGS 是其他产品。 ) NPM-DGS 以及 NPM-DG…

NPM-DX 2018.0601
- 59 -
5.11 自动恢复
发生吸附错误、识别错误时,进行自动恢复动作,削减停止次数,从而降低废品率。
■ 自动恢复时机
1)吸附错误、识别错误停止时
在发生设备错误时,无需停止设备,即可进行自动恢复。
2)废品率倾向恶化时
自动分析吸附错误、识别错误倾向,有恶化倾向时进行自动恢复,
防止废品率的增加。
■ 自动恢复动作
1)吸附位置自动示教
吸附位置能够自动示教的元件,进行吸附位置的自动示教。
根据容许值设定,在容许值范围以外有元件时,进行元件传送,进行再次、吸附位置的自动示教。
2)再吸附动作
吸附位置无法自动示教的异型元件,不传送元件而进行再吸附。
■ 条件设定
功能使用、未使用、动作时机等的条件设定,能够在 LWS 进行生产线的整体设定。
FA
电脑
(
LNB
)
自
自
动
动
倾
倾
向
向
分
分
析
析
自
自
动
动
恢
恢
复
复
、
、
示
示
教
教
吸附位置能够自动示教的元件
无
无
容
容
许
许
值
值
有
有
容
容
许
许
值
值
发生错误
(无停止)
传送
自动示教
识别 OK
位置
自动补正
传送
自动示教
识别 OK
容许 OK
异
异
型
型
元
元
件
件
发生错误
(无停止)
不传送
再吸附
吸附位置无法自动示教的元件
自动示教
识别 OK
容许 NG
(容许OK为止)
发生错误
(无停止)
传送
OK
NG
位置
自动补正

NPM-DX 2018.0601
- 60 -
6. 其他标准规格
6.1 程序功能
数据编制都是在数据编制系统 NPM-DGS 进行。在 NPM-DGS 作成的生产数据,通过 LNB (FA 电脑)下载于设备。
但是,部分数据修正也可在机器主体上进行。
在设备主体修正的数据以及校正内容被保存,可以再利用。
※ NPM-DGS 用的硬件,请客户准备。(NPM-DGS 是其他产品。)
NPM-DGS
以及 NPM-DGS 选购件的许可证,是每 1 台设备需要 1 个许可证,
需要购买相同设备数量的许可证。
有关 NPM-DGS 的详细内容,请参照别册的「NPM-DGS 规格说明书」。
6.2 信号塔
信号灯的颜色和亮灯标准
信号灯
颜色
分 类 亮灯标准
红色 紧急停止错误
・ 马达等的轴异常
・ 空气压力下降
・ 基板支撑部异常
・ 贴装头故障
・ 编带故障 等
黄色 中途停止错误
・ 吸附错误
・ 贴装错误
・ 基板传送错误
・ 元件用完
・ 吸嘴更换错误 等
绿色 运转中
自动运转等动力为 ON 时
(但是,红色和黄色闪烁时熄灯)
蓝色或者
红色
连接的设备中,成为瓶颈的设备(循环时间最长的设备)蓝色灯亮。
另外,按紧急停止开关,红色灯亮。
※ 亮灯规格,能够变更设定。
数据编制系统 NPM-DGS
网板 Gerber 数据
(锡膏检查时)
设备设定
最佳化
生产数据
PCB数据
元件数据
标准
:
横置
距离地面
1 514 mm
红
黄
绿
红
黄
绿
距离地面
1 629 mm
也可以纵置。
高度从地面开始是
1 629 mm
。
(
蓝色或者红色
)
(
蓝色或者红色
)

NPM-DX 2018.0601
- 61 -
7. 印刷基板设计基准
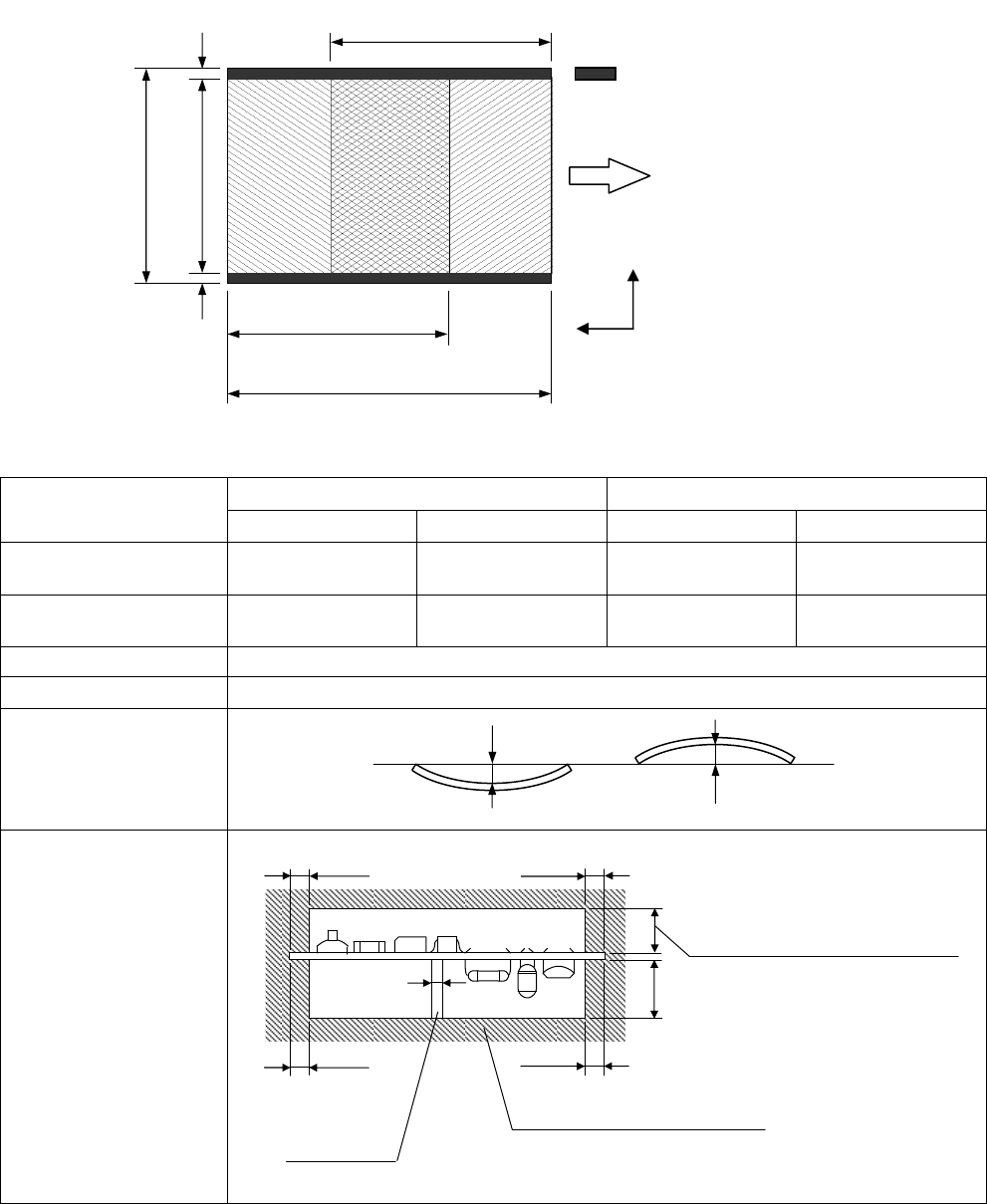
7.1 印刷基板规格概要
※1 ( ) 内的数値: 单轨模式时
※2 ( ) 内的数値: 短型规格传送带时
项 目
长型规格传送带 短型规格传送带
双轨模式 单轨模式 双轨模式 单轨模式
基板尺寸
50 × 50 mm ~
510 × 300 mm
50 × 50 mm ~
510 × 590 mm
50 × 50 mm ~
460 × 300 mm
50 × 50 mm ~
460 × 590 mm
贴装可能范围
50 × 44 mm ~
510 × 294 mm
50 × 44 mm ~
510 × 584 mm
50 × 44 mm ~
460 × 294 mm
50 × 44 mm ~
460 × 584 mm
0.3 mm ~ 8.0 mm
基板厚度 3 kg 以下 (实装后的状态,包括载体重量。)
※3
基板重量
基板断面
基板弯曲容许
※3 基板重量(包括载体重量)超过 3 kg 的情况时,请另行联络。
※4 使用支撑销自动更换功能的情况时,支撑销形状、销的配置条件等有异。
详细内容请参阅「9. 选购件: 支撑销的自动更换」。
※ 有关陶瓷基板的对应请另行联络。
Y
X
固定侧
禁止有元件或者锡膏
)
的范围
3 mm
3 mm
分割实装时的贴装范围
350 mm (275 mm)
※
2
44 mm ~ 294 mm
(44 mm ~ 584 mm)
※1
50 mm ~ 300 mm
(50 mm ~ 590 mm)
※1
分割实装时的贴装范围
350 mm (275 mm)
※
2
50 mm ~ 510 mm
(50 mm ~ 460 mm)
※
2
流向
Max. 0.5 mm
Max. 0.5 mm
禁止有元件的范围
支撑销
※
4
(
设置在与反面元件距离隔开
2 mm
以上的位置。
)
28 mm
3 mm
3 mm
3 mm
φ
3
3 mm
轻量
16
吸嘴贴装头
V2 : 6.5 mm
轻量
8
吸嘴贴装头
: 12 mm
4
吸嘴贴装头
: 30 mm