KE-2040-Rev09 - 第124页
- 11 9 - 6 3 .W IR IN G DI AG RA M (1 ) WIRING DIAGRAM(1) E924 9 U V W TB1 2 3 NF B AC 200 V IN PUT MAI N SW 1- 4C TB 2 TB3 LF-FG A C I NPU T U NIT TF1 PW R ON LA MP CN 060 TB 2 CN07 M TC POW ER (R ) TB2 CN 06 MTC PO WER…

- 118 -
NOTE( 注記 ) #01....FOR 2040(12MM) 2040(12 MM)用
#02....FOR 2040(20MM) 2040(20 MM)用
REF.NO NOTE PART NO D E S C R I P T I O N
品 名
Qty
1 400-52695 COPLANALITY PC COVER(2000)
コプラナリティ PC カバー(2000)
1
2 SL-6032542-TN SCREW
座金付き六角穴ボルト
2
3 E9676-729-000 VGA TRANSFER SWITCH
VGA 切換器
1
4 400-46151 COPLANARITY UNIT
コプラナリティユニット
1
5 SL-6041292-TN SCREW
座金付き六角穴ボルト
4
6 E2157-998-000 COPLANARITY QFP TOOL V1
コプラナリティー QFP 治具 V 1
1
7 E1049-729-000 RUBBER SHEET
アジャスタゴムシート
2
8 HX-0034400-00 HARNESS PARTS
束線パーツ
2
9 SL-6030892-TN SCREW
座金付き六角穴ボルト
4
10 E6504-729-000 CABLE CLAMP
コプラケーブルクランプ B
1
11 SL-6051292-TN BOLT
座金付き六角穴ボルト
2
12 E6505-729-000 COVER RMR (COPLANARITY)
カバー RMR(コプラ)
1
13 HX-0055600-00 EDGE SADDLE
エッジサドル
1
14
#01
E6501-729-000 SENSOR BRACKET 12
コプラセンサブラケット12
1
15
#02
E6500-729-000 SENSOR BRACKET 2025
コプラセンサブラケット2025
1
16 SL-6062092-TN SCREW M6 L=20
座金付き六角穴ボルト
2
17 SL-6041092-TN SCREW
座金付き六角穴ボルト
1
18 400-46151 COPLANARITY UNIT
コプラナリティユニット
1
19 E9674-729-A00 FILTER UNIT(RECEIVE)
フィルタユニット(受光側)
(1)
20 E9674-729-B00 FILTER UNIT(SEND)
フィルタユニット(投光側)
(1)
21 E6506-729-000 TR6 GUIDE PLATE
TR 6ガイドプレート
1
22 SL-6051692-TN BOLT
座金付き六角穴ボルト
2
23 E2156-998-000 COPLA HORIZONTAL FEED SHAFT
コプラ水平出し治具
1
24 E2155-998-000 COPLANARITY QFP TOOL 20
コプラナリティー QFP 治具20
1

- 119 -
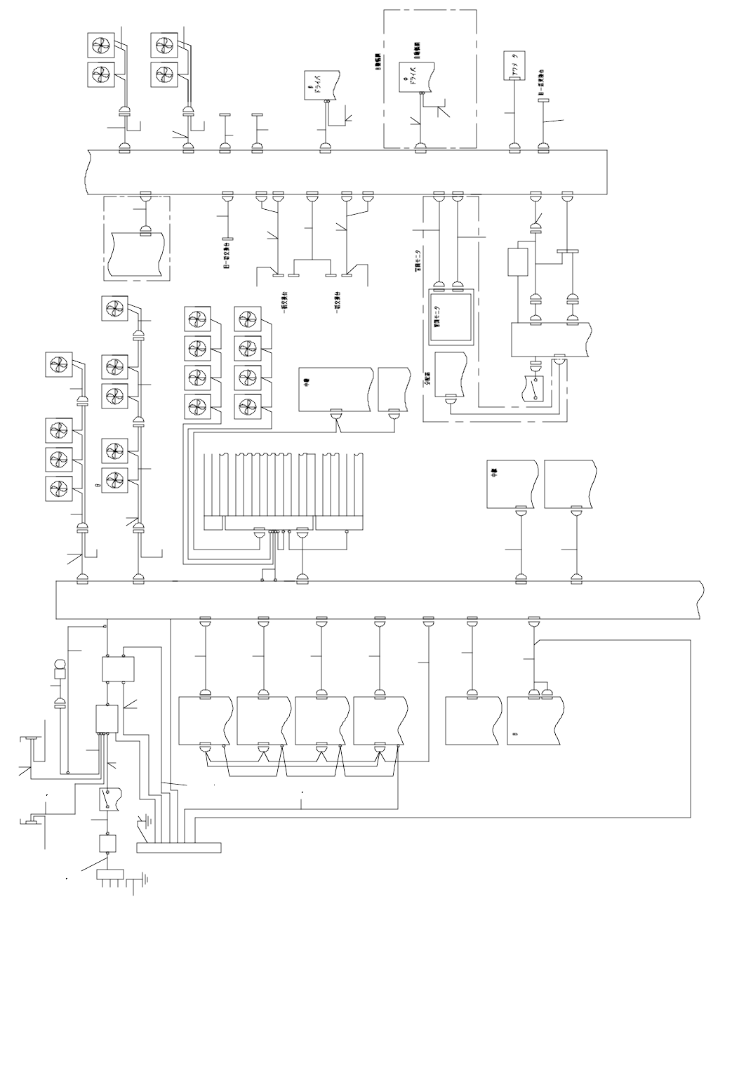
63.WIRING DIAGRAM (1)
WIRING DIAGRAM(1)
E9249
U
V
W
TB1
2 3
NFB
AC 200 V
IN PUT
MAI N
SW
1-4C
TB2
TB3
LF-FG
A C INPU T U NIT
TF1
PW R ON
LAMP
CN060
TB2
CN07
M TC POW ER
(R)
TB2
CN06
MTC POWER
(R)
XL
-CN8
XL
D RIV ER
CN8
2-2A
XL-CN9
XR
D RIV ER
XL
-CN8 XR-CN9
2-2A
CN8
CN9
CN8
2-2A
YL-CN9
YL
D RIV ER
YL
-CN8
CN9
YR
D RIV ER
YR-CN9
CN9
2-2A
CN8
YR
-CN8
2-3B
CN5
XY-CN5
XY SERVO
DRI VER CP U
Z1-CN5
Z D RIV ER
(1)
3-2A
CN5
CN12
Z1-CN12
CN9
POW ER
UNI T
CN010
CN009
CN003
CN004
CN001
CN002
CN008
CN041
CN042
1-4A
CN035
CN020
CN036
TB4
TB5
CN064
TB 2
CN061
C ONT ROL UNIT TOP FA N YR MOTOR FAN
CN065
Z SE RVO FA N
CN062
XY SERVO FAN
C ONT ROL UNIT BTM FA N(L )
CN063
YL MOTOR FAN
C ONT ROL UNIT BTM FA N(R )
CN 0 9 2
VM E
TB 2
CN2
CN3
TB
CPC I
CN 0 9 3
IMG -CP U
(8-1C)
LIG HT CTR L(L )
BAS E-F EED ER
I/O CTRL
SAF ETY
(8-1A)
(4-1A)
(5-1A)
(6-1A)
MCM R
(3-1D)
MCM L
(3-1C)
VER FY I/F
(1-4A)
BUS -BR IGE
(2-1A)
XMP O(S UB)
(2-1A)
XMP O(M AIN )
(7-3A)
CPU
XMP
PC B.
CN26
CN126
FDD
PWR
FD D
2-2A
7-4A
O PERA TIO N
PC B.
CN601
CN713
CN1
CN13
6-1B
2-4A
C ARR Y
PC B.
OP TIO N(C VS)
V ERF Y I /F
P CB.
1-3B
8-4A
J5
S9-5
1-2D
P OWE R
U NIT
CN 0 5 2
CN 0 3 4
CN 0 2 6
CN 0 2 8
CN 0 3 2
CN 0 2 4
CN 0 3 0
CN 0 5 1
CN029
CN054
CN016
CN015
CN047
CN013
CN011
CN012
CN304
(5-4C)
TB2
CN505
CN502
(5-3A)
(F )
CN502
CN505
(5-3B)
(R )
TB2
(7-4A)
PS
O PTI ON( )
CN067
35 36
BA SE FAN (R)
BA SE FAN (L)
TB 2
CN066
VCS MONIT OR
(8-1D)
CN709
TB 2
CN655
(2-4A)
CE NT MO TOR (L)
DR IV ER
TB 2
TB
2-5B
5
BU(L ) DRI VER
5
2-4C
TB
TB 2
O PTI ON(
)
DR IVE R
37
-
CN304
(F)
(5-4B)
CN029
16
12
65
66
13
15
5
64
4
4
6
4
8
45
47
7
22
23
11
14
17 18 19 20
21
41
42
55 53
32
26
27
28
24
25
29
30
31
58
50
44
56
51
52
57
59
9
33
43
34
54 38
40
39
60
62 6163
1
49
6
CN 0 3 7
(SVGA)
VGA
7-4C
LIG HT CTR L(R )
8
10
TB2
UPS
CN007
CN006
CN096
PS
D C12 V
CN006
CN095A
CN095

- 120 -
NOTE( 注記 ) #01....FOR USE IN JAPAN 日本用
#02....FOR CE CE 用
#03....EXCEPT ZN ZN を除く
#04....FOR ZN ZN 用
REF.NO NOTE PART NO D E S C R I P T I O N
品 名
Qty
1 E9217-729-0A0 HAUR METER ASM.
アワ−メ−タ組
1
2 E9218-729-0A0 BREAKER INPUT CABLE ASM.
ブレ−カ入力ケ−ブル組
1
3
#02
E9218-729-DA0 BREAKER INPUT CABLE ASM.
ブレーカ入力ケーブル組
1
4 E9219-729-0A0 BREAKER OUTPUT CABLE ASM.
ブレ−カ出力ケ−ブル組
1
5 E9220-729-0A0 MAIN SW OUTPUT CABLE ASM.
メイン SW 出力ケ−ブル組
1
6 E9221-729-0A0 PWR ON LIGHT ASM. PWR ON ライト組 1
7 E9222-729-0A0 PWR ON LIGHT RELAY CABLE ASM.
PWR ON ライト中継ケ−ブル組
1
8
#02
E9222-729-DA0 PWR ON LIGHT RELAY CABLE ASM.
PWR ON ライト中継ケーブル組
1
9
#02
E9251-729-DA0 BASE FAN (L) RELAY CABLE ASM.
ベースファン(L)中継ケーブル組
1
10 E9678-729-000 POWER SOUCE CABLE ASM.
背面モニタ電源ケーブル組
1
11
#01
E9228-729-0A0 TF1 FG CABLE ASM.
TF 1 FG ケ−ブル組
1
12 E9230-729-0A0 TB2 FG CABLE ASM.
TB 2 FG ケ−ブル組
1
13
#01
E9231-729-0A0 SECONDARY SIDE FG CABLE ASM.
TF 1 二次側 FG ケ−ブル組
1
14
#03
E9228-729-DA0 TF1 FG CABLE ASM.
TFI FG ケーブル組
1
15
#03
E9231-729-DA0 SECONDARY SIDE FG CABLE ASM.
TFI 二次側 FG ケーブル組
1
16 E9223-729-0A0 TG1 FG CABLE ASM.
TB 1 FG ケ−ブル組
1
17 E9232-729-0A0 XL DRV POWER SOURCE CABLE ASM.
XL DRV 電源ケ−ブル組
1
18 E9233-729-0A0 XR DRV POWER SOURCE CABLE ASM.
XR DRV 電源ケ−ブル組
1
19 E9234-729-0A0 YL DRV POWER SOURCE CABLE ASM. YL DRV 電源ケ−ブル組 1
20 E9235-729-0A0 YR DRV POWER SOURCE CABLE ASM.
YR DRV 電源ケ−ブル組
1
21 E9237-729-0A0 AC SERVO +15V CABLE ASM.
AC サ−ボ+15 V ケ−ブル組
1
22 E9238-729-0A0 AC SERVO FG CABLE ASM.
AC サ−ボ FG ケ−ブル組
1
23
#02
E9238-729-DA0 AC SERVO FG CABLE ASM.
AC サーボ FG ケーブル組
1
24 E9244-729-0A0 Z/THETA FAN RELAY CABLE ASM.
Z / θ ファン中継ケ−ブル組
1
25
#02
E9244-729-DA0 Z/THETA FAN RELAY CABLE ASM.
Z 10 ファン中継ケーブル組
1
26 E9245-729-0A0 Z/THETA FAN ASM.
Z / θ ファン組
1
27 E9246-729-0A0 XY FAN ASM.
XY ファン組
1
28 E9247-729-0A0 YL MOTOR FAN ASM.
YL モ−タ ファン組
1
29 E9248-729-0A0 TOP FAN RELAY CABLE ASM.
CTRL ユニツト TOP ファン中継ケ−ブル組
1
30 #02 E9248-729-DA0 TOP FAN RELAY CABLE ASM. CTRL ユニット TOP ファン中継ケーブル組 1
31 E9249-729-0A0 CTRL UNIT TOP FAN ASM.
CTRL ユニツト TOP ファン組
1
32 E9250-729-0A0 YR MOTOR FAN ASM.
YR モ−タ ファン組
1
33 E9251-729-0A0 BASE FAN(L) RELAY CABLE ASM.
ベ−スファン(L)中継ケ−ブル組
1
34 E9252-729-0A0 BASE FAN(L) ASM.
ベ−スファン(L)組
1
35 E9253-729-0A0 BASE FAN(R) RELAY CABLE ASM.
ベ−スファン(R)中継ケ−ブル組
1
36
#02
E9253-729-DA0 BASE FAN(R) RELAY CABLE ASM.
ベースファン(R)中継ケーブル組
1
37 E9254-729-0A0 BASE FAN(R) ASM.
ベ−スファン(R)組
1
38 E9255-729-0A0 BU DRV POWER SOURCE CABLE ASM.
BU DRV 電源ケ−ブル組
1
39 E9256-729-0A0 BU DRV FG CABLE ASM.
BU DRV FG ケ−ブル組
1
40
#02
E9256-729-DA0 BU DRV FG CABLE ASM.
BU DRV FG ケーブル組
1
41 E9261-729-0A0 POWER SOURCE CABLE ASM.
AC サ−ボ DC 電源ケ−ブル組
1
42
#01
E9281-729-0A0 DRV1 POWER SOURCE CABLE ASM.
Z / θ DRV 1電源ケ−ブル組
1
43 E9297-729-0A0 POWER SOURCE CABLE ASM. 画像モニタ電源ケ−ブル組 1
44 E9357-729-0A0 DC RELAY CABLE ASM.
バンク DC 中継ケ−ブル組
1
45
#02
E9298-729-DA0 MTC PWR CABLE (L) ASM.
MTC PWR ケーブル(L)組
1
46
#02
E9299-729-DA0 MTC PWR CABLE (R) ASM.
MTC PWR ケーブル(R)組
1
47 E9298-729-0A0 MTC PWR CABLE (L) ASM.
MTC PWR ケ−ブル(L)組
1
48 E9299-729-0A0 MTC PWR CABLE (R) ASM.
MTC PWR ケ−ブル(R)組
1
49 E9567-729-0A0 POWER SOURCE CABLE ASM.
旧一括交換台電源ケ−ブル組
1
50 E9568-729-0A0 POWER SOURCE CABLE ASM.
旧一括交換台電源ケ−ブル組
1
51
#02
E9359-729-DA0 RELAY CABLE (F) ASM.
カッタ電源(F)中継ケーブル組
1
52
#02
E9361-729-DA0 RELAY CABLE (R) ASM.
カッタ電源(R)中継ケーブル組
1
53 E9382-729-0A0 POWER SOURCE CABLE ASM.
オペパネ電源ケ−ブル組
1
54 E9413-729-0A0 POWER SOURCE CABLE ASM.
CENT モ−タ(L)電源ケ−ブル組
1
55 E9458-729-0A0 CONVEYOR MOTOR AC CABLE ASM.
搬送モ−タ AC ケ−ブル組
1
56 #01 E9359-729-0A0 F RELAY CABLE ASM. カッタ電源(F)中継ケ−ブル組 1
57
#01
E9361-729-0A0 R RELAY CABLE ASM.
カッタ電源(R)中継ケ−ブル組
1
58 E9563-729-0A0 VERFY POWER SOURCE CABLE ASM.
ベリファイ電源ケーブル組
1
59 E9561-729-0A0 POWER SOURCE CABLE ASM.
背面モニタ電源ケーブル組
1
60 E9257-729-0A0 DRV POWER SOURCE CABLE ASM.
自動幅調 DRV 電源ケ−ブル組
1
61 E9258-729-0A0 WIDTH ADJUST DRV FG CABLE ASM.
自動幅調 DRV FG ケ−ブル組
1
62
#04
E9524-729-HA0 DRV POWER SOURCE CABLE ASM.
自動幅調 DRV 電源ケーブル組
1
63
#04
E9258-729-HA0 WIDTH ADJUST DRV FG CABLE ASM.
自動幅調 DRV FG ケーブル組
1
64
#04
E9220-729-DA0 MAIN SW OUTPUT CABLE ASM.
メイン SW 出力ケーブル組
1
65 E9537-729-0A0 FG CABLE ASM.
FG 端子台(JE)FG ケーブル組
1
66
#03
E9537-729-DA0 FG CABLE ASM.
FG 端子台(RR)FG ケーブル組
1