KE-2040-Rev09 - 第132页
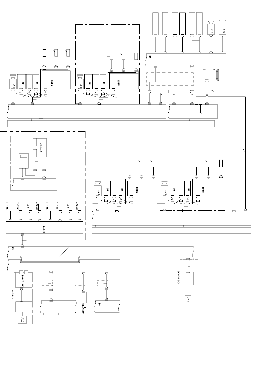
- 12 7 - 6 7 .W IR IN G DI AG RA M (5 ) WIRING DIAGRAM(5) M E V OPTI ON( ) AM P PCB . 13 2 P P 1- 3B 5- 1C I/O CTRL PCB. LS3-9 CN9 X,Y CABL E BEAR 3 1 C N245 CN805 5 X CABLE BEAR (X ) CN6 CN5 3- 2D 6-1A XMP PCB. CN9 LS3-…

- 126 -
REF.NO NOTE PART NO D E S C R I P T I O N
品 名
Qty
1 E9285-729-0A0 1,2 MOTOR ENC CABLE ASM.
Z / θ 1,2 モ−タ ENC ケ−ブル組
1
2 E9289-729-0A0 HEAD I/O CABLE 1 ASM.
ヘッド I / O ケ−ブル 1組
1
3 E9293-729-0A0 1,2 POWER SOURCE CABLE ASM.
Z / θ 1,2 電源ケ−ブル組
1
4 E9523-729-0A0 Z LMT SHORT CONECTOR ASM.
Z LMT ショ−トコネクタ組
1
5 E9701-729-000 Z/THETA 1 CTRL CABLE
Z / θ 1 CTRL ケ−ブル
1
6 E9702-729-000 Z/THETA 2 CTRL CABLE
Z / θ 2 CTRL ケ−ブル
1
7 E9725-729-B00 THETA ENC CABLE (2040)
θ 治具 ENC ケ−ブル(2040)
1
8 E9848-729-0A0 XY BEAR CABLE (40) ASM.
XY ベア束線(40)組
1
9 E9848-729-0A0 XY BEAR CABLE (40) ASM.
XY ベア束線(40)組
1
10 E9848-729-0A0 XY BEAR CABLE (40) ASM.
XY ベア束線(40)組
1
11 E9320-729-0A0 LA(L) CABLE ASM.
LA(L)ケ−ブル組
1

- 127 -
67.WIRING DIAGRAM (5)
WIRING DIAGRAM(5)
M
E
V
OPTION( )
AM P
PCB.
13
2
P
P
1-3B
5-1C
I/O CTRL
PCB.
LS3-9
CN9
X,Y CABLE
BEAR
3
1
CN245
CN805
5
X CABLE BEAR
(X
)
CN6
CN5
3-2D
6-1A
XMP
PCB.
CN9
LS3-9
CN806
CN246 CN801
CN1
2
X,Y CABLE
BEAR
4
AM P
OPTION(
)
12
CN10
CN860
8-2C
CN868
CN18 CN1
Z1/2
7
CN9
PCB.
Z1
14
Z1
14 9
Z1
(CN5)
CN8
CN6
(CN2)
(CN7)
CN3
CN4
(CN8)
(CN9)
CN5
CN2
(CN6)
(CN3)
CN7
(CN4)
10 911 1110
Z1
3-3D 3-2D
HEAD
MAIN
PCB.
HEAD
PCB.
P
1
P
2
M
E
V
P
1
2
P
1-3B
LIGHT CTRL
(R)PCB.
CN1
CN4
CN2
CN5
CN6
CN3
LS4-1
LS4-4
LS4-5
LS4-6
LS4-3
VCS(L)
19
VC S
(L)
VCS LIGHT
(
L)
(SIDE L)
VCS LIGHT
(
L)
VCS LIGHT
(
L)
VCS LIGHT
28
VCS UP S.V.(L)
VCS UP SENS.(L)
VCS DOWN SENS.(L)
32
( L)
CSP LIGHT
(SIDE L)
CSP LIGHT
(
L)
CSP LIGHT
CS P
(L)
LS4-2 CSP(L)
( L)
CSP LIGHT
33
34
36
VCS DOWN SENS.(L )
VCS UP SENS.(L)
35
VCS UP S.V.(L)
OPTION(VCS)
15
CN503
17
CN4
CN3
LS6-4
LS6-3
16
1-3B
IMG-CPU
PCB.
CN 6
LS6-2
CN2
20
IN
CN709
37
PWR
(1-5B)
VCS MONITOR
CN501
22
21
X,Y CABLE
BEAR
CN853
CN854
1-3B
HEAD
PCB.
CN15
CN11
CN12
CN13
CN14
CN 4
CN 3
CN865
CN861
CN862
CN863
CN864
25 26
27
23 24
OCC(L)
OCC(R)
OCC
(R)
OCC
(L)
OCC
L
OCC LIGHT(L)
PCB.
OCC
R
OCC LIGHT(R)
PCB.
GREEN LIGHT(R)
PCB.
GREEN LIGHT(R)
PCB.
M
E
V
P
2
VERFY
I/F PCB.
(OPTION)
1-4A
J1
J3
29
30
31
P043 J043
P042 J042
OPTION(CVS)
Z2
Z2
Z2
Z2
1
LS5-1
65
M
E
V
LIGHT CTRL
(L)PCB.
CN 2
CN 4
VCS(L)
1-3B
62
( R)
(SIDE R)
OPT ION(VCS)
VCS UP SENS.(R)
8
VCS DOWN SENS.(R)
6
VCS UP S.V.(R)
64
( R)
CN 1
CN 5
CN 6
LS5-4
P
1
P
2
CN 3
LS5-5
LS5-6
LS5-3
50
51
VCS
(R)
VCS LIGHT
VCS DOWN SENS.(R)
VCS UP SENS.(R)
VCS LIGHT
(
R)
VCS LIGHT
63
VCS UP S.V.(R)
(
R)
VCS LIGHT
V-SUPR
V-UP
V-DWN
( R)
CSP LIGHT
(SIDE R)
CSP LIGHT
CSP LIGHT
(
R)
CSP
(R)
LS5-2 CSP(L)
CSP LIGHT
54
55 56
57
53
61
60
59
58
52
V-SUPOR
V-UP
V-DWN
45
18
44
43
42
49
39
48
47
46
V-SUPL
V-UP
V-DWN
38
V-DWN
V-UP
V-SUPOP
CN5
41
GREEN LIGHT(L)
PCB.
CN862
GREEN LIGHT(L)
PCB.
CN6
40
CN10
CN6
66

- 128 -
NOTE( 注記 ) #01....OPTIONAL PARTS オプション部品
REF.NO NOTE PART NO D E S C R I P T I O N
品 名
Qty
1 E9322-729-0A0 SERIAL PARALLEL CABLE ASM.
L ヘッド シリパラケ−ブル組
1
2 E9324-729-0A0 L HEAD POWER SOURCE CABLE ASM.
L ヘッド 電源ケ−ブル組
1
3 E9848-729-0A0 XY BEAR CABLE (40) ASM.
XY ベア束線(40)組
1
4 E9848-729-0A0 XY BEAR CABLE (40) ASM.
XY ベア束線(40)組
1
5 E9848-729-0A0 XY BEAR CABLE (40) ASM.
XY ベア束線(40)組
1
6 #01 E9526-729-0A0 VCS (UP) SENSOR ASM. VCS(UP)センサ組 1
7 E9337-729-0A0 Z1,2 SENSOR CABLE ASM.
Z 1,2センサケ−ブル組
1
8
#01
E9526-729-0A0 VCS (UP) SENSOR ASM.
VCS(UP)センサ組
1
9 E9341-729-0A0 Z PRESSURE SENSOR CABLE ASM.
Z 圧力センサケ−ブル組
1
10 E9342-729-0A0 Z VACUUM CABLE ASM.
Z バキュ−ムケ−ブル組
1
11 E9343-729-0A0 Z BLOW CABLE ASM.
Z ブロ−ケ−ブル組
1
12 E9554-729-0A0 BAD MARK SENSOR ASM.
バッドマークセンサ組
1
13 E9576-721-0A0 HIGHT SENSOR CABLE 2 ASM.
ハイトセンサケ−ブル2組
1
14 E9340-729-0A0 Z REDUCE SPEED SENSOR ASM.
Z 減速センサ組
1
15 E9327-729-0B0 OCC LIGHT RELAY CABLE ASM.
OCC ライト中継ケーブル組
1
16 E9329-729-0A0 OCC CAMERA(L) RELAY CABLE ASM.
OCC カメラ(L)中継ケ−ブル組
1
17 E9490-729-0A0 VCC CAMERA CABLE (L) ASM.
VCC カメラ通信ケ−ブル(L)組
1
18 E9593-729-0B0 VCS LIGHT CABLE (L) ASM.
VCS ライトケーブル(L)組
1
19 E9498-729-0B0 VCS CAMERA CABLE (L) ASM. VCS カメラケーブル(L)組 1
20 E9525-729-0A0 PORTRAIT MONITOR CABLE ASM.
画像モニタケーブル組
1
21 E9848-729-0A0 XY BEAR CABLE (40) ASM.
XY ベア束線(40)組
1
22 E9330-729-0A0 OCC CAMERA CABLE ASM.
OCC カメラケ−ブル(ベア)組
1
23 E9331-729-0A0 OCC CAMERA CABLE (L) ASM.
OCC カメラケ−ブル(L)組
1
24 E9332-729-0A0 OCC CAMERA CABLE (R) ASM.
OCC カメラケ−ブル(R)組
1
25 E9333-729-0A0 OCC LIGHT (L) CABLE ASM.
OCC ライト(L)ケ−ブル組
1
26 E9334-729-0A0 OCC LIGHT (R) CABLE ASM.
OCC ライト(R)ケ−ブル組
1
27 E9336-729-0A0 G LIGHT (R) CABLE ASM.
G ライト(R)ケ−ブル組
1
28 E9595-729-0A0 VCS.S.V. (L) ASM.
VCS.S.V.(L)組
1
29 E9588-705-0A0 VRFY SV I/F CABLE ASM.
VRFY SV I / F ケ−ブル組
1
30 E9589-705-0A0 VRFY SV CABLE ASM. VRFY SV ケ−ブル組 1
31 E9591-705-0A0 CABLE ASM.
VRFY プロ−ブケ−ブル組
1
32 E9526-729-0A0 VCS (UP) SENSOR ASM.
VCS(UP)センサ(L)組
1
33 E9527-729-0A0 VCS (DOWN) SENSOR ASM.
VCS(DOWN)センサ(L)組
1
34 E9597-729-0A0 VCS.OPT.S.V.(L)
VCS OPT.S.V.(L)組
1
35
#01
E9526-729-0A0 VCS (UP) SENSOR ASM.
VCS(UP)センサ(L)組
1
36
#01
E9527-729-0A0 VCS (DOWN) SENSOR ASM.
VCS(DOWN)センサ(L)組
1
37 400-33517 VISION MONITOR BRACKET ASM
画像モニタブラケット組
1
38 E9499-729-0B0 OPTION VCS CAMERA CABLE ASM.
オプション VCS カメラケーブル組
1
39 E9594-729-0B0 OPTION VCS LIGHT CABLE ASM.
オプション VCS ライトケーブル組
1
40 E9491-729-0B0 VCS CAMERA CABLE (R) ASM.
VCS カメラ通信ケーブル(R)組
1
41 E9335-729-0B0 G LIGHT CABLE (L) ASM.
G ライト(L)ケーブル組
1
42 E9840-729-0A0 VCS LIGHT RELAY CABLE (3) ASM
VCS ライト中継ケーブル(3)組
1
43 E9839-729-0A0 VCS LIGHT RELAY CABLE (2) ASM VCS ライト中継ケーブル(2)組 1
44 E9839-729-0A0 VCS LIGHT RELAY CABLE (2) ASM
VCS ライト中継ケーブル(2)組
1
45 E9838-729-0A0 VCS LIGHT RELAY CABLE (1) ASM
VCS ライト中継ケーブル(1)組
1
46 E9840-729-0A0 VCS LIGHT RELAY CABLE (3) ASM
VCS ライト中継ケーブル(3)組
1
47 E9839-729-0A0 VCS LIGHT RELAY CABLE (2) ASM
VCS ライト中継ケーブル(2)組
1
48 E9839-729-0A0 VCS LIGHT RELAY CABLE (2) ASM
VCS ライト中継ケーブル(2)組
1
49 E9838-729-0A0 VCS LIGHT RELAY CABLE (1) ASM
VCS ライト中継ケーブル(1)組
1
50 E9496-729-0A0 VCS LIGHT CABLE (L) ASM.
VCS カメラケーブル(L)組
1
51 E9591-729-0A0 VCS LIGHT CABLE (L) ASM.
VCS ライトケーブル(L)組
1
52 E9499-729-BA0 CSP CAMERA CABLE (L) ASM.
CSP カメラケーブル(L)組
1
53 E9594-729-BA0 CSP LIGHT CABLE (L) ASM.
CSP ライトケーブル(L)組
1
54 E9840-729-0A0 VCS LIGHT RELAY CABLE (3) ASM
VCS ライト中継ケーブル(3)組
1
55 E9839-729-0A0 VCS LIGHT RELAY CABLE (2) ASM
VCS ライト中継ケーブル(2)組
1
56 E9839-729-0A0 VCS LIGHT RELAY CABLE (2) ASM VCS ライト中継ケーブル(2)組 1
57 E9838-729-0A0 VCS LIGHT RELAY CABLE (1) ASM
VCS ライト中継ケーブル(1)組
1
58 E9840-729-0A0 VCS LIGHT RELAY CABLE (3) ASM
VCS ライト中継ケーブル(3)組
1
59 E9839-729-0A0 VCS LIGHT RELAY CABLE (2) ASM
VCS ライト中継ケーブル(2)組
1
60 E9839-729-0A0 VCS LIGHT RELAY CABLE (2) ASM
VCS ライト中継ケーブル(2)組
1
61 E9838-729-0A0 VCS LIGHT RELAY CABLE (1) ASM
VCS ライト中継ケーブル(1)組
1
62 E9595-729-0A0 VCS.S.V. (L) ASM.
VCS.S.V.(L)組
1
63 E9526-729-0A0 VCS (UP) SENSOR ASM.
VCS(UP)センサ組
1
64 E9527-729-0A0 VCS (DOWN) SENSOR ASM.
VCS(DOWN)センサ組
1
65 E9598-729-BA0 VCS OPT.S.V.(L) ASM.
VCS OPT.S.V.(L)組
1
66 E9849-729-0A0 HEAD PWB I/F CABLE ASM.
ヘッド基板 I / F ケーブル組
1