KE-2040-Rev09 - 第54页
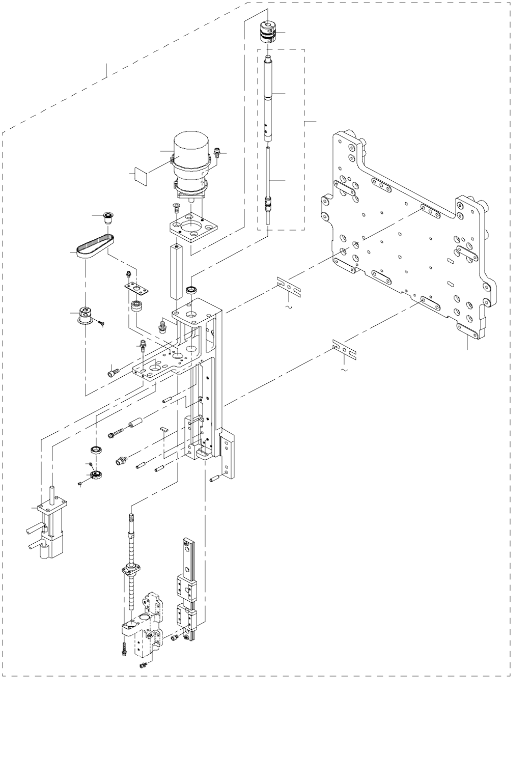
- 49 - 2 5 .LAIC H E AD COM PO N E NT S ( 1 ) LAIC ヘッド関係(1) 7 8 8 12 10 13 11 22 2 3 5 6 4 9 15 18 21 15 18 19 14 20 1

- 48 -
NOTE( 注記 ) #01....EXCEPT CE CE を除く
#02....FOR CE CE 用
REF.NO NOTE PART NO D E S C R I P T I O N
品 名
Qty
1 400-00574 DRIVE CYLINDER ASSY
ドライブシリンダ組
1
2 400-00575 DRIVE CYLINDER L
ドライブシリンダ L
(1)
3 400-00576 DRIVE CYLINDER R
ドライブシリンダ R
(1)
4 400-08458 DRIVER SUPPORT
ドライバーサポート
(1)
5 SL-6052092-TN SCREW
座金付き六角穴ボルト
(6)
6 SL-6051292-TN SCREW
座金付き六角穴ボルト
(2)
7 400-23687 DRIVE CYLINDER CABLE
ドライブシリンダーケーブル
(2)
8 PV-1399050-00 3 PORT ELECTROMAGNETIC VALVE
3ポート電磁弁
(1)
9 PJ-3010651-06 KNIFE UNION
メスユニオン
1
10
#01
E2508-729-0A0 CONNECTOR BRACKET ASM.
コネクタブラケット組
1
11
#02
E2508-729-AA0 CONNECTOR BRACKET ASM.
コネクタブラケット組
1
12
#02
HK-0429900-8A CAP
キャップ
(1)
13
#01
E8615-715-0A0 FEEDER BANK CIRCUIT BOARD ASM.
フィ−ダバンク基板組
(1)
14
#02
E8615-715-0A0 FEEDER BANK CIRCUIT BOARD ASM.
フィ−ダバンク基板組
(2)
15 SM-4860601-SC SCREW M2.6 L=6
なべ小ねじ M 2.6 L =6
(16)
16 E8618-721-0A0 FEEDER I/F BOARD ASM.
フィ−ダ I / F 基板組
(1)
17 B4011-210-000 SPACER
基板スペ−サ
(4)
18 NM-6030003-SC NUT M3
六角ナット M 3
(4)
19 SM-4020801-SC SCREW M2 X 8
なべ小ねじ M 2 L =8
(4)
20 HX-0029400-00 FIXED BASE
固定ベース
(1)
21 SM-4030601-SC SCREW M3 X 6
なべ小ねじ M 3 X 0.5 L =6
(1)
22 E2904-700-000 SOCKET
ソケット
(2)
23 PJ-3010651-06 KNIFE UNION
メスユニオン
(2)
24 PJ-2300061-00 UNION 06
隔壁用ユニオン 06
(1)
25 PJ-3050600-04 TEE
チ−ズ
(1)
26 PJ-0320090-05 NIPPLE
エアカプラニップル
(1)
27 E2642-721-000 CONNECTOR NO. LABEL
コネクタ NO.ラベル
(1)
28 BT-0600400-EC TUBE HOSE, BLUE
ウレタンホ−ス 青
(1.3)
29 EA-9500B01-00 CABLE BAND
束線バンド
(4)
30 E2508-729-000 CONNECTOR BRACKET
コネクタブラケット
(1)
31 SM-4031201-SC SCREW M3 X 12
なべ小ねじ M 3 X 0.5 L =12
(4)
32
#02
HN-0017900-0B NOISE FILTER
ノイズフィルタ
(6)
33
#02
HN-0017900-0D FERRITE CLAMP
フェライトクランプ
(4)
34 HX-0032600-0M DOME PLUG
ドーム プラグ
1
35 HX-0041100-00 CABLE PARTS
束線パーツ
3
36 E2904-700-000 SOCKET
ソケット
1
37 PJ-3080600-03 Y UNION
ユニオンワイ
2

- 49 -
25.LAIC HEAD COMPONENTS (1)
LAIC ヘッド関係(1)
7
8
8
12
10
13
11
22
2
3
5
6
4
9
15
18
21
15
18
19
14
20
1

- 50 -
REF.NO NOTE PART NO D E S C R I P T I O N
品 名
Qty
1 E3100-729-0A0 LAIC HEAD ASM.
LAIC ヘッド組
1
2 SL-6041242-TN SCREW
座金付き六角穴ボルト
(4)
3 E3023-721-000 COUPLING
カップリング
(2)
4 E3120-729-0A0 SPLINE HOUSING IC ASM.
スプラインハウジング IC 組
(2)
5 E3121-729-000 SPLINE HOUSING IC
スプラインハウジング IC
(1)
6 E3122-729-000 BALL SPLINE IC
ボールスプライン IC
(1)
7 E3015-729-000 SP THRUST COLLAR
SP スラストカラー
(2)
8 SM-8030312-TP SCREW M3 L=3
止めねじ M 3 L =3
(4)
9 E3019-729-000 Z PULLEY
Z プーリ
(2)
10 E3020-729-000 Z MOTOR PULLEY
Z モータプーリ
(2)
11 SM-6020752-TN SCREW M2 L=7
六角穴ボルト M 2 L =7
(2)
12 E9629-729-000 Z AXIS AC SERVO MOTOR (30W)
Z 軸 AC サ−ボモ−タ(30 W)
(2)
13 SL-6041692-TN SCREW
座金付き六角穴ボルト M 4 L =16
(8)
14 E3021-729-000 TIMING BELT Z
タイミングベルト Z
(2)
15 E3019-721-000 HAED CENTER SHIM A
ヘッドセンタシム A
(4)
16 E3020-721-000 HAED CENTER SHIM B
ヘッドセンタシム B
(4)
17 E3021-721-000 HAED CENTER SHIM C
ヘッドセンタシム C
(4)
18 E3047-729-000 HAED CENTER SHIM D
ヘッドセンタシム D
(1)
19 E3858-715-000 SEAL
手触れ禁止シール
(2)
20 E3341-729-000 HEAD PLATE 40
ヘッドプレート40
(1)
21 SM-6051202-TN SCREW M5X0.8 L=12
六角穴ボルト M 5 X 0.8 L =12
(4)
22 E9631-729-000 AC SERVO MOTOR (30W)
IC θ 軸 AC サ−ボモ−タ(30 W)
(2)