KE-2040-Rev09 - 第74页
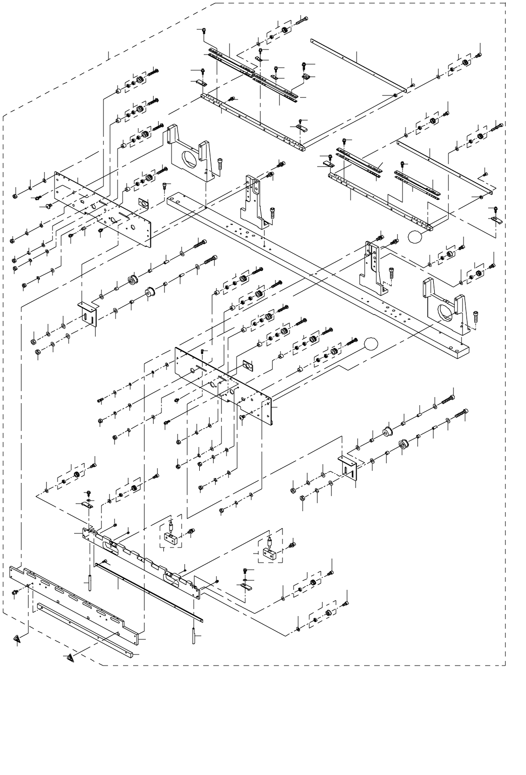
- 69 - 35. P WB CONVEYO R C O M P ONENT S ( 3) 2 040L ( 1) 基板搬送関係(3)2040 L(1) 11 13 13 45 46 46 44 47 48 48 51 52 45 44 11 39 47 41 65 65 33 32 31 28 30 30 31 32 30 31 32 28 2 5 9 38 54 56 37 29 7 10 11 11 12 12 12 14 14…

- 68 -
NOTE( 注記 ) #01....FOR OUT LINE REFERENCE 外形基準用
*INSTALLATION PSITION AND DIRECTION VARY IF THE PWB TRANSFER
REFERENCE IS DIFFERENT.
基板搬送基準が異なると取付位置、方向が変わります。
REF.NO NOTE PART NO D E S C R I P T I O N
品 名
Qty
1 E4073-729-0A0 CONVEYOR RAIL R ASM.
搬送レ−ル R 組 M
1
2 E2070-725-000 RAIL PLATE RL
レールプレート RL
(1)
3 SL-6041092-TN SCREW
座金付き六角穴ボルト
(2)
4 E2071-725-000 RAIL PLATE RR
レールプレート RR
(1)
5 SL-6041092-TN SCREW
座金付き六角穴ボルト
(2)
6 E4049-729-000 CONVEYOR RAIL (M)
搬送レール(M)
(2)
7 SL-6031292-TN SCREW
座金付き六角穴ボルト
(8)
8 E2046-725-000 PWB INNER
PWB インナ
(6)
9 SL-6031092-TN SCREW
座金付き六角穴ボルト
(8)
10 SL-4031081-SC SCREW M3 X 10
なべねじセムス M 3 L =10
(4)
11 E2041-725-000 PWB GUIDE U
PWB ガイド U
(4)
12 E4042-729-000 PWB GUIDE L (M)
PWB ガイド L(M)
(4)
13 SL-6031092-TN SCREW
座金付き六角穴ボルト
(8)
14 E4110-729-0A0 CONVEYOR PULLEY A ASM.
搬送プ−リ A 組
(10)
15 E4111-729-0A0 CONVEYOR PULLEY B ASM.
搬送プ−リ B 組
(8)
16 E4112-729-0A0 CONVEYOR PULLEY C ASM.
搬送プ−リ C 組
(2)
17 SM-6040810-SC SCREW M4X0.7 L=8
平小ねじ M 4 X 0.7 L =8
(8)
18 SM-6042510-SC SCREW M4X0.7 L=25
平小ねじ M 4 X 0.7 L =25
(4)
19 WP-0430800-SC WASHER M4
平座金小形丸 M 4
(12)
20 SM-4042501-SC SCREW M4X0.7 L=25
なべ小ねじ M 4 X 0.7 L =25
(8)
21 WP-0430801-SC WASHER 4.3X9X0.8
平座金 4.3 X 9 X 0.8
(12)
22 NM-6040001-SC NUT M4
六角ナット M 4
(12)
23 WS-0410002-KN SPRING WASHER
ばね座金 M 4
(12)
24 E2055-721-000 PULLEY SPACER
プーリスペーサ
(8)
25 E4074-729-000 SUPPORT PLATE C (M)
サポートプレート C(M)
(1)
26 SL-6041692-TN SCREW
座金付き六角穴ボルト M 4 L =16
(10)
27 E4118-729-000 DRIVE PULLEY R
ドライブプーリ R
(3)
28 E2160-721-000 PULLEY FLANGE
プーリフランジ
(6)
29 SL-6030892-TN SCREW
座金付き六角穴ボルト
(18)
30 E3931-750-000 PULLEY WASHER
プーリ スラスト ワッシャ
(6)
31 E2076-725-000 SUPPORT PLATE S
サポートプレート S
(2)
32 SL-6042092-TN SCREW M4 L=20
座金付き六角穴ボルト
(7)
33 E4072-729-000 RAIL GUIDE R (M)
レールガイド R(M)
(1)
34 E4073-729-000 CONVEYOR RAIL C (M)
搬送レール RC(M)
(1)
35 E4065-729-000 CONVEYOR BELT GUIDE (M)
搬送ベルトガイド(M)
(1)
36 SM-1030601-SC SCREW M3 L=6
皿小ねじ M 3 X 0.5 L =6
(5)
37 E4105-729-0A0 SHAFT SUPPORT B ASM.
シャフトサポート組
(2)
38 SL-6041092-TN SCREW
座金付き六角穴ボルト
(4)
39 SM-8030302-TP SCREW M3X0.5 L=3
止めねじ M 3 X 0.5 L =3
(2)
40 E2176-721-000 RAIL GUIDE SHAFT
レールガイドシャフト
(2)
41 SM-8040502-TP SCREW M4X0.7 L=5
止めねじ M 4 X 0.7 L =5
(2)
42 E2075-725-000 SAFETY BAR
セーフティバー
(1)
43 SL-4040841-SE SCREW M4 L=8
なべねじセムス M 4 L =8
(4)
44 E4050-729-000 CONVEYOR BELT GUIDE S (M)
搬送ベルトガイド S(M)
(2)
45 SM-1030601-SC SCREW M3 L=6
皿小ねじ M 3 X 0.5 L =6
(8)
46
#01
HX-0029400-00 FIXED BASE
固定ベース
1
47
#01
SL-6041092-TN SCREW
座金付き六角穴ボルト
1
48
#01
E2120-725-000 PUSHER PLATE
プッシャプレート
1
49
#01
E2161-721-000 PUSHER
プッシャ
5
50
#01
PA-0600505-A0 AIR CYLINDER
エアシリンダ
5
51
#01
PJ-0460525-01 ELBOW
バ−ブエルボ
1
52
#01
PJ-0460590-05 CONNECTOR
バーブ継手
4
53
#01
E2165-721-000 PUSHER SPACER
プッシャスペーサ
4
54
#01
WP-0430801-SC WASHER 4.3X9X0.8
平座金 4.3 X 9 X 0.8
4
55
#01
WS-0410002-KN SPRING WASHER
ばね座金 M 4
4
56
#01
NM-6040001-SC NUT M4
六角ナット M 4
4
57
#01
WP-1052000-SD WASHER M10
平座金 M 10
10

- 69 -
35.PWB CONVEYOR COMPONENTS (3) 2040L (1)
基板搬送関係(3)2040 L(1)
11
13
13
45
46
46
44
47
48
48
51
52
45
44
11
39
47
41
65
65
33
32
31
28
30
30
31
32
30
31
32
28
2
5
9
38
54
56
37
29
7
10
11
11
12
12
12
14
14
14
15
15
14
15
16
55
16
21
21
11
8
40
40
49
50
54
16
11
8
55
54
17
22
17
22
25
22
42
43
53
57
58
53
58
57
60
33
33
38
9
35
34
34
35
36
32
31
30
23
26
24
26
24
23
17
22
25
17
15
12
61
63
64
63
59
59
59
63
62
63
64
59
59
63
61
63
64
59
33
59
59
63
64
63
62
1
25
19
23
3
29
37
25
22
17
20
18
27
26
24
23
6
22
22
17
25
22
17
25
A
A
4
25
17
22
22
25
19
20
18
27
20
18
27
20
27
20
18
27
18
23
24
26
20
18
27
23
23
26
24
23
26
24
26
24
26
24
23
24
26
23
26
24
18
27
20
26
24
23
26
24
23
20
18
27
20
27
18
20
18
27

- 70 -
NOTE( 注記 ) *INSTALLATION PSITION AND DIRECTION VARY IF THE PWB TRANSFER
REFERENCE IS DIFFERENT.
基板搬送基準が異なると取付位置、方向が変わります。
REF.NO NOTE PART NO D E S C R I P T I O N
品 名
Qty
1 E4244-729-0A0 CONVEYOR RAIL F ASM. L
搬送レ−ル F 組 L
1
2 E2248-725-000 RAIL PLATE FR
レールプレート FR
(1)
3 SM-0050801-SC SCREW
トラスねじ M 5 L =8
(4)
4 SL-6041492-TN SCREW
座金付き六角穴ボルト
(2)
5 E2247-725-000 RAIL PLATE FL
レールプレート FL
(1)
6 SM-0050801-SC SCREW トラスねじ M 5 L =8 (4)
7 SL-6041492-TN SCREW
座金付き六角穴ボルト
(2)
8 E4249-729-000 CONVEYOR RAIL (L)
搬送レール(L)
(2)
9 SL-6031092-TN SCREW
座金付き六角穴ボルト
(2)
10 SL-6031292-TN SCREW
座金付き六角穴ボルト
(8)
11 E2046-725-000 PWB INNER
PWB インナ
(6)
12 SL-6031092-TN SCREW
座金付き六角穴ボルト
(8)
13 SM-6031002-TN BOLT M3 L=10
六角穴ボルト M 3 L =10
(4)
14 E2241-725-000 PWB GUIDE U
PWB ガイド U
(4)
15 E4242-729-000 PWB GUIDE (L)
PWB ガイド L(L)
(4)
16 SL-6031092-TN SCREW
座金付き六角穴ボルト
(8)
17 E4110-729-0A0 CONVEYOR PULLEY A ASM.
搬送プ−リ A 組
(8)
18 E4111-729-0A0 CONVEYOR PULLEY B ASM.
搬送プ−リ B 組
(1 0)
19 E4112-729-0A0 CONVEYOR PULLEY C ASM. 搬送プ−リ C 組 (2)
20 E2055-721-000 PULLEY SPACER
プーリスペーサ
(1 0)
21 SM-6042510-SC SCREW M4X0.7 L=25
平小ねじ M 4 X 0.7 L =25
(2)
22 WP-0430800-SC WASHER M4
平座金小形丸 M 4
(1 0)
23 WP-0430801-SC WASHER 4.3X9X0.8
平座金 4.3 X 9 X 0.8
(1 2)
24 WS-0410002-KN SPRING WASHER
ばね座金 M 4
(1 2)
25 SM-6040810-SC SCREW M4X0.7 L=8
平小ねじ M 4 X 0.7 L =8
(8)
26 NM-6040001-SC NUT M4
六角ナット M 4
(1 2)
27 SM-4042501-SC SCREW M4X0.7 L=25
なべ小ねじ M 4 X 0.7 L =25
(1 0)
28 E2050-725-000 PULLEY BRACKET
プーリブラケット
(2)
29 SL-6041092-TN SCREW
座金付き六角穴ボルト
(4)
30 WP-0531001-SC WASHER 平座金みがき丸 M 5 (1 2)
31 WS-0510002-KN SPRING WASHER
ばね座金 5.1 X 9.2 X 1.3
(4)
32 NM-6050001-SC NUT M5
六角ナット M 5 X 0.8 1種
(4)
33 SM-6052502-TN HEXAGONAL-HOLE BOLT
六角穴ボルト
(4)
34 WP-0320500-SF WASHER 3.2X7X0.5
平座金小形丸 M 3
(4)
35 WP-0330516-SC WASHER 3.3X8X0.5
平座金 3.3 X 8 X 0.5
(4)
36 SM-6031002-TN BOLT M3 L=10
六角穴ボルト M 3 L =10
(2)
37 E2012-721-000 ADJUST PLATE
アジャストプレート
(2)
38 SL-6030692-TN SCREW
座金付き六角穴ボルト
(4)
39 E4243-729-000 RAIL GUIDE F(L)
レールガイド F(L)
(1)
40 SL-6041492-TN SCREW
座金付き六角穴ボルト
(4)
41 E4244-729-000 CONVEYOR FC (L)
搬送レール FC(L)
(1)
42 E4265-729-000 CONVEYOR BELT GUIDE (L)
搬送ベルトガイド(L)
(1)
43 SM-1030601-SC SCREW M3 L=6 皿小ねじ M 3 X 0.5 L =6 (5)
44 E4105-729-0A0 SHAFT SUPPORT B ASM.
シャフトサポート組
(2)
45 SL-6041092-TN SCREW
座金付き六角穴ボルト
(4)
46 SM-8030302-TP SCREW M3X0.5 L=3
止めねじ M 3 X 0.5 L =3
(2)
47 E2176-721-000 RAIL GUIDE SHAFT
レールガイドシャフト
(2)
48 SM-8040502-TP SCREW M4X0.7 L=5
止めねじ M 4 X 0.7 L =5
(2)
49 E2090-725-000 WEIGHT SENSOR BLOCK
ウェイトセンサブロック
(1)
50 SL-6031492-TN SCREW
座金付き六角穴ボルト
(2)
51 E4245-729-000 GUIDE RAIL (L)
ガイドレール(L)
(1)
52 SL-6041042-TN SCREW
座金付き六角穴ボルト
(4)
53 E4113-729-000 GUIDE RAIL SPACER
ガイドレールスペーサ
(4)
54 HX-0034400-00 HARNESS PARTS
束線パーツ
(3)
55 SL-6030692-TN SCREW
座金付き六角穴ボルト
(1)
56 SL-6030592-TN SCREW M3 L=5 座金付き六角穴ボルト (1)
57 E4250-729-000 CONVEYOR BELT GUIDE S (L)
搬送ベルトガイド S(L)
(2)
58 SM-1030601-SC SCREW M3 L=6
皿小ねじ M 3 X 0.5 L =6
(8)
59 WP-0531001-SC WASHER
平座金みがき丸 M 5
(1 2)
60 WP-0320501-SC WASHER M3
平座金 3.2 X 7 X 0.5
(4)
61 E2157-721-000 PULLEY B
プーリ B
(2)
62 E2016-715-000 IDLER PULLEY
アイドラプーリ
(2)
63 E2017-715-000 M LINER BUSH
M ライナブッシュ
(8)
64 E2018-715-000 PULLEY SLEEVE
プーリ スリーブ
(4)
65 CM-3002000-03 ATTENTION LABEL
指けが注意シール(31.5)
2