KE-3020_KE-3020R-Rev05 - 第114页
- - 54. PWBCONVEY ORCOMPONENTS( 18)(TYPEXL) 2 5 2 3 2 3 2 6 9 1 0 1 1 1 8 1 9 7 8 8 6 2 0 2 2 2 4 1 2 1 3 1 4 1 5 1 6 1 7 2 1 1 7 1 2 2 4 1 4 1 3 2 7 4 4 4 5 4 6 6 4 8 4 2 1 5 2 4 1 5 3 4 7 B 5 3 7 2 7 1 7 0 7 3 6 6…

- -
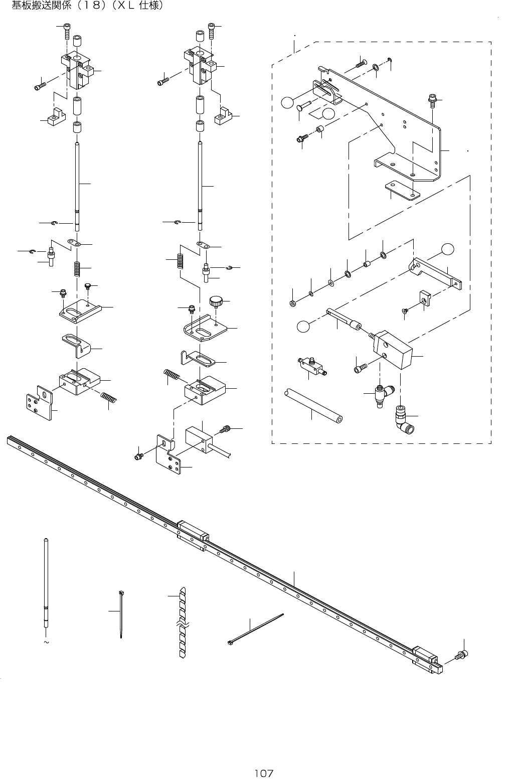
REF.NO NOTE PARTNO DESCRIPTION Qty
1 400-98133 RAIL_SUPPORT_XL 1
2 400-98158 CONVEYOR_MOTOR_ASM_XL 1
3 400-93941 CONVEYOR_MOTOR_C_ASM_L (1)
4 400-01009 MOTORBRAKETC(L) (1)
5 400-00870 MOTORPULLEYC (1)
6 SM-8030602-TP SCREWM3X0.5L=6 (3)
7 400-00869 MOTORADJUSTPLATE (1)
8 400-48074 CENTERMOTORASM (1)
9 SL-6041642-TN SCREW (4)
10 SL-6051292-TN BOLT (2)
11 400-98159 CONVEYOR_MOTOR_LR_ASM_XL (2)
12 400-30592 MOTORBRACKETA (1)
13 400-48074 CENTERMOTORASM (2)
14 SL-6041242-TN BOLT (4)
15 400-00870 MOTORPULLEYC (1)
16 SM-8030602-TP SCREWM3X0.5L=6 (3)
17 SL-6051492-TN BOLT (2)
18 SL-6051092-TN BOLT (8)
19 BT-0400251-EA TUBEHOSE,BLUE 0.3
20 SL-6051092-TN BOLT 2
21 SL-6041092-TN SCREW 2
22 400-98128 PUSHER_PLATE_XL 1
23 400-46992 FIBER_NUT 3
24 E2165-721-000 PUSHERSPACER 4
25 WP-0430801-SC WASHERM4 4
26 WS-0410002-KN SPRINGWASHERM4 4
27 NM-6040001-SC NUTM4X0.7TYPE1 4
28 401-23832 Y_PUSHER_V_ASM 7
29 PJ-0460525-01 ELBOW 1
30 PJ-0460590-05 CONNECTOR 6
31 HX-0029400-00 FIXEDBASE 1
32 HX-0034400-00 HARNESSPARTS 3
33 SL-6030692-TN SCREWM3L=6 1
34 SL-6030692-TN SCREWM3L=6 3
35 SL-6030692-TN SCREWM3L=6 2
36 SL-6031092-TN SCREW 1
37 SL-6031092-TN SCREW 2

- -
54.PWBCONVEYORCOMPONENTS(18)(TYPEXL)
2 5
2 3
2 3
2 6
9
1 0
1 1
1 8
1 9
7
8
8
6
2 0
2 2
2 4
1 2
1 3
1 4
1 5
1 6
1 7
2 1
1 7
1 2
2 4
1 4
1 3
2 7 4 4
4 5
4 6
6
4 8
4
2
1
5
2
4
1
5
3
4 7
B
5 3
7 2
7 1
7 0
7 3
6 6
6 9
A
6 5
6 8
6 8
A
6 3
6 7
5 8
5 9
6 1
5 7
5 6
B
5 5
5 4
4 9 5 0
5 1 5 2
6 4
6 0
7 4
7 5
6 2

- -
REF.NO NOTE PARTNO DESCRIPTION Qty
1 400-00887 GUIDE_BLOCK_A_ASM 2
2
#03
SM-6031002-TN SCREWM3L=10 4
3 400-98140 LINER_WAY_XL 1
4 400-00877 GUIDEBLOCKCLAMP 2
5 SM-6041602-TN SCREWM4X16 2
6
#03
400-15793 LOCKSPRING 2
7
#03
L1792-721-000 DAMPERBLOCKR 1
8
#03
SL-6030892-TN SCREWM3L=8 4
9
#03
400-00891 STOPERSLIDELEVERL 1
10
#03
400-00897 STOPERSLIDELEVERR 1
11
#03
L179E-621-000 DAMPERBLOCKL 1
12
#03
400-00978 DAMPERLOCKLINK 2
13
#03
400-00950 DAMPERSPRING 2
14
#03
RE-0300000-K0 E-RING3 6
15
#03
EA-9500B00-00 CABLEBAND 1
16
#03
HX-0031400-00 SPIRALTABE 0.3
17
#03
400-01081 CENTERINGPIN4.0 2
18
#03
400-15791 DAMPERPLATEL 1
19
#03
400-15792 DAMPERPLATER 1
20
#03
400-92576 T.PINSENSASM 1
21
#03
SL-6030692-TN SCREWM3L=6 1
22
#03
SL-4031091-SC SCREWM3L=10 2
23
#03
RE-0300000-K0 E-RING3 2
24
#03
400-00896 DAMPERLOCKPIN 2
25
#01
E2148-721-000 SENSORBRACKETR 1
26
#02
E2147-721-000 SENSORBRACKETL 1
27
#03
400-01087 CENTERINGPIN3.4 1
28
#03
400-01088 CENTERINGPIN3.3 1
29
#03
400-01089 CENTERINGPIN3.2 1
30
#03
400-01090 CENTERINGPIN3.1 1
31
#03
400-01091 CENTERINGPIN3.0 1
32
#03
400-01092 CENTERINGPIN2.9 1
33
#03
400-01093 CENTERINGPIN2.8 1
34
#03
400-01094 CENTERINGPIN2.7 1
35
#03
400-01095 CENTERINGPIN2.6 1
36
#03
400-01096 CENTERINGPIN2.5 1
37
#03
400-01097 CENTERINGPIN2.0 1
38
#03
400-01098 CENTERINGPIN1.9 1
39
#03
400-01099 CENTERINGPIN1.8 1
40
#03
400-01082 CENTERINGPIN3.9 1
41
#03
400-01083 CENTERINGPIN3.8 1
42
#03
400-01084 CENTERINGPIN3.7 1
43
#03
400-01085 CENTERINGPIN3.6 1
44
#03
400-01086 CENTERINGPIN3.5 1
45
#03
E2141-725-000 BUHANDKNOBS 1
46
#03
E2076-721-000 BUHANDKNOB 1
47 SM-6030802-TN SCREW 17
48
#03
EA-9500B01-00 CABLEBAND 8
49
#05
400-99482 STOPPER_L_ASM_XL 1
50
#04
400-98174 STOPPER_R_ASM_XL 1
51
#05
400-98134 STOPPER_FRAME_L_XL (1)
52
#01
400-98135 STOPPER_FRAME_R_XL (1)
53 SL-6030842-TN SCREWM3L=8 (1)
54 400-00910 STOPPERPIN (1)
55 RE-0200000-K0 E-RING2 (1)
56 WP-0320501-SC WASHERM3 (1)
57 400-00911 STOPERCONNECT (1)
58 PA-1002008-A0 AIRCYLINDER (1)
59 SM-6031402-TN SCREWM3X0.5L=8 (2)
60 PC-0105080-00 SPEEDCONTROLLER (1)
61 PJ-3040405-11 ELBOWUNION (1)
62 SL-6041292-TN SCREW (2)
63 E2169-721-000 HOLDPLATE (1)
64 400-00909 STOPER (1)
65 E2233-725-000 STOPPERCHIP (1)
66 SM-1030401-SE SCREWM3L=4 (1)
67 SM-1031201-SC SCREWM3X0.5L=12 (1)
68 E2039-721-000 WASHERA (2)
69 E2038-721-000 STOPPERCOLLAR (1)
70 WP-0330516-SC WASHER3.3X8X0.5 (1)
71 WS-0310002-KN SPRINGWASHERM3 (1)
72 NM-6030001-SC NUTM3X0.5TYPE1 (1)
73 400-23788 STOPERSPACER (1)
74 PC-0124010-00 SPEEDCONTROLLER (1)
75 BT-0400251-EA TUBEHOSE,BLUE (0.5)