KE-3020_KE-3020R-Rev05 - 第163页
- - REF.NO NOTE PARTNO DESCRIP TION Qty 1 400-93596 BANKSUPPORTUNIT 1 2 400-71339 BANK_SUPPORTER_A (4) 3 SL-6104042-TN BOLT (16) 4 WP-1052001-SC WASHER10,5X21X2 (16) 5 400-93613 BANK_SUPPORTER_B_FL_…

- -
78.EFIXEDBANKUNITCOMPONENTS(1)
1
2
4
6
2
2
4
7
1 0
9
1 2
1 3
1 6
1 5
3
3
4
4
3
1 7
1 8
1 7
1 8
2
3
1 8
1 7
1 7
1 8
5
8
1 4
1 1

- -
REF.NO NOTE PARTNO DESCRIPTION Qty
1 400-93596 BANKSUPPORTUNIT 1
2 400-71339 BANK_SUPPORTER_A (4)
3 SL-6104042-TN BOLT (16)
4 WP-1052001-SC WASHER10,5X21X2 (16)
5 400-93613 BANK_SUPPORTER_B_FL_ASM (1)
6 400-71341 BANK_SUPPORTER_B_FL (1)
7 E2623-721-000 BANKLOCATEBUSHB (1)
8 400-93614 BANK_SUPPORTER_B_FR_ASM (1)
9 400-71344 BANK_SUPPORTER_B_FR (1)
10 E2623-721-000 BANKLOCATEBUSHB (1)
11 400-93615 BANK_SUPPORTER_B_RL_ASM (1)
12 400-71345 BANK_SUPPORTER_B_RL (1)
13 E2623-721-000 BANKLOCATEBUSHB (1)
14 400-93616 BANK_SUPPORTER_B_RR_ASM (1)
15 400-71342 BANK_SUPPORTER_B_RR (1)
16 E2623-721-000 BANKLOCATEBUSHB (1)
17 SL-6104042-TN BOLT (16)
18 WP-1052001-SC WASHER10,5X21X2 (16)

- -
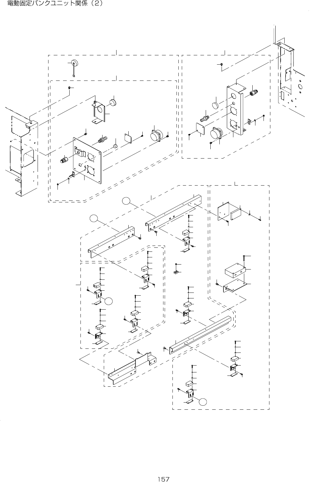
79.EFIXEDBANKUNITCOMPONENTS(2)
4
3
5
6
6
6
7
8
1 0
1 1
1 2
1 2
1 3
1 5
1 4
1 4
1 5
1 3
1 1
1 6
1 6
2
2 7
6
9
1
1 9
2 4
2 6
2 5
2 0
2 4
2 6
2 5
2 2
2 1
2 4
2 6
2 5
2 2
2 2
2 2
1 8
2 3
2 3
2 3
2 3
2 4
2 6
2 5
A
A
2 9
3 3
3 5
3 4
3 1
3 2
B
3 0
3 3
3 5
3 4
3 1
3 2
3 6
B
3 6
1 7
3 7
3 8
3 9
4 0
4 1
4 2
4 3
4 4
4 5
2 8
6 2
6 1
6 3
6 5
7 2
7 0
7 1
6 4
5 8
6 0
5 9
4 7
4 6
5 5
4 9
5 7
5 0
4 8
5 1
5 2
5 3
5 4
5 6
6 6
6 7
6 9
6 8
7 3
7 4
2 7
2 7
2 7