KE-3020_KE-3020R-Rev05 - 第85页
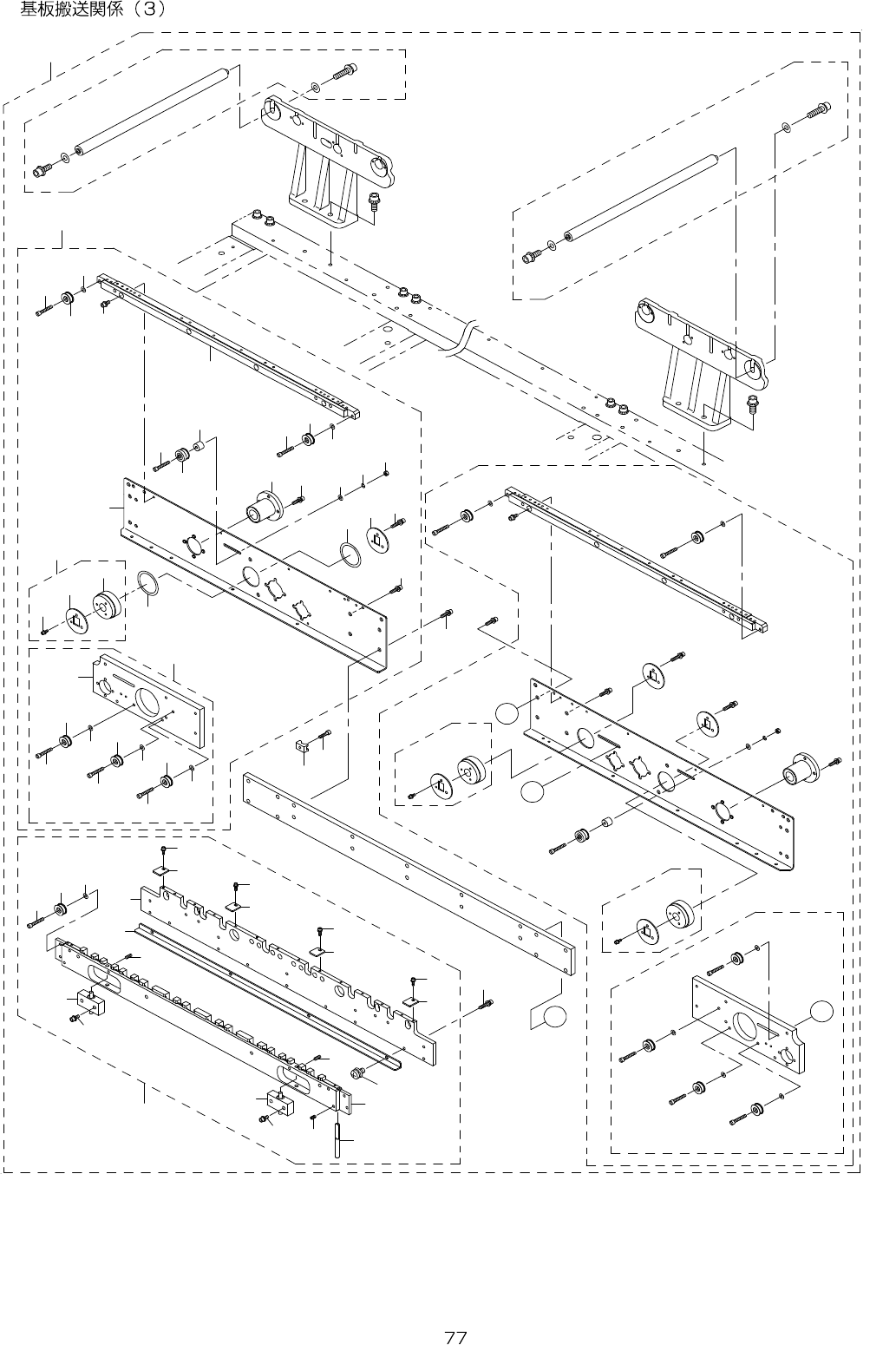
- - REF.NO NOTE PARTNO DESCRIPTION Qty 1 400-93996 CONVEYOR_RAIL_R_ASM_L 1 2 400-93998 RAIL_PLATE_RL_ASM_L (1) 3 400-01059 SUPPORTPLATERLASM(L) (1) 4 WP-0430800-SC WASHERM4 (3) 5 SM-4040855-SC SCRE…

- -
39.PWBCONVEYORCOMPONENTS(3)
3 4
3 5
3 6
3 7
3 4
3 5
3 9
3 8
4 1
4 0
4 8
4 4
4 6
1 9
2 0
2 1
4 2
4 3
2 5
2 6
2 7
1 0
1 0
1 8
1 1
1 6
1 4
2 2
2 3
2 1
6
7
4
5
3 0
3 1
3 2
B
7
4
5
5
4
7
2 4
2 9
9
8
1
4 2
4 3
4 2
4 3
4 2
4 3
4 7
4 5
3 7
3 3
9
2 8
1 5
8
1 7
1 3
1 2
3
2
A
B
A

- -
REF.NO NOTE PARTNO DESCRIPTION Qty
1 400-93996 CONVEYOR_RAIL_R_ASM_L 1
2 400-93998 RAIL_PLATE_RL_ASM_L (1)
3 400-01059 SUPPORTPLATERLASM(L) (1)
4 WP-0430800-SC WASHERM4 (3)
5 SM-4040855-SC SCREW (3)
6 400-01064 SUPPORTPLATERL(L) (1)
7 E2111-715-0A0 CONVEYORPULLEYASM. (3)
8 E2111-715-0A0 CONVEYORPULLEYASM. (2)
9 WP-0430800-SC WASHERM4 (2)
10 SM-4040855-SC SCREW (2)
11 E2089-721-0A0 CONVEYORPULLEYBASM. (1)
12 E2055-721-000 PULLEYSPACER (1)
13 SM-4042501-SC SCREWM4X0.7L=25 (1)
14 WP-0430801-SC WASHERM4 (1)
15 WS-0410002-KN SPRINGWASHERM4 (1)
16 NM-6040001-SC NUTM4X0.7TYPE1 (1)
17 400-00839 DRIVEPULLEYRASM (1)
18 400-00840 DRIVEPULLEYR (1)
19 E2160-721-000 PULLEYFLANGE (1)
20 SL-6030892-TN SCREWM3L=8 (3)
21 E3931-750-000 PULLEYWASHER (2)
22 E2160-721-000 PULLEYFLANGE (1)
23 SL-6030892-TN SCREWM3L=8 (3)
24 SB-8160001-00 BEARING (2)
25 400-93918 RAIL_PLATE_RL_L (1)
26 400-93924 CONVEYOR_RAIL_L (1)
27 SL-6031492-TN SCREWM3L=14 (4)
28 SM-6040802-TN SCREW (8)
29 SL-6041092-TN SCREW (2)
30 SL-6042092-TN SCREWM4L=20 (3)
31 HX-0029400-00 FIXEDBASE (1)
32 SM-6042002-TN BOLT (1)
33 400-93997 CONVEYOR_RAIL_RC_ASM_L (1)
34 E4105-729-0A0 SHAFTSUPPORTBASM. (2)
35 SM-8030302-TP SCREWM3X0.5L=3 (2)
36 400-99520 CONVEYOR_RAIL_RC_L (1)
37 SL-6041092-TN SCREW (4)
38 400-00812 RAILGUIDESHAFT (2)
39 SM-8040602-TP SCREWM4X0.7L=6 (2)
40 E4075-725-000 SAFETYBAR(E) (1)
41 SL-4040841-SE SCREWM4L=8 (4)
42 E2124-721-000 PWBGUIDEPLATERA (14)
43 SL-6030892-TN SCREWM3L=8 (14)
44 E2111-715-0A0 CONVEYORPULLEYASM. (4)
45 WP-0430800-SC WASHERM4 (4)
46 SM-4040855-SC SCREW (4)
47 400-99521 RAIL_GUIDE_R_L (1)
48 SL-6041692-TN SCREWM4L=16 (10)

- -
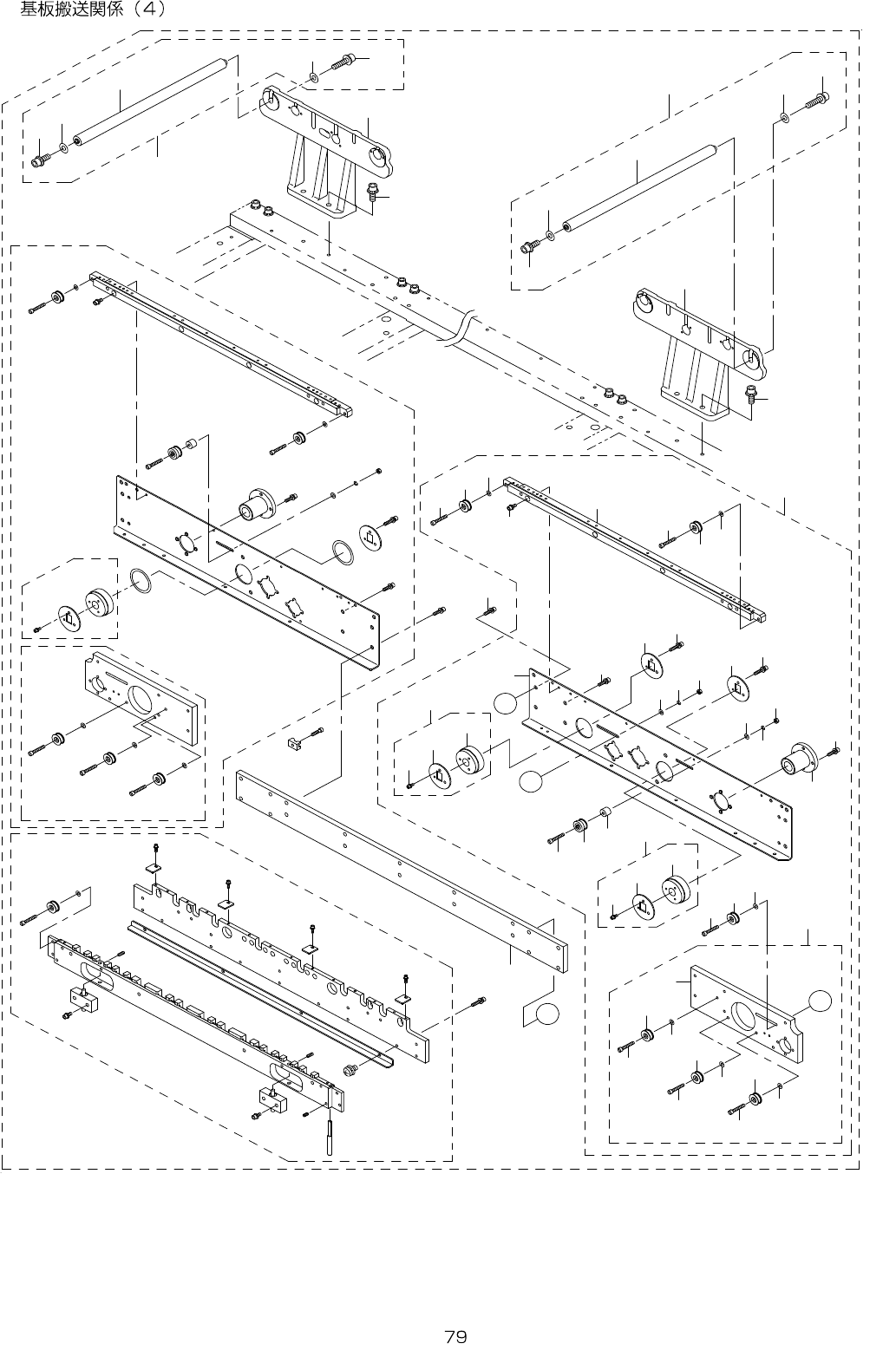
40.PWBCONVEYORCOMPONENTS(4)
2 0
3
1 9
2 2
2 1
5
2 2
2 1
5
2 4
2 9
8
7
6
1 1
1 0
9
1 5
1 6
1 8
1 4
1 6
1 5
1 4
1 8
1 7
4
3 7
3 8
3 5
3 6
3 6
3 1
4 0
3 4
3 6
3 6
3 5
A
A
B
3 3
3 9
3 0
3 3
2
2 7
2 5
2 6
2 6
2 4
2 5
2 5
2 4
2 6
2 8
1 1
1 0
9
1 2
1 3
1 3
B
1 7
2 3
1
3 4
3 2
3 2
8