RX-6_RX-6B_RX-6R-Rev11 - 第27页
- 22 - NOTE( 注記 ) #01....FOR FRO NT SIDE 手前側用 #02....FOR REAR SIDE 奥側用 REF.NO NOTE PART NO D E S C R I P T I O N 品 名 Qty 1 #01 401-28812 SAFETY_COVER_F_ASM セーフティカバーフロント組 1 2 E3065-729-000 SHAFT LABEL シャフトラベル (1) 3 401-28…

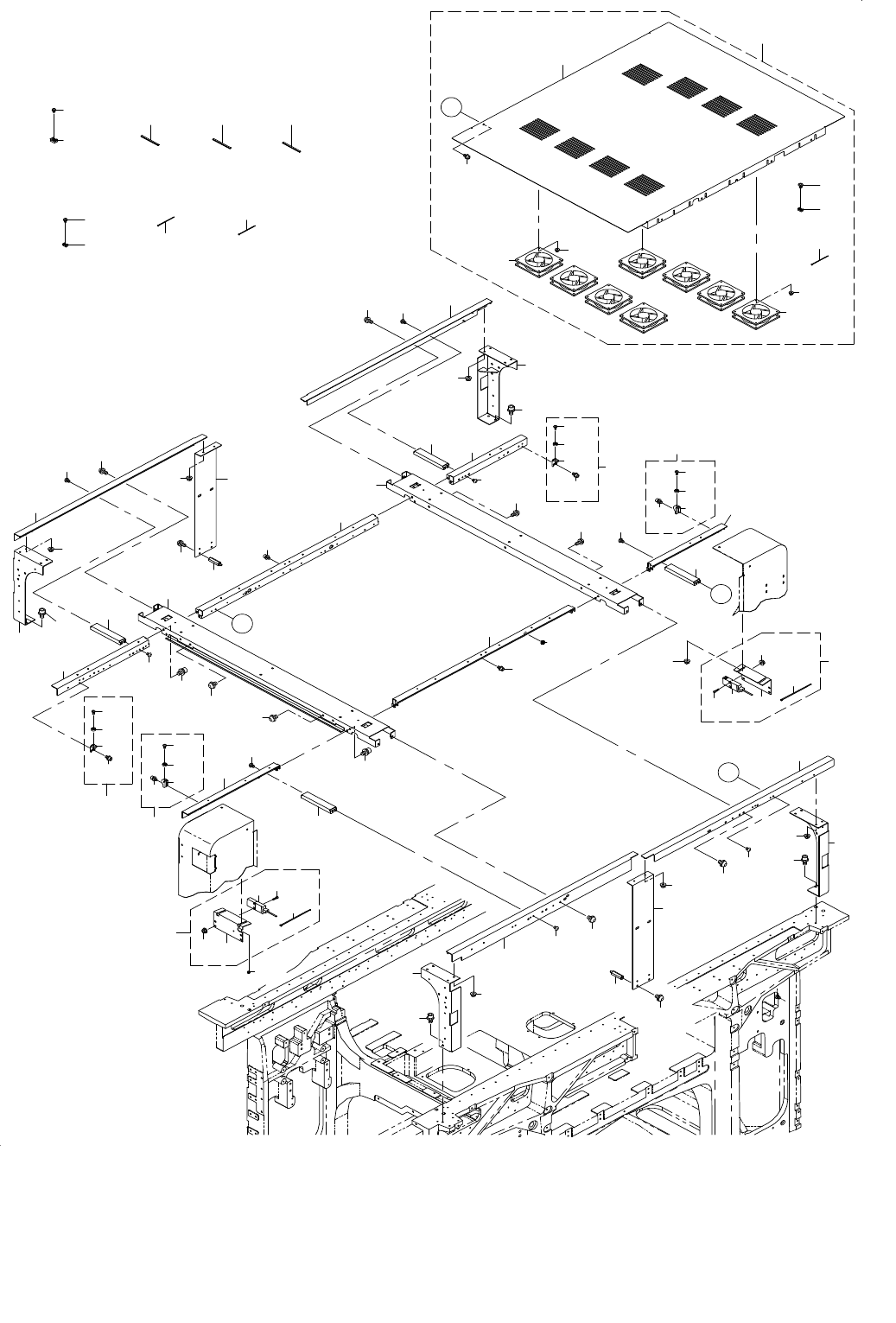
- 21 -
11.COVER COMPONENTS(4)(AFTER M/C REV.C)
カバー関係(4)(マシン REV.C 以降)
38
6
4
5
10
8
9
A
A
11
12
14
17
18
19
20
7
21
23
24
22
27
26
25
28
29
31
30
16
13
44
43
43
41
42
50
49
39
40
45
46
47
48
2
49
42
50
48
40
39
45
47
1
46
36
34
17
35
15
33
72
74
59
60
62
64
65
65
66
66
65
66
66
66
65
65
65
67
65
66
65
63
66
69
70
71
58
57
73
75
76
77
85
85
85
85
85
78
79
85
85
80
81
82
83
84
92
86
86
86
86
86
86
86
87
87
88
89
90
91
93
94
95
96
53
97
52
98
99
53
97
99
52
100
54
55
61
86
B
B
C
C
89
56
D
D
E
E
68
3
51
37
32

- 22 -
NOTE( 注記 ) #01....FOR FRONT SIDE 手前側用
#02....FOR REAR SIDE 奥側用
REF.NO NOTE PART NO D E S C R I P T I O N
品 名
Qty
1
#01
401-28812 SAFETY_COVER_F_ASM
セーフティカバーフロント組
1
2 E3065-729-000 SHAFT LABEL
シャフトラベル
(1)
3 401-28785 SAFETY_COVER_SUB_ASM
セーフティカバーサブ組
(1)
4 401-28775 SAFETY_COVER_STAY_C_U
セーフティカバーステイC_U
(1)
5 SL-3061232-TN SCREW M6 L=12
座金付きボタンボルト M6 L=12
(10)
6 NM-3060810-SF FLANGE NUT M6
フランジ付き ナット M6
(10)
7 401-28776 SAFETY_COVER_STAY_C_B
セーフティカバーステイC_B
(1)
8 NM-3060810-SF FLANGE NUT M6
フランジ付き ナット M6
(2)
9 SL-3061232-TN SCREW M6 L=12
座金付きボタンボルト M6 L=12
(2)
10 NM-3060810-SF FLANGE NUT M6
フランジ付き ナット M6
(2)
11 SM-1061401-SE SCREW M6 L=14
皿小ねじ M6 L=14
(2)
12 NM-3060810-SF FLANGE NUT M6
フランジ付き ナット M6
(2)
13 E1318-715-000 SAFETY COVER HINGE
安全カバー ヒンジ
(2)
14 SL-3061232-TN SCREW M6 L=12
座金付きボタンボルト M6 L=12
(8)
15 401-28779 SCF_PLATE
SCFプレート
(1)
16 CM-3002000-06 FINGER INJURY CAUTION LABEL (100)
指怪我注意シール(100)
(1)
17 SL-3061232-TN SCREW M6 L=12
座金付きボタンボルト M6 L=12
(11)
18 401-22998 HANDLE
ハンドル
(1)
19 SM-9061613-SC SCREW M6 L=16
六角ボルト M6 L=16
(2)
20 NM-3060810-SF FLANGE NUT M6
フランジ付き ナット M6
(4)
21 400-80490 KEY_SCREW
キーねじ
(2)
22 401-28777 FEEDER_COVER
フィーダーカバー
(1)
23 SL-3061232-TN SCREW M6 L=12
座金付きボタンボルト M6 L=12
(6)
24 NM-3060810-SF FLANGE NUT M6
フランジ付き ナット M6
(6)
25 401-13967 HANDLE_L
ハンドル_L
(1)
26 400-81751 B_COVER_SCREW
Bカバースクリュウ
(2)
27 WP-0431005-SP PLAIN WASHER
平座金
(2)
28 CM-3002000-04 FINGER INJURY CAUTION LABEL (50)
指怪我注意シール(50)
(1)
29 E3858-715-000 SEAL
手触れ禁止シール
(1)
30 401-32490 SC_CUSHION
安全カバークッション
(1)
31 SL-6030592-TN SCREW M3 L=5
座金付き六角穴ボルト M3 L=5
(2)
32 401-34197 SAFETY_COVER_KEY_BRACKET_SHEET
セーフティカバーキーブラケットシート
(1)
33 401-28791 EDGE_CUSHION
エッジクッション
(1)
34 401-28796 SCF_PLATE_SPACER_U
SCF_プレートスペーサ_U
(1)
35 401-28797 SCF_PLATE_SPACER_B
SCF_プレートスペーサ_B
(1)
36 401-32488 SC_GUARD
安全カバーガード
(2)
37 SM-3030552-TN SCREW M3 L=5
丸ねじ M3 L=5
(2)
38 401-28771 SAFETY_COVER_FRAME
セーフティカバーフレーム
(1)
39 401-28782 GAS_SPRING_SPACER
ガススプリングスペーサ
(2)
40 401-28783 STEP_SCREW
段ねじ
(2)
41 400-77321 STAY
ステイ
(1)
42 NM-6060001-SC NUT M6X1 TYPE1
六角ナット M6X1 1種
(2)
43 SM-1040801-SN SCREW M4X0.7 L=8
皿ねじ M4 L=8
(4)
44 NM-7040032-SC HEXAGONAL CAP NUT 3 M4X0.7
六角袋ナット 3形 M4X0.7
(2)
45 401-22999 GAS_SPRING
ガススプリング
(2)
46 401-28778 GS_BRACKET
ガススプリングブラケット
(2)
47 SL-6061292-TN SCREW M6 L=12
座金付き六角穴ボルト M6 L=12
(4)
48 400-38381 STEP SCREW
段付きねじ
(2)
49 WP-0641601-SC WASHER M6
平座金みがき丸 M6
(2)
50 WS-0610002-KN SPRING WASHER M6
ばね座金 M6
(2)
51
#02
401-56117 SAFETY_COVER_R_SEPARATE_ASM
安全カバー_R_分割組
1
52 401-22999 GAS_SPRING
ガススプリング
(2)
53 401-28778 GS_BRACKET
ガススプリングブラケット
(2)
54 E3065-729-000 SHAFT LABEL
シャフトラベル
(1)
55 E3858-715-000 SEAL
手触れ禁止シール
(1)
56 401-56118 SAFETY_COVER_R_REMOVAL
安全カバー_R_取り外し
(1)
57 401-32488 SC_GUARD
安全カバーガード
(1)
58 SM-3030552-TN SCREW M3 L=5
丸ねじ M3 L=5
(1)
59 401-54719 SAFETY_COVER_FRAME_HALF_A
安全カバー_フレーム_ハーフ_A
(1)
60 401-54717 SAFETY_COVER_STAY_C_UA
安全カバー_ステー_C_UA
(1)
61 401-54705 SCF_PLATE_A
SCF_プレート_A
(1)
62 401-54706 SAFETY_COVER_STAY_C_BA
安全カバー_ステー_C_BA
(1)
63 401-54711 EDGE_CUSHION_HALF_A
エッジクッション_ハーフ_A
(1)
64 401-54741 FEEDER_COVER_A_AL
フィーダ_カバー_A_AL
(1)
65 NM-3060810-SF FLANGE NUT M6
フランジ付き ナット M6
(20)
66 SL-3061232-TN SCREW M6 L=12
座金付きボタンボルト M6 L=12
(26)
67 SM-1061401-SE SCREW M6 L=14
皿小ねじ M6 L=14
(2)
68 401-56119 SAFETY_COVER_R_FIXED
安全カバー_R_固定
(1)
69 401-34197 SAFETY_COVER_KEY_BRACKET_SHEET
セーフティカバーキーブラケットシート
(1)
70 400-80490 KEY_SCREW
キーねじ
(2)
71 401-13967 HANDLE_L
ハンドル_L
(1)
72 401-32488 SC_GUARD
安全カバーガード
(1)
73 401-28791 EDGE_CUSHION
エッジクッション
(1)
74 SM-3030552-TN SCREW M3 L=5
丸ねじ M3 L=5
(1)
75 401-28811 COVER_GUARD_R
ガードカバーR
(1)
76 401-32490 SC_CUSHION
安全カバークッション
(1)
77 401-54707 SCF_PLATE_B
SCF_プレート_B
(1)
78 401-54708 SAFETY_COVER_STAY_C_BB
安全カバー_ステー_C_BB
(1)
79 401-54712 EDGE_CUSHION_HALF_B
エッジクッション_ハーフ_A
(1)
80 401-54718 SAFETY_COVER_STAY_C_UB
安全カバー_ステー_C_UB
(1)
81 401-54738 SAFETY_COVER_FRAME_TR8S
安全カバー_フレーム_TR8S
(1)
82 401-54742 FEEDER_COVER_B_AL
フィーダ_カバー_B_AL
(1)
83 401-54745 CONNECT_PLATE_B
コネクト_プレート_B
(1)
84 E1318-715-000 SAFETY COVER HINGE
安全カバー ヒンジ
(2)
85 NM-3060810-SF FLANGE NUT M6
フランジ付き ナット M6
(20)
86 SL-3061232-TN SCREW M6 L=12
座金付きボタンボルト M6 L=12
(25)
87 SL-6040692-TN SCREW M4 L=6
座金付き六角穴ボルト M4 L=6
(5)
88 SM-1061401-SE SCREW M6 L=14
皿小ねじ M6 L=14
(2)
89 SM-3040652-TN SCREW M4 L=6
丸ねじ M4 L=6
(4)
90 SM-6040502-TN SCREW
六角穴ボルト
(1)
91 401-22998 HANDLE
ハンドル
(1)
92 NM-3060810-SF FLANGE NUT M6
フランジ付き ナット M6
(2)
93 SM-9062003-SC SCREW M6 L=20
六角ボルト M6 L=20
(2)
94 401-28789 BRAND_MARK_LABEL_RX-6S
ブランドマークラベル RX−6S
(1)
95 CM-3002000-06 FINGER INJURY CAUTION LABEL (100)
指怪我注意シール(100)
(1)
96 CM-3002000-05 FINGER INJURY CAUTION LABEL (75)
指怪我注意シール(75)
(1)
97 400-38381 STEP SCREW
段付きねじ
(2)
98 400-77321 STAY
ステイ
(1)
99 SM-1040801-SN SCREW M4X0.7 L=8
皿ねじ M4 L=8
(4)
100 NM-7040032-SC HEXAGONAL CAP NUT 3 M4X0.7
六角袋ナット 3形 M4X0.7
(2)

- 23 -
12.COVER COMPONENTS(5)
カバー関係(5)
2
2
3
3
4
4
5
6
6
1
5
8
10
11
9
12
11
12
9
10
8
8
10
9
12
11
40
13
16
16
17
18
19
21
21
22
22
23
24
24
25
26
26
27
27
27
27
14
15
15
33
33
33
33
33
33
33
34
34
34
34
34
37
37
37
37
36
36
38
38
38
38
38
38
38
34
B
38
38
B
37
33
25
37
7
7
7
7
43
44
42
45
46
48
43
48
A
A
47
41
35
32
28
29
30
31
20
11
9
12
10
8
1
23
39