PTS-GPX-06JE - 第71页
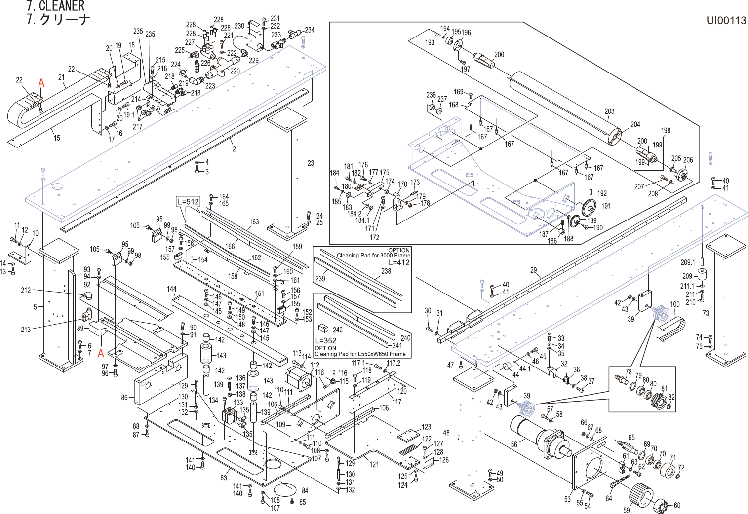
7.CLEANER 7. クリーナ UI00113 No. Drg.No.&CodeNo. QTY Description Rating Materials Remarks 番号 図番 &コード 番号 個数 品名 規格 材質 備考 2 PB38131 1 PLATE プ レート FE 3 H5299A 10 BOLT,HEXSOCKET ボ ルト 六角穴 M05X012 FE 4 W1023A 10 W…

70
PTS-GPX-06JE

7.CLEANER
7.クリーナ
UI00113
No. Drg.No.&CodeNo. QTY Description Rating Materials Remarks
番号 図番&コード番号 個数 品名 規格 材質 備考
2 PB38131 1 PLATE プレート FE
3 H5299A 10 BOLT,HEXSOCKET ボルト六角穴 M05X012 FE
4 W1023A 10 WASHER,LOCK ワッシャスプリング 5M/M FE
5
PM67198
1 LEG 脚 OT
6 H5342A 4 BOLT,HEXSOCKET ボルト六角穴 M08X025 FE
7 W1025A 4 WASHER,LOCK ワッシャスプリング 8M/M FE
10 PB38065 1 BKT BKT FE
11 H5321A 2 BOLT,HEXSOCKET ボルト六角穴 M06X012 FE
12 W1024A 2 WASHER,LOCK ワッシャスプリング 6M/M FE
13 H5320A 2 BOLT,HEXSOCKET ボルト六角穴 M06X010 FE
14 W1024A 2 WASHER,LOCK ワッシャスプリング 6M/M FE
15 PB50282 1 BKT,SUPPORT BKT支え FE
16 H5322A 2 BOLT,HEXSOCKET ボルト六角穴 M06X015 FE
17 W1024A 2 WASHER,LOCK ワッシャスプリング 6M/M FE
18 PB50292 1 BKT BKT FE
19 H5298A 1 BOLT,HEXSOCKET ボルト六角穴 M05X010 FE
19.1 H5297A 1 BOLT,HEXSOCKET ボルト六角穴 M05X008 FE
20 W1023A 2 WASHER,LOCK ワッシャスプリング 5M/M FE
21
K41626
1 FLEXIBLETRACK ケーブルベア 09-50-038-0-33-080.50.12 OT
22 K5357M 6 SCREW,HEXSOCKETCOUNTERSUNK 小ネジ六角穴皿 M03X006 FE
23
PM67206
1 LEG 脚 OT
24 H5342A 3 BOLT,HEXSOCKET ボルト六角穴 M08X025 FE
25 W1025A 3 WASHER,LOCK ワッシャスプリング 8M/M FE
29 XG00691 1 GUIDE,RAIL ガイドレール OT
30 H5290A 21 BOLT,HEXSOCKET ボルト六角穴 M04X015 FE
31 W1011A 21 WASHER,CONICAL ワッシャ皿 M-4-L FE
32 PB41861 1 BKT,SENSOR BKTセンサ FE
33 H5289A 2 BOLT,HEXSOCKET ボルト六角穴 M04X012 FE
34 W1022A 2 WASHER,LOCK ワッシャスプリング 4M/M FE
35 W1043A 2 WASHER,FLAT ワッシャ平 4W-4 FE
36 S4077W 1 SENSOR,PHOTO センサフォト PM-R44P OT
37 H5274A 2 BOLT,HEXSOCKET ボルト六角穴 M03X006 OT
38 W1021A 2 WASHER,LOCK ワッシャスプリング 3M/M OT
39 PM67272 2 BLOCK ブロック FE
40 H5343A 4 BOLT,HEXSOCKET ボルト六角穴 M08X030 FE
41 W1025A 4 WASHER,LOCK ワッシャスプリング 8M/M FE
42
N1096A
2 NUT,HEX ナット六角
M12P=1.75
FE
71
PTS-GPX-06JE

7.CLEANER
7.クリーナ
UI00113
No. Drg.No.&CodeNo. QTY Description Rating Materials Remarks
番号 図番&コード番号 個数 品名 規格 材質 備考
43 W1027A 2 WASHER,LOCK ワッシャスプリング 12M/M FE
44
A10072
1 LEG,RUBBER 脚ゴム TK-26<TG> OT
44.1
S3244Y
1 SPACER スペーサ CF-404ZE OT
45 H5289A 1 BOLT,HEXSOCKET ボルト六角穴 M04X012 FE
46 W1022A 1 WASHER,LOCK ワッシャスプリング 4M/M FE
47 H5286A 3 BOLT,HEXSOCKET ボルト六角穴 M04X006 FE
48
PM67177
1 LEG 脚 OT
49 H5342A 4 BOLT,HEXSOCKET ボルト六角穴 M08X025 FE
50 W1025A 4 WASHER,LOCK ワッシャスプリング 8M/M FE
53 PM67245 1 PLATE プレート FE
54 H5323A 3 BOLT,HEXSOCKET ボルト六角穴 M06X018 FE
55 W1024A 3 WASHER,LOCK ワッシャスプリング 6M/M FE
56 XM01100 1 MOTOR,ACSERVO モータACサーボ OT
57 H5342A 4 BOLT,HEXSOCKET ボルト六角穴 M08X025 FE
58 W1025A 4 WASHER,LOCK ワッシャスプリング 8M/M FE
59 PZ17920 1 PULLEY プーリ OT
60 H30530 1 BUSHING ブシュ MT-25-50 OT
61
PM0DKX0
1 BLOCK ブロック FE
62 H5302A 2 BOLT,HEXSOCKET ボルト六角穴 M05X020 FE
63 W1012A 2 WASHER,CONICAL ワッシャ皿 M-5-L FE
64
PM0FBS0
1 ADJUSTER アジャスタ FE
65
PM0B8G1
1 SHAFT シャフト FE
66
N1096A
1 NUT,HEX ナット六角
M12P=1.75
FE
67 W1027A 1 WASHER,LOCK ワッシャスプリング 12M/M FE
68 W1048A 1 WASHER,FLAT ワッシャ平 4W-12 FE
69 S1007A 1 CIR-CLIP サークリップ RTW32 OT
70 H4178A 2 BEARING ベアリング 6002ZZ OT
71
PM67281
1 ROLLER ローラ AL
72 S1034A 1 CIR-CLIP サークリップ STW15 OT
73
PM67186
1 LEG 脚 OT
74 H5342A 3 BOLT,HEXSOCKET ボルト六角穴 M08X025 FE
75 W1025A 3 WASHER,LOCK ワッシャスプリング 8M/M FE
78
PM0B8H0
2 SHAFT シャフト FE
79
S1007A 2 CIR-CLIP サークリップ RTW32 OT
80 H4178A 4 BEARING ベアリング 6002ZZ OT
81 PZ17911 2 PULLEY プーリ OT
82 S1034A 2 CIR-CLIP サークリップ STW15 OT
72
PTS-GPX-06JE