5M-1752-003w_G5S - 第145页
4-22 5OM-1752 1306-002A(31010WC--1003) B1 安装头伺服放大器连接电路 1 2 3 4 5 6 7 8 A B C D E F A31F Servo Motor AMP 1 3 5 7 2 4 6 8 13 PA 1 P AR1 PB1 PBR1 PA 4 P AR4 PB4 PBR4 PG5 CN5 16 :A1 P2A B1 2B U :A2 1A V :A3 2A W :B1 U :B2 V …

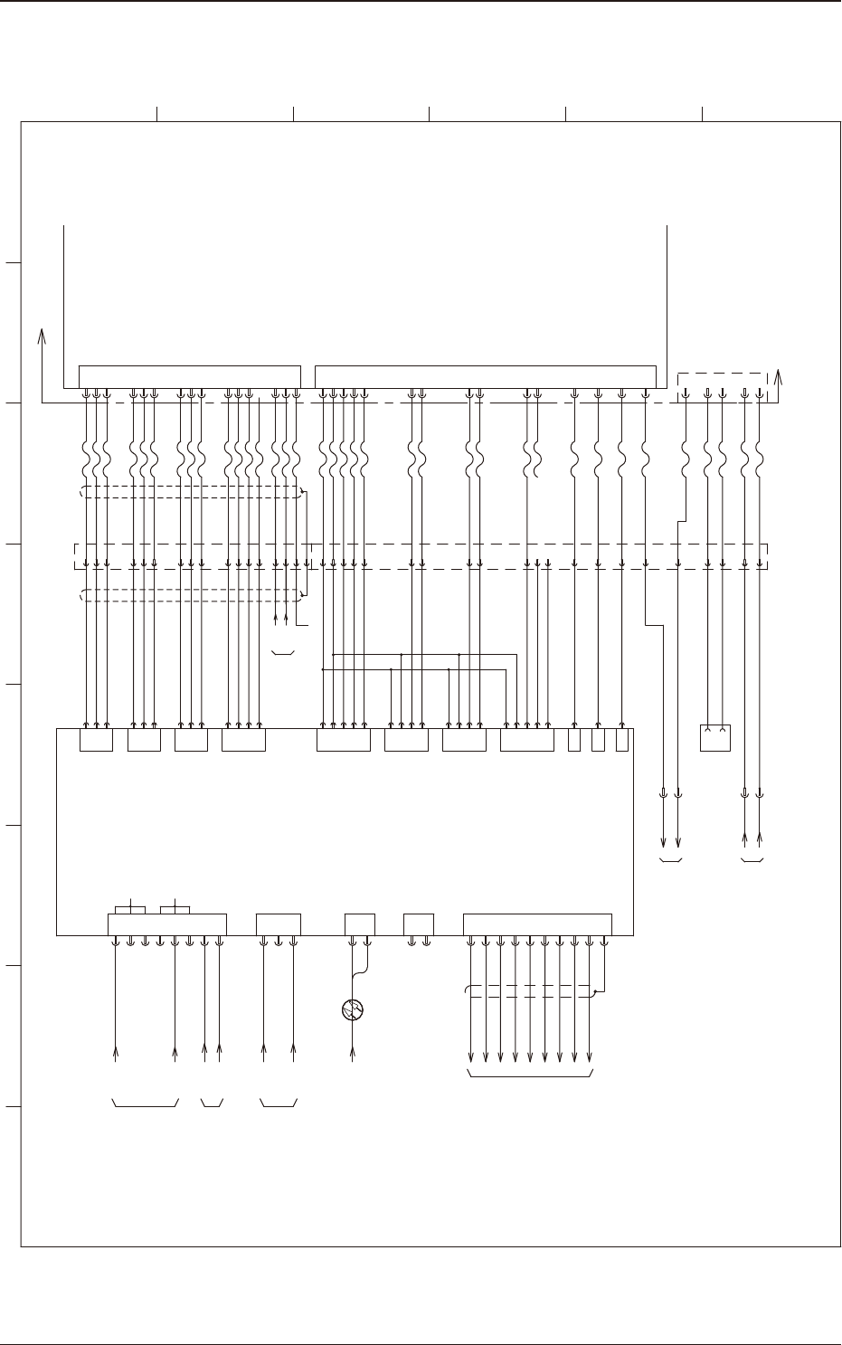
4-21
5OM-1752
1305-001-(31010WC---1002)
XY 马达 (B2) 连接电路
1 2 3 4 5 6 7 8
A
B
C
D
E
F
L1
L2
L3
L11
L21
C
D
P
PE
U
V
W
2
4
3
7
8
1
P5
LG
CN2L
SD
MRR2
MR2
MD2
MDR2
CN3
LAR
LA
6
16
LBR
LB
7
17
L120
L220
3
M
Y1-Axis
M22F
Y1
X22102F
:B6
:B5
:A5
:E5
:C5
:C6
Case
MRR
MR
0V
MDR
MD
5V
U22F
8
7
4
2
5
6
X2202LF
X2202F
7
8
MDR
MD
CN2
SD
X2203F
:1
:3
:4
:2
[R-/03/2D]
to U95-CON3
3
M
Y2-Axis
M23F
Case
MRR
MR
0V
MDR
MD
5V
8
7
4
2
5
6
X2302LF
X2302F
X2103F
:1
:3
:4
:2
[R-/03/2E]
to U95-CON4
X211AF
X211BF
3
M
X-Axis
M21F
MRR
MR
0V
MDR
MD
5V
8
7
4
2
5
6
X2102LF
A23F
L1
L2
L3
L11
L21
C
D
P
PE
U
V
W
2
4
3
7
8
1
P5
LG
CN2L
SD
MRR2
MR2
MD2
MDR2
CN3
7
8
MDR
MD
CN2
SD
PE
U
V
W
P5
LG
CN2L
SD
MRR2
MR2
MD2
MDR2
CN3
LAR
LA
16
LBR
LB
17
CN2
6
7
U23F
U21F
CN1A
CN1B
1
2
1
2
2
4
3
7
8
1
X231AB CN1A
CN1B
1
2
1
2
X221AF
X221BF
CN1A
CN1B
1
2
1
2
A22F
A21F
from K33B
from Q206
:A1
:A2
:A3
:B1
:B2
:2
:3
:4
:A1
:A2
:A3
:B1
:B2
:1
:2
:3
:4
:A1
:A2
:A3
:B1
:B2
:2
:3
:4
:1
X22102F
:B4
:B3
:A3
:E3
:C3
:C4
X10702F
:37
:36
:33
:32
:34
:35
L1
L2
L3
L11
L21
C
D
P
L120
L220
from K33B
from Q206
L120
L220
from K33B
from Q206
Main Power
Control Power
P5
LG
SD
MRR2
MR2
MD2
MDR2
2
4
3
7
8
1
MRR
MR
0V
MDR
MD
5V
8
7
4
2
5
6
X22102F
:B2
:B1
:A1
:E1
:C1
:C2
Main Power
Main Power
X95103
X95104
XM21PF
XM22PF
XM23PF
C
P
R04B
X2102F
[C-/01/1F]
from A23B-CN1B
:1
Y2
X
X_LN_EN
X_MO_EN
Y1
Y2
FG
SD
FG
SD
FG
SD
Control Power
Control Power
L132
L232
L332
L132
L232
L332
L132
L232
L332
[B-/01/2E]
[B-/01/5E]
[B-/01/2E]
[B-/01/5E]
[B-/01/2E]
[B-/01/5E]
5
DICOM
DI1
2
+
L
OUT
-
Y1
Overrun Sensor
Linear Motor AMP
Linear Motor AMP
Servo Motor AMP
Linear Scale Head
Linear Scale Head
Head
Linear Scale
24A6
[B-/02/7D]
10
Connector Case
(/A Phase)
(/B Phase)
(B Phase)
(A Phase)
Connector Case
Regeneration
resistance
Connector Case
Motor Encoder
X Axis
Connector Case
(/A Phase)
(/B Phase)
(B Phase)
(A Phase)

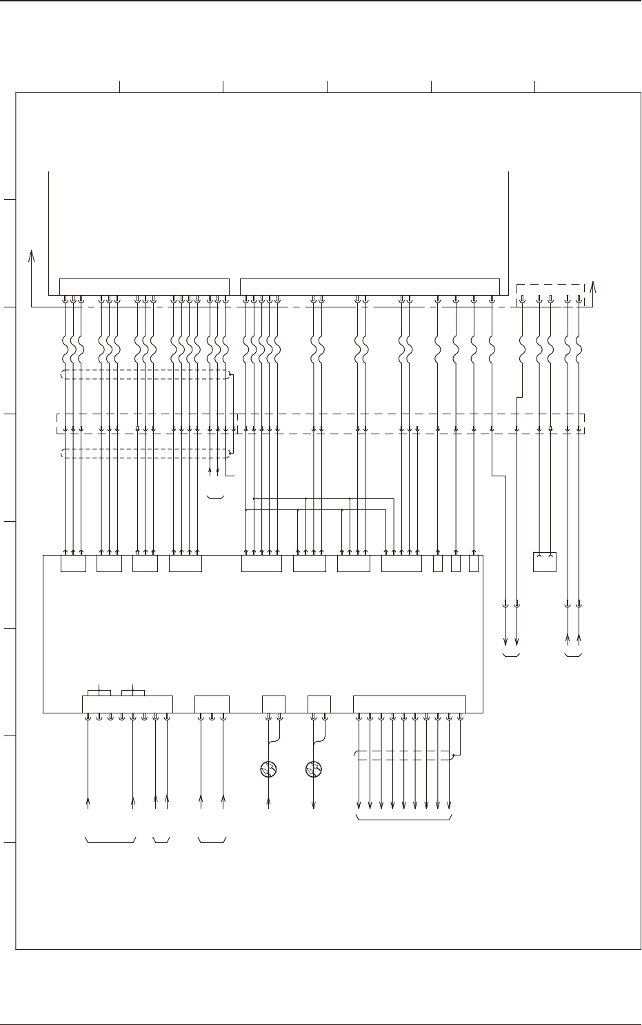
4-22
5OM-1752
1306-002A(31010WC--1003)
B1 安装头伺服放大器连接电路
1 2 3 4 5 6 7 8
A
B
C
D
E
F
A31F
Servo Motor AMP
1
3
5
7
2
4
6
8
13
PA1
PAR1
PB1
PBR1
PA4
PAR4
PB4
PBR4
PG5
CN5
16
:A1
P2A
B12BU
:A2
1AV
:A3
2AW
:B1
U
:B2
V
:B3
W
:A8
U
:A9
V
:A10
W
:B8
2BU
:B9
1AV
:B10
2BW
:A5
:A6
:A7
:1
2A
A4P5
:2
B4P5G
:3
A1MR1
:4
B1MRR1
:5
B5BAT
A4
B4
:6
A1
:7
B1
:8
:9
:10
:11
:13
4NS_ORGN
:14
3HL_OR-/L2_OR-
:15
3L1_OR-
:B7
A4
B4
A1
B1
A4
B4
A1
B1
:Case
B1
X31P2AF
X31P2BF
X31P2CF
X31P2DF
P2B
P2C
P2D
P5
P5G
MR1
MRR1
P5
P5G
MR1
MRR1
P5
P5G
MR1
MRR1
Shield
X312AF
X312BF
X312CF
X312DF
B2
B3
B8
B9
B10
A8
A9
A10
A1
A2
A3
A5
A6
A7
1
2
3
6
7
8
9
10
11
17
18
19
4
5
1BE A4
2B
1A
2A
2B
1A
2A
2B
2C
2D
:12
16
:20
:21
:22
:23
:24
1
2
3
4
5
HEAD2
X314BF
X314CF
X314DF
CN1
CN2
X0701
X0702
XH
1
2
N.C
NL_INLK
IH_ERROR
IH_TH-
IH_TH+
IH_LIGHT_OFF
IH_ZERO_SHIFT
X131P2
X10702F
XBHF
:A4
10
24A6
FG
[B-/02/7D]
24A6
1A
1B
2A
4B
5A
5B
6A
6B
P48M
P24M
P24G
10
48D
X31P1F
10
P48G
1
2
X311A
CN1A
CNP1
X3105F
SSCNET3
(IN)
1
2
CN1B
SSCNET3
(OUT)
[B-/03/7B]
from U27-CN12
[B-/02/7C]
from U27-CN12
[C-/03/1C]
from A31B CN1B
[D-/10/7C]
to U02-CN3F
Robot Cable
[D-/11/6D]
to U02-CN6F
[D-/11/6F]
from U02-CN7F
X10206F:2
:1
:2
X10207F:1
1
2
X3103F
CN3
3
DICOM
DOCOM
10
[B-/02/7D]
from DC Terminal
24A6
U07
Connector PCB

4-23
5OM-1752
1306-002A(31010WC--1004)
B2 安装头伺服放大器连接电路
1 2 3 4 5 6 7 8
A
B
C
D
E
F
A31B
Servo Motor AMP
1
3
5
7
2
4
6
8
13
PA1
PAR1
PB1
PBR1
PA4
PAR4
PB4
PBR4
PG5
CN5
16
:A1
CNP2A
B12BU
:A2
1AV
:A3
2AW
:B1
U
:B2
V
:B3
W
:A8
U
:A9
V
:A10
W
:B8
2BU
:B9
1AV
:B10
2BW
:A5
:A6
:A7
:1
CN2A
A4P5
:2
B4P5G
:3
A1MR1
:4
B1MRR1
:5
B5BAT
A4
B4
:6
A1
:7
B1
:8
:9
:10
:11
:13
4NS_ORGN
:14
3HL_OR-/L2_OR-
:15
3L1_OR-
:B7
A4
B4
A1
B1
A4
B4
A1
B1
:Case
B1
X31P2AB
X31P2BB
X31P2CB
X31P2DB
CNP2B
CNP2C
CNP2D
P5
P5G
MR1
MRR1
P5
P5G
MR1
MRR1
P5
P5G
MR1
MRR1
Shield
X312AB
X312BB
X312CB
X312DB
B2
B3
B8
B9
B10
A8
A9
A10
A1
A2
A3
A5
A6
A7
1
2
3
6
7
8
9
10
11
17
18
19
4
5
U07
Connector PCB
1BE A4
2B
1A
2A
2B
1A
2A
CN2B
CN2C
CN2D
:12
16
:20
:21
:22
:23
:24
1
2
3
4
5
HEAD1
X314BB
X314CB
X314DB
CN1
CN2
X0701
X0702
XH
1
2
N.C
NL_INLK
IH_ERROR
IH_TH-
IH_TH+
IH_LIGHT_OFF
IH_ZERO_SHIFT
X131P2
X10702B
XBHF
:A4
10
24A6
FG
[B-/02/7D]
24A6
1A
1B
2A
4B
5A
5B
6A
6B
P48M
P24M
P24G
10
48D
X31P1B
10
P48G
1
2
X311A
CN1A
CNP1
X3105B
SSCNET3
(IN)
1
2
X311B
CN1B
SSCNET3
(OUT)
[B-/03/7B]
from U27-CN13
[B-/02/7C]
from U27-CN13
[F-/02/6B]
from U82-SSCNET3 2CH
[C-/04/2B]
to A31F-CN1A
[D-/10/2C]
to U02-CN3B
Robot Cable
[D-/11/3D]
to U02-CN6B
[D-/11/3F]
from U02-CN7B
X10206B:2
:1
:2
X10207B:1
1
2
X3103B
CN3
3
DICOM
DOCOM
10
[B-/02/7D]
from DC Terminal
24A6