5M-1752-003w_G5S - 第84页
2-7 传感器及负载配置图 5OM-1752 1306-002 切割部布局 Symbol Name Symbol Name M63 Cutter Axis Motor B6307 Cutter Axis Origin Sensor M63 M63 C C SECT C-C B6307

2-6
传感器及负载配置图
5OM-1752
1306-002
送料器推车布局
Y6912
B6913
Symbol Name Symbol Name
Y6912 Feeder Clamp
B6913 Feeder Clamp Lower Limit (Clamping)

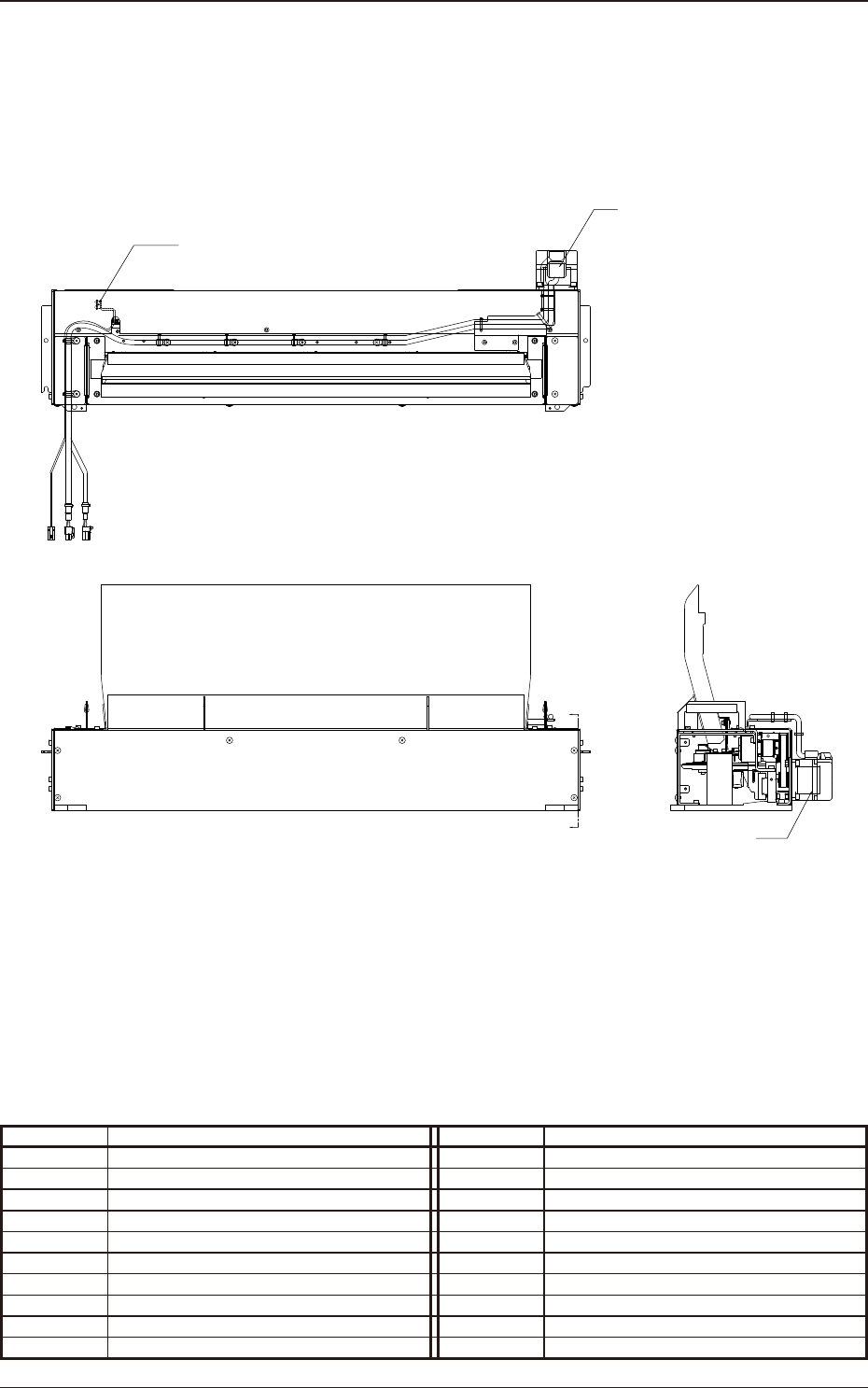
2-7
传感器及负载配置图
5OM-1752
1306-002
切割部布局
Symbol Name Symbol Name
M63 Cutter Axis Motor
B6307 Cutter Axis Origin Sensor
M63
M63
C
C
SECT C-C
B6307

2-8
传感器及负载配置图
5OM-1752
1306-002
安装头部布局 ( 整体 )
Symbol Name Symbol Name
Nozzle U/D Section
Head U/D Section
Nozzle Selection Section
Head Rotation Section