NPM-W2[201504] - 第95页
Ref No. Remarks R 1 Q'ty 20-C フィーダーテーブルカバー(交換台車対応)Front側:NPM-W2 Feeder Table Cover(Feeder Cart)Front:N PM-W 2 イラスト No. Part No. 品 名 品 番 数量 R 2 パーツリスト Kit No. キット品番 Kit Name キット名称 MTKA001537AA Part Nam e 備 考 セク ショ ンN…

20-C
フィーダーテーブルカバー(交換台車対応)Front側:NPM-W2
Feeder Table Cover(Feeder Cart)Front:NPM-W2
パーツレイアウト
Kit No.
キット品番
Kit Name
キット名称
MTKA001537AA
セクションNo.
PARTS LAYOUT
Section No.
--
S71
( KMTKA001537AA-02-3 )

Ref
No.
Remarks R
1
Q'ty
20-C
フィーダーテーブルカバー(交換台車対応)Front側:NPM-W2
Feeder Table Cover(Feeder Cart)Front:NPM-W2
イラスト
No.
Part No.
品 名品 番 数量
R
2
パーツリスト
Kit No.
キット品番
Kit Name
キット名称
MTKA001537AA
Part Name
備 考
セクションNo.
PARTS LIST
Section No.
R
3
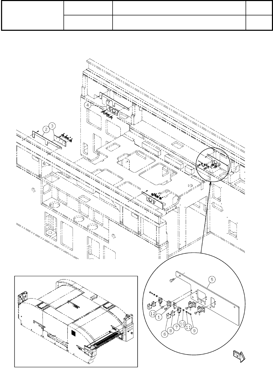
BLOCK
16
1 N210174185AA
PLATE
2
2 N210147109AB
PLATE
1
3 N210147110AC
PLATE
1
4 N210152124AB
PLATE
2
5 N210153729AA
SLIT
16
6 N210174144AA
SENSOR(350mm)
8
7 N610121533AB
S
FILTER
4
8 N510057978AA E39-E14
BOLT
32
9 XVE2B12FTC Hexagon socket head cap screw M2X12-12.9 SOB
WASHER
64
10 N510018477AA
Small round-plain washer 2 10H A2J (Trivalent)
WASHER
32
11 N510018324AA Spring lock washer No.2 2 S A2J (Trivalent)
SCREW
32
12 N510018253AA
Cross recessed Truss head machine screw M3X6-4.8 A2J (Trivalent)
S72
--
( KMTKA001537AA-02-3 )

21
銘板・警告ラベル(フィーダテーブルカバー)Front側:NPM-W2
Label(Feeder Table Cover)Front:NPM-W2
パーツレイアウト
Kit No.
キット品番
Kit Name
キット名称
N610169262AA
セクションNo.
PARTS LAYOUT
Section No.
--
S73
( KN610169262AA-02 )