KE-2070_KE-2080_KE-2080R-Rev17 - 第119页
- 112 - NOTE( 注記 ) *AFTER M/C REV.I(2070), REV.C(2070C), REV.K(2080), RE V.E(2080R) マシン RE V.I(2070) ,REV.C(2070 C) , REV.K(2080) ,REV.E(2 080 R)以降 REF.NO NOTE PART NO D E S C R I P T I O N 品 名 Qty 1 401-11654 CVS UNIT C…

- 111 -
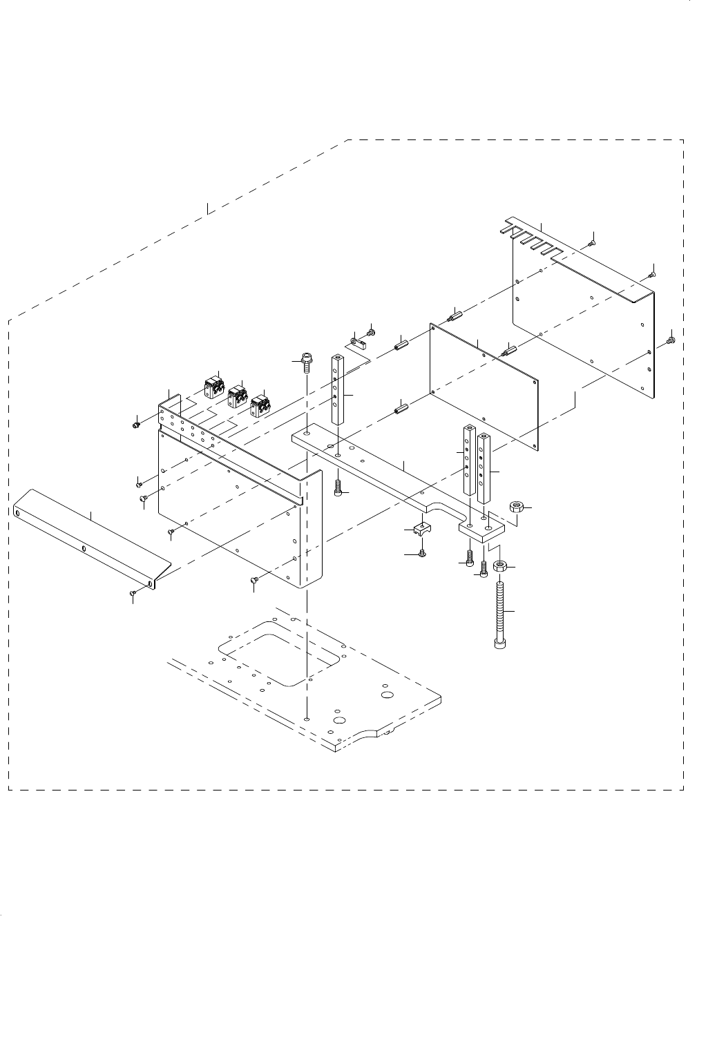
56. CVS COMPONENTS (NEW TYPE)
CVS 関係(新タイプ)
12
12
12
26
2
3
3
4
4
5
6
7
7
8
9
9
10
10
11
11
13
14
15
16
18
19
19
20
21
22
23
24
25
1
17
23

- 112 -
NOTE( 注記 ) *AFTER M/C REV.I(2070), REV.C(2070C), REV.K(2080), REV.E(2080R)
マシン REV.I(2070),REV.C(2070 C),
REV.K(2080),REV.E(2080 R)以降
REF.NO NOTE PART NO D E S C R I P T I O N
品 名
Qty
1 401-11654 CVS UNIT
CVSユニット
1
2 401-11604 CVS STAND 70
CVS スタンド 70
(1)
3 400-47357 HTP_POLE_A
HTPポールA
(2)
4 SM-3040652-TN SCREW M4 L=6
丸ねじ M4 L=6
(4)
5 HX-0034400-00 HARNESS PARTS
束線パーツ
(1)
6 SM-4040601-SC SCREW M4X0.7 L=6
なべ小ねじ M4X0.7 L=6
(1)
7 SM-6051202-TN SCREW M5X0.8 L=12
六角穴ボルト M5X0.8 L=12
(2)
8 400-95117 CVS PCB ASM
CVS基板組
(1)
9 400-48829 STUD17
スタッド17
(6)
10 HX-0035400-0G BOARD PARTS
基板パーツ
(6)
11 SM-3030552-TN SCREW M3 L=5
丸ねじ M3 L=5
(6)
12 401-01989 CONTACT SUB UNIT
コンタクト サブユニット
(6)
13 SL-6030592-TN SCREW M3 L=5
座金付き六角穴ボルト
(24)
14 401-11602 CVS PCB COVER 70
CVS PCB カバー 70
(1)
15 SM-3030552-TN SCREW M3 L=5
丸ねじ M3 L=5
(3)
16 400-47357 HTP POLE A
HTPポールA
(2)
17 SM-6051202-TN SCREW M5X0.8 L=12
六角穴ボルト M5X0.8 L=12
(2)
18 401-11601 CVS COVER 70
CVS カバー 70
(1)
19 SM-1030552-TN PLATE SCREW M3 L=5
皿ねじ M3 L=5
(6)
20 SM-3040652-TN SCREW M4 L=6
丸ねじ M4 L=6
(4)
21 SL-6062092-TN SCREW M6 L=20
座金付き六角穴ボルト
(2)
22 401-11605 SCREW M8 L90
六角穴付きボルト M8 L=90
(1)
23 NM-6080001-SC NUT M8X1.25
六角ナット M8 1種
(2)
24 HX-0029400-00 FIXED BASE
固定ベース
(2)
25 SM-4040601-SC SCREW M4X0.7 L=6
なべ小ねじ M4X0.7 L=6
(2)
26 401-11603 CVS BRACKET 70
CVS ブラケット 70
(1)

- 113 -
57. NOZZLE ASSEMBLY COMPONENTS
ノズルアッセンブリ関係
34
6
11
5
12
13 14 15 16
17
12
78
910