KE-2070_KE-2080_KE-2080R-Rev17 - 第133页
- 126 - NOTE( 注記 ) #01....FOR 2070M,2080M,2080RM 2070 M,2080 M,2080 RM 用 #02....FOR 2070L,2080L,20 80RL, 2070 L,2080 L,2080 RL, 2070CL 2070 CL 用 #03....FOR TRANSFER RE FERENCE ・ 搬送基準・左右用 LEFT-RIGH T #04....FOR TRANSFER R…

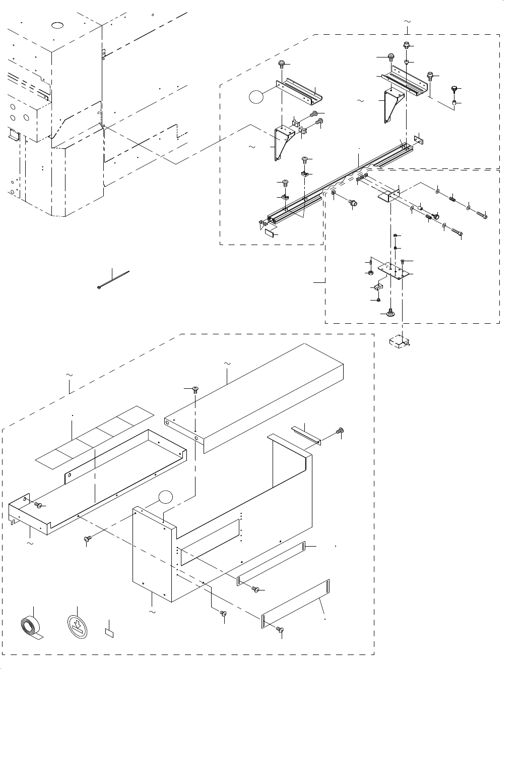
- 125 -
63. SCS COMPONENTS (1)
SCS 関係(1)
16
29
31
26
28
18
19
33
32
15
9
21
22
20
24
23
24
20
24
24
23
10
25
14
41
40
39
37
36
37
38
6
1
12
2
9
9
26
29
27
28
43
43
42
44
46
45
29
26
29
31
26
28
27
30
47
28
31
17
13
27
28
30
31
27
28
11
7
8
9
52
52
52
51
51
49
50
49
52
50
52
52
34
8
4
5
35
25
30
31
30
31
48
3

- 126 -
NOTE( 注記 ) #01....FOR 2070M,2080M,2080RM 2070 M,2080 M,2080 RM 用
#02....FOR 2070L,2080L,2080RL, 2070 L,2080 L,2080 RL,
2070CL 2070 CL 用
#03....FOR TRANSFER REFERENCE ・ 搬送基準・左右用
LEFT-RIGHT
#04....FOR TRANSFER REFERENCE ・ 搬送基準・右左用
RIGHT-LEFT
REF.NO NOTE PART NO D E S C R I P T I O N
品 名
Qty
1 HX-0061000-00 BARCODE READER
バーコードリーダ
1
2 400-28458 BARCODE READER CABLE ASM
バーコードリーダケーブル組
1
3 401-35433 8-PORT COM BOARD
8−PORT COMボ−ド
1
4
#01
400-29114 BRACKET ASM(M)
ブラケット組(M)
1
5
#02
400-29115 BRACKET ASM(L)
ブラケット組(L)
1
6 400-28299 ROTARY PLATE
回転板
(1)
7 400-28300 ROTARY SUPPORT PLATE
回転支持板
(1)
8 400-28301 END CAP
エンドキャップ
(2)
9 400-28302 SLIDE NUT
スライドナット
(8)
10
#01
400-28304 PILLAR A
ピラーA
(1)
11
#01
400-28305 PILLAR B
ピラーB
(1)
12
#02
400-29095 PILLAR A (L TYPE)
ピラーA(Lタイプ)
(1)
13
#02
400-29096 PILLAR B (L TYPE)
ピラーB(Lタイプ)
(1)
14 400-28306 BSS SLIDE RAIL
BSSスライドレール
(1)
15 SL-6040892-TN BOLT
座金付き六角穴ボルト
(1)
16 SM-1030801-SC SCREW M3 L=8
皿小ねじ M3X0.5 L=8
(2)
17 SD-0800327-TP SHOULDER SCREW
段ねじ D=8 H=3.2
(1)
18 G6025-875-000 STOPPER PIN
ストッパピン
(1)
19 NM-6050001-SC NUT M5X0.8 TYPE1
六角ナット M5X0.8 1種
(1)
20 SM-6041802-TN SCREW M4X0.7 L=18
六角穴ボルト M4X0.7 L=18
(2)
21 G6518-880-000 SET PICK-UP
セットつまみ
(1)
22 400-58815 SPACER
スペーサ
(1)
23 400-00912 SENSOR ADJUST SPRING
センサアジャストスプリング
(2)
24 WP-0430801-SC WASHER 4.3X9X0.8
平座金 4.3X9X0.8
(4)
25 SL-6041092-TN SCREW
座金付き六角穴ボルト
(4)
26
#01
SM-4030401-SC SCREW M3X0.5 L=4
なべ小ねじ M3X0.5 L=4
(5)
27
#02
SM-4030401-SC SCREW M3X0.5 L=4
なべ小ねじ M3X0.5 L=4
(6)
28
#03
SM-4030401-SC SCREW M3X0.5 L=4
なべ小ねじ M3X0.5 L=4
(6)
29
#01
HX-0029400-00 FIXED BASE
固定ベース
(5)
30
#02
HX-0029400-00 FIXED BASE
固定ベース
(6)
31
#03
HX-0029400-00 FIXED BASE
固定ベース
(6)
32 SM-8030502-TP SCREW M3 L=5
止めねじ M3X0.5 L=5
(1)
33 NM-6030001-SC NUT M3X0.5 TYPE1
六角ナット M3X0.5 1種
(1)
34 400-27888 FEEDER POSITION BARCODE SEAL
フィーダポジションバーコードシール
3
35
#03
400-31215 EXTENSION PLATE
延長プレート
2
36
#03
400-00912 SENSOR ADJUST SPRING
センサアジャストスプリング
2
37
#03
WP-0430801-SC WASHER 4.3X9X0.8
平座金 4.3X9X0.8
4
38
#03
SM-6041802-TN SCREW M4X0.7 L=18
六角穴ボルト M4X0.7 L=18
2
39
#03
G6518-880-000 SET PICK-UP
セットつまみ
2
40
#03
GBR-11115000 MOTOR SPACER.
モータスペーサ
2
41
#03
SL-6041092-TN SCREW
座金付き六角穴ボルト
4
42
#04
400-00912 SENSOR ADJUST SPRING
センサアジャストスプリング
2
43
#04
WP-0430801-SC WASHER 4.3X9X0.8
平座金 4.3X9X0.8
4
44
#04
SM-6041802-TN SCREW M4X0.7 L=18
六角穴ボルト M4X0.7 L=18
2
45
#04
G6518-880-000 SET PICK-UP
セットつまみ
2
46
#04
GBR-11115000 MOTOR SPACER.
モータスペーサ
2
47
#01
EA-9500B01-00 CABLE BAND
束線バンド
5
48 400-38992 2D PROTECT MODULE
二次元コードプロテクトモジュール
1
49 400-33403 FIXTURE STAND
固定スタンド
2
50 400-33404 FIXTURE BEAM
固定ビーム
2
51 400-33539 EMBEDDED PULLS
埋め込み取手
2
52 SM-0040601-SC SCREW M4X0.7 L=6
トラス小ねじ M4X0.7 L=6
12

- 127 -
64. SCS COMPONENTS (2)
SCS 関係(2)
31
63
29
30
28
40
27
28
23
26
37
37
36
32
33
34
35
39
38
10
64
65
12
18
12
4
3
6
7
5
9
8
16
17
15
17
17
15
17
16
13
14
2
11
38
38
62
39
53
56
49
52
66
41
44
62
62
A
45
48
27
57
62
19
22
58
59
23
26
67
37
60
61
62
38
39
39
31
62
A
1
68